Images
Description
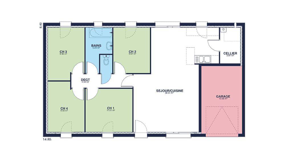
Sur ce terrain, nous vous proposons cette maison neuve : la Focus Family Sud. Conçue par Babeau-Seguin, constructeur reconnu pour offrir le meilleur rapport qualité/prix du marché, cette maison de 89 m² est idéale pour les familles à la recherche d'un logement moderne et économique.
Vous avez un budget serré et rêvez d’une maison au style urbain et contemporain ? La Focus Family Sud est faite pour vous. Cette maison compacte et élégante dispose de 4 chambres et de 4 pièces, offrant un espace de vie optimisé pour votre confort. Le garage intégré de près de 15 m², l'enduit bi-ton et les tuiles Canal ajoutent une touche de charme et de fonctionnalité à cette habitation.
Les options les plus demandées par nos clients, telles que les menuiseries en aluminium, sont disponibles pour personnaliser votre maison selon vos goûts. De plus, cette maison neuve est basse consommation et conforme à la réglementation environnementale RE2020, garantissant des économies d'énergie et un respect de l'environnement.
Ne manquez pas cette opportunité de construire une maison accessible à tous les budgets sans faire l’impasse sur les équipements. Avec ses 4 chambres, un cellier, un large séjour et un garage, la Focus Family Sud n’a rien à envier aux autres modèles de la gamme Babeau-Seguin. Profitez d'une habitation qui allie petit prix et grande prestation.
Logement susceptibles de vous intéresser
Nous vous proposons de découvrir aussi cette sélection de logements situés à moins de 10km de Sepvret et qui seraient susceptibles de vous intéresser.
Chenay
TERRAINDécouvrez ce terrain à vendre dans un cadre enchanteur, situé au sein du lotissement de Chenay, dans le département des Deux-Sèvres (79120). Avec une surface généreuse de 1 023 m², ce terrain viabilisé est paré pour accueillir votre projet de construction de maison. Son exposition ensoleillée et son atmosphère calme en font un lieu de vie idéal, magnifiquement intégré à la nature. Ne laissez pas passer cette offre exceptionnelle, à saisir absolument ! Chenay, charmante ville en Nouvelle-Aquitaine, offre un cadre de vie privilégié grâce à sa proximité avec diverses attractions locales. Profitez de la tranquillité des campagnes environnantes tout en restant proche des commodités essentielles telles que commerces, écoles et services sanitaires. Avec son ambiance paisible et ses paysages pittoresques, cette région est idéale pour les familles et les amoureux de la nature. N’attendez plus pour explorer le potentiel de ce terrain dans un environnement charmant et accueillant. Ce terrain représente une opportunité unique pour concrétiser votre rêve immobilier. N’hésitez pas à envisager cet investissement prometteur ! À noter qu’en tant que constructeur, nous ne sommes pas mandatés pour réaliser la vente de ce terrain.
Melle
TERRAINDécouvrez ce terrain d’exception de 302 m², parfaitement viabilisé, situé au cœur du charmant lotissement de Mellé, dans le département des Deux-Sèvres, en Nouvelle-Aquitaine. Son exposition ensoleillée et son environnement calme en font un lieu idéal pour concrétiser votre projet de construction de maison. Grâce à ses caractéristiques uniques, ce terrain offre une opportunité exceptionnelle pour les acheteurs souhaitant bâtir dans un cadre paisible tout en bénéficiant de la convivialité d’un quartier résidentiel. Mellé est une ville où il fait bon vivre, entourée de multiples attractions et commodités. Vous pourrez profiter de la tranquillité de la campagne tout en étant à proximité des services essentiels, tels que commerces, écoles et loisirs. La région se distingue par ses paysages pittoresques et ses infrastructures de qualité, permettant à ses habitants de savourer une qualité de vie agréable et sereine. Ce terrain bénéficie ainsi d’un emplacement stratégique, parfait pour une vie familiale épanouie. Ce terrain représente une opportunité unique pour réaliser votre rêve de construction. N’hésitez pas à nous contacter pour plus d’informations et pour envisager cette acquisition prometteuse. À noter qu’en tant que constructeur, nous ne sommes pas mandatés pour réaliser la vente de ce terrain.
Melle
TERRAIN ET MAISONSur ce terrain, nous vous proposons cette maison neuve, la Provencière, conçue par Babeau-Seguin, constructeur offrant le meilleur rapport qualité/prix du marché. Inspirée par le charme de la Provence, cette maison de 134 m² allie élégance et fonctionnalité.La Provencière se distingue par son architecture typiquement provençale avec sa tour et son plan en L. Elle est disponible avec une toiture à 2 pans ou 4 pans, selon vos préférences. La maison comprend 4 chambres spacieuses et 4 pièces, offrant un espace de vie confortable et bien agencé.Les caractéristiques principales de cette maison incluent une dalle étage en béton, une avancée en tour et une galerie, ajoutant une touche de prestige et de charme à l’ensemble. Les options les plus demandées par nos clients, telles que l’enduit bi-ton et les menuiseries en aluminium, sont également disponibles pour personnaliser votre maison selon vos goûts.Cette maison neuve est basse consommation et conforme à la réglementation environnementale RE2020, garantissant une performance énergétique optimale et un respect de l’environnement.Prestigieuse et attachante, cette maison du sud vous fera sans doute craquer ! Idéale pour les terrains étroits, la Provencière conserve tous les avantages de la gamme, offrant un espace de vie harmonieux et fonctionnel.Ne manquez pas cette opportunité unique de devenir propriétaire d’une maison alliant tradition provençale et modernité, avec le meilleur rapport qualité/prix du marché. Contactez-nous dès aujourd’hui pour plus d’informations et pour planifier une visite.
Chenay
TERRAIN ET MAISONSur ce terrain, nous vous proposons cette maison neuve, la Provencière, conçue par Babeau-Seguin, constructeur offrant le meilleur rapport qualité/prix du marché. Inspirée par le charme de la Provence, cette maison de 134 m² allie élégance et fonctionnalité.La Provencière se distingue par son architecture typiquement provençale avec sa tour et son plan en L. Elle est disponible avec une toiture à 2 pans ou 4 pans, selon vos préférences. La maison comprend 4 chambres spacieuses et 4 pièces, offrant un espace de vie confortable et bien agencé.Les caractéristiques principales de cette maison incluent une dalle étage en béton, une avancée en tour et une galerie, ajoutant une touche de prestige et de charme à l’ensemble. Les options les plus demandées par nos clients, telles que l’enduit bi-ton et les menuiseries en aluminium, sont également disponibles pour personnaliser votre maison selon vos goûts.Cette maison neuve est basse consommation et conforme à la réglementation environnementale RE2020, garantissant une performance énergétique optimale et un respect de l’environnement.Prestigieuse et attachante, cette maison du sud vous fera sans doute craquer ! Idéale pour les terrains étroits, la Provencière conserve tous les avantages de la gamme, offrant un espace de vie harmonieux et fonctionnel.Ne manquez pas cette opportunité unique de devenir propriétaire d’une maison alliant tradition provençale et modernité, avec le meilleur rapport qualité/prix du marché. Contactez-nous dès aujourd’hui pour plus d’informations et pour planifier une visite.
Chenay
TERRAIN ET MAISONSur ce terrain, nous vous proposons cette maison neuve Aubetière Sud, un modèle traditionnel plain-pied qui fait partie du top 3 des modèles préférés de nos clients. Avec une surface de 88 m², cette maison est idéale pour les familles grâce à ses 3 chambres spacieuses et sa pièce de vie lumineuse.L’Aubetière Sud se distingue par son toit à faible pente et ses tuiles canal, offrant un charme authentique et une intégration parfaite sous le soleil. Vous avez le choix entre un toit à 2 pans ou à 4 pans, selon vos préférences esthétiques et pratiques.Cette maison est également personnalisable avec des options très demandées par nos clients, telles qu’une deuxième salle de bains, des menuiseries en aluminium, et un garage ou un sous-sol. Le porche accueillant ajoute une touche supplémentaire de convivialité à l’entrée de votre future maison.En choisissant l’Aubetière Sud, vous optez pour une maison neuve basse consommation, conforme à la réglementation environnementale RE2020, garantissant ainsi des performances énergétiques optimales et un confort de vie inégalé.Le constructeur Babeau-Seguin, reconnu pour offrir le meilleur rapport qualité/prix du marché, vous accompagne dans la réalisation de votre projet sur-mesure. Personnalisez le plan de votre Aubetière Sud pour qu’il réponde parfaitement à vos besoins et à vos envies.Ne manquez pas cette opportunité de construire la maison de vos rêves avec Babeau-Seguin, et profitez d’un cadre de vie agréable et économe en énergie. Contactez-nous dès maintenant pour plus d’informations et pour découvrir toutes les possibilités de personnalisation de l’Aubetière Sud.
Melle
TERRAIN ET MAISONSur ce terrain, nous vous proposons cette maison neuve Aubetière Sud, un modèle traditionnel plain-pied qui fait partie du top 3 des modèles préférés de nos clients. Avec une surface de 88 m², cette maison est idéale pour les familles grâce à ses 3 chambres spacieuses et sa pièce de vie lumineuse.L’Aubetière Sud se distingue par son toit à faible pente et ses tuiles canal, offrant un charme authentique et une intégration parfaite sous le soleil. Vous avez le choix entre un toit à 2 pans ou à 4 pans, selon vos préférences esthétiques et pratiques.Cette maison est également personnalisable avec des options très demandées par nos clients, telles qu’une deuxième salle de bains, des menuiseries en aluminium, et un garage ou un sous-sol. Le porche accueillant ajoute une touche supplémentaire de convivialité à l’entrée de votre future maison.En choisissant l’Aubetière Sud, vous optez pour une maison neuve basse consommation, conforme à la réglementation environnementale RE2020, garantissant ainsi des performances énergétiques optimales et un confort de vie inégalé.Le constructeur Babeau-Seguin, reconnu pour offrir le meilleur rapport qualité/prix du marché, vous accompagne dans la réalisation de votre projet sur-mesure. Personnalisez le plan de votre Aubetière Sud pour qu’il réponde parfaitement à vos besoins et à vos envies.Ne manquez pas cette opportunité de construire la maison de vos rêves avec Babeau-Seguin, et profitez d’un cadre de vie agréable et économe en énergie. Contactez-nous dès maintenant pour plus d’informations et pour découvrir toutes les possibilités de personnalisation de l’Aubetière Sud.
Chenay
TERRAINNous vous présentons un terrain d’exception situé dans le charmant lotissement de Chenay, une localité paisible et ensoleillée du département des Deux-Sèvres en Nouvelle-Aquitaine. Ce terrain de 1022 m², entièrement viabilisé, présente l’opportunité parfaite pour concrétiser votre projet de construction de maison. Sa situation au calme et son caractère attractif en font une parcelle convoitée que vous ne devez pas laisser passer. Chenay se distingue par son ambiance tranquille et conviviale, tout en offrant un accès facile aux commodités nécessaires à un cadre de vie agréable. La ville est entourée de paysages pittoresques et propose diverses attractions locales qui raviront les amoureux de la nature et des activités de pleine air. Avec ses services de proximité, ses commerces et son environnement convivial, Chenay représente un cadre idéal pour s’installer et profiter pleinement de la vie familiale. Ne manquez pas cette occasion unique d’acquérir un terrain au potentiel exceptionnel. Nous vous invitons à envisager cette propriété pour concrétiser vos rêves de construction. À noter qu’en tant que constructeur, nous ne sommes pas mandatés pour réaliser la vente de ce terrain.
Melle
TERRAINOffrez-vous la chance de concrétiser votre rêve de construire la maison idéale sur ce magnifique terrain viabilisé de 490 m², situé dans le charmant lotissement de Mellé. Profitez d’un environnement ensoleillé et au calme, propice à la détente et à la vie en famille. Ce terrain, idéal pour un projet de construction, saura séduire les futurs propriétaires désirant créer un havre de paix à la mesure de leurs aspirations. Mellé, niché dans le département des Deux-Sèvres, en Nouvelle-Aquitaine, est une ville qui allie tranquillité et accessibilité. À proximité, vous découvrirez une gamme d’attractions locales, des services essentiels et des espaces verts qui enrichissent le quotidien de ses habitants. Que ce soit pour profiter des plaisirs de la nature ou pour bénéficier des commodités modernes, Mellé se positionne comme un lieu de vie agréable et pratique, idéal pour votre future maison. Ne manquez pas cette opportunité unique d’acquérir un terrain au potentiel considérable. Imaginez votre avenir ici, au cœur de Mellé ! À noter qu’en tant que constructeur, nous ne sommes pas mandatés pour réaliser la vente de ce terrain.
Melle
TERRAIN ET MAISONSur ce terrain, nous vous proposons cette maison neuve Aubetière Sud, un modèle traditionnel plain-pied qui fait partie du top 3 des modèles préférés de nos clients. Avec une surface de 88 m², cette maison est idéale pour les familles grâce à ses 3 chambres spacieuses et sa pièce de vie lumineuse.L’Aubetière Sud se distingue par son toit à faible pente et ses tuiles canal, offrant un charme authentique et une intégration parfaite sous le soleil. Vous avez le choix entre un toit à 2 pans ou à 4 pans, selon vos préférences esthétiques et pratiques.Cette maison est également personnalisable avec des options très demandées par nos clients, telles qu’une deuxième salle de bains, des menuiseries en aluminium, et un garage ou un sous-sol. Le porche accueillant ajoute une touche supplémentaire de convivialité à l’entrée de votre future maison.En choisissant l’Aubetière Sud, vous optez pour une maison neuve basse consommation, conforme à la réglementation environnementale RE2020, garantissant ainsi des performances énergétiques optimales et un confort de vie inégalé.Le constructeur Babeau-Seguin, reconnu pour offrir le meilleur rapport qualité/prix du marché, vous accompagne dans la réalisation de votre projet sur-mesure. Personnalisez le plan de votre Aubetière Sud pour qu’il réponde parfaitement à vos besoins et à vos envies.Ne manquez pas cette opportunité de construire la maison de vos rêves avec Babeau-Seguin, et profitez d’un cadre de vie agréable et économe en énergie. Contactez-nous dès maintenant pour plus d’informations et pour découvrir toutes les possibilités de personnalisation de l’Aubetière Sud.
L’actualité immobilière à Sepvret
27/11/2023
02/11/2023
30/10/2023
20/10/2023
16/10/2023
16/10/2023