Images
Description
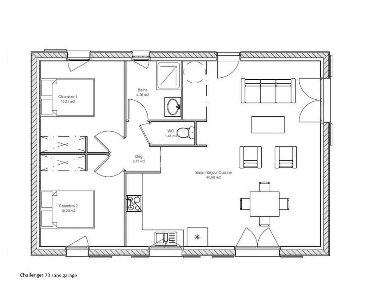
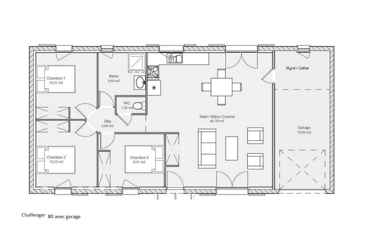
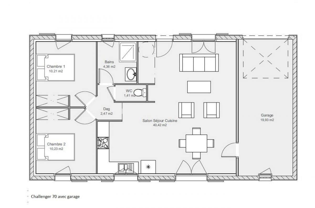
Sur ce terrain, nous vous proposons cette maison neuve : le modèle Challenger, spécialement conçu pour les primo-accédants ou les couples souhaitant bénéficier du meilleur rapport qualité/prix du marché. Avec une surface de 80 m², cette maison dispose de 3 chambres et de 4 pièces, offrant un intérieur confortable et séduisant. Un très pratique garage intégré est également inclus
Construite par Maisons Omega, détenteur du label Maisons de Qualité, cette demeure neuve est parfaite pour bien débuter dans la vie. La Challenger se distingue par ses formes simples et son intérieur accueillant. Vous y trouverez une cuisine ouverte sur un salon-séjour lumineux grâce à ses grandes portes-fenêtres, assurant une belle luminosité tout au long de la journée.
Cette maison neuve est également conforme à la RE2020, garantissant une basse consommation énergétique. Vous pourrez ainsi profiter d'un confort optimal tout en réalisant des économies sur vos factures d'énergie. De plus, son aspect extérieur moderne, avec des façades en enduit coloré et des volets roulants, ne manquera pas de vous séduire.
Les options les plus demandées par nos clients, telles que l'enduit coloré et les volets roulants, sont disponibles pour personnaliser votre maison selon vos envies et votre budget.
Vous êtes conquis par cette maison à petit prix et basse consommation ? Contactez-nous dès maintenant pour en savoir plus et discuter de votre projet avec nos experts.
Logement susceptibles de vous intéresser
Nous vous proposons de découvrir aussi cette sélection de logements situés à moins de 10km de Agonac et qui seraient susceptibles de vous intéresser.
Trélissac
TERRAIN ET MAISONMaison F5 (94 m²) en vente à Savignac-les-ÉglisesIDÉALEMENT SITUÉE – MAISON 5 PIÈCES NEUVEEn vente : située à 18 km de Périgueux, votre agence Maisons de la Côte Atlantique Notre Dame de Sanilhac est ravie de vous proposer cette maison de 5 pièces de plain-pied de 94 m² et de 1 200 m² de terrain, idéalement située dans Savignac-les-Églises (24420).Son intérieur dispose de trois chambres, d’une cuisine et d’une salle de bains. La maison est neuve.La maison se trouve dans un quartier convoité. Une école primaire y est implantée. Côté transports, il y a la gare Négrondes à moins de 10 minutes en voiture. On trouve un accès à l’autoroute A89 à 17 km. On trouve un tennis, une bibliothèque, deux commerces, une boulangerie, une épicerie, une boucherie-charcuterie et un bureau de poste à quelques minutes.Elle est proposée à l’achat pour 282 000 €.N’hésitez pas à prendre contact avec Arnaud LAFAYSSE (tél : (Numéro supprimé)) pour tout renseignement sur la propriété, sur les démarches à suivre ou sur les modalités de vente. Faites de vos projets immobiliers une réalité avec Maisons de la Côte Atlantique Notre Dame de Sanilhac.
Trélissac
TERRAIN ET MAISONVENTE d’une maison de 6 pièces (132 m²) à Savignac-les-ÉglisesIDÉALEMENT SITUÉE – MAISON 6 PIÈCES NEUVEEn vente : située à deux pas de Périgueux, ayez le coup de coeur pour cette maison de 6 pièces de 132 m² idéalement située dans Savignac-les-Églises (24420). Elle est composée de trois chambres, d’une cuisine et de deux salles de bains.Le terrain de la maison s’étend sur 1 200 m².C’est une maison de 2 niveaux. Elle est neuve.La maison se situe dans un quartier recherché. On y trouve une école primaire. Côté transports, on trouve la gare Négrondes à moins de 10 minutes en voiture. L’autoroute A89 est accessible à 17 km. Il y a un tennis, une bibliothèque, deux commerces, une boulangerie, une boucherie-charcuterie, un bureau de poste et une épicerie dans les environs.Elle est proposée à l’achat pour 355 000 €.Contactez notre agence (Arnaud LAFAYSSE : (Numéro supprimé)) pour toute question sur la maison et sur les modalités de vente. Faites de vos projets immobiliers une réalité avec Maisons de la Côte Atlantique Notre Dame de Sanilhac.
Trélissac
TERRAINJe vous propose de venir découvrir ce magnifique terrain à bâtir bordé par une zone classée naturelle, entièrement clos et arboré, situé dans un secteur recherché, calme et sans aucune nuisance sonore sur lequel est un implanté un garage d’une surface d’environ 25 m2 (Possibilité de garer un camping car) et un carport attenant d’une surface d’environ 20 m2. »Ce terrain quasiment plat et offrant une façade de plus de 36 m vous permettra de réaliser votre future maison deplain-pied. »Les réseaux sont en bordure de la parcelle.L’étude de sol de type G1 a été réalisée.Certificat d’urbanisme valide.L’assainissement à prévoir sera de type individuel.L’entrée sur ce terrain se fait par un portail électrique. »Ce terrain bénéficie de beaucoup de points forts »!! Les honoraires d’agence sont à la charge de l’acquéreur, soit 8,57% TTC du prix hors honoraires.Les informations sur les risques auxquels ce bien est exposé sont disponibles sur le site Géorisques : www. georisques. gouv. fr.Contactez Christophe PIGEARIAS Entrepreneur Individuel, Agent commercial OptimHome (RSAC N(Numéro supprimé) Greffe de PERIGUEUX) (Numéro supprimé) (réf. 595760 )
Champcevinel
TERRAIN ET MAISONVENTE d’une maison de 4 pièces (90 m²) à ChampcevinelIDÉALEMENT SITUÉE – MAISON 4 PIÈCES NEUVEÀ quelques kilomètres de Périgueux, notre agence Maisons de la Côte Atlantique Notre Dame de Sanilhac est ravie de vous proposer cette maison de 4 pièces de plain-pied de 90 m² et de 670 m² de terrain idéalement située dans Champcevinel (24750). Elle se divise en trois chambres, une cuisine et une salle de bains.La maison est neuve.Ce bien est situé dans un secteur convoité. On y trouve des établissements scolaires maternelles et élémentaires ainsi qu’une crèche. Niveau transports, il y a cinq gares à moins de 10 minutes en voiture. L’autoroute A89 est accessible à 9 km. On trouve un tennis, une bibliothèque, une boulangerie et un bureau de poste dans les environs.Il est à vendre pour la somme de 219 800 €.Contactez Arnaud LAFAYSSE (tél : (Numéro supprimé)) pour tout renseignement sur la maison. Maisons de la Côte Atlantique Notre Dame de Sanilhac est là pour vous accompagner dans toutes vos démarches.
Champcevinel
TERRAIN ET MAISONVENTE d’une maison de 6 pièces (100 m²) à ChampcevinelIDÉALEMENT SITUÉE – MAISON 6 PIÈCES NEUVEÀ vendre à deux pas de Périgueux, idéalement située dans Champcevinel (24750), ayez le coup de coeur pour cette maison de 6 pièces de plain-pied de 100 m². Conçue de plain-pied, elle se divise en trois chambres, une cuisine et deux salles de bains.Le terrain de la propriété est de 670 m².La maison est neuve.La maison est située dans un secteur attractif. Des établissements scolaires primaires y sont implantés et une crèche. Côté transports, il y a cinq gares à moins de 10 minutes en voiture. L’autoroute A89 est accessible à 9 km. On trouve un tennis, une bibliothèque, une boulangerie et un bureau de poste à quelques minutes.Son prix de vente est de 239 900 €.Prenez contact avec notre agence (Arnaud LAFAYSSE : (Numéro supprimé)) pour obtenir de plus amples renseignements sur la maison ou sur les modalités de vente.
Champcevinel
TERRAIN ET MAISONVENTE : maison de 7 pièces (84 m²) à ChampcevinelIDÉALEMENT SITUÉE – MAISON 7 PIÈCES NEUVEÀ 3 km de Périgueux, à vendre idéalement située dans Champcevinel (24750), nous vous présentons cette maison de 7 pièces de plain-pied de 84 m² et de 670 m² de terrain. Son intérieur propose trois chambres, une cuisine et deux salles de bains.Cette maison est neuve.La propriété est située dans un quartier attractif. Des établissements scolaires primaires y sont implantés et une structure d’accueil pour la petite enfance. Côté transports, on trouve cinq gares à moins de 10 minutes en voiture. L’autoroute A89 est accessible à 9 km. Il y a un tennis, une bibliothèque, une boulangerie et un bureau de poste à proximité.Son prix de vente est de 230 900 €.Contactez notre agence (LAFAYSSE Arnaud : (Numéro supprimé)) pour toute information sur la maison. Maisons de la Côte Atlantique Notre Dame de Sanilhac est là pour vous accompagner dans tous vos projets immobiliers.
Château-l'Évêque
TERRAINSitué à Château-l’Évêque (24460) en Périgord blanc, ce terrain de 891m² sélectionné parmi notre large gamme d’une bonne centaine de terrains disponibles à la vente actuellement offre un cadre privilégié au cœur d’une commune dynamique de Dordogne. Réputée pour son charme pittoresque et sa qualité de vie, cette localité bénéficie de tous les services essentiels à proximité, tels que des écoles, commerces et espaces de loisirs, garantissant un quotidien agréable à ses résidents. De plus, sa situation géographique stratégique permet un accès aisé aux axes routiers principaux, facilitant les déplacements et les connexions vers les villes avoisinantes et notamment Périgueux à 10mn.D’une surface de 891m², ce terrain entièrement constructible offre un potentiel de développement attractif pour différents projets immobiliers. Sa configuration constitue une toile vierge pour concrétiser une résidence sur mesure, laissant libre cours à l’imagination des futurs propriétaires pour créer l’environnement idéal qu’ils désirent. Idéalement proportionné, ce terrain représente une opportunité rare sur le marché local, offrant un investissement immobilier prometteur au sein d’un cadre pratique.Les informations sur les risques auxquels ce bien est exposé sont disponibles sur le site Géorisques : www.georisques.gouv.frPrix de vente : 30 000 €Honoraires charge vendeurContactez votre consultant megAgence : Pascal SAUVALLE, Tél. : (Numéro supprimé), E-mail : (Email supprimé) – EI – Agent commercial immatriculé au RSAC de PERIGUEUX sous le numéro 390 877 660
Agonac
TERRAINNous vous présentons un terrain exceptionnel à vendre, d’une superficie généreuse de 1071 m², idéalement situé à Agonac en Dordogne. Ce terrain plat et arboré, offre une qualité de vie indéniable, parfait pour la construction de votre future maison. Sa situation au calme vous garantit une atmosphère sereine tout en étant à proximité des commodités nécessaires au quotidien. Agonac, une charmante commune de Nouvelle-Aquitaine, est réputée pour sa tranquillité et son cadre de vie agréable. Avec des écoles à proximité, ce secteur est idéal pour les familles souhaitant s’établir dans un environnement propice à l’éducation et à l’épanouissement. De plus, les commerces et services locaux sont facilement accessibles, ce qui rend la vie quotidienne plus simple et agréable. Offrant un accès facile aux attractions de la Dordogne, ce lieu promet un potentiel de développement impressionnant dans un cadre verdoyant et accueillant. Ne manquez pas cette opportunité unique d’acquérir un terrain qui saura répondre à vos aspirations. À noter qu’en tant que constructeur, nous ne sommes pas mandatés pour réaliser la vente de ce terrain.
Agonac
TERRAIN ET MAISONSur ce terrain, nous vous proposons cette maison neuve : le modèle Challenger, spécialement conçu pour les primo-accédants ou les couples souhaitant bénéficier du meilleur rapport qualité/prix du marché. Avec une surface de 80 m², cette maison dispose de 3 chambres et de 4 pièces, offrant un intérieur confortable et séduisant. Un très pratique garage intégré est également inclusConstruite par Maisons Omega, détenteur du label Maisons de Qualité, cette demeure neuve est parfaite pour bien débuter dans la vie. La Challenger se distingue par ses formes simples et son intérieur accueillant. Vous y trouverez une cuisine ouverte sur un salon-séjour lumineux grâce à ses grandes portes-fenêtres, assurant une belle luminosité tout au long de la journée.Cette maison neuve est également conforme à la RE2020, garantissant une basse consommation énergétique. Vous pourrez ainsi profiter d’un confort optimal tout en réalisant des économies sur vos factures d’énergie. De plus, son aspect extérieur moderne, avec des façades en enduit coloré et des volets roulants, ne manquera pas de vous séduire.Les options les plus demandées par nos clients, telles que l’enduit coloré et les volets roulants, sont disponibles pour personnaliser votre maison selon vos envies et votre budget. Vous êtes conquis par cette maison à petit prix et basse consommation ? Contactez-nous dès maintenant pour en savoir plus et discuter de votre projet avec nos experts.
L’actualité immobilière à Agonac
27/11/2023
02/11/2023
30/10/2023
20/10/2023
16/10/2023
16/10/2023