Images
Description
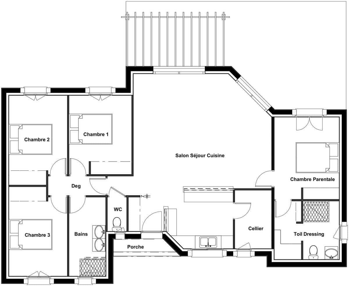
Sur ce terrain, nous vous proposons cette maison neuve : le modèle Cazaux, une maison traditionnelle de plain-pied conçue par Maisons Omega, détenteur du label Maisons de Qualité.
Un charme énorme pour ce plain-pied de 4 chambres avec suite parentale, comportant un bel espace de vie et un coin nuit enfants. Sa surface de 111 m² est largement suffisante pour accueillir toute votre famille dans de grands volumes intelligemment pensés. Les parents disposeront d’un espace isolé des chambres enfants, avec dressing et salle d’eau. Le salon-séjour central et traversant, avec cuisine américaine, est aussi spacieux que lumineux. Ce modèle dispose également d’un cellier.
Espace et originalité pour cette belle demeure sur un seul niveau. C’est un modèle doté d’une entrée protégée par un porche ainsi qu’une pergola, idéale pour profiter des beaux jours. Il est disponible avec un toit à 2 ou 4 pans et des volets roulants ou battants. En option, il est possible d’ajouter un carport, une des options les plus demandées par nos clients.
Cette maison neuve est basse consommation et conforme à la RE2020, garantissant ainsi des performances énergétiques optimales et un confort de vie inégalé.
Ne manquez pas cette opportunité unique de devenir propriétaire d'une maison moderne, économe en énergie et parfaitement adaptée à vos besoins. Contactez-nous dès aujourd'hui pour plus d'informations !
Logement susceptibles de vous intéresser
Nous vous proposons de découvrir aussi cette sélection de logements situés à moins de 10km de Bassillac et Auberoche et qui seraient susceptibles de vous intéresser.
Trélissac
TERRAIN ET MAISONSur ce terrain, nous vous proposons cette maison neuve : la Biganos, une maison actuelle pleine de charme.Le modèle Biganos est la maison neuve parfaite pour une famille qui souhaite vivre dans une habitation avec de grands volumes répartis de façon originale. Alliant praticité à élégance, cette demeure vous comblera.Une maison neuve à étage, chaleureuse et confortableLa Biganos est construite sur deux niveaux et vous offre une surface généreuse de 127 m². Elle dispose de trois jolies chambres et de quatre pièces, dont un spacieux séjour. Autant vous dire que votre famille sera à l’aise dans ce grand logis asymétrique. Sa particularité est en effet de réunir plusieurs corps différents autour du bâtiment principal, créant un effet visuel des plus charmants.Son extérieur est tout aussi séduisant, grâce à des formes irrégulières et un revêtement bi-tons sur des lignes épurées. Ses différentes toitures tuilées finissent de la rendre irrésistible. Notons que cette charmante demeure dispose d’un garage accolé et d’un cellier, ajoutant à sa praticité.Cette maison neuve est basse consommation et conforme à la RE2020, garantissant ainsi des performances énergétiques optimales. Les options les plus demandées par nos clients, telles que la toiture à 2 pans ou 4 pans, les systèmes de chauffage par aérothermie ou géothermie, ainsi que la domotique, sont disponibles pour personnaliser votre future maison selon vos envies.Le constructeur, Maisons Omega, détient le label Maisons de Qualité, vous assurant ainsi un niveau de finition et de service irréprochable.Vous êtes séduits ? Contactez-nous pour avoir des informations supplémentaires sur ce modèle !
Trélissac
TERRAINÀ Trélissac, dans un quartier résidentiel calme et recherché, je vous propose ce beau terrain constructible d’environ 4500 m². Plat, bien exposé et parfaitement situé, il offre un cadre de vie idéal pour ceux qui souhaitent profiter de la tranquillité tout en restant à deux pas de Périgueux. Trélissac est une commune très appréciée pour sa qualité de vie : commerces, écoles, maison de santé, transports, infrastructures sportives, proximité immédiate de la zone commerciale de Leclerc. Tout se fait facilement, tout est accessible rapidement. Ce terrain vous permettra d’imaginer un projet harmonieux, adapté à vos envies. Comme toujours, je peux vous proposer gratuitement une étude complète maison + terrain : visuels, budget détaillé, implantation optimisée en fonction de la configuration de la parcelle et de votre mode de vie.
Bassillac et Auberoche
TERRAIN ET MAISONSur ce terrain, nous vous proposons cette maison neuve : le modèle Cazaux, une maison traditionnelle de plain-pied conçue par Maisons Omega, détenteur du label Maisons de Qualité.Un charme énorme pour ce plain-pied de 4 chambres avec suite parentale, comportant un bel espace de vie et un coin nuit enfants. Sa surface de 111 m² est largement suffisante pour accueillir toute votre famille dans de grands volumes intelligemment pensés. Les parents disposeront d’un espace isolé des chambres enfants, avec dressing et salle d’eau. Le salon-séjour central et traversant, avec cuisine américaine, est aussi spacieux que lumineux. Ce modèle dispose également d’un cellier.Espace et originalité pour cette belle demeure sur un seul niveau. C’est un modèle doté d’une entrée protégée par un porche ainsi qu’une pergola, idéale pour profiter des beaux jours. Il est disponible avec un toit à 2 ou 4 pans et des volets roulants ou battants. En option, il est possible d’ajouter un carport, une des options les plus demandées par nos clients.Cette maison neuve est basse consommation et conforme à la RE2020, garantissant ainsi des performances énergétiques optimales et un confort de vie inégalé. Ne manquez pas cette opportunité unique de devenir propriétaire d’une maison moderne, économe en énergie et parfaitement adaptée à vos besoins. Contactez-nous dès aujourd’hui pour plus d’informations !
Bassillac et Auberoche
TERRAINNous vous présentons un terrain de 926 m², idéalement situé dans le charmant secteur de Bassillac, dans le département de la Dordogne en Nouvelle-Aquitaine. Ce terrain viabilisé et raccordé au tout à l’égout, offre une occasion unique de concrétiser votre projet de construction de maison dans une région réputée pour sa qualité de vie exceptionnelle. Avec un ensoleillement optimal, ce terrain au calme et sans vis-à-vis est un véritable havre de paix, situé dans un quartier recherché, offrant ainsi un cadre de vie idéal pour votre future résidence. Bassillac se distingue par son accessibilité et ses attraits locaux, situés à proximité immédiate. Vous bénéficierez de commerces et de commodités à portée de main, ainsi que d’écoles satisfaisant les besoins éducatifs des familles. Cette ville dynamique est également connue pour ses magnifiques paysages naturels et son riche patrimoine culturel, tout en étant à quelques encablures des plus grandes attractions de la Dordogne. Ne manquez pas cette occasion de vous implanter dans un environnement stimulant et agréable. Ce terrain constitue une opportunité d’achat rare, à saisir sans tarder pour réaliser votre rêve immobilier. À noter qu’en tant que constructeur, nous ne sommes pas mandatés pour réaliser la vente de ce terrain.
Bassillac et Auberoche
TERRAIN ET MAISONSur ce terrain, nous vous proposons cette maison neuve : le modèle Agonac, pour ceux qui aiment vivre confortablement. Vous avez décidé de réaliser le projet de votre vie : construire votre maison neuve. Et vous souhaitez une belle maison confortable, où chacun se sentira bien. Le modèle Agonac est conçu pour répondre à toutes vos attentes. C’est une habitation belle et pratique.Agonac, une agréable maison de plain-piedC’est une maison très fonctionnelle. Avec ses 81 m², elle est parfaite pour accueillir une petite famille. Dotée de 3 chambres et de 4 pièces, elle offre un espace de vie optimisé et convivial. La chambre parentale est séparée du coin nuit « »enfant » », et dispose d’une salle d’eau privative ainsi que d’un accès direct à la terrasse, pour un confort optimal. Côté jour, le modèle Agonac propose un beau volume avec une cuisine ouverte sur le séjour, idéale pour les moments en famille ou entre amis.Sa forme en T lui donne une allure sympathique et permet de rendre plus indépendants la chambre des parents et le garage intégré. Le porche ajoute une touche d’élégance et de praticité à l’entrée de la maison.Les options les plus demandées par nos clients, telles que la modénature d’enduit et les menuiseries en aluminium, sont disponibles pour personnaliser votre maison selon vos goûts.Cette maison neuve est basse consommation et conforme à la RE2020, garantissant ainsi des performances énergétiques optimales et un respect de l’environnement.Le constructeur, Maisons Omega, détient le label Maisons de Qualité, vous assurant un niveau de prestation et de service irréprochable.Vous souhaitez en savoir plus ? Contactez-nous et nous vous donnerons tous les détails !
Bassillac et Auberoche
TERRAINDécouvrez ce magnifique terrain à vendre d’une superficie de 1505 m², situé dans la charmante commune de Bassillac, dans le département de la Dordogne. Ce terrain, idéal pour un projet de construction de maison, se distingue par son cadre paisible, son ensoleillement et sa vue dégagée sans vis-à-vis. Arboré et placé au cœur d’un environnement champêtre, il offre un cadre de vie exceptionnel propice à l’épanouissement familial ainsi qu’à la détente. La ville de Bassillac est non seulement reconnue pour sa qualité de vie, mais également pour ses nombreuses commodités. Écoles à proximité, accès facile aux autoroutes et services de proximité contribuent à l’attrait de cette localité dynamique de la Nouvelle-Aquitaine. Vous pourrez également profiter des plaisirs de la nature environnante, et découvrir les richesses culturelles et historiques de la Dordogne. Le potentiel de ce terrain est immense et il représente une opportunité à ne pas manquer. Ne laissez pas passer cette chance unique d’acquérir un terrain à fort potentiel dans un environnement privilégié. À noter qu’en tant que constructeur, nous ne sommes pas mandatés pour réaliser la vente de ce terrain.
Bassillac et Auberoche
TERRAIN ET MAISONSur ce terrain, nous vous proposons cette maison neuve : le modèle Challenger, conçu par Maisons Omega, détenteur du label Maisons de Qualité. Cette maison de 90 m² est idéale pour les primo-accédants ou les couples à la recherche du meilleur rapport qualité/prix du marché. Avec ses formes simples et son intérieur confortable, elle séduit immédiatement.La maison Challenger offre une surface généreuse de 90 m², comprenant 4 chambres et 4 pièces. Vous y trouverez un vaste séjour avec une cuisine ouverte, parfait pour des moments conviviaux en famille ou entre amis. Les grandes portes-fenêtres assurent une luminosité optimale tout au long de la journée. Un très pratique garage intégré est également inclus.Construite selon les normes de la RE2020, cette maison est basse consommation, ce qui vous garantit des économies d’énergie significatives et un confort de vie optimal. Son aspect extérieur moderne, avec des façades en enduit coloré et des menuiseries assorties, ne manquera pas de vous charmer.Les options les plus demandées par nos clients, telles que l’enduit coloré et les volets roulants, sont disponibles pour personnaliser votre maison selon vos goûts et vos besoins.Vous êtes conquis par cette maison neuve à petit prix et basse consommation ? Contactez-nous dès maintenant pour en savoir plus et discuter de votre projet avec nos experts.
Bassillac et Auberoche
TERRAINDécouvrez ce magnifique terrain à vendre, d’une superficie de 1193 m², idéalement situé à Bassillac, dans le département de la Dordogne en Nouvelle-Aquitaine. Ce terrain vous offre une opportunité en or de réaliser votre projet de construction de maison dans un cadre champêtre et paisible. Bénéficiez d’une vue dégagée et d’un ensoleillement optimal, sans vis à vis, pour créer votre havre de paix. Un environnement arboré et calme assure une qualité de vie exceptionnelle, faisant de cet emplacement le choix parfait pour votre future résidence. Située à proximité des commodités, la ville de Bassillac est réputée pour ses écoles de qualité et son cadre de vie agréable. Vous pourrez profiter des attraits locaux tout en étant immergé dans un environnement naturel harmonieux. La région offre également un accès facile aux activités de plein air et aux magnifiques paysages de la Dordogne, vous permettant de savourer les plaisirs de la nature. Le secteur est idéalement desservi, garantissant une expérience de vie sereine et conviviale. Ne laissez pas passer cette opportunité unique d’acquérir un terrain à fort potentiel dans une commune prisée. Imaginez les possibilités et commencez votre projet de vie dès aujourd’hui. À noter qu’en tant que constructeur, nous ne sommes pas mandatés pour réaliser la vente de ce terrain.
Sarliac-sur-l'Isle
TERRAIN ET MAISONSarliac-sur-l’Isle : maison de 4 pièces (90 m²) à vendrePROCHE CENTRE-VILLE – MAISON 4 PIÈCES NEUVEÀ 13 km de Périgueux, notre agence Maisons de la Côte Atlantique Notre Dame de Sanilhac est heureuse de vous proposer cette maison de 4 pièces de plain-pied de 90 m² et de 900 m² de terrain proche du centre-ville de Sarliac-sur-l’Isle (24420).Conçue de plain-pied, elle se divise en trois chambres, une cuisine et une salle de bains. La maison est neuve.On trouve une école primaire dans le quartier. Il y a un accès à l’autoroute A89 à 12 km. Il y a un tennis, une bibliothèque, une boulangerie, une épicerie et deux boucheries-charcuteries à quelques minutes.Elle est à vendre pour la somme de 209 000 €.N’hésitez pas à prendre contact avec Arnaud LAFAYSSE ((Numéro supprimé)) pour tout renseignement sur la maison, sur les modalités de vente ou sur les démarches à suivre.
L’actualité immobilière à Bassillac et Auberoche
27/11/2023
02/11/2023
30/10/2023
20/10/2023
16/10/2023
16/10/2023