Images
Description
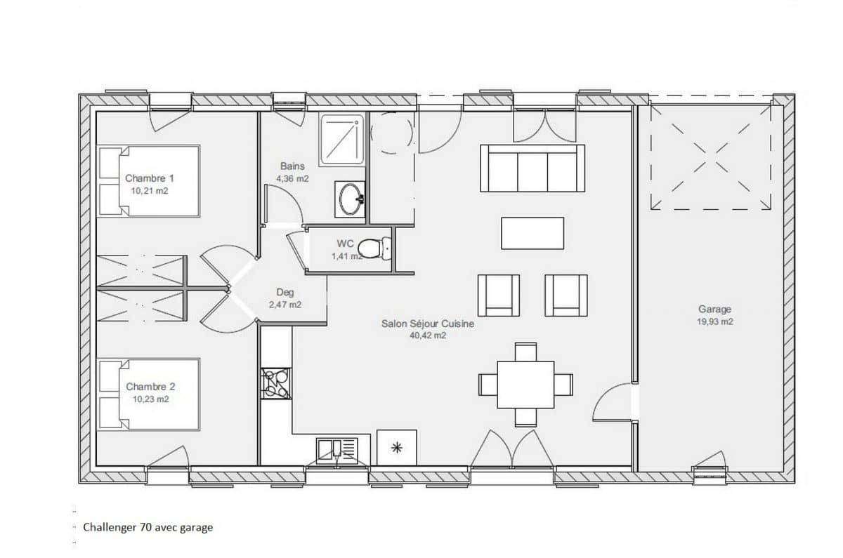
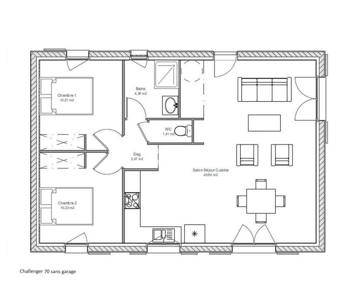
Sur ce terrain, nous vous proposons cette maison neuve : le modèle Challenger, spécialement conçu pour les primo-accédants ou les couples souhaitant bénéficier du meilleur rapport qualité/prix du marché. Avec une surface de 80 m², cette maison dispose de 3 chambres et de 4 pièces, offrant un intérieur confortable et séduisant.
Construite par Maisons Omega, détenteur du label Maisons de Qualité, cette demeure neuve est parfaite pour bien débuter dans la vie. La Challenger se distingue par ses formes simples et son intérieur accueillant. Vous y trouverez une cuisine ouverte sur un salon-séjour lumineux grâce à ses grandes portes-fenêtres, assurant une belle luminosité tout au long de la journée.
Cette maison neuve est également conforme à la RE2020, garantissant une basse consommation énergétique. Vous pourrez ainsi profiter d'un confort optimal tout en réalisant des économies sur vos factures d'énergie. De plus, son aspect extérieur moderne, avec des façades en enduit coloré et des volets roulants, ne manquera pas de vous séduire.
Les options les plus demandées par nos clients, telles que l'enduit coloré et les volets roulants, sont disponibles pour personnaliser votre maison selon vos envies et votre budget.
Vous êtes conquis par cette maison à petit prix et basse consommation ? Contactez-nous dès maintenant pour en savoir plus et discuter de votre projet avec nos experts.
Logement susceptibles de vous intéresser
Nous vous proposons de découvrir aussi cette sélection de logements situés à moins de 10km de Chancelade et qui seraient susceptibles de vous intéresser.
Chancelade
TERRAINÀ Chancelade, dans un quartier résidentiel calme et recherché, je vous propose ce beau terrain constructible d’environ 1800 m² au prix attractif de 80 000 €. Plat, bien exposé et parfaitement situé, il offre un cadre de vie idéal pour ceux qui souhaitent profiter de la tranquillité tout en restant à deux pas de Périgueux. Chancelade est une commune très appréciée pour sa qualité de vie : commerces, écoles, maison de santé, transports, infrastructures sportives, proximité immédiate de la zone commerciale de Marsac et d’Auchan… Tout se fait facilement, tout est accessible rapidement. C’est l’endroit parfait pour un premier achat, un jeune couple, une famille ou encore un projet de plain-pied pour une retraite sereine. Ce terrain vous permettra d’imaginer un projet harmonieux, adapté à vos envies. Comme toujours, je peux vous proposer gratuitement une étude complète maison + terrain : visuels, budget détaillé, implantation optimisée en fonction de la configuration de la parcelle et de votre mode de vie.
Trélissac
TERRAIN ET MAISONSur ce terrain, nous vous proposons cette maison neuve : la Biganos, une maison actuelle pleine de charme.Le modèle Biganos est la maison neuve parfaite pour une famille qui souhaite vivre dans une habitation avec de grands volumes répartis de façon originale. Alliant praticité à élégance, cette demeure vous comblera.Une maison neuve à étage, chaleureuse et confortableLa Biganos est construite sur deux niveaux et vous offre une surface généreuse de 127 m². Elle dispose de trois jolies chambres et de quatre pièces, dont un spacieux séjour. Autant vous dire que votre famille sera à l’aise dans ce grand logis asymétrique. Sa particularité est en effet de réunir plusieurs corps différents autour du bâtiment principal, créant un effet visuel des plus charmants.Son extérieur est tout aussi séduisant, grâce à des formes irrégulières et un revêtement bi-tons sur des lignes épurées. Ses différentes toitures tuilées finissent de la rendre irrésistible. Notons que cette charmante demeure dispose d’un garage accolé et d’un cellier, ajoutant à sa praticité.Cette maison neuve est basse consommation et conforme à la RE2020, garantissant ainsi des performances énergétiques optimales. Les options les plus demandées par nos clients, telles que la toiture à 2 pans ou 4 pans, les systèmes de chauffage par aérothermie ou géothermie, ainsi que la domotique, sont disponibles pour personnaliser votre future maison selon vos envies.Le constructeur, Maisons Omega, détient le label Maisons de Qualité, vous assurant ainsi un niveau de finition et de service irréprochable.Vous êtes séduits ? Contactez-nous pour avoir des informations supplémentaires sur ce modèle !
Chancelade
TERRAINÀ Chancelade, dans un quartier résidentiel calme et recherché, je vous propose ce beau terrain constructible d’environ 2500 m² au prix attractif de 50 000 €. Plat, bien exposé et parfaitement situé, il offre un cadre de vie idéal pour ceux qui souhaitent profiter de la tranquillité tout en restant à deux pas de Périgueux. Chancelade est une commune très appréciée pour sa qualité de vie : commerces, écoles, maison de santé, transports, infrastructures sportives, proximité immédiate de la zone commerciale de Marsac et d’Auchan… Tout se fait facilement, tout est accessible rapidement. C’est l’endroit parfait pour un premier achat, un jeune couple, une famille ou encore un projet de plain-pied pour une retraite sereine. Ce terrain vous permettra d’imaginer un projet harmonieux, adapté à vos envies. Comme toujours, je peux vous proposer gratuitement une étude complète maison + terrain : visuels, budget détaillé, implantation optimisée en fonction de la configuration de la parcelle et de votre mode de vie.
Chancelade
TERRAIN ET MAISONSur ce terrain, nous vous proposons cette maison neuve : le modèle traditionnel Lanquais, une maison qui va vous plaire.Le modèle Lanquais est une demeure de plain-pied tout en longueur, avec un joli toit à deux pans et des volets traditionnels. C’est une maison parfaite pour accueillir une petite famille confortablement.Cette habitation vous propose une surface habitable de 87 m² sur un niveau. Vous y disposerez de trois jolies chambres réunies autour d’un dégagement, avec la salle de bains et des w.c. séparés. Du côté de l’espace jour, un grand séjour-cuisine ouverte vous permettra de vous sentir totalement à l’aise.Cette maison vous séduira par son côté fonctionnel, mais également par sa belle terrasse couverte par un porche. Autre détail sympathique et surtout pratique, la porte d’entrée protégée par une avancée de toit.Maisons Omega, constructeur reconnu et détenteur du label Maisons de Qualité, vous propose cette maison neuve basse consommation, conforme à la RE2020. Profitez des options les plus demandées par nos clients : volets roulants et baies vitrées, pour un confort optimal et une luminosité exceptionnelle.Si c’est le modèle dont vous rêvez, contactez-nous pour avoir plus de détails sur cette habitation et en poser la première pierre au plus vite.
Trélissac
TERRAINÀ Trélissac, dans un quartier résidentiel calme et recherché, je vous propose ce beau terrain constructible d’environ 4500 m². Plat, bien exposé et parfaitement situé, il offre un cadre de vie idéal pour ceux qui souhaitent profiter de la tranquillité tout en restant à deux pas de Périgueux. Trélissac est une commune très appréciée pour sa qualité de vie : commerces, écoles, maison de santé, transports, infrastructures sportives, proximité immédiate de la zone commerciale de Leclerc. Tout se fait facilement, tout est accessible rapidement. Ce terrain vous permettra d’imaginer un projet harmonieux, adapté à vos envies. Comme toujours, je peux vous proposer gratuitement une étude complète maison + terrain : visuels, budget détaillé, implantation optimisée en fonction de la configuration de la parcelle et de votre mode de vie.
Chancelade
TERRAIN ET MAISONSur ce terrain, nous vous proposons cette maison neuve, modèle Langon, construite par Maisons Omega, détenteur du label Maisons de Qualité. Superbe maison à étages de caractère, le modèle Langon est un modèle familial par excellence, qui s’adaptera facilement à votre mode de vie. Avec une surface de 117 m², cette demeure offre 4 pièces, dont 3 chambres, et se distingue par ses lignes géométriques et son design pratique.La Langon est une demeure carrée imposante, aux façades bi-tons avec modénatures. Son garage accolé avec toiture séparée donne juste ce qu’il faut d’asymétrie. À l’intérieur, on est agréablement surpris ! Un rez-de-chaussée presque entièrement dédié à la grande pièce à vivre avec cuisine ouverte nous accueille. Ses larges ouvertures font entrer généreusement la lumière. Ce niveau comprend également un cellier et des w.c.L’étage, quant à lui, est totalement alloué à l’espace privé, chambres et sanitaires. Deux chambres, une salle de bains avec w.c. séparés d’une part et une belle suite parentale assortie d’un dressing et d’une salle d’eau privative d’autre part. C’est le confort parfait !Cette maison neuve est basse consommation et conforme à la RE2020, garantissant une performance énergétique optimale. De plus, les options les plus demandées par les clients, telles que les menuiseries en aluminium, sont disponibles pour ce modèle.N’attendez plus pour découvrir cette maison familiale et écoresponsable qui saura répondre à toutes vos attentes.
Chancelade
TERRAINÀ Chancelade, dans un quartier résidentiel calme et recherché, je vous propose ce beau terrain constructible d’environ 1 000 m² au prix attractif de 37 000 €. Plat, bien exposé et parfaitement situé, il offre un cadre de vie idéal pour ceux qui souhaitent profiter de la tranquillité tout en restant à deux pas de Périgueux. Chancelade est une commune très appréciée pour sa qualité de vie : commerces, écoles, maison de santé, transports, infrastructures sportives, proximité immédiate de la zone commerciale de Marsac et d’Auchan… Tout se fait facilement, tout est accessible rapidement. C’est l’endroit parfait pour un premier achat, un jeune couple, une famille ou encore un projet de plain-pied pour une retraite sereine. Ce terrain vous permettra d’imaginer un projet harmonieux, adapté à vos envies. Comme toujours, je peux vous proposer gratuitement une étude complète maison + terrain : visuels, budget détaillé, implantation optimisée en fonction de la configuration de la parcelle et de votre mode de vie.
Razac-sur-l'Isle
TERRAINA seulement 20 euros le m², découvrez ce superbe terrain constructible de 2 006 m² ? une opportunité exceptionnelle pour lancer votre projet de construction dès le printemps? ou même avant !Idéalement situé à deux pas du bourg, ce terrain offre un cadre pratique, agréable et parfaitement adapté à la réalisation d’une grande maison familiale, d’un projet avec dépendances ou d’un aménagement paysager de qualité.Légèrement pentu et orienté ouest, bien proportionné et bénéficiant d’une belle exposition, il constitue un environnement privilégié pour bâtir sereinement.Les atouts du terrain :Très grande superficie de 2 006 m², laissant place à de multiples aménagementsEnvironnement paisible, au coeur d’une nature préservéeA 8 minutes de l’autoroute et 10 minutes de Périgueux, un emplacement stratégiqueProche des commerces, écoles, boulangerie et servicesGare accessible, idéale pour vos déplacementsRaccordable au tout-à-l’égout, un confort moderne appréciableRéseaux proches, facilitant la viabilisationBien rare sur le secteur, difficile à trouver dans cette partie prisée de la vallée de l’Isle« Sur une superficie de 2 006 m², ce terrain offre la possibilité d’envisager un projet d’environ 200 à 280 m² de surface de construction (maison + annexes), sous réserve de validation par les services d’urbanisme.L’étude géotechnique G1 déjà réalisée confirme la constructibilité du terrain, permettant d’aborder votre projet sereinement.Son accès par une impasse, la présence immédiate des réseaux et l’absence d’obstacle particulier à la construction en font une parcelle idéale pour concevoir une habitation confortable et bien intégrée. »Pour tout renseignement ou pour organiser une visite, contactez-moi dès maintenant.Pour visiter et vous accompagner dans votre projet, contactez Eric CLAMENS, au (Numéro supprimé) ou, par courriel à (Email supprimé). Selon l’article L.561.5 du Code Monétaire et Financier, pour l’organisation de la visite, la présentation d’une pièce d’identité vous sera demandée. Cette annonce a été réalisée sous la responsabilité éditoriale de Eric CLAMENS agissant en qualité de conseiller immobilier indépendant sous portage salarial auprès de SAS PROPRIETES PRIVEES, au capital de 44 920 euros, ZAC LE CHÊNE FERRÉ – 44 ALLÉE DES CINQ CONTINENTS 44120 VERTOU; SIRET 487 624 777 00040, RCS Nantes. Carte Professionnelle Transactions sur immeubles et fonds de commerce (T) et Gestion immobilière (G) n°CPI 4401 2016 000 010 388 délivrée par la CCI Nantes – Saint Nazaire. Compte séquestre n(Numéro supprimé)67 BPA SAINT-SEBASTIEN-SUR-LOIRE (44230). Garantie GALIAN-SMABTP – 89 rue de la Boétie, 75008 Paris – n°28137 J pour 2 000 000 euros pour T et 120 000 euros pour G. Assurance responsabilité civile professionnelle par GALIAN-SMABTP n° de police 28137.J Mandat réf : 431654. – Le professionnel garantit et sécurise votre projet immobilier.Prix de vente : 44 000 Euros HAI (honoraires inclus de 4 000Euros TTC à charge de l’acquéreur soit 10 % soit 40 000 Euros hors honoraires). (10.00 % honoraires TTC à la charge de l’acquéreur.)Les informations sur les risques auxquels ce bien est exposé sont disponibles sur le site Géorisques : www. georisques. gouv. fr
Chancelade
TERRAIN ET MAISONSur ce terrain, nous vous proposons cette maison neuve : le modèle Challenger, spécialement conçu pour les primo-accédants ou les couples souhaitant bénéficier du meilleur rapport qualité/prix du marché. Avec une surface de 80 m², cette maison dispose de 3 chambres et de 4 pièces, offrant un intérieur confortable et séduisant.Construite par Maisons Omega, détenteur du label Maisons de Qualité, cette demeure neuve est parfaite pour bien débuter dans la vie. La Challenger se distingue par ses formes simples et son intérieur accueillant. Vous y trouverez une cuisine ouverte sur un salon-séjour lumineux grâce à ses grandes portes-fenêtres, assurant une belle luminosité tout au long de la journée.Cette maison neuve est également conforme à la RE2020, garantissant une basse consommation énergétique. Vous pourrez ainsi profiter d’un confort optimal tout en réalisant des économies sur vos factures d’énergie. De plus, son aspect extérieur moderne, avec des façades en enduit coloré et des volets roulants, ne manquera pas de vous séduire.Les options les plus demandées par nos clients, telles que l’enduit coloré et les volets roulants, sont disponibles pour personnaliser votre maison selon vos envies et votre budget. Vous êtes conquis par cette maison à petit prix et basse consommation ? Contactez-nous dès maintenant pour en savoir plus et discuter de votre projet avec nos experts.
L’actualité immobilière à Chancelade
27/11/2023
02/11/2023
30/10/2023
20/10/2023
16/10/2023
16/10/2023