Images
Description
Sur ce terrain, nous vous proposons cette maison neuve : la Biganos, une maison actuelle pleine de charme.
Le modèle Biganos est la maison neuve parfaite pour une famille qui souhaite vivre dans une habitation avec de grands volumes répartis de façon originale. Alliant praticité à élégance, cette demeure vous comblera.
Une maison neuve à étage, chaleureuse et confortable
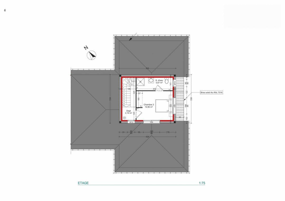
La Biganos est construite sur deux niveaux et vous offre une surface généreuse de 127 m². Elle dispose de trois jolies chambres et de quatre pièces, dont un spacieux séjour. Autant vous dire que votre famille sera à l’aise dans ce grand logis asymétrique. Sa particularité est en effet de réunir plusieurs corps différents autour du bâtiment principal, créant un effet visuel des plus charmants.
Son extérieur est tout aussi séduisant, grâce à des formes irrégulières et un revêtement bi-tons sur des lignes épurées. Ses différentes toitures tuilées finissent de la rendre irrésistible. Notons que cette charmante demeure dispose d’un garage accolé et d’un cellier, ajoutant à sa praticité.
Cette maison neuve est basse consommation et conforme à la RE2020, garantissant ainsi des performances énergétiques optimales. Les options les plus demandées par nos clients, telles que la toiture à 2 pans ou 4 pans, les systèmes de chauffage par aérothermie ou géothermie, ainsi que la domotique, sont disponibles pour personnaliser votre future maison selon vos envies.
Le constructeur, Maisons Omega, détient le label Maisons de Qualité, vous assurant ainsi un niveau de finition et de service irréprochable.
Vous êtes séduits ? Contactez-nous pour avoir des informations supplémentaires sur ce modèle !
Logement susceptibles de vous intéresser
Nous vous proposons de découvrir aussi cette sélection de logements situés à moins de 10km de Coulounieix-Chamiers et qui seraient susceptibles de vous intéresser.
Trélissac
TERRAIN ET MAISONMaison F5 (94 m²) en vente à Savignac-les-ÉglisesIDÉALEMENT SITUÉE – MAISON 5 PIÈCES NEUVEEn vente : située à 18 km de Périgueux, votre agence Maisons de la Côte Atlantique Notre Dame de Sanilhac est ravie de vous proposer cette maison de 5 pièces de plain-pied de 94 m² et de 1 200 m² de terrain, idéalement située dans Savignac-les-Églises (24420).Son intérieur dispose de trois chambres, d’une cuisine et d’une salle de bains. La maison est neuve.La maison se trouve dans un quartier convoité. Une école primaire y est implantée. Côté transports, il y a la gare Négrondes à moins de 10 minutes en voiture. On trouve un accès à l’autoroute A89 à 17 km. On trouve un tennis, une bibliothèque, deux commerces, une boulangerie, une épicerie, une boucherie-charcuterie et un bureau de poste à quelques minutes.Elle est proposée à l’achat pour 282 000 €.N’hésitez pas à prendre contact avec Arnaud LAFAYSSE (tél : (Numéro supprimé)) pour tout renseignement sur la propriété, sur les démarches à suivre ou sur les modalités de vente. Faites de vos projets immobiliers une réalité avec Maisons de la Côte Atlantique Notre Dame de Sanilhac.
Trélissac
TERRAIN ET MAISONVENTE d’une maison de 6 pièces (132 m²) à Savignac-les-ÉglisesIDÉALEMENT SITUÉE – MAISON 6 PIÈCES NEUVEEn vente : située à deux pas de Périgueux, ayez le coup de coeur pour cette maison de 6 pièces de 132 m² idéalement située dans Savignac-les-Églises (24420). Elle est composée de trois chambres, d’une cuisine et de deux salles de bains.Le terrain de la maison s’étend sur 1 200 m².C’est une maison de 2 niveaux. Elle est neuve.La maison se situe dans un quartier recherché. On y trouve une école primaire. Côté transports, on trouve la gare Négrondes à moins de 10 minutes en voiture. L’autoroute A89 est accessible à 17 km. Il y a un tennis, une bibliothèque, deux commerces, une boulangerie, une boucherie-charcuterie, un bureau de poste et une épicerie dans les environs.Elle est proposée à l’achat pour 355 000 €.Contactez notre agence (Arnaud LAFAYSSE : (Numéro supprimé)) pour toute question sur la maison et sur les modalités de vente. Faites de vos projets immobiliers une réalité avec Maisons de la Côte Atlantique Notre Dame de Sanilhac.
Marsac-sur-l'Isle
TERRAINMarsac-sur-l’Isle : terrain de 836 m² à vendreIDÉALEMENT SITUÉ – PROCHE DE PÉRIGUEUXÀ Marsac-sur-l’Isle (24430) à vendre à quelques kilomètres de Périgueux, donnez vie à votre résidence principale ou secondaire sur ce terrain de 836 m². Ce terrain, exposé sud, donne sur un jardin. Dans un quartier recherché, le terrain idéalement situé est proche des écoles et des commerces. Il y a une école maternelle dans le quartier. Niveau transports, on trouve la gare La Cave à moins de 10 minutes à pied. Il y a un accès à l’autoroute A89 à 7 km. Il y a deux commerces à quelques minutes du bien.Ce terrain est à vendre pour la somme de 44 500 €. N’hésitez pas à prendre contact avec notre agence (VERGNAUD Bruno : (Numéro supprimé)) pour plus de renseignements sur le terrain.
Marsac-sur-l'Isle
TERRAIN ET MAISONMaison T4 (80 m²) en vente à Marsac-sur-l’IsleIDÉALEMENT SITUÉE – MAISON 4 PIÈCES NEUVEÀ vendre : à 5 km de Périgueux, Maisons de la Côte Atlantique Notre Dame de Sanilhac vous propose, idéalement située dans Marsac-sur-l’Isle (24430), cette maison de 4 pièces de plain-pied de 80 m² et de 836 m² de terrain. Elle est composée de trois chambres, d’une cuisine et d’une salle de bains.Cette maison est neuve.Cette maison se trouve dans un secteur convoité. Une école maternelle y est implantée. Côté transports en commun, il y a la gare La Cave à moins de 10 minutes à pied. Il y a un accès à l’autoroute A89 à 7 km. On trouve deux commerces à proximité.Elle est proposée à l’achat pour 178 758 €.Prenez contact avec Bruno VERGNAUD ((Numéro supprimé)) pour toute question sur la maison, sur les modalités de vente ou sur les démarches à suivre.
Marsac-sur-l'Isle
TERRAIN ET MAISONVENTE : maison de 4 pièces (100 m²) à Marsac-sur-l’IsleIDÉALEMENT SITUÉE – MAISON 4 PIÈCES NEUVEEn vente à quelques kilomètres de Périgueux, idéalement située dans Marsac-sur-l’Isle (24430), laissez vous charmer par cette maison de 4 pièces de plain-pied de 100 m².Elle est composée de trois chambres, d’une cuisine et de deux salles de bains. Cette maison est neuve.Le terrain du bien est de 836 m².La maison est située dans un quartier attractif. Une école maternelle y est implantée. Niveau transports, on trouve la gare La Cave à moins de 10 minutes à pied. Il y a un accès à l’autoroute A89 à 7 km. Il y a deux commerces à quelques minutes à peine.Elle est à vendre pour la somme de 199 656 €.N’hésitez pas à prendre contact avec notre agence (Bruno VERGNAUD : (Numéro supprimé)) pour tout renseignement sur la maison, sur les modalités de vente ou sur les démarches à suivre. Maisons de la Côte Atlantique Notre Dame de Sanilhac vous accompagne à toutes les étapes de l’achat et dans tous vos projets immobiliers.
Marsac-sur-l'Isle
TERRAIN ET MAISONMaison F3 (100 m²) à vendre à Marsac-sur-l’IsleIDÉALEMENT SITUÉE – MAISON 3 PIÈCES NEUVEEn vente : située à 5 km de Périgueux, idéalement située dans Marsac-sur-l’Isle (24430), Maisons de la Côte Atlantique Notre Dame de Sanilhac vous propose cette maison de 3 pièces de plain-pied de 100 m² et de 836 m² de terrain. Son intérieur comporte quatre chambres, une cuisine et deux salles de bains.La maison est neuve.La propriété se situe dans un secteur prisé. Une école maternelle y est implantée. Niveau transports en commun, il y a la gare La Cave à moins de 10 minutes à pied. L’autoroute A89 est accessible à 7 km. On trouve deux commerces à quelques minutes.Elle est proposée à l’achat pour 215 830 €.N’hésitez pas à prendre contact avec Bruno VERGNAUD (tél : (Numéro supprimé)) pour obtenir de plus amples renseignements sur la maison ou sur les modalités de vente.
Trélissac
TERRAINJe vous propose de venir découvrir ce magnifique terrain à bâtir bordé par une zone classée naturelle, entièrement clos et arboré, situé dans un secteur recherché, calme et sans aucune nuisance sonore sur lequel est un implanté un garage d’une surface d’environ 25 m2 (Possibilité de garer un camping car) et un carport attenant d’une surface d’environ 20 m2. »Ce terrain quasiment plat et offrant une façade de plus de 36 m vous permettra de réaliser votre future maison deplain-pied. »Les réseaux sont en bordure de la parcelle.L’étude de sol de type G1 a été réalisée.Certificat d’urbanisme valide.L’assainissement à prévoir sera de type individuel.L’entrée sur ce terrain se fait par un portail électrique. »Ce terrain bénéficie de beaucoup de points forts »!! Les honoraires d’agence sont à la charge de l’acquéreur, soit 8,57% TTC du prix hors honoraires.Les informations sur les risques auxquels ce bien est exposé sont disponibles sur le site Géorisques : www. georisques. gouv. fr.Contactez Christophe PIGEARIAS Entrepreneur Individuel, Agent commercial OptimHome (RSAC N(Numéro supprimé) Greffe de PERIGUEUX) (Numéro supprimé) (réf. 595760 )
Champcevinel
TERRAIN ET MAISONVENTE d’une maison de 4 pièces (90 m²) à ChampcevinelIDÉALEMENT SITUÉE – MAISON 4 PIÈCES NEUVEÀ quelques kilomètres de Périgueux, notre agence Maisons de la Côte Atlantique Notre Dame de Sanilhac est ravie de vous proposer cette maison de 4 pièces de plain-pied de 90 m² et de 670 m² de terrain idéalement située dans Champcevinel (24750). Elle se divise en trois chambres, une cuisine et une salle de bains.La maison est neuve.Ce bien est situé dans un secteur convoité. On y trouve des établissements scolaires maternelles et élémentaires ainsi qu’une crèche. Niveau transports, il y a cinq gares à moins de 10 minutes en voiture. L’autoroute A89 est accessible à 9 km. On trouve un tennis, une bibliothèque, une boulangerie et un bureau de poste dans les environs.Il est à vendre pour la somme de 219 800 €.Contactez Arnaud LAFAYSSE (tél : (Numéro supprimé)) pour tout renseignement sur la maison. Maisons de la Côte Atlantique Notre Dame de Sanilhac est là pour vous accompagner dans toutes vos démarches.
Marsac-sur-l'Isle
TERRAINVENTE : terrain de 1 365 m² à Marsac-sur-l’IslePROCHE GARE – PROCHE DE PÉRIGUEUXGrand terrain à vendre à deux pas de Périgueux. De 1 365 m², ce terrain se situe dans Marsac-sur-l’Isle (24430), proche de la gare. Il donne sur un espace vert et est orienté au sud. Ce terrain est proche des écoles et des commerces. Une école maternelle est implantée dans le quartier. Niveau transports en commun, il y a la gare La Cave à moins de 10 minutes à pied. On trouve un accès à l’autoroute A89 à 7 km. On trouve deux commerces à proximité.Son prix de vente est de 72 500 €. N’hésitez pas à prendre contact avec Bruno VERGNAUD (tél : (Numéro supprimé)) pour obtenir de plus amples informations sur ce terrain, sur les modalités de vente ou sur les démarches à suivre.
L’actualité immobilière à Coulounieix-Chamiers
27/11/2023
02/11/2023
30/10/2023
20/10/2023
16/10/2023
16/10/2023