Terrain à vendre

Maison à construire à La Douze (24330)

205000 €
120 m²
La Douze
Dordogne (24)
TERRAIN ET MAISON
Réf externe: 3522549
Annonce publiée le 5 novembre 2025

Images

Description

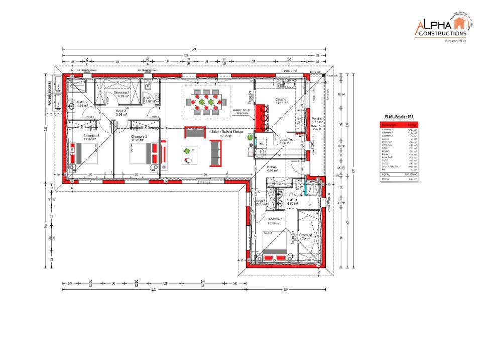
À seulement quelques kilomètres de Périgueux, découvrez ce projet de construction proposé par Alpha Constructions Boulazac Isle Manoire : une maison de plain-pied de 120 m², sur un terrain de 926 m², idéalement située dans un secteur recherché et paisible à La Douze.

Cette maison moderne et fonctionnelle offre :

3 chambres spacieuses

1 cuisine ouverte sur un grand séjour

2 salles d'eau

Des prestations de qualité et une belle luminosité

Proximité immédiate des écoles
Autoroute A89 à seulement 11 km
Commodités à proximité : bibliothèque, boulangerie, commerces


Pour en savoir plus sur ce projet ou vous faire accompagner dans vos démarches, contactez Blandine LEYMARIE au (Numéro supprimé).

Alpha Constructions Boulazac Isle Manoire vous accompagne à chaque étape de votre projet de vie !

CONTACTER

Logement susceptibles de vous intéresser

33 500 € 18 €/m²
1 840 m²

La Douze

TERRAIN

Situé à La Douze (24330), ce terrain plat de 1840m² sans vis-à-vis et sélectionné parmi notre large gamme d’une bonne centaine de terrains disponibles à la vente actuellement, offre un cadre paisible au cœur de la campagne à seulement 2mn du bourg. Cette charmante commune Périgordine, réputée pour son environnement préservé et sa douceur de vivre, bénéficie d’une proximité avec la nature, idéale pour les amoureux de tranquillité. De plus, La Douze se trouve à quelques kilomètres des commerces locaux et des écoles, offrant ainsi un équilibre entre sérénité rurale et commodités urbaines.Le terrain de 1840m², entièrement constructible, représente une opportunité exceptionnelle en Dordogne pour concrétiser un projet de construction selon ses propres aspirations. Sa surface offre une belle liberté de conception pour une maison sur mesure, entourée d’un vaste jardin ou d’aménagements extérieurs selon les envies de l’acquéreur. Doté d’un fort potentiel, ce terrain permet d’envisager la construction d’une résidence principale ou secondaire, en harmonie avec l’environnement verdoyant de La Douze.Les informations sur les risques auxquels ce bien est exposé sont disponibles sur le site Géorisques : www.georisques.gouv.frPrix de vente : 33 500 €Honoraires charge vendeurContactez votre consultant megAgence : Pascal SAUVALLE, Tél. : (Numéro supprimé), E-mail : (Email supprimé) – EI – Agent commercial immatriculé au RSAC de PERIGUEUX sous le numéro 390 877 660

L’actualité immobilière à La Douze

Image du post Pourquoi acheter un terrain en lotissement ? 27/11/2023
Lire l’article
Pourquoi acheter un terrain en lotissement ?
Image du post Vendre son terrain à un promoteur : comment procéder ? 02/11/2023
Lire l’article
Vendre son terrain à un promoteur : comment procéder ?
Image du post Diviser le terrain de sa maison pour le vendre : pourquoi et comment ? 30/10/2023
Lire l’article
Diviser le terrain de sa maison pour le vendre : pourquoi et comment ?
Image du post Acheter un terrain viabilisé : quels avantages ? 20/10/2023
Lire l’article
Acheter un terrain viabilisé : quels avantages ?
Image du post Les 7 étapes incontournables pour bien vendre votre terrain constructible 16/10/2023
Lire l’article
Les 7 étapes incontournables pour bien vendre votre terrain constructible
Image du post 5 points clés à vérifier pour l’achat d’un terrain constructible  16/10/2023
Lire l’article
5 points clés à vérifier pour l’achat d’un terrain constructible