Images
Description
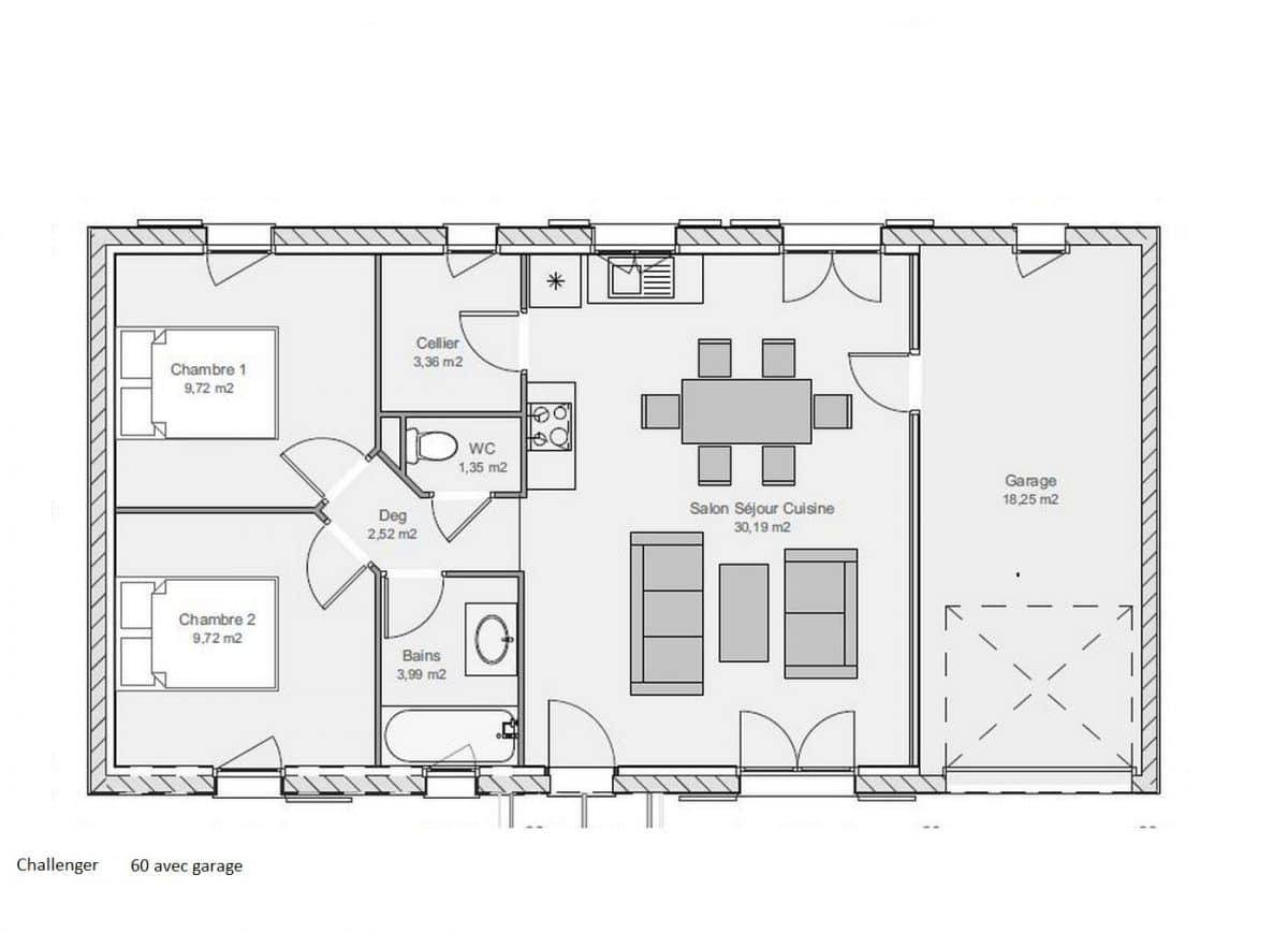
Sur ce terrain, nous vous proposons cette maison neuve : le modèle Challenger, spécialement conçu pour les primo-accédants ou les couples souhaitant bénéficier du meilleur rapport qualité/prix du marché. Avec une surface de 80 m², cette maison dispose de 3 chambres et de 4 pièces, offrant un intérieur confortable et séduisant. Un très pratique garage intégré est également inclus
Construite par Maisons Omega, détenteur du label Maisons de Qualité, cette demeure neuve est parfaite pour bien débuter dans la vie. La Challenger se distingue par ses formes simples et son intérieur accueillant. Vous y trouverez une cuisine ouverte sur un salon-séjour lumineux grâce à ses grandes portes-fenêtres, assurant une belle luminosité tout au long de la journée.
Cette maison neuve est également conforme à la RE2020, garantissant une basse consommation énergétique. Vous pourrez ainsi profiter d'un confort optimal tout en réalisant des économies sur vos factures d'énergie. De plus, son aspect extérieur moderne, avec des façades en enduit coloré et des volets roulants, ne manquera pas de vous séduire.
Les options les plus demandées par nos clients, telles que l'enduit coloré et les volets roulants, sont disponibles pour personnaliser votre maison selon vos envies et votre budget. 
Vous êtes conquis par cette maison à petit prix et basse consommation ? Contactez-nous dès maintenant pour en savoir plus et discuter de votre projet avec nos experts.
Logement susceptibles de vous intéresser
Nous vous proposons de découvrir aussi cette sélection de logements situés à moins de 10km de Monestier et qui seraient susceptibles de vous intéresser.
  
 
 Monestier
TERRAIN ET MAISONMaison F5 (130 m²) à construire à MonestierMAISON 5 PIÈCES NEUVE – PROCHE DE BERGERACÀ quelques kilomètres de Bergerac, à vendre à Monestier (24240), notre agence Maisons de la Côte Atlantique Bergerac est ravie de vous présenter cette maison de 5 pièces de 130 m².Il s’agit d’une maison de 2 niveaux. Elle compte quatre chambres, une cuisine et une salle de bains. La maison est neuve.Le terrain de la propriété s’étend sur 1 000 m².Avec les Maisons MCA, vous pouvez personnaliser votre projet de maison sur mesure :-Plan et distribution-Système de chauffage au choix-Prestations et équipements selon vos souhaits : carrelage, faïence, menuiseries, salle de bain…Mode constructif et matériaux selon les normes en vigueur, RE2020.Demandez une étude gratuite et personnalisée de votre projet de construction !Contactez Benoît DURAND, notre agent local au (Numéro supprimé).Elle est proposée pour un prix de 289 000 euros en Prête à décorer, assurance dommage-ouvrage comprise, terrain viabilisé , frais de notaire non compris. Terrain sélectionné sous réserve de disponibilité et au prix indiqué par notre partenaire foncier.
  
 
 Monestier
TERRAIN ET MAISONMonestier : maison F6 (100 m²) à construireÀ vendre : localisée à 16 km de Bergerac, à Monestier (24240), Maisons de la Côte Atlantique Bergerac vous propose cette maison de 4 pièces de plain-pied de 100 m² et de 1 000 m² de terrain. Son intérieur dispose de trois chambres, d’une cuisine, cellier/ garage, vaste salon séjour.Cette maison sera aux normes RE2020 en contrat CCMI, le contrat qui vous apporte la sécurité d’une maison faite dans les règles de l’art avec une garantie de livraison, délai respecté etc… Avec les maisons MCA vous bénéficierez aussi d’un espace personnalisé pour le suivi et échanges avec tous les intermédiaires de votre chantier. Son prix de vente est de 185000 €, terrain, maison en PAD, hors frais de viabilisation et adaptation.Contactez notre agent local (DURAND Benoit : (Numéro supprimé)) pour tout renseignement sur cette maison ou sur les modalités de vente.Avec les maisons MCA, faites bâtir votre maison avec l’un des acteurs les plus solides du marché et une des meilleures cotation banque de France, indice de fiabilité et pérennité. Nous sommes là aujourd’hui, et nous le serons demain…
  
 
 Monestier
TERRAIN ET MAISONMaison de 4 pièces (80 m²) à construire à MonestierPROCHE DE BERGERAC – À 16 km de Bergerac, en vente à Monestier (24240), nous vous proposons cette maison de 4 pièces de plain-pied de 80 m² et de 1 000 m² de terrain.Conçue de plain-pied, elle offre trois chambres, une cuisine et une salle de bains. Cette maison est neuve.Une école maternelle est implantée dans le quartier. Niveau transports, il y a les gares Gardonne et Lamonzie-Saint-Martin à moins de 10 minutes en voiture. La nationale N21 est accessible à 18 km.Cette maison sera aux normes RE2020 en contrat CCMI, le contrat qui vous apporte la sécurité d’une maison faite dans les règles de l’art avec une garantie de livraison, délai respecté etc… Avec les maisons MCA vous bénéficierez aussi d’un espace personnalisé pour le suivi et échanges avec tous les intermédiaires de votre chantier. Son prix de vente est de 128400 €, terrain, maison en PAD, hors frais de viabilisation et adaptation.Contactez notre agent local (DURAND Benoit : (Numéro supprimé)) pour tout renseignement sur cette maison ou sur les modalités de vente.Avec les maisons MCA, faites bâtir votre maison avec l’un des acteurs les plus solides du marché et une des meilleures cotation banque de France, indice de fiabilité et pérennité. Nous sommes là aujourd’hui, et nous le serons demain…
  
 
 Monestier
TERRAIN ET MAISONMonestier : maison de 3 pièces (49 m²) à construire.PROCHE DE BERGERAC – Le modèle LYS 49m2 a été conçu pour vous permettre de réaliser votre 1er achat avec l’essentiel, 2 chambres, une pièce de vie agréable, salle d’eau/wc. Vous aurez tout le loisir dans un second temps d’agrandir votre séjour à moindre frais en aménageant le garage et en créant aussi une 3ème chambre. Le prêt à taux 0 est de retour, c’est le moment de se lancer !!Cette maison sera en contrat CCMI, le contrat qui vous apporte la sécurité d’une maison faite dans les règles de l’art avec une garantie de livraison, délai respecté etc… Avec les maisons MCA vous bénéficierez aussi d’un espace personnalisé pour le suivi et échanges avec tous les intermédiaires de votre chantier. Son prix de vente est de 109000 €, terrain, maison en PAD, hors frais de viabilisation et adaptation.Contactez notre agent local gardonnais (DURAND Benoit : (Numéro supprimé)) pour tout renseignement sur cette maison ou sur les modalités de vente.Avec les maisons MCA, faites bâtir votre maison avec l’un des acteurs les plus solides du marché avec une des meilleures cotation banque de France, indice de fiabilité et pérennité. Nous sommes là aujourd’hui, et nous le serons demain…
  
 
 Monestier
TERRAIN ET MAISONMonestier : maison de 4 pièces (100 m²) à construire.En vente : localisée à 16 km de Bergerac, Maisons de la Côte Atlantique Bergerac vous présente cette maison de 4 pièces de plain-pied de 100 m² et de 1 000 m² de terrain à Monestier (24240) Son intérieur compte trois chambres, une cuisine et deux salles de bains. La maison est neuve.Cette maison sera aux normes RE2020 en contrat CCMI, le contrat qui vous apporte la sécurité d’une maison faite dans les règles de l’art avec une garantie de livraison, délai respecté etc… Avec les maisons MCA vous bénéficierez aussi d’un espace personnalisé pour le suivi et échanges avec tous les intermédiaires de votre chantier. Son prix de vente est de 159000 €, terrain, maison en PAD, frais de viabilisation et adaptation inclus.Contactez notre agent local (DURAND Benoit : (Numéro supprimé)) pour tout renseignement sur cette maison ou sur les modalités de vente.Avec les maisons MCA, faites bâtir votre maison avec l’un des acteurs les plus solides du marché avec une des meilleures cotation banque de France, indice de fiabilité et pérennité. Nous sommes là aujourd’hui, et nous le serons demain…
  
 
 Pineuilh
TERRAINTerrain de 700 m² à vendre à PineuilhEMPLACEMENT PRIVILÉGIÉ – PROCHE DE BERGERACÀ 21 km de Bergerac à Pineuilh (33220), beau terrain de 700m2 idéal pour votre projet de construction. Il est viabilisé accordable au tout à l’égout. Il se situe dans un quartier convoité. Des écoles maternelles et élémentaires se trouvent à moins de 10 minutes à pied, tout comme dont l’École Primaire Pierre Marbouty. Niveau transports, il y a la gare Sainte-Foy-la-Grande à quelques pas du bien. Il y a un accès à l’autoroute A89 à 18 km. On trouve un tennis, une boulangerie, des commerces, un supermarché, une épicerie et deux boucheries-charcuteries à quelques minutes à peine.Son prix de vente est de 55 000 €. N’hésitez pas à prendre contact avec Marine BONNEAU (tél : (Numéro supprimé)) pour plus de renseignements sur ce terrain, sur les modalités de vente ou sur les démarches à suivre.
  
 
 Pineuilh
TERRAIN ET MAISONPineuilh : maison F4 (101 m²) à vendreEMPLACEMENT PRIVILÉGIÉ – MAISON 4 PIÈCES NEUVEEn vente : à quelques kilomètres de Bergerac, bénéficiant d’un emplacement privilégié dans Pineuilh (33220), Maisons MCA vous présente cette maison de 4 pièces de plain-pied de 101 m².Son intérieur dispose de trois chambres, d’une cuisine et de deux salles de bains. La maison est neuve.Le terrain de la propriété s’étend sur 700 m².Le terrain se situe dans un secteur convoité. On trouve des écoles maternelles et élémentaires à moins de 10 minutes à pied et, comme l’École Primaire Pierre Marbouty. Niveau transports en commun, il y a la gare Sainte-Foy-la-Grande à quelques pas de la maison. L’autoroute A89 est accessible à 18 km. On trouve un tennis, une boulangerie, des commerces, un supermarché, deux boucheries-charcuteries et une épicerie à quelques minutes du bien.Son prix de vente est de 265 000 €.Contactez Marine BONNEAU (tél : (Numéro supprimé)) pour toute information sur la maison ou sur les modalités de vente. Maisons de la Côte Atlantique MCA Libourne vous accompagne dans toutes vos démarches et à toutes les étapes de votre projet.
  
 
 Pineuilh
TERRAIN ET MAISONMaison de 4 pièces (85 m²) en vente à PineuilhEMPLACEMENT PRIVILÉGIÉ – PROJET MAISON NEUVE 4 piècesÀ vendre à deux pas de Bergerac, bénéficiant d’un emplacement d’exception dans Pineuilh (33220), notre agence Maisons MCA Libourne est heureuse de vous présenter cette maison de 4 pièces de plain-pied de 85 m².Son intérieur offre trois chambres, une cuisine et une salle de bains. Cette maison est neuve.Le terrain de la propriété est de 700 m².Cette maison se trouvera dans un quartier prisé. Il y a des écoles primaires à moins de 10 minutes à pied et dont l’École Primaire Pierre Marbouty. Niveau transports, on trouve la gare Sainte-Foy-la-Grande dans un rayon de 1 km. Il y a un accès à l’autoroute A89 à 18 km. Il y a un tennis, une boulangerie, des commerces, un supermarché, une épicerie et deux boucheries-charcuteries dans les environs.Elle est proposée à l’achat pour 190 000 €.Prenez contact avec notre agence (BONNEAU Marine : (Numéro supprimé)) pour plus d’informations sur le bien.
  
 
 Saint-Sernin
TERRAIN ET MAISONVENTE d’une maison de 3 pièces (50 m²) à Saint-SerninEMPLACEMENT PRIVILÉGIÉ – MAISON 3 PIÈCES NEUVEEn vente à quelques kilomètres de Bergerac, ayez le coup de coeur pour cette maison de 3 pièces de plain-pied de 50 m² et de 760 m² de terrain bénéficiant d’un emplacement privilégié dans Saint-Sernin (47120). Son intérieur compte deux chambres, une cuisine et une salle de bains.La maison est neuve.La maison se situe dans un quartier recherché. Une école primaire y est implantée. Il y a un tennis et une épicerie à quelques minutes à peine.Elle est proposée à l’achat pour 135000 €.Chiffrage projet réalisé sur la base d’une maison prêt à décorer, hors frais de notaire, sous réserve de l’étude de sol.N’hésitez pas à prendre contact avec notre agence (Alexandra LAGARDERE : (Numéro supprimé)) pour toute question sur le bien. Donnez vie à vos projets immobiliers avec Maisons de la Côte Atlantique Marmande.
L’actualité immobilière à Monestier
 
 27/11/2023
 
 
 
 02/11/2023
 
 
 
 30/10/2023
 
 
 
 20/10/2023
 
 
 
 16/10/2023
 
 
 
 16/10/2023