Terrain à vendre

191000 €
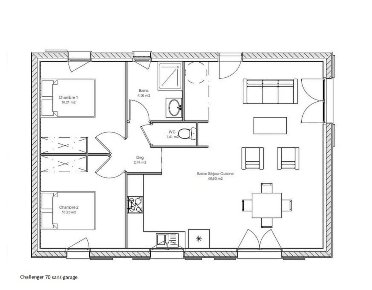
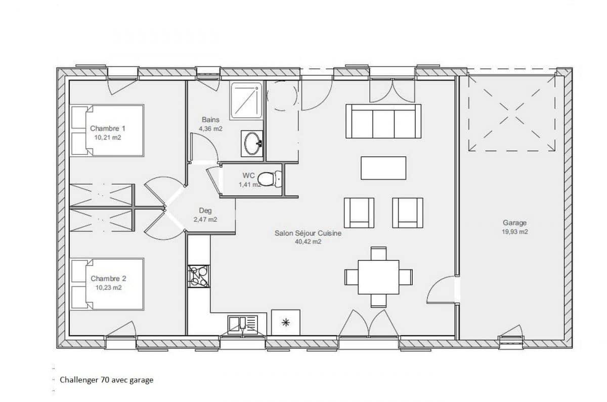
70 m²
Montignac-Lascaux
Dordogne (24)
TERRAIN ET MAISON
Réf externe: 4423414
Annonce publiée le 14 décembre 2025

Images

Description

Sur ce terrain, nous vous proposons cette maison neuve : le modèle Challenger, spécialement conçu pour les primo-accédants ou les couples souhaitant bénéficier du meilleur rapport qualité/prix du marché. Avec une surface de 70 m², cette maison offre un espace de vie confortable et fonctionnel, idéal pour bien débuter dans la vie.

### Une maison neuve parfaite pour bien débuter dans la vie

La maison Challenger séduit immédiatement par ses formes simples et son intérieur confortable. Elle dispose de 3 chambres et de 4 pièces, dont un vaste séjour avec une cuisine ouverte. Les grandes portes-fenêtres assurent une excellente luminosité, créant un espace de vie agréable et chaleureux.

### Construire une petite demeure neuve coquette et sympathique

La gamme Challenger se décline en plusieurs modèles, et celui-ci, avec ses 70 m², ne fait pas exception en termes de confort. Vous pourrez profiter de 3 chambres spacieuses et d'un séjour lumineux. Un très pratique garage intégré est également inclus !

### Caractéristiques principales

- Petit prix : Une maison accessible pour les primo-accédants.
- Basse consommation : Conforme à la norme RE2020, cette maison est conçue pour être économe en énergie.
- **Options populaires** : Enduit coloré et volets roulants disponibles pour personnaliser votre maison.

### Un extérieur moderne et séduisant

L'aspect extérieur de la maison Challenger vous fera également tomber sous le charme, avec des façades résolument modernes soulignées d'enduit bi-ton et de menuiseries assorties.

### Constructeur de confiance

Maisons Omega, détenteur du label Maisons de Qualité, est le constructeur de cette maison. Vous pouvez être assuré de la qualité et de la durabilité de votre future demeure.

Vous êtes conquis ? Vous voulez en savoir plus sur cette maison à petit prix ? Contactez-nous afin d’en parler et d'obtenir tous les détails.

CONTACTER

Logement susceptibles de vous intéresser

28 000 € 30 €/m²
927 m²

Montignac-Lascaux

TERRAIN

Terrain plat à bâtir de 1138 m2 fraichement disponible à la vente sur la commune de Montignac. bel emplacement paisible et à la fois proche du centre de Montignac, et de son musée Lascaux. (Site reconnu mondialement) Viabilisé avec eau et électricité, en attente de raccordement fibre et Assainissement individuel. Découvrez ce superbe terrain viabilisé situé à Montignac, en Dordogne, avec une superficie généreuse de 930 m². Ce terrain, idéal pour la construction de votre future maison, vous offre une belle vue dégagée et un cadre de vie exceptionnel. Profitez d’une atmosphère paisible et conviviale, parfaite pour réaliser votre projet de rêve dans un environnement naturel enchanteur. Montignac, une charmante ville de Nouvelle-Aquitaine, est réputée pour sa richesse culturelle et historique. Entourée de paysages splendides, la ville propose de nombreuses attractions locales, telles que les célèbres grottes de Lascaux et ses paysages pittoresques. Les commodités à proximité, comprenant des écoles, des commerces, et des services de santé, renforcent l’attrait de cet emplacement. Faites de Montignac votre nouveau foyer et profitez d’une qualité de vie inégalée, avec de nombreuses activités en plein air à votre portée. Ce terrain représente une opportunité rare à saisir pour les futurs propriétaires souhaitant allier tranquillité et accessibilité. N’attendez plus pour envisager cette possibilité d’achat unique et construire la maison de vos rêves ! À noter qu’en tant que constructeur, nous ne sommes pas mandatés pour réaliser la vente de ce terrain.

28 000 € 30 €/m²
930 m²

Montignac-Lascaux

TERRAIN

Terrain plat à bâtir de 1138 m2 fraichement disponible à la vente sur la commune de Montignac. bel emplacement paisible et à la fois proche du centre de Montignac, et de son musée Lascaux. (Site reconnu mondialement) Viabilisé avec eau et électricité, en attente de raccordement fibre et Assainissement individuel. Découvrez ce superbe terrain viabilisé situé à Montignac, en Dordogne, avec une superficie généreuse de 930 m². Ce terrain, idéal pour la construction de votre future maison, vous offre une belle vue dégagée et un cadre de vie exceptionnel. Profitez d’une atmosphère paisible et conviviale, parfaite pour réaliser votre projet de rêve dans un environnement naturel enchanteur. Montignac, une charmante ville de Nouvelle-Aquitaine, est réputée pour sa richesse culturelle et historique. Entourée de paysages splendides, la ville propose de nombreuses attractions locales, telles que les célèbres grottes de Lascaux et ses paysages pittoresques. Les commodités à proximité, comprenant des écoles, des commerces, et des services de santé, renforcent l’attrait de cet emplacement. Faites de Montignac votre nouveau foyer et profitez d’une qualité de vie inégalée, avec de nombreuses activités en plein air à votre portée. Ce terrain représente une opportunité rare à saisir pour les futurs propriétaires souhaitant allier tranquillité et accessibilité. N’attendez plus pour envisager cette possibilité d’achat unique et construire la maison de vos rêves ! À noter qu’en tant que constructeur, nous ne sommes pas mandatés pour réaliser la vente de ce terrain.

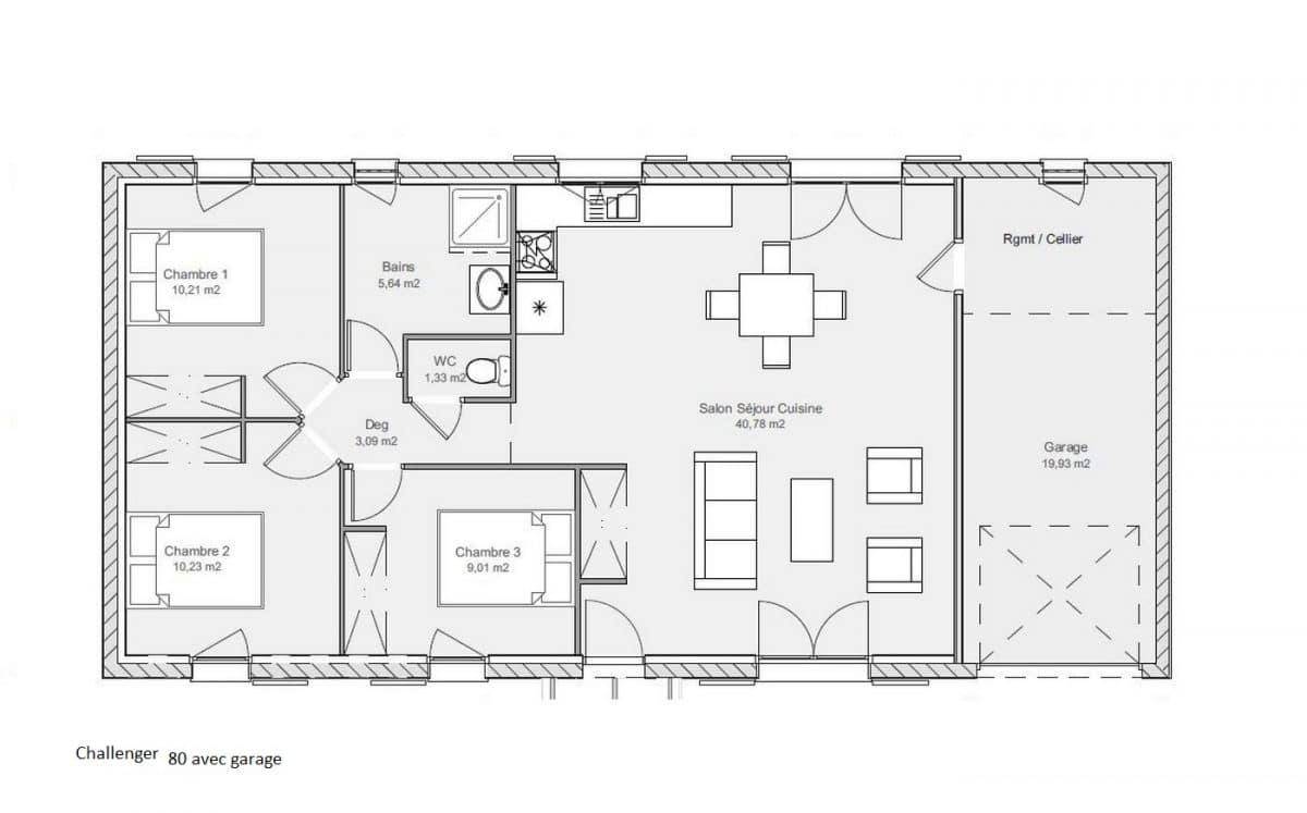
192 500 €
84 m²

Montignac-Lascaux

TERRAIN ET MAISON

Sur ce terrain, nous vous proposons cette maison neuve : le modèle Bugues, une maison traditionnelle de plain-pied conçue par Maisons Omega, détenteur du label Maisons de Qualité.Caractéristiques du modèle Bugues, maison traditionnelle de plain-pied.Un pavillon de charme pour toute la famille, élégant et pratique avec de beaux volumes. Une façade en décalé et un très joli auvent sur entrée vous assurent une maison originale et sympathique.Une jolie maison de plain-pied qui saura vous séduire.Le modèle Bugues se compose de trois chambres dans un coin nuit dédié, avec la salle d’eau. Les w.c. sont séparés. L’espace de jour offre un grand séjour-salon-cuisine traversant, ouvrant sur les deux côtés de l’habitation. Un cellier et le garage communiquant complètent cet ensemble confortable.Avec l’option volets battants et des finitions comme l’encadrement de fenêtres, l’habillage des évacuations d’eau de pluie, et la poutre de soutien de l’auvent lui confèrent un aspect très soigné. La toiture traditionnelle est du plus bel effet.Ce modèle peut disposer de plusieurs options telles que :- La domotique,- L’aérodynamique, la géothermie,- La menuiserie PVC ou alu,- Aqua air T-one.Les caractéristiques principales de cette maison de 84 m² incluent un garage intégré et un porche accueillant. Les options les plus demandées par nos clients, telles que les menuiseries en aluminium et les tuiles canal, sont également disponibles pour personnaliser votre future maison.Insistons sur le fait que cette maison neuve est basse consommation et conforme à la RE2020, garantissant ainsi une performance énergétique optimale et un confort de vie exceptionnel.N’attendez plus pour découvrir cette maison Bugues, un choix idéal pour une vie de famille harmonieuse et économe en énergie. Contactez-nous dès aujourd’hui

173 000 €
70 m²

Montignac-Lascaux

TERRAIN ET MAISON

Sur ce terrain, nous vous proposons cette maison neuve : le modèle Challenger, spécialement conçu pour les primo-accédants ou les couples souhaitant bénéficier du meilleur rapport qualité/prix du marché. Avec une surface de 70 m², cette maison offre un espace de vie confortable et fonctionnel, idéal pour bien débuter dans la vie.### Une maison neuve parfaite pour bien débuter dans la vieLa maison Challenger séduit immédiatement par ses formes simples et son intérieur confortable. Elle dispose de 3 chambres et de 4 pièces, dont un vaste séjour avec une cuisine ouverte. Les grandes portes-fenêtres assurent une excellente luminosité, créant un espace de vie agréable et chaleureux. ### Construire une petite demeure neuve coquette et sympathiqueLa gamme Challenger se décline en plusieurs modèles, et celui-ci, avec ses 70 m², ne fait pas exception en termes de confort. Vous pourrez profiter de 3 chambres spacieuses et d’un séjour lumineux. Un très pratique garage intégré est également inclus !### Caractéristiques principales- Petit prix : Une maison accessible pour les primo-accédants.- Basse consommation : Conforme à la norme RE2020, cette maison est conçue pour être économe en énergie.- **Options populaires** : Enduit coloré et volets roulants disponibles pour personnaliser votre maison.### Un extérieur moderne et séduisantL’aspect extérieur de la maison Challenger vous fera également tomber sous le charme, avec des façades résolument modernes soulignées d’enduit bi-ton et de menuiseries assorties. ### Constructeur de confianceMaisons Omega, détenteur du label Maisons de Qualité, est le constructeur de cette maison. Vous pouvez être assuré de la qualité et de la durabilité de votre future demeure.Vous êtes conquis ? Vous voulez en savoir plus sur cette maison à petit prix ? Contactez-nous afin d’en parler et d’obtenir tous les détails.

191 000 €
70 m²

Montignac-Lascaux

TERRAIN ET MAISON

Sur ce terrain, nous vous proposons cette maison neuve : le modèle Challenger, spécialement conçu pour les primo-accédants ou les couples souhaitant bénéficier du meilleur rapport qualité/prix du marché. Avec une surface de 70 m², cette maison offre un espace de vie confortable et fonctionnel, idéal pour bien débuter dans la vie.### Une maison neuve parfaite pour bien débuter dans la vieLa maison Challenger séduit immédiatement par ses formes simples et son intérieur confortable. Elle dispose de 3 chambres et de 4 pièces, dont un vaste séjour avec une cuisine ouverte. Les grandes portes-fenêtres assurent une excellente luminosité, créant un espace de vie agréable et chaleureux. ### Construire une petite demeure neuve coquette et sympathiqueLa gamme Challenger se décline en plusieurs modèles, et celui-ci, avec ses 70 m², ne fait pas exception en termes de confort. Vous pourrez profiter de 3 chambres spacieuses et d’un séjour lumineux. Un très pratique garage intégré est également inclus !### Caractéristiques principales- Petit prix : Une maison accessible pour les primo-accédants.- Basse consommation : Conforme à la norme RE2020, cette maison est conçue pour être économe en énergie.- **Options populaires** : Enduit coloré et volets roulants disponibles pour personnaliser votre maison.### Un extérieur moderne et séduisantL’aspect extérieur de la maison Challenger vous fera également tomber sous le charme, avec des façades résolument modernes soulignées d’enduit bi-ton et de menuiseries assorties. ### Constructeur de confianceMaisons Omega, détenteur du label Maisons de Qualité, est le constructeur de cette maison. Vous pouvez être assuré de la qualité et de la durabilité de votre future demeure.Vous êtes conquis ? Vous voulez en savoir plus sur cette maison à petit prix ? Contactez-nous afin d’en parler et d’obtenir tous les détails.

L’actualité immobilière à Montignac-Lascaux

Image du post Pourquoi acheter un terrain en lotissement ? 27/11/2023
Lire l’article
Pourquoi acheter un terrain en lotissement ?
Image du post Vendre son terrain à un promoteur : comment procéder ? 02/11/2023
Lire l’article
Vendre son terrain à un promoteur : comment procéder ?
Image du post Diviser le terrain de sa maison pour le vendre : pourquoi et comment ? 30/10/2023
Lire l’article
Diviser le terrain de sa maison pour le vendre : pourquoi et comment ?
Image du post Acheter un terrain viabilisé : quels avantages ? 20/10/2023
Lire l’article
Acheter un terrain viabilisé : quels avantages ?
Image du post Les 7 étapes incontournables pour bien vendre votre terrain constructible 16/10/2023
Lire l’article
Les 7 étapes incontournables pour bien vendre votre terrain constructible
Image du post 5 points clés à vérifier pour l’achat d’un terrain constructible  16/10/2023
Lire l’article
5 points clés à vérifier pour l’achat d’un terrain constructible