Images
Description
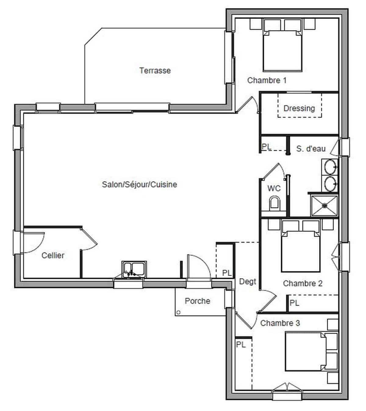
Sur ce terrain, nous vous proposons cette maison neuve : la Canéjan. Conçue par Maisons Omega, détenteur du label Maisons de Qualité, cette maison familiale jolie et bien organisée est parfaite pour une petite famille souhaitant commencer une nouvelle vie dans les meilleures conditions.
La Canéjan, avec ses 86 m², se distingue par son plan en T, offrant un agencement intérieur intelligent et optimisé. Elle se compose de 3 chambres avec placard ou dressing, une salle de bains avec WC séparés, un cellier et une cuisine ouverte sur un salon-séjour lumineux grâce à ses larges baies vitrées donnant sur le jardin.
Vous serez également séduits par son porche élégant et pratique, ainsi que par ses façades agrémentées de modénatures et son joli toit tuilé à deux pans.
Cette maison plain-pied, de taille confortable, est tout à fait adaptée à une famille et lui offrira un grand confort. De plus, la Canéjan est une maison basse consommation, conforme à la RE2020, garantissant des économies d'énergie et un respect de l'environnement.
Les options les plus demandées par nos clients, telles que le carport et les menuiseries en aluminium, sont également disponibles pour personnaliser votre future maison selon vos besoins et vos envies.
Vous voulez en savoir plus ? Contactez un de nos conseillers, il vous renseignera avec plaisir. Ne manquez pas cette opportunité de réaliser votre projet de maison neuve avec la Canéjan.
Logement susceptibles de vous intéresser
Nous vous proposons de découvrir aussi cette sélection de logements situés à moins de 10km de Ribagnac et qui seraient susceptibles de vous intéresser.
Ribagnac
TERRAINVENTE d’un terrain de 987 m² à RibagnacPROCHE DE BERGERAC – VUE DÉGAGÉEGrand terrain à quelques kilomètres de Bergerac. De 987 m², ce terrain se situe dans Ribagnac (24240). Il profite d’une vue dégagée. Ce terrain est proche des commerces et des écoles. Il y a des écoles (de la maternelle au lycée) à moins de 10 minutes en voiture, tout comme trois crèches à moins de 10 minutes à pied. La nationale N21 est accessible à 9 km. On trouve des tennis, des bibliothèques, trois bassins de natation, un bowling, des boulangeries, des commerces, des supermarchés, une poissonnerie et des épiceries à proximité. Enfin, le marché Place de l’église a lieu chaque dimanche matin.Il est à vendre pour la somme de 19 500 €. Contactez Julie THIELENS (tél : (Numéro supprimé)) pour obtenir de plus amples renseignements sur le terrain, sur les démarches à suivre pour votre projet de construction. D’autres terrains sont également disponible sur la commune. Maisons de la Côte Atlantique Bergerac vous accompagne à toutes les étapes de l’achat et dans tous vos projets immobiliers.
Ribagnac
TERRAIN ET MAISONSur ce terrain, nous vous proposons cette maison neuve : le modèle Challenger, spécialement conçu pour les primo-accédants ou les couples souhaitant bénéficier du meilleur rapport qualité/prix du marché. Avec une surface de 70 m², cette maison offre un espace de vie confortable et fonctionnel, idéal pour bien débuter dans la vie.### Une maison neuve parfaite pour bien débuter dans la vieLa maison Challenger séduit immédiatement par ses formes simples et son intérieur confortable. Elle dispose de 3 chambres et de 4 pièces, dont un vaste séjour avec une cuisine ouverte. Les grandes portes-fenêtres assurent une excellente luminosité, créant un espace de vie agréable et chaleureux. ### Construire une petite demeure neuve coquette et sympathiqueLa gamme Challenger se décline en plusieurs modèles, et celui-ci, avec ses 70 m², ne fait pas exception en termes de confort. Vous pourrez profiter de 3 chambres spacieuses et d’un séjour lumineux. Un très pratique garage intégré est également inclus !### Caractéristiques principales- Petit prix : Une maison accessible pour les primo-accédants.- Basse consommation : Conforme à la norme RE2020, cette maison est conçue pour être économe en énergie.- **Options populaires** : Enduit coloré et volets roulants disponibles pour personnaliser votre maison.### Un extérieur moderne et séduisantL’aspect extérieur de la maison Challenger vous fera également tomber sous le charme, avec des façades résolument modernes soulignées d’enduit bi-ton et de menuiseries assorties. ### Constructeur de confianceMaisons Omega, détenteur du label Maisons de Qualité, est le constructeur de cette maison. Vous pouvez être assuré de la qualité et de la durabilité de votre future demeure.Vous êtes conquis ? Vous voulez en savoir plus sur cette maison à petit prix ? Contactez-nous afin d’en parler et d’obtenir tous les détails.
Ribagnac
TERRAINA Ribagnac, vous pourrez bénéficier d’un environnement charmant et calme avec un Pôle Santé accessible à pied, tout en étant à 15 minutes de Bergerac. Vous cherchez à construire votre maison dans un cadre agréable ? Nous vous proposons un terrain prêt à bâtir avec un projet de maison moderne et personnalisable, pensé pour optimiser confort, lumière et espace. ? Inclus dans l’offre : Terrain viabilisé prêt à construire Proposition de maison (plans + configuration 3D disponibles) Possibilité d’adapter les surfaces, nombre de chambres, garage, etc. Des garanties qui vous permettront de réaliser votre projet en toute sécurité Accompagnement complet jusqu’à la remise des clés ?? Découvrez une configuration possible dès maintenant ! ?? Scannez le QR code dans la photo pour visualiser une proposition de maison et configurer celle qui vous convient. D’autres modèles personnalisables sont à votre disposition en agence, prenez contact avec un conseiller afin d’étudier précisément votre projet. Une large gamme de modèles de maisons vous attend sur notre site internet et nous sommes à votre disposition pour étudier et personnaliser le projet qui vous correspond.
Ribagnac
TERRAIN ET MAISONSur ce terrain, nous vous proposons cette maison neuve : le modèle Challenger, spécialement conçu pour les primo-accédants ou les couples souhaitant bénéficier du meilleur rapport qualité/prix du marché. Avec une surface de 80 m², cette maison dispose de 3 chambres et de 4 pièces, offrant un intérieur confortable et séduisant. Un très pratique garage intégré est également inclusConstruite par Maisons Omega, détenteur du label Maisons de Qualité, cette demeure neuve est parfaite pour bien débuter dans la vie. La Challenger se distingue par ses formes simples et son intérieur accueillant. Vous y trouverez une cuisine ouverte sur un salon-séjour lumineux grâce à ses grandes portes-fenêtres, assurant une belle luminosité tout au long de la journée.Cette maison neuve est également conforme à la RE2020, garantissant une basse consommation énergétique. Vous pourrez ainsi profiter d’un confort optimal tout en réalisant des économies sur vos factures d’énergie. De plus, son aspect extérieur moderne, avec des façades en enduit coloré et des volets roulants, ne manquera pas de vous séduire.Les options les plus demandées par nos clients, telles que l’enduit coloré et les volets roulants, sont disponibles pour personnaliser votre maison selon vos envies et votre budget. Vous êtes conquis par cette maison à petit prix et basse consommation ? Contactez-nous dès maintenant pour en savoir plus et discuter de votre projet avec nos experts.
Ribagnac
TERRAINNous vous présentons ce terrain viabilisé de 1020 m² situé dans la dynamique commune de Ribagnac. Vous pourrez bénéficier d’un environnement charmant et calme avec un Pôle Santé accessible à pied, tout en étant à 15 minutes de Bergerac. Une large gamme de modèles de maisons vous attend sur notre site internet et nous sommes à votre disposition pour étudier et personnaliser le projet qui vous correspond. À noter qu’en tant que constructeur, nous ne sommes pas mandatés pour réaliser la vente de ce terrain.
Ribagnac
TERRAIN ET MAISONSur ce terrain, nous vous proposons cette maison neuve : le modèle Challenger, spécialement conçu pour les primo-accédants ou les couples souhaitant bénéficier du meilleur rapport qualité/prix du marché. Avec une surface de 60 m², cette maison dispose de 2 chambres et de 3 pièces ainsi que d’un garage intégré, offrant un intérieur confortable et fonctionnel qui séduit immédiatement.Construite par Maisons Omega, détenteur du label Maisons de Qualité, cette demeure coquette et sympathique est idéale pour bien débuter dans la vie. La Challenger se distingue par ses formes simples et son intérieur bien agencé. Vous y trouverez une cuisine ouverte sur un salon-séjour, baigné de lumière grâce à ses grandes portes-fenêtres.Cette maison neuve est également conforme à la RE2020, garantissant une basse consommation énergétique. Vous profiterez ainsi d’un logement respectueux de l’environnement et économique à l’usage. Parmi les options les plus demandées par nos clients, vous pouvez opter pour un enduit coloré et des volets roulants, ajoutant une touche de modernité et de confort supplémentaire à votre future maison.Son aspect extérieur ne manquera pas de vous charmer avec des façades modernes et élégantes. Vous êtes conquis ? Vous voulez en savoir plus sur cette maison à petit prix ? Contactez-nous afin d’en parler et obtenir tous les détails.
Ribagnac
TERRAINNous vous présentons ce terrain viabilisé de 1020 m² situé dans la dynamique commune de Ribagnac. Vous pourrez bénéficier d’un environnement charmant et calme avec un Pôle Santé accessible à pied, tout en étant à 15 minutes de Bergerac. Une large gamme de modèles de maisons vous attend sur notre site internet et nous sommes à votre disposition pour étudier et personnaliser le projet qui vous correspond. À noter qu’en tant que constructeur, nous ne sommes pas mandatés pour réaliser la vente de ce terrain.
Ribagnac
TERRAIN ET MAISONSur ce terrain, nous vous proposons cette maison neuve : le modèle Challenger, spécialement conçu pour les primo-accédants ou les couples souhaitant bénéficier du meilleur rapport qualité/prix du marché. Avec une surface de 70 m², cette maison offre un espace de vie confortable et fonctionnel, idéal pour bien débuter dans la vie.### Une maison neuve parfaite pour bien débuter dans la vieLa maison Challenger séduit immédiatement par ses formes simples et son intérieur confortable. Elle dispose de 3 chambres et de 4 pièces, dont un vaste séjour avec une cuisine ouverte. Les grandes portes-fenêtres assurent une excellente luminosité, créant un espace de vie agréable et chaleureux. ### Construire une petite demeure neuve coquette et sympathiqueLa gamme Challenger se décline en plusieurs modèles, et celui-ci, avec ses 70 m², ne fait pas exception en termes de confort. Vous pourrez profiter de 3 chambres spacieuses et d’un séjour lumineux. Un très pratique garage intégré est également inclus !### Caractéristiques principales- Petit prix : Une maison accessible pour les primo-accédants.- Basse consommation : Conforme à la norme RE2020, cette maison est conçue pour être économe en énergie.- **Options populaires** : Enduit coloré et volets roulants disponibles pour personnaliser votre maison.### Un extérieur moderne et séduisantL’aspect extérieur de la maison Challenger vous fera également tomber sous le charme, avec des façades résolument modernes soulignées d’enduit bi-ton et de menuiseries assorties. ### Constructeur de confianceMaisons Omega, détenteur du label Maisons de Qualité, est le constructeur de cette maison. Vous pouvez être assuré de la qualité et de la durabilité de votre future demeure.Vous êtes conquis ? Vous voulez en savoir plus sur cette maison à petit prix ? Contactez-nous afin d’en parler et d’obtenir tous les détails.
Ribagnac
TERRAINNous vous présentons ce terrain viabilisé de 1030 m² situé dans la dynamique commune de Ribagnac. Vous pourrez bénéficier d’un environnement charmant et calme avec un Pôle Santé accessible à pied, tout en étant à 15 minutes de Bergerac. Une large gamme de modèles de maisons vous attend sur notre site internet et nous sommes à votre disposition pour étudier et personnaliser le projet qui vous correspond. À noter qu’en tant que constructeur, nous ne sommes pas mandatés pour réaliser la vente de ce terrain.
L’actualité immobilière à Ribagnac
27/11/2023
02/11/2023
30/10/2023
20/10/2023
16/10/2023
16/10/2023