Images
Description
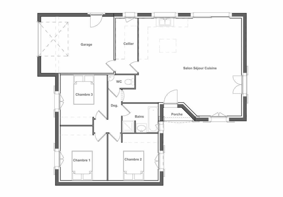
Sur ce terrain, nous vous proposons cette maison neuve : le modèle Eysines. Réalisez votre projet de construction avec Maisons Omega, détenteur du label Maisons de Qualité, et faites de votre rêve une réalité.
Cette maison de 92 m², conçue en plan en L, offre un cadre de vie idéal pour toute la famille. Avec ses trois chambres spacieuses et ses quatre pièces bien agencées, elle combine confort et fonctionnalité. Le modèle Eysines se distingue par son porche accueillant et son toit à deux pans ou quatre pans, selon vos préférences.
L'intérieur de cette maison est pensé pour optimiser chaque mètre carré. Vous y trouverez une salle de bains moderne avec des WC séparés, un cellier pratique et un vaste salon séjour cuisine baigné de lumière. Les espaces de vie sont bien délimités, avec un coin nuit paisible et un coin jour convivial.
En plus de ses atouts esthétiques et pratiques, cette maison neuve est basse consommation et conforme à la réglementation environnementale RE2020, garantissant ainsi des performances énergétiques optimales et un impact réduit sur l'environnement.
Pour répondre aux attentes des clients, le modèle Eysines peut être équipé d'un Car Port, une option très demandée pour protéger vos véhicules.
N'hésitez pas à nous contacter pour plus d'informations sur cette charmante maison de 92 m². Avec Maisons Omega, votre projet de construction est entre de bonnes mains.
Logement susceptibles de vous intéresser
Nous vous proposons de découvrir aussi cette sélection de logements situés à moins de 10km de Saint-Front-la-Rivière et qui seraient susceptibles de vous intéresser.
Saint-Front-la-Rivière
TERRAINÀ découvrir, ce magnifique terrain de 3 000 m² situé à Saint-Front-la-Rivière, dans le département de la Dordogne. Idéal pour la réalisation d’un projet de construction de maison, ce terrain non viabilisé offre un cadre champêtre et paisible, sans vis-à-vis, permettant de concevoir votre havre de paix selon vos envies. À la fois ensoleillé et arboré, ce lieu privilégié vous promet une qualité de vie exceptionnelle, loin de l’agitation urbaine. Saint-Front-la-Rivière, charmante commune de la Nouvelle-Aquitaine, se distingue par son ambiance conviviale et ses nombreux atouts. À proximité, vous trouverez des commerces de première nécessité, des écoles et toutes les commodités pour faciliter votre quotidien. La région est également connue pour ses paysages pittoresques et ses activités de plein air, offrant un cadre de vie idéal pour les familles et les amoureux de la nature. Ne manquez pas cette opportunité d’investir dans un terrain au potentiel remarquable, au cœur d’un environnement chaleureux et accueillant. Ce terrain exceptionnel vous attend pour un projet de vie unique. À noter qu’en tant que constructeur, nous ne sommes pas mandatés pour réaliser la vente de ce terrain.
Saint-Front-la-Rivière
TERRAIN ET MAISONSur ce terrain, nous vous proposons cette maison neuve : le modèle Eysines. Réalisez votre projet de construction avec Maisons Omega, détenteur du label Maisons de Qualité, et faites de votre rêve une réalité.Cette maison de 92 m², conçue en plan en L, offre un cadre de vie idéal pour toute la famille. Avec ses trois chambres spacieuses et ses quatre pièces bien agencées, elle combine confort et fonctionnalité. Le modèle Eysines se distingue par son porche accueillant et son toit à deux pans ou quatre pans, selon vos préférences.L’intérieur de cette maison est pensé pour optimiser chaque mètre carré. Vous y trouverez une salle de bains moderne avec des WC séparés, un cellier pratique et un vaste salon séjour cuisine baigné de lumière. Les espaces de vie sont bien délimités, avec un coin nuit paisible et un coin jour convivial.En plus de ses atouts esthétiques et pratiques, cette maison neuve est basse consommation et conforme à la réglementation environnementale RE2020, garantissant ainsi des performances énergétiques optimales et un impact réduit sur l’environnement.Pour répondre aux attentes des clients, le modèle Eysines peut être équipé d’un Car Port, une option très demandée pour protéger vos véhicules.N’hésitez pas à nous contacter pour plus d’informations sur cette charmante maison de 92 m². Avec Maisons Omega, votre projet de construction est entre de bonnes mains.
Milhac-de-Nontron
TERRAINMilhac de Nontron, je vous propose un beau terrain à bâtir de 1500m2 situé dans un environnement calme et verdoyant, idéal pour concrétiser votre projet de vie. Ce terrain dispose d’une façade de 26m pour une profondeur d’environ 48m.Caractéristiques: Parcelle cadastrale B2138Terrain plat et facile d’accès, tout à l’égout en raccordement, réseaux à proximité, non viabilisé.Milhac de Nontron est un charmant village de Dordogne, proche de Nontron et de Saint Pardoux la Rivière.Vous avez un projet de construction, contactez Sébastien Pruvost, à qui nous avons confié cette transaction. Les honoraires d’agence sont à la charge de l’acquéreur, soit 28,21% TTC du prix hors honoraires.Les informations sur les risques auxquels ce bien est exposé sont disponibles sur le site Géorisques : www. georisques. gouv. fr.Réseau Immobilier CAPIFRANCE – Votre agent commercial (RSAC N(Numéro supprimé) – Greffe de PERIGUEUX) Sébastien PRUVOST Entrepreneur Individuel (Numéro supprimé) – Réf.921737
Saint-Martin-de-Fressengeas
TERRAIN24800 SAINT MARTIN DE FRESSENGEASEN EXCLUSIVITÉ,Chantal Jacquement vous invite à découvrir un écrin de nature préservé de 3 300 m², partiellement constructible, au coeur du Périgord Vert.Ce terrain boisé, offre une vue dégagée et apaisante sur la campagne, idéal pour ceux qui recherchent calme et intimité.Atouts majeurs :Un cadre d’exception : au coeur de la nature et à seulement 15 minutes des commodités.Potentiel constructif : Terrain en zone U et NAménagements réalisables : terrain pouvant accueillir une grande maison, une piscine entourée d’un aménagement paysager, un pool house élégant, un garage spacieux, et des espaces extérieurs soignés (jardins, terrasses, allées boisées).L’avis de votre conseillère en immobilier :Ce terrain est une pépite pour ceux qui veulent allier l’art de vivre en pleine nature et le confort moderne.Imaginez votre future maison entourée d’un paysage bucolique, d’une piscine intégrée dans un écrin de verdure, de terrasses en bois, des jardins fleuris, et d’espaces extérieurs pensés pour votre bien-être.Que vous rêviez d’une maison en bois chaleureuse ou d’une architecture contemporaine, ce terrain offre l’espace et la sérénité pour créer un cadre de vie unique, où chaque détail est conçu pour sublimer votre quotidien.Une opportunité rare à ne pas manquer.Réseaux eau et électricité à proximité.Assainissement individuel à prévoir.Prix de vente : 30000 euros – Honoraires à charge vendeur.Pour visiter et vous accompagner dans votre projet, contactez Chantal JACQUEMENT, au (Numéro supprimé) ou, par courriel à (Email supprimé).Selon l’article L.561.5 du Code Monétaire et Financier, pour l’organisation de la visite, la présentation d’une pièce d’identité vous sera demandée.Cette présente annonce a été rédigée sous la responsabilité éditoriale de Chantal JACQUEMENT agissant sous le statut d’agent commercial immatriculé au RSAC PERIGUEUX 851336743 auprès de SAS PROPRIETES PRIVEES, au capital de 44 920 euros, ZAC LE CHÊNE FERRÉ – 44 ALLÉE DES CINQ CONTINENTS 44120 VERTOU; SIRET 487 624 777 00040, RCS Nantes. Carte Professionnelle Transactions sur immeubles et fonds de commerce (T) et Gestion immobilière (G) n°CPI 4401 2016 000 010 388 délivrée par la CCI Nantes – Saint Nazaire. Compte séquestre n(Numéro supprimé)67 BPA SAINT-SEBASTIEN-SUR-LOIRE (44230). Garantie GALIAN-SMABTP – 89 rue de la Boétie, 75008 Paris – n°28137 J pour 2 000 000 euros pour T et 120 000 euros pour G. Assurance responsabilité civile professionnelle par GALIAN-SMABTP n° de police 28137.JMandat réf : 418895Le professionnel garantit et sécurise votre projet immobilier. Chantal JACQUEMENT (EI) Agent Commercial – Numéro RSAC : PERIGUEUX 851336743 – .
Champagnac-de-Belair
TERRAIN ET MAISONDans cette maison de 98 m² optimisée et chaleureuse, imaginez-vous profiter d’une grande pièce de vie de plus de 45 m² et de 3 chambres. Terrain plat de 2700 m² à Champagnac de bélair. Pour en savoir plus contactez Nicolas GRENOUILLET au (Numéro supprimé)
Nontron
TERRAINDécouvrez ce magnifique terrain à vendre, situé à Nontron, dans le département de la Dordogne. Avec une superficie généreuse de 3 545 m², ce terrain est non viabilisé et se situe en pente, offrant ainsi un potentiel unique pour la construction de votre maison idéale. Environnement arboré et ensoleillé, ce bien exceptionnel vous permet de profiter d’un cadre champêtre où la sécurité et le calme règnent en maître, le tout dans une situation idéale pour vos projets de vie. Nontron, charmante ville du Périgord vert, est réputée pour sa beauté naturelle et sa qualité de vie. Cette localité offre une multitude d’attractions locales, telles que ses marchés animés, ses artisans et ses promenades bucoliques. À proximité, vous trouverez toutes les commodités nécessaires : écoles, commerces, et infrastructures sportives, ce qui en fait un emplacement privilégié pour les familles. La Dordogne, riche de son patrimoine culturel, propose également des activités variées en pleine nature, garantissant ainsi un cadre de vie dynamique et serein. Ce terrain promet un potentiel remarquable pour réaliser votre projet de construction dans un environnement paisible. N’hésitez pas à saisir cette opportunité unique d’acquérir un bien rare sur le marché. Contactez-nous dès maintenant pour plus d’informations et pour envisager votre futur chez-vous à Nontron.
Nontron
TERRAIN ET MAISONSur ce terrain, nous vous proposons cette maison neuve Aubetière, un modèle traditionnel de la gamme Babeau-Seguin, constructeur reconnu pour offrir le meilleur rapport qualité/prix du marché. Avec une surface de 88 m², cette maison de plain-pied se compose de 4 pièces, dont 3 chambres spacieuses, idéales pour accueillir toute votre famille.L’Aubetière se distingue par son excellent rapport qualité/prix et sa conformité aux normes RE2020, garantissant une basse consommation énergétique. Vous avez la possibilité de personnaliser votre maison en choisissant entre un toit à 2 pans ou à 4 pans, ainsi qu’en ajoutant un garage ou un sous-sol selon vos besoins.Cette maison moderne et fonctionnelle est conçue pour s’adapter à vos envies et à votre mode de vie. Profitez de la flexibilité offerte par les nombreux plans et déclinaisons disponibles pour créer votre maison individuelle sur mesure.Ne manquez pas cette opportunité de donner vie à votre projet de construction avec le modèle Aubetière, une maison neuve qui allie confort, économie d’énergie et personnalisation. Contactez-nous dès maintenant pour plus d’informations et pour découvrir toutes les options disponibles pour votre future maison.
L’actualité immobilière à Saint-Front-la-Rivière
27/11/2023
02/11/2023
30/10/2023
20/10/2023
16/10/2023
16/10/2023