Images
Description
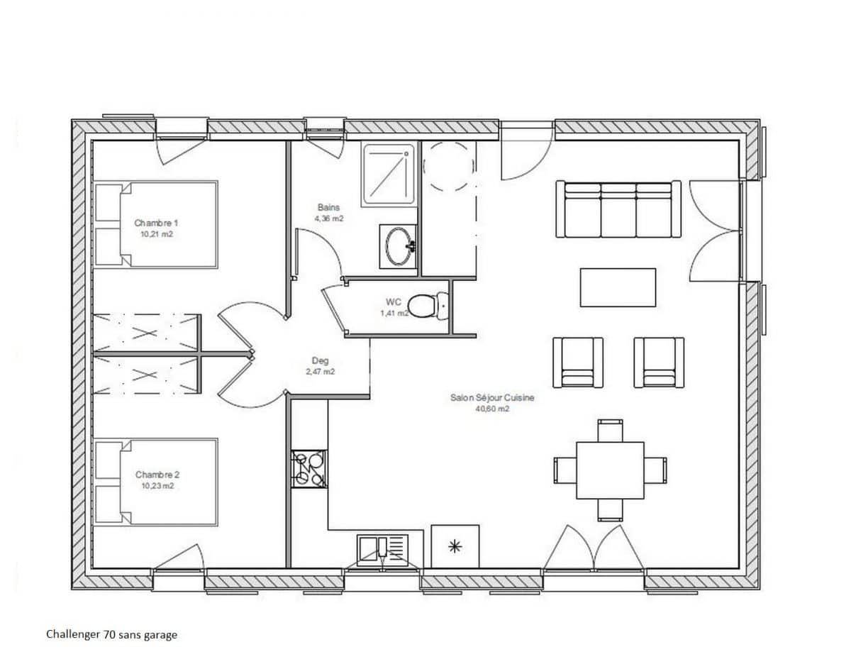
Sur ce terrain, nous vous proposons cette maison neuve : le modèle Challenger, spécialement conçu pour les primo-accédants ou les couples souhaitant bénéficier du meilleur rapport qualité/prix du marché. Avec une surface de 70 m², cette maison offre un espace de vie confortable et fonctionnel, idéal pour bien débuter dans la vie.
### Une maison neuve parfaite pour bien débuter dans la vie
La maison Challenger séduit immédiatement par ses formes simples et son intérieur confortable. Elle dispose de 3 chambres et de 4 pièces, dont un vaste séjour avec une cuisine ouverte. Les grandes portes-fenêtres assurent une excellente luminosité, créant un espace de vie agréable et chaleureux.
### Construire une petite demeure neuve coquette et sympathique
La gamme Challenger se décline en plusieurs modèles, et celui-ci, avec ses 70 m², ne fait pas exception en termes de confort. Vous pourrez profiter de 3 chambres spacieuses et d'un séjour lumineux. Chaque modèle peut être personnalisé avec un garage intégré ou un carport selon vos envies et votre budget.
### Caractéristiques principales
- Petit prix : Une maison accessible pour les primo-accédants.
- Basse consommation : Conforme à la norme RE2020, cette maison est conçue pour être économe en énergie.
- Options populaires : Enduit coloré et volets roulants disponibles pour personnaliser votre maison.
### Un extérieur moderne et séduisant
L'aspect extérieur de la maison Challenger vous fera également tomber sous le charme, avec des façades résolument modernes soulignées d'enduit bi-ton et de menuiseries assorties.
### Constructeur de confiance
Maisons Omega, détenteur du label Maisons de Qualité, est le constructeur de cette maison. Vous pouvez être assuré de la qualité et de la durabilité de votre future demeure.
Vous êtes conquis ? Vous voulez en savoir plus sur cette maison à petit prix ? Contactez-nous afin d’en parler et d'obtenir tous les détails.
Logement susceptibles de vous intéresser
Nous vous proposons de découvrir aussi cette sélection de logements situés à moins de 10km de Verteillac et qui seraient susceptibles de vous intéresser.
Verteillac
TERRAINÀ vendre à Verteillac, en Dordogne, un terrain constructible de 988 m², parfaitement plat, borné, viabilisé et raccordé au tout-à-l’égout, idéalement orienté pour une maison lumineuse et économe. Situé dans un secteur calme, ce terrain bénéficie d’un emplacement privilégié à seulement quelques minutes à pied du cœur du village. Verteillac est une commune particulièrement dynamique : commerces ouverts toute l’année (boulangerie, supérette, restaurants, pharmacie…), maison de santé, école, piscine, city-stade, nombreuses infrastructures sportives et plus de 200 événements organisés chaque année. La commune offre une vie locale riche, conviviale et recherchée, tout en restant proche des axes principaux : 10 minutes de Ribérac et environ 35 minutes d’Angoulême, ce qui en fait un emplacement stratégique pour vivre ou investir. Ce terrain au prix imbattable est une opportunité rare pour une première acquisition, un jeune couple, une personne seule ou des retraités souhaitant construire un plain-pied confortable dans un environnement agréable et vivant. Pour vous aider à vous projeter, je peux réaliser gratuitement une étude complète “maison + terrain”, avec plans, visuels 3D et budget détaillé, en tenant compte des règles locales d’urbanisme et des meilleures implantations possibles. Un service proposé par un constructeur local depuis plus de 40 ans. Pour toute question ou pour recev
Verteillac
TERRAIN ET MAISONSur ce terrain, nous vous proposons cette maison neuve : le modèle Agonac, pour ceux qui aiment vivre confortablement. Vous avez décidé de réaliser le projet de votre vie : construire votre maison neuve. Et vous souhaitez une belle maison confortable, où chacun se sentira bien. Le modèle Agonac est conçu pour répondre à toutes vos attentes. C’est une habitation belle et pratique.Agonac, une agréable maison de plain-piedC’est une maison très fonctionnelle. Avec ses 81 m², elle est parfaite pour accueillir une petite famille. Dotée de 3 chambres et de 4 pièces, elle offre un espace de vie optimisé et convivial. La chambre parentale est séparée du coin nuit « »enfant » », et dispose d’une salle d’eau privative ainsi que d’un accès direct à la terrasse, pour un confort optimal. Côté jour, le modèle Agonac propose un beau volume avec une cuisine ouverte sur le séjour, idéale pour les moments en famille ou entre amis.Sa forme en T lui donne une allure sympathique et permet de rendre plus indépendants la chambre des parents et le garage intégré. Le porche ajoute une touche d’élégance et de praticité à l’entrée de la maison.Les options les plus demandées par nos clients, telles que la modénature d’enduit et les menuiseries en aluminium, sont disponibles pour personnaliser votre maison selon vos goûts.Cette maison neuve est basse consommation et conforme à la RE2020, garantissant ainsi des performances énergétiques optimales et un respect de l’environnement.Le constructeur, Maisons Omega, détient le label Maisons de Qualité, vous assurant un niveau de prestation et de service irréprochable.Vous souhaitez en savoir plus ? Contactez-nous et nous vous donnerons tous les détails !
Verteillac
TERRAIN ET MAISONSur ce terrain, nous vous proposons cette maison neuve : le modèle Eysines. Réalisez votre projet de construction avec Maisons Omega, détenteur du label Maisons de Qualité, et faites de votre rêve une réalité.Cette maison de 92 m², conçue en plan en L, offre un cadre de vie idéal pour toute la famille. Avec ses trois chambres spacieuses et ses quatre pièces bien agencées, elle combine confort et fonctionnalité. Le modèle Eysines se distingue par son porche accueillant et son toit à deux pans ou quatre pans, selon vos préférences.L’intérieur de cette maison est pensé pour optimiser chaque mètre carré. Vous y trouverez une salle de bains moderne avec des WC séparés, un cellier pratique et un vaste salon séjour cuisine baigné de lumière. Les espaces de vie sont bien délimités, avec un coin nuit paisible et un coin jour convivial.En plus de ses atouts esthétiques et pratiques, cette maison neuve est basse consommation et conforme à la réglementation environnementale RE2020, garantissant ainsi des performances énergétiques optimales et un impact réduit sur l’environnement.Pour répondre aux attentes des clients, le modèle Eysines peut être équipé d’un Car Port, une option très demandée pour protéger vos véhicules.N’hésitez pas à nous contacter pour plus d’informations sur cette charmante maison de 92 m². Avec Maisons Omega, votre projet de construction est entre de bonnes mains.
Verteillac
TERRAINÀ vendre à Verteillac, en Dordogne, un terrain constructible de 925 m², parfaitement plat, borné, viabilisé et raccordé au tout-à-l’égout, idéalement orienté pour une maison lumineuse et économe. Situé dans un secteur calme, ce terrain bénéficie d’un emplacement privilégié à seulement quelques minutes à pied du cœur du village. Verteillac est une commune particulièrement dynamique : commerces ouverts toute l’année (boulangerie, supérette, restaurants, pharmacie…), maison de santé, école, piscine, city-stade, nombreuses infrastructures sportives et plus de 200 événements organisés chaque année. La commune offre une vie locale riche, conviviale et recherchée, tout en restant proche des axes principaux : 10 minutes de Ribérac et environ 35 minutes d’Angoulême, ce qui en fait un emplacement stratégique pour vivre ou investir. Ce terrain au prix imbattable est une opportunité rare pour une première acquisition, un jeune couple, une personne seule ou des retraités souhaitant construire un plain-pied confortable dans un environnement agréable et vivant. Pour vous aider à vous projeter, je peux réaliser gratuitement une étude complète “maison + terrain”, avec plans, visuels 3D et budget détaillé, en tenant compte des règles locales d’urbanisme et des meilleures implantations possibles. Un service proposé par un constructeur local depuis plus de 40 ans. Pour toute question ou pour recev
Verteillac
TERRAINÀ vendre à Verteillac, en Dordogne, un terrain constructible de 944 m², parfaitement plat, borné, viabilisé et raccordé au tout-à-l’égout, idéalement orienté pour une maison lumineuse et économe. Situé dans un secteur calme, ce terrain bénéficie d’un emplacement privilégié à seulement quelques minutes à pied du cœur du village. Verteillac est une commune particulièrement dynamique : commerces ouverts toute l’année (boulangerie, supérette, restaurants, pharmacie…), maison de santé, école, piscine, city-stade, nombreuses infrastructures sportives et plus de 200 événements organisés chaque année. La commune offre une vie locale riche, conviviale et recherchée, tout en restant proche des axes principaux : 10 minutes de Ribérac et environ 35 minutes d’Angoulême, ce qui en fait un emplacement stratégique pour vivre ou investir. Ce terrain au prix imbattable est une opportunité rare pour une première acquisition, un jeune couple, une personne seule ou des retraités souhaitant construire un plain-pied confortable dans un environnement agréable et vivant. Pour vous aider à vous projeter, je peux réaliser gratuitement une étude complète “maison + terrain”, avec plans, visuels 3D et budget détaillé, en tenant compte des règles locales d’urbanisme et des meilleures implantations possibles. Un service proposé par un constructeur local depuis plus de 40 ans. Pour toute question ou pour recev
Verteillac
TERRAINÀ vendre à Verteillac, en Dordogne, un terrain constructible de 1114 m², parfaitement plat, borné, viabilisé et raccordé au tout-à-l’égout, idéalement orienté pour une maison lumineuse et économe. Situé dans un secteur calme, ce terrain bénéficie d’un emplacement privilégié à seulement quelques minutes à pied du cœur du village. Verteillac est une commune particulièrement dynamique : commerces ouverts toute l’année (boulangerie, supérette, restaurants, pharmacie…), maison de santé, école, piscine, city-stade, nombreuses infrastructures sportives et plus de 200 événements organisés chaque année. La commune offre une vie locale riche, conviviale et recherchée, tout en restant proche des axes principaux : 10 minutes de Ribérac et environ 35 minutes d’Angoulême, ce qui en fait un emplacement stratégique pour vivre ou investir. Ce terrain au prix imbattable est une opportunité rare pour une première acquisition, un jeune couple, une personne seule ou des retraités souhaitant construire un plain-pied confortable dans un environnement agréable et vivant. Pour vous aider à vous projeter, je peux réaliser gratuitement une étude complète “maison + terrain”, avec plans, visuels 3D et budget détaillé, en tenant compte des règles locales d’urbanisme et des meilleures implantations possibles. Un service proposé par un constructeur local depuis plus de 40 ans. Pour toute question ou pour recevoir les plans, n’hésitez pas à
Verteillac
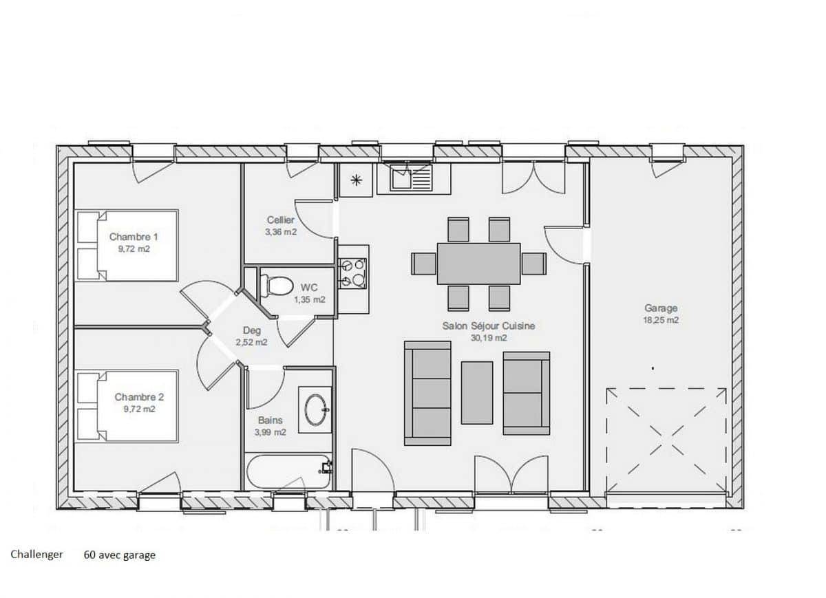
TERRAIN ET MAISONSur ce terrain, nous vous proposons cette maison neuve : le modèle Challenger, spécialement conçu pour les primo-accédants ou les couples souhaitant bénéficier du meilleur rapport qualité/prix du marché. Avec une surface de 60 m², cette maison dispose de 2 chambres et de 3 pièces ainsi que d’un garage intégré, offrant un intérieur confortable et fonctionnel qui séduit immédiatement.Construite par Maisons Omega, détenteur du label Maisons de Qualité, cette demeure coquette et sympathique est idéale pour bien débuter dans la vie. La Challenger se distingue par ses formes simples et son intérieur bien agencé. Vous y trouverez une cuisine ouverte sur un salon-séjour, baigné de lumière grâce à ses grandes portes-fenêtres.Cette maison neuve est également conforme à la RE2020, garantissant une basse consommation énergétique. Vous profiterez ainsi d’un logement respectueux de l’environnement et économique à l’usage. Parmi les options les plus demandées par nos clients, vous pouvez opter pour un enduit coloré et des volets roulants, ajoutant une touche de modernité et de confort supplémentaire à votre future maison.Son aspect extérieur ne manquera pas de vous charmer avec des façades modernes et élégantes. Vous êtes conquis ? Vous voulez en savoir plus sur cette maison à petit prix ? Contactez-nous afin d’en parler et obtenir tous les détails.
Verteillac
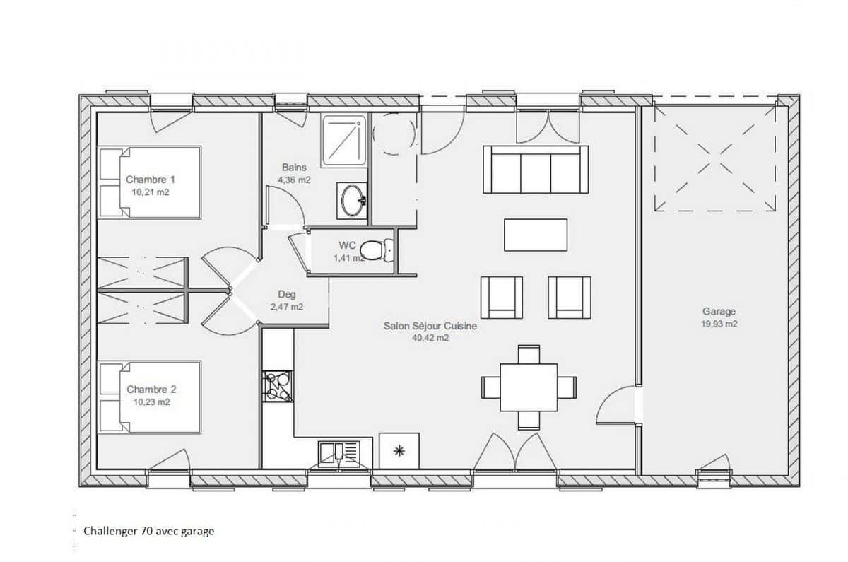
TERRAIN ET MAISONSur ce terrain, nous vous proposons cette maison neuve : le modèle Challenger, spécialement conçu pour les primo-accédants ou les couples souhaitant bénéficier du meilleur rapport qualité/prix du marché. Avec une surface de 70 m², cette maison offre un espace de vie confortable et fonctionnel, idéal pour bien débuter dans la vie.### Une maison neuve parfaite pour bien débuter dans la vieLa maison Challenger séduit immédiatement par ses formes simples et son intérieur confortable. Elle dispose de 3 chambres et de 4 pièces, dont un vaste séjour avec une cuisine ouverte. Les grandes portes-fenêtres assurent une excellente luminosité, créant un espace de vie agréable et chaleureux.### Construire une petite demeure neuve coquette et sympathiqueLa gamme Challenger se décline en plusieurs modèles, et celui-ci, avec ses 70 m², ne fait pas exception en termes de confort. Vous pourrez profiter de 3 chambres spacieuses et d’un séjour lumineux. Chaque modèle peut être personnalisé avec un garage intégré ou un carport selon vos envies et votre budget.### Caractéristiques principales- Petit prix : Une maison accessible pour les primo-accédants.- Basse consommation : Conforme à la norme RE2020, cette maison est conçue pour être économe en énergie.- Options populaires : Enduit coloré et volets roulants disponibles pour personnaliser votre maison.### Un extérieur moderne et séduisantL’aspect extérieur de la maison Challenger vous fera également tomber sous le charme, avec des façades résolument modernes soulignées d’enduit bi-ton et de menuiseries assorties. ### Constructeur de confianceMaisons Omega, détenteur du label Maisons de Qualité, est le constructeur de cette maison. Vous pouvez être assuré de la qualité et de la durabilité de votre future demeure.Vous êtes conquis ? Vous voulez en savoir plus sur cette maison à petit prix ? Contactez-nous afin d’en parler et d’obtenir tous les détails.
Verteillac
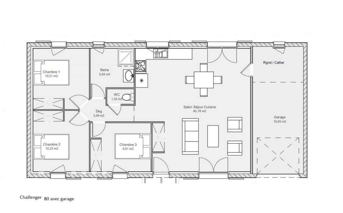
TERRAIN ET MAISONSur ce terrain, nous vous proposons cette maison neuve : le modèle Challenger, spécialement conçu pour les primo-accédants ou les couples souhaitant bénéficier du meilleur rapport qualité/prix du marché. Avec une surface de 80 m², cette maison dispose de 3 chambres et de 4 pièces, offrant un intérieur confortable et séduisant. Un très pratique garage intégré est également inclusConstruite par Maisons Omega, détenteur du label Maisons de Qualité, cette demeure neuve est parfaite pour bien débuter dans la vie. La Challenger se distingue par ses formes simples et son intérieur accueillant. Vous y trouverez une cuisine ouverte sur un salon-séjour lumineux grâce à ses grandes portes-fenêtres, assurant une belle luminosité tout au long de la journée.Cette maison neuve est également conforme à la RE2020, garantissant une basse consommation énergétique. Vous pourrez ainsi profiter d’un confort optimal tout en réalisant des économies sur vos factures d’énergie. De plus, son aspect extérieur moderne, avec des façades en enduit coloré et des volets roulants, ne manquera pas de vous séduire.Les options les plus demandées par nos clients, telles que l’enduit coloré et les volets roulants, sont disponibles pour personnaliser votre maison selon vos envies et votre budget. Vous êtes conquis par cette maison à petit prix et basse consommation ? Contactez-nous dès maintenant pour en savoir plus et discuter de votre projet avec nos experts.
L’actualité immobilière à Verteillac
27/11/2023
02/11/2023
30/10/2023
20/10/2023
16/10/2023
16/10/2023