Images
Description
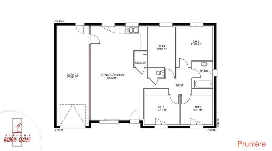
Sur ce terrain, nous vous proposons cette maison neuve, la Prunière, l’un des modèles les plus vendus par Babeau-Seguin, constructeur offrant le meilleur rapport qualité/prix du marché. Figurant dans le top 5 des maisons individuelles Babeau-Seguin, cette maison plain-pied Prunière séduit par son renfoncement qui casse la monotonie de la façade avant et offre un abri de seuil.
Avec une surface de 73 m², cette maison traditionnelle comprend 3 pièces, dont 2 chambres, et un garage intégré. Vous avez le choix entre une toiture à 2 pans ou à 4 pans, selon vos préférences esthétiques.
La Prunière est également une maison basse consommation, conforme à la réglementation environnementale RE2020, ce qui vous garantit des économies d'énergie et un confort optimal tout au long de l'année.
Si on devait retenir la Prunière, ce serait toutefois son prix ! La Prunière est en effet la maison à petit prix par excellence, tout en offrant des prestations de qualité.
Ne manquez pas cette opportunité de construire une maison qui allie confort, économie et esthétisme. Contactez-nous pour plus d'informations et pour découvrir toutes les options disponibles pour personnaliser votre future maison.
Logement susceptibles de vous intéresser
Nous vous proposons de découvrir aussi cette sélection de logements situés à moins de 10km de Cléron et qui seraient susceptibles de vous intéresser.
Cléron
TERRAINDécouvrez ce magnifique terrain viabilisé de 769 m², idéal pour un projet de construction de maison. Situé à Cléron, au cœur du département du Doubs, ce terrain offre une vue dégagée et un cadre champêtre propice à une qualité de vie exceptionnelle. Profitez d’un emplacement privilégié, sans vis-à-vis, ensoleillé et au calme, parfait pour ériger votre future résidence de rêve. À noter qu’en tant que constructeur, nous ne sommes pas mandatés pour réaliser la vente de ce terrain.
Cléron
TERRAIN ET MAISONSur ce terrain, nous vous proposons cette maison neuve, la Prunière, l’un des modèles les plus vendus par Babeau-Seguin, constructeur offrant le meilleur rapport qualité/prix du marché. Figurant dans le top 5 des maisons individuelles Babeau-Seguin, cette maison plain-pied Prunière séduit par son renfoncement qui casse la monotonie de la façade avant et offre un abri de seuil.Avec une surface de 73 m², cette maison traditionnelle comprend 3 pièces, dont 2 chambres, et un garage intégré. Vous avez le choix entre une toiture à 2 pans ou à 4 pans, selon vos préférences esthétiques.La Prunière est également une maison basse consommation, conforme à la réglementation environnementale RE2020, ce qui vous garantit des économies d’énergie et un confort optimal tout au long de l’année.Si on devait retenir la Prunière, ce serait toutefois son prix ! La Prunière est en effet la maison à petit prix par excellence, tout en offrant des prestations de qualité.Ne manquez pas cette opportunité de construire une maison qui allie confort, économie et esthétisme. Contactez-nous pour plus d’informations et pour découvrir toutes les options disponibles pour personnaliser votre future maison.
Fertans
TERRAINNous sommes ravis de vous présenter une opportunité unique d’acquérir un terrain constructible exceptionnel à FERTANS, d’une superficie généreuse de 1000 m². Ce terrain plat offre un potentiel incroyable pour la réalisation de votre projet de rêve, et nous sommes impatients de vous faire découvrir tous les avantages qu’il présente.Bien que le terrain ne dispose pas actuellement d’un permis de construire, vous aurez l’occasion de laisser libre cours à votre imagination pour concevoir une résidence à votre image, en harmonie parfaite avec l’environnement qui l’entoure. Imaginez-vous déjà vivre dans une maison conçue selon vos goûts et vos besoins, dans un lieu où la nature s’épanouit autour de vous.Il est essentiel de noter que les viabilités se trouvent en bordure du terrain et qu’il est non divisible. Cependant, il est borné et partiellement clos, garantissant ainsi une intimité préservée et vous permettant de vous projeter plus facilement dans votre futur chez-vous. De plus, une excellente nouvelle pour les amateurs de baignade : le terrain est piscinable, offrant la possibilité de créer un espace aquatique privé pour des moments de détente inoubliables.Une servitude de passage est présente dans le chemin d’accès au profit de la commune, cela est dû aux canalisations d’égouts. Cela garantit à la fois la tranquillité des lieux et l’assurance que les réseaux d’égouts sont gérés efficacement, contribuant ainsi à préserver l’environnement tout en assurant le confort de votre future demeure.En ce qui concerne l’assainissement, vous bénéficierez du système tout à l’égout, ce qui simplifiera grandement les démarches administratives liées à la gestion des eaux usées.Ce terrain constructible à FERTANS est une occasion en or qui vous permettra de concrétiser vos projets immobiliers tout en respectant l’environnement qui vous entoure. Que vous envisagiez de construire votre maison principale ou une résidence secondaire, cet emplacement est idéal pour créer un espace de vie paisible et agréable, tout en profitant d’une situation géographique privilégiée.Ne manquez pas cette chance de devenir propriétaire d’un terrain d’exception, où vos idées prendront vie et où vous pourrez construire un avenir radieux pour vous-même et vos proches.N’attendez plus pour nous contacter et organiser une visite sur place. Nous serons ravis de vous accompagner dans votre projet et de répondre à toutes vos questions.À très bientôt pour réaliser ensemble votre rêve immobilier !
Amancey
TERRAINÀ vendre : terrain de 957 m², idéal pour la construction de votre future maison. Ce terrain viabilisé, situé dans un charmant lotissement à Amancey, vous offre une occasion unique de bâtir votre projet dans un cadre paisible. Profitez de l’espace et de l’intimité qu’il procure, tout en bénéficiant d’un environnement serein pour votre famille. Amancey, situé dans le département du Doubs en région Bourgogne-Franche-Comté, se distingue par son cadre champêtre et ses commodités à proximité. La ville est réputée pour sa tranquillité et son âme authentique, offrant aux résidents un accès facile à des activités de plein air, des commerces locaux et des services de proximité. Laissez-vous séduire par les paysages environnants et la qualité de vie que cette commune peut offrir. Ce terrain représente une belle opportunité d’investissement, idéalement placé pour concrétiser vos rêves d’accession à la propriété. N’attendez plus pour découvrir le potentiel de ce bien unique ! Découvrez une vingtaine d’autres terrains à bâtir! À noter qu’en tant que constructeur, nous ne sommes pas mandatés pour réaliser la vente de ce terrain.
Amancey
TERRAIN ET MAISONSur ce terrain, nous vous proposons cette maison neuve, le modèle Ménilière, une maison plain-pied moderne qui intègre de base un garage et une longue galerie sur la face avant. Avec une surface de 100 m², cette maison dispose de 4 chambres et de 4 pièces, offrant ainsi un espace de vie confortable et fonctionnel pour toute la famille.Véritable « »tout-en-un » » de la maison individuelle, ce modèle est idéal pour votre projet de construction sur-mesure. La Ménilière est disponible avec un toit à 2 pans ou 4 pans, selon vos préférences esthétiques. Le garage intégré et la galerie avant ajoutent une touche pratique et élégante à cette maison.Les options les plus demandées par nos clients, telles que les menuiseries en aluminium et le sous-sol, sont également disponibles pour personnaliser davantage votre future maison. De plus, cette maison neuve est basse consommation et conforme à la réglementation environnementale RE2020, garantissant ainsi des performances énergétiques optimales et un impact environnemental réduit.Le constructeur Babeau-Seguin, reconnu pour offrir le meilleur rapport qualité/prix du marché, vous accompagne dans la réalisation de votre projet immobilier. Avec un prix serré et une personnalisation facile, il n’est pas étonnant que la Ménilière soit dans le top 5 des ventes de Babeau-Seguin.Ne manquez pas cette opportunité unique de devenir propriétaire d’une maison moderne, économe en énergie et parfaitement adaptée à vos besoins. Contactez-nous dès maintenant pour plus d’informations et pour planifier une visite de ce modèle exceptionnel.
Amancey
TERRAINNous avons le plaisir de vous présenter ce terrain à vendre d’une superficie de 1099 m², idéal pour un projet de construction de maison. Situé dans un environnement paisible, ce terrain viabilisé vous offre une opportunité unique d’édifier votre résidence de rêve dans la belle commune d’Amancey, dans le département du Doubs. Profitez d’un cadre de vie privilégié et d’une vue dégagée, tout en étant à proximité des commodités essentielles. Amancey, charmante commune de la région Bourgogne-Franche-Comté, se distingue par son ambiance conviviale et ses atouts indéniables. Les commerces de proximité sont facilement accessibles, vous garantissant un quotidien pratique et agréable. De plus, la région regorge d’attraits naturels et culturels, invitant à la découverte de paysages pittoresques et d’activités en plein air. Avec son emplacement idéal, ce terrain constitue une base parfaite pour profiter pleinement de tout ce que la localité et ses environs ont à offrir. N’attendez plus pour envisager cette opportunité d’achat unique et donnez vie à votre projet immobilier dans un cadre exceptionnel. Profitez également d’une vingtaine d’autres terrains! À noter qu’en tant que constructeur, nous ne sommes pas mandatés pour réaliser la vente de ce terrain.
Amancey
TERRAIN ET MAISONSur ce terrain, nous vous proposons cette maison neuve, la Sauvetière, conçue par Babeau-Seguin, constructeur offrant le meilleur rapport qualité/prix du marché. Cette maison de 107 m², à classer sans nul doute dans la catégorie des maisons modernes, sera idéale pour votre famille.La Sauvetière, une maison plain-pied traditionnelle, vous offre de base une vaste galerie et un garage accolé en rupture avec le volume principal de la construction. Son audacieux plan en forme de L, disponible en version 2 pans ou 4 pans, ne vous laissera pas indifférent.Cette maison dispose de 4 chambres spacieuses et de 4 pièces, offrant un espace de vie confortable et fonctionnel. Le garage accolé permet un accès direct à la maison, facilitant ainsi votre quotidien.L’un des atouts majeurs de la Sauvetière est sa basse consommation énergétique, conforme à la réglementation RE2020, garantissant des économies d’énergie et un confort optimal tout au long de l’année.Ne manquez pas cette opportunité unique d’acquérir une maison moderne, économe en énergie et parfaitement adaptée à vos besoins. Contactez-nous dès maintenant pour plus d’informations et pour planifier une visite.
Amancey
TERRAINTerrain à vendre à Amancey, Doubs Découvrez ce magnifique terrain viabilisé situé dans un charmant lotissement à Amancey, avec une superficie idéale pour réaliser le projet de construction de votre maison de rêve. Ce terrain représente une opportunité unique, alliant espace et tranquillité, tout en bénéficiant d’un cadre verdoyant et d’une qualité de vie exceptionnelle. Son emplacement stratégique en Bourgogne-Franche-Comté vous permettra de profiter du charme de la campagne tout en étant proche des commodités nécessaires au quotidien. Amancey, dans le département du Doubs, est une ville coup de cœur pour les amoureux de la nature et de la sérénité. Vous y trouverez un cadre champêtre apaisant où il fait bon vivre. Les attractions locales, telles que les sentiers de randonnée et les aires de loisirs, ainsi que la proximité de services divers, font de cette commune un lieu de vie agréable. En choisissant Amancey pour votre projet, vous bénéficierez d’un environnement paisible, tout en ayant accès à des commodités pratiques et à des prix attractifs. Ne laissez pas passer cette chance unique d’acquérir un terrain avec un fort potentiel pour votre future maison. Contactez nous dès aujourd’hui pour explorer cette possibilité ! Découvrez également une vingtaine d’autres parcelles! À noter qu’en tant que constructeur, nous ne sommes pas mandatés pour réaliser la vente de ce terrain.
Amancey
TERRAIN ET MAISONSur ce terrain, nous vous proposons cette maison neuve, modèle Prunière, l’un des modèles les plus vendus par Babeau-Seguin, constructeur offrant le meilleur rapport qualité/prix du marché. Figurant dans le top 5 des maisons individuelles Babeau-Seguin, cette maison plain-pied Prunière séduit par son renfoncement qui casse la monotonie de la façade avant et offre un abri de seuil.Avec une surface de 85 m², cette maison traditionnelle comprend 4 pièces, dont 3 chambres, et un garage intégré. Elle se décline en versions à 2 pans ou 4 pans, selon vos préférences. Parfaitement équipée, la Prunière est en effet la maison à petit prix par excellence.En plus de son design attrayant, cette maison neuve est basse consommation et conforme à la RE2020, garantissant ainsi des performances énergétiques optimales et un confort de vie inégalé. Ne manquez pas cette opportunité de construire la maison de vos rêves avec Babeau-Seguin, le constructeur qui allie qualité, prix et satisfaction client.
L’actualité immobilière à Cléron
27/11/2023
02/11/2023
30/10/2023
20/10/2023
16/10/2023
16/10/2023