Images
Description
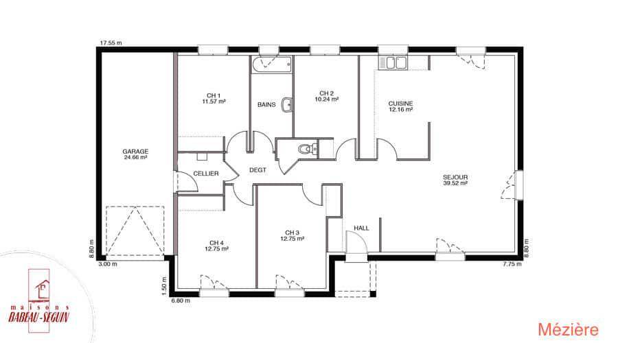
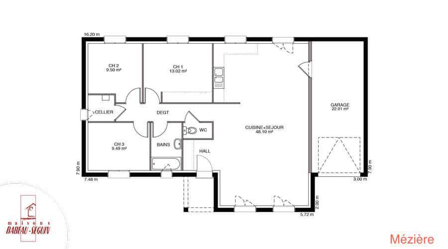
Sur ce terrain, nous vous proposons cette maison neuve, modèle Mézière, conçue par Babeau-Seguin, constructeur offrant le meilleur rapport qualité/prix du marché. Avec une surface de 88 m², cette maison de plain-pied saura répondre aux attentes de nombreuses familles grâce à ses 3 chambres et ses 4 pièces.
La Mézière se distingue par son plan en L, disponible en version 2 pans ou 4 pans, offrant ainsi une grande flexibilité pour s'adapter à vos besoins et à vos envies. Véritable maison sur mesure, elle séduit par ses nombreuses versions et options, permettant de créer un espace de vie unique et personnalisé.
Parmi les options les plus demandées par nos clients, vous trouverez les menuiseries en aluminium, la domotique pour une maison connectée, ainsi que la possibilité d'ajouter un garage ou un sous-sol. Ces options vous permettront de profiter pleinement de votre nouvelle maison, tout en bénéficiant des dernières innovations en matière de confort et de sécurité.
Cette maison neuve est également basse consommation et conforme à la réglementation environnementale RE2020, garantissant ainsi des performances énergétiques optimales et un impact réduit sur l'environnement. Vous pourrez ainsi réaliser des économies d'énergie tout en contribuant à la préservation de notre planète.
Véritable coup de cœur pour de nombreux clients Babeau-Seguin, la Mézière est une maison facilement modifiable, ce qui justifie pleinement son succès. Craquerez-vous aussi pour elle ? N'attendez plus pour découvrir cette maison d'exception et contactez-nous dès maintenant pour plus d'informations.
Logement susceptibles de vous intéresser
Nous vous proposons de découvrir aussi cette sélection de logements situés à moins de 10km de Domprel et qui seraient susceptibles de vous intéresser.
Domprel
TERRAINDécouvrez ce magnifique terrain aménagé de 825 m², à quelques minutes de Valdahon, idéalement situé dans le lotissement de Domprel, dans le Doubs, au cœur de la Bourgogne-Franche-Comté. Ce terrain viabilisé constitue une opportunité exceptionnelle pour votre projet de construction de maison. Avec sa vue dégagée sur les montagnes environnantes et son exposition ensoleillée, il offre un cadre de vie agréable, au calme, tout en étant à proximité d’axes routiers importants. Investissez dans un cadre de vie serein et verdoyant ! Domprel, une charmante commune du département du Doubs, se distingue par son atmosphère paisible et ses attraits locaux. Située à proximité des services essentiels et des commodités, cette ville offre un élan de tranquillité. Vous pourrez profiter de la beauté naturelle des environs tout en ayant accès aux activités culturelles et sportives de la région. Que ce soit pour des promenades dans la nature ou des sorties en famille, chaque jour dans cette localité est une invitation à découvrir de nouveaux horizons. Ne laissez pas passer cette opportunité unique d’acquérir un terrain au potentiel exceptionnel dans un environnement à la fois reposant et dynamique. Contactez-nous pour discuter de ce projet prometteur! À noter qu’en tant que constructeur, nous ne sommes pas mandatés pour réaliser la vente de ce terrain.
Domprel
TERRAIN ET MAISONSur ce terrain, nous vous proposons cette maison neuve, modèle Mézière, conçue par Babeau-Seguin, constructeur offrant le meilleur rapport qualité/prix du marché. Avec une surface de 88 m², cette maison de plain-pied saura répondre aux attentes de nombreuses familles grâce à ses 3 chambres et ses 4 pièces.La Mézière se distingue par son plan en L, disponible en version 2 pans ou 4 pans, offrant ainsi une grande flexibilité pour s’adapter à vos besoins et à vos envies. Véritable maison sur mesure, elle séduit par ses nombreuses versions et options, permettant de créer un espace de vie unique et personnalisé.Parmi les options les plus demandées par nos clients, vous trouverez les menuiseries en aluminium, la domotique pour une maison connectée, ainsi que la possibilité d’ajouter un garage ou un sous-sol. Ces options vous permettront de profiter pleinement de votre nouvelle maison, tout en bénéficiant des dernières innovations en matière de confort et de sécurité.Cette maison neuve est également basse consommation et conforme à la réglementation environnementale RE2020, garantissant ainsi des performances énergétiques optimales et un impact réduit sur l’environnement. Vous pourrez ainsi réaliser des économies d’énergie tout en contribuant à la préservation de notre planète.Véritable coup de cœur pour de nombreux clients Babeau-Seguin, la Mézière est une maison facilement modifiable, ce qui justifie pleinement son succès. Craquerez-vous aussi pour elle ? N’attendez plus pour découvrir cette maison d’exception et contactez-nous dès maintenant pour plus d’informations.
Vercel-Villedieu-le-Camp
TERRAIN ET MAISONSur ce terrain, nous vous proposons cette maison neuve : la Provencière Urban Serie, un modèle moderne qui s’adapte parfaitement aux terrains urbains. Avec une surface de 82 m², cette maison dispose de 3 chambres et d’une pièce de vie spacieuse. Inspirée de l’architecture typique des maisons du sud de la France, la Provencière Urban Serie conserve tout le charme et le confort de la Provencière traditionnelle, tout en étant optimisée pour les terrains urbains. Avec une longueur de façade variant de 12 à 16 mètres, elle s’adapte à tous les terrains et permet de profiter des charmes de la Provencière où que vous souhaitiez faire construire.Les caractéristiques principales de cette maison incluent un garage intégré, une dalle étage en béton et des combles aménagés, offrant ainsi un espace de vie supplémentaire. Les options les plus demandées par nos clients, telles que la charpente traditionnelle, les menuiseries en aluminium et l’enduit bi-ton, sont également disponibles pour personnaliser votre maison selon vos goûts.Cette maison neuve est basse consommation et conforme à la réglementation environnementale RE2020, garantissant ainsi une performance énergétique optimale et un confort de vie inégalé.Le constructeur Babeau-Seguin, reconnu pour offrir le meilleur rapport qualité/prix du marché, vous accompagne dans la réalisation de votre projet immobilier. Ne manquez pas cette opportunité unique de devenir propriétaire d’une maison alliant tradition et modernité, parfaitement adaptée aux terrains urbains.
Vercel-Villedieu-le-Camp
TERRAINNous avons le plaisir de vous présenter ce charmant terrain à vendre d’une surface généreuse de 380 m², offrant un potentiel de construction exceptionnel pour votre future maison. Situé à Vercel-Villedieu-le-Camp, ce terrain non viabilisé se distingue par sa tranquillité, son ensoleillement optimal et sa qualité de vie incomparable. Parfaitement adapté à un projet de construction résidentielle, il offre un cadre champêtre et apaisant où il fait bon vivre. À noter qu’en tant que constructeur, nous ne sommes pas mandatés pour réaliser la vente de ce terrain.
Flangebouche
TERRAINNous vous présentons un terrain d’exception situé à Flangebouche, dans le Doubs. S’étendant sur une surface généreuse de 727 m², ce terrain viabilisé offre toutes les caractéristiques idéales pour la construction de votre future maison. Imaginez un projet immobilier unique dans un environnement paisible et accueillant, où vous pourrez créer le foyer de vos rêves. Flangebouche, charmante commune de Bourgogne-Franche-Comté, se distingue par son cadre de vie agréable et ses nombreuses commodités. Localisée au cœur de la ville, cette région est proche de toutes les infrastructures nécessaires tout en bénéficiant d’une vue dégagée. Vous profiterez des attraits locaux, notamment des espaces verts, des loisirs de plein air et une proximité avec la frontière, qui permettent d’accéder facilement aux grandes agglomérations environnantes. Ce secteur promet un cadre de vie serein tout en restant dynamique. Ne manquez pas cette opportunité d’acquérir un terrain au potentiel remarquable, idéal pour concrétiser vos projets de vie. Contactez-nous dès aujourd’hui pour explorer cette offre unique. À noter qu’en tant que constructeur, nous ne sommes pas mandatés pour réaliser la vente de ce terrain.
Flangebouche
TERRAIN ET MAISONSur ce terrain, nous vous proposons cette maison neuve, le modèle Ménilière, une maison plain-pied moderne qui intègre de base un garage et une longue galerie sur la face avant. Avec une surface de 100 m², cette maison dispose de 4 chambres et de 4 pièces, offrant ainsi un espace de vie confortable et fonctionnel pour toute la famille.Véritable « »tout-en-un » » de la maison individuelle, ce modèle est idéal pour votre projet de construction sur-mesure. La Ménilière est disponible avec un toit à 2 pans ou 4 pans, selon vos préférences esthétiques. Le garage intégré et la galerie avant ajoutent une touche pratique et élégante à cette maison.Les options les plus demandées par nos clients, telles que les menuiseries en aluminium et le sous-sol, sont également disponibles pour personnaliser davantage votre future maison. De plus, cette maison neuve est basse consommation et conforme à la réglementation environnementale RE2020, garantissant ainsi des performances énergétiques optimales et un impact environnemental réduit.Le constructeur Babeau-Seguin, reconnu pour offrir le meilleur rapport qualité/prix du marché, vous accompagne dans la réalisation de votre projet immobilier. Avec un prix serré et une personnalisation facile, il n’est pas étonnant que la Ménilière soit dans le top 5 des ventes de Babeau-Seguin.Ne manquez pas cette opportunité unique de devenir propriétaire d’une maison moderne, économe en énergie et parfaitement adaptée à vos besoins. Contactez-nous dès maintenant pour plus d’informations et pour planifier une visite de ce modèle exceptionnel.
Flangebouche
TERRAINÀ la recherche d’un terrain d’exception pour concrétiser votre projet de construction de maison ? Ne cherchez plus ! Nous vous proposons un terrain viabilisé de 792 m² idéalement situé à Flangebouche, dans le Doubs. Ce lotissement offre une opportunité rare de réaliser le foyer de vos rêves dans un cadre paisible, tout en profitant d’une vue dégagée. Flangebouche allie intégration dans la nature et confort moderne, parfait pour construire la maison dont vous avez toujours rêvé. Flangebouche, charmante commune de Bourgogne-Franche-Comté, bénéficie d’une situation géographique privilégiée. La ville se trouve au cœur d’un environnement accueillant, avec toutes les commodités à proximité : commerces, écoles et loisirs. Profitez des attractions locales tout en étant à deux pas de la frontière, offrant ainsi un accès facile aux grandes villes voisines. Vous serez séduit par le cadre paisible et les opportunités offertes par ce secteur en plein développement. Ce terrain représente une occasion en or pour les futurs propriétaires. N’attendez plus pour envisager cet investissement dans un cadre de vie paisible et bien situé. Découvrez également une autre parcelle de 727?m² dans ce même lotissement. À noter qu’en tant que constructeur, nous ne sommes pas mandatés pour réaliser la vente de ce terrain.
Flangebouche
TERRAIN ET MAISONSur ce terrain, nous vous proposons cette maison neuve, le modèle Ménilière, une maison plain-pied moderne qui intègre de base un garage et une longue galerie sur la face avant. Avec une surface de 100 m², cette maison dispose de 4 chambres et de 4 pièces, offrant ainsi un espace de vie confortable et fonctionnel pour toute la famille.Véritable « »tout-en-un » » de la maison individuelle, ce modèle est idéal pour votre projet de construction sur-mesure. La Ménilière est disponible avec un toit à 2 pans ou 4 pans, selon vos préférences esthétiques. Le garage intégré et la galerie avant ajoutent une touche pratique et élégante à cette maison.Les options les plus demandées par nos clients, telles que les menuiseries en aluminium et le sous-sol, sont également disponibles pour personnaliser davantage votre future maison. De plus, cette maison neuve est basse consommation et conforme à la réglementation environnementale RE2020, garantissant ainsi des performances énergétiques optimales et un impact environnemental réduit.Le constructeur Babeau-Seguin, reconnu pour offrir le meilleur rapport qualité/prix du marché, vous accompagne dans la réalisation de votre projet immobilier. Avec un prix serré et une personnalisation facile, il n’est pas étonnant que la Ménilière soit dans le top 5 des ventes de Babeau-Seguin.Ne manquez pas cette opportunité unique de devenir propriétaire d’une maison moderne, économe en énergie et parfaitement adaptée à vos besoins. Contactez-nous dès maintenant pour plus d’informations et pour planifier une visite de ce modèle exceptionnel.
Guyans-Vennes
TERRAIN(RE)COMMENCEZ À RÊVER DE VOTRE MAISON ! TERRAINS À BÂTIR ÉLIGIBLES AU PRÊT À TAUX ZÉRO*Accueil téléphonique : du lundi au samedi, de 8H00 à 19H00Venez découvrir nos terrains à bâtir, prêts à construire à Guyans-Vennes (25) !Petit village charmant de l’est de la France faisant partie de la Communauté de Communes des Portes du Haut-Doubs, Guyans-Vennes offre un cadre de vie très agréable. Niché sur des sommets boisés, Guyans-Vennes domine le site exceptionnel du Cirque de Consolation. À seulement 20 min de la frontière suisse et à 45 km de Pontarlier, c’est une commune dynamique et convoitée.Situé dans un quartier résidentiel de Guyans-Vennes, le lotissement Sur le Mont bénéficie d’un emplacement d’exception. Au cour d’un espace verdoyant, ce site est une adresse idéale pour les amoureux de la nature. Tous les commerces et services du quotidien sont accessibles à proximité.Le site Sur le Mont compte 10 terrains à bâtir viabilisés, entre 600 et 880 m², destinés à la construction de maisons indivi Les informations sur l’état des risques auxquels ce bien est exposé sont disponibles sur le site Géorisques : www.georisques.gouv.fr
L’actualité immobilière à Domprel
27/11/2023
02/11/2023
30/10/2023
20/10/2023
16/10/2023
16/10/2023