Images
Description
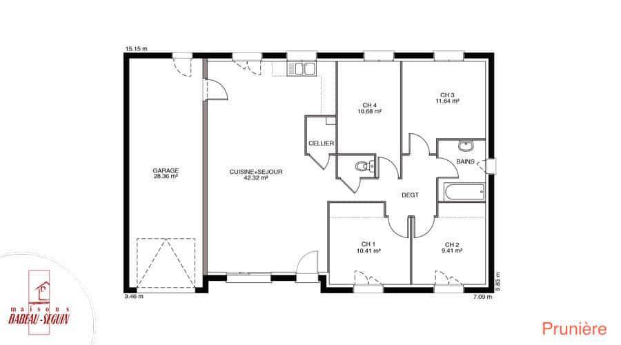
Sur ce terrain, nous vous proposons cette maison neuve, la Prunière, l’un des modèles les plus vendus par Babeau-Seguin, constructeur offrant le meilleur rapport qualité/prix du marché. Figurant dans le top 5 des maisons individuelles Babeau-Seguin, cette maison plain-pied Prunière séduit par son renfoncement qui casse la monotonie de la façade avant et offre un abri de seuil.
Avec une surface de 73 m², cette maison traditionnelle comprend 3 pièces, dont 2 chambres, et un garage intégré. Vous avez le choix entre une toiture à 2 pans ou à 4 pans, selon vos préférences esthétiques.
La Prunière est également une maison basse consommation, conforme à la réglementation environnementale RE2020, ce qui vous garantit des économies d'énergie et un confort optimal tout au long de l'année.
Si on devait retenir la Prunière, ce serait toutefois son prix ! La Prunière est en effet la maison à petit prix par excellence, tout en offrant des prestations de qualité.
Ne manquez pas cette opportunité de construire une maison qui allie confort, économie et esthétisme. Contactez-nous pour plus d'informations et pour découvrir toutes les options disponibles pour personnaliser votre future maison.
Logement susceptibles de vous intéresser
Nous vous proposons de découvrir aussi cette sélection de logements situés à moins de 10km de Étouvans et qui seraient susceptibles de vous intéresser.
Sainte-Suzanne
TERRAINterrain à bâtir LIBRE CHOICX CONSTRUCTEUR – programme ‘ Les Balcons de Sainte Suzanne’ vue dégagée – environnement calme – tous services et commerces à 5 minutes – viabilisé – prêt à construire -. N’hésitez plus – contactez nous vite !REF;1_5_589
Montbéliard
TERRAINPRIX EN BAISSE :MONTBELIARD ‘Les Hauts du Prés La Rose’ – terrains entièrement viabilisés – LIBRE DE CHOIX CONSTRUCTEUR – ce projet bénéficie de tous les services et commerces de proximité utiles au quotidien – Accès autoroute rapide – Contactez- nous vite ! (votre construction en TVA réduite possible- 5.5 % – voir conditions en agenceREF;1_5_586
Bourguignon
TERRAINTerrain à bâtir viabilisé LIBRE CONSTRUCTEUR, à BOURGUIGNON lotissement LA PLAINE , lot n°1Proximité Pont de roide, accès rapide via A36,Le calme proche des commodités et commercesContactez nous rapidement !REF;1_5_653
Montbéliard
TERRAINPRIX EN BAISSE :MONTBELIARD ‘Les Hauts du Prés La Rose’ – terrains entièrement viabilisés – LIBRE DE CHOIX CONSTRUCTEUR – ce projet bénéficie de tous les services et commerces de proximité utiles au quotidien – Accès autoroute rapide – Contactez- nous vite ! (votre construction en TVA réduite possible- 5.5 % – voir conditions en agenceREF;1_5_391
Montbéliard
TERRAINPRIX EN BAISSE MONTBELIARD ‘Les Hauts du Prés La Rose’ – terrains entièrement viabilisés – LIBRE DE CHOIX CONSTRUCTEUR – ce projet bénéficie de tous les services et commerces de proximité utiles au quotidien – Accès autoroute rapide – Contactez- nous vite ! (votre construction en TVA réduite possible- 5.5 % – voir conditions en agenceREF;1_5_458
Bavans
TERRAINTerrain entièrement viabilisé – programme ‘ Les Hauts de Bavans’ – LIBRE DE CHOIX CONSTRUCTEUR – commerces, services, écoles sur la Commune – Construisez votre maison à BAVANS ! Contactez nous pour réserver votre terrain !REF;1_5_359
Bavans
TERRAINGrande parcelle – prête à construire – 100 % viabilisé – LIBRE CHOIX CONSTRUCTEUR ‘ Les Hauts de Bavans’ LIBRE DE CHOIX CONSTRUCTEUR – commerces, services, écoles sur la commune – Accès autoroutier – Contactez nous vite pour réserver votre terrain !REF;1_5_361
Sainte-Suzanne
TERRAINEMPLACEMENT PRIVILEGIE ! parcelle prête à bâtir – LIBRE DE CHOIX CONSTRUCTEUR – programme ‘Les Balcons de Sainte Suzanne’ tous services et commerces à proximité – Groupe scolaire sur la Commune – environnement calme – proche espaces naturels – Frais de notaire réduit – Contactez nous vite !REF;1_5_333
Désandans
TERRAIN ET MAISONPORTES OUVERTES les ven.14 et sam. 15 novembre 2025 à KAPPELEN (68), GRIESHEIM-PRES-MOLSHEIM (67) & WEITBRUCH (67).Visitez nos 3 maisons, échangeons sur votre projet personnalisé et découvrez en exclusivité les opportunités de terrains à vendre dans le Bas-Rhin, le Haut-Rhin et le Territoire de Belfort.Infos, adresses et inscriptions sur notre site internetA DESANDANS sur un terrain de 2300 m², MAISONS STÉPHANE BERGER vous propose de réaliser cette maison neuve d'une surface de 112 m² habitables avec 4 chambres.Caractéristiques principales :• 4 chambres spacieuses, dont une suite parentale pour votre confort.• Un espace de vie lumineux, sublimé par de grandes baies vitrées qui baignent le séjour de lumière naturelle.• Une cuisine ouverte pour des moments de convivialité. Vous préférez une cuisine fermée ? Pas de souci, nous adaptons votre plan à vos envies.• Une salle de bain familiale pensée pour le quotidien.• Un jardin privé, parfait pour des instants de détente en plein air.Personnalisation à votre image :Chaque détail de ce projet peut être ajusté pour répondre à vos goûts et à vos besoins :• Agrandissements• Ajouts de fonctionnalités spécifiques• Choix de matériaux et finitionsUne maison pensée pour vous ! Entièrement personnalisable et évolutive, elle s’adapte à vos envies et à vos projets futurs, pour un confort durable au quotidien. Avec « Mon Évolutive », vous profitez d’une maison prête à vous accompagner tout au long de votre vie.Pourquoi choisir MAISONS STÉPHANE BERGER ?Une marque du Groupe Vivialys, nos maisons sont construites dans le respect du Contrat de Construction de Maison Individuelle (CCMI). Cela vous garantit :• Qualité• Respect des délais• Maîtrise du budgetEt pour une tranquillité d'esprit absolue, notre trio de garanties #EnTouteQuiétude vous protège face aux imprévus de la vie.Créez votre maison sur mesure dès aujourd'hui !Contactez-nous pour discuter de votre projet et explorer toutes les possibilités.Contactez Luc POUILLY au (Numéro supprimé) (Maisons Stéphane Berger – Secteur SUD ALSACE).Prix avec assurance dommages-ouvrage comprise, hors VRD, viabilisation comprise, frais de notaire compris, frais divers compris. Terrain sélectionné et vu pour vous sous réserve de disponibilité et au prix indiqué par notre partenaire foncier. Conditions et visuels non contractuels.
L’actualité immobilière à Étouvans
27/11/2023
02/11/2023
30/10/2023
20/10/2023
16/10/2023
16/10/2023