Images
Description
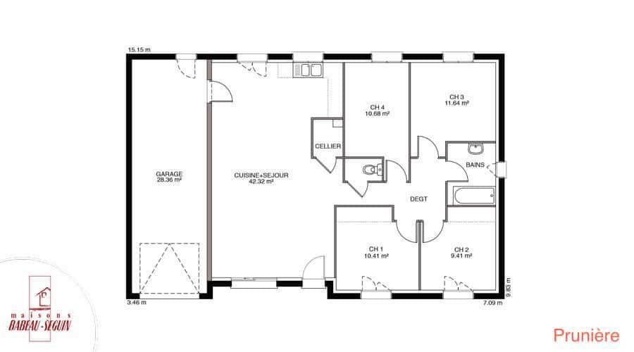
Sur ce terrain, nous vous proposons cette maison neuve, la Prunière, l’un des modèles les plus vendus par Babeau-Seguin, constructeur offrant le meilleur rapport qualité/prix du marché. Figurant dans le top 5 des maisons individuelles Babeau-Seguin, cette maison plain-pied Prunière séduit par son renfoncement qui casse la monotonie de la façade avant et offre un abri de seuil.
Avec une surface de 73 m², cette maison traditionnelle comprend 3 pièces, dont 2 chambres, et un garage intégré. Vous avez le choix entre une toiture à 2 pans ou à 4 pans, selon vos préférences esthétiques.
La Prunière est également une maison basse consommation, conforme à la réglementation environnementale RE2020, ce qui vous garantit des économies d'énergie et un confort optimal tout au long de l'année.
Si on devait retenir la Prunière, ce serait toutefois son prix ! La Prunière est en effet la maison à petit prix par excellence, tout en offrant des prestations de qualité.
Ne manquez pas cette opportunité de construire une maison qui allie confort, économie et esthétisme. Contactez-nous pour plus d'informations et pour découvrir toutes les options disponibles pour personnaliser votre future maison.
Logement susceptibles de vous intéresser
Nous vous proposons de découvrir aussi cette sélection de logements situés à moins de 10km de Montenois et qui seraient susceptibles de vous intéresser.
Montenois
TERRAIN ET MAISONSur ce terrain, nous vous proposons cette maison neuve, la Prunière, l’un des modèles les plus vendus par Babeau-Seguin, constructeur offrant le meilleur rapport qualité/prix du marché. Figurant dans le top 5 des maisons individuelles Babeau-Seguin, cette maison plain-pied Prunière séduit par son renfoncement qui casse la monotonie de la façade avant et offre un abri de seuil.Avec une surface de 73 m², cette maison traditionnelle comprend 3 pièces, dont 2 chambres, et un garage intégré. Vous avez le choix entre une toiture à 2 pans ou à 4 pans, selon vos préférences esthétiques.La Prunière est également une maison basse consommation, conforme à la réglementation environnementale RE2020, ce qui vous garantit des économies d’énergie et un confort optimal tout au long de l’année.Si on devait retenir la Prunière, ce serait toutefois son prix ! La Prunière est en effet la maison à petit prix par excellence, tout en offrant des prestations de qualité.Ne manquez pas cette opportunité de construire une maison qui allie confort, économie et esthétisme. Contactez-nous pour plus d’informations et pour découvrir toutes les options disponibles pour personnaliser votre future maison.
Montenois
TERRAINDécouvrez ce terrain exceptionnel de 686 m², prêt à accueillir votre projet de construction de maison. Situé dans un charmant lotissement viabilisé à Montenois, ce terrain offre une magnifique vue dégagée sans vis-à-vis, garantissant un cadre de vie paisible et serein. Parfaitement ensoleillé et entouré d’un environnement champêtre, il représente l’endroit idéal pour bâtir votre future maison familiale ou votre havre de paix. À noter qu’en tant que constructeur, nous ne sommes pas mandatés pour réaliser la vente de ce terrain.
Bart
TERRAIN ET MAISONSur ce terrain, nous vous proposons cette maison neuve, la Ménilière, un modèle plain-pied moderne qui saura répondre à toutes vos attentes. Avec une surface de 73 m², cette maison dispose de 3 pièces, dont 2 chambres, et intègre de base un garage ainsi qu’une longue galerie sur la face avant.Véritable « »tout-en-un » » de la maison individuelle, la Ménilière est idéale pour votre projet de construction sur-mesure. Elle est disponible avec un toit à 2 pans ou 4 pans, selon vos préférences esthétiques. Le garage intégré et la galerie avant ajoutent une touche de praticité et de confort à votre quotidien.Parmi les options les plus demandées par nos clients, vous pouvez opter pour des menuiseries en aluminium et un sous-sol, afin de personnaliser encore davantage votre future maison.Cette maison neuve est basse consommation et conforme à la RE2020, garantissant ainsi des performances énergétiques optimales et un respect des normes environnementales actuelles.Le constructeur Babeau-Seguin, reconnu pour offrir le meilleur rapport qualité/prix du marché, vous accompagne dans la réalisation de votre projet de vie. Avec un prix serré et une personnalisation facile, il n’est pas étonnant que la Ménilière soit dans le top 5 des ventes de Babeau-Seguin.Ne manquez pas cette opportunité unique de devenir propriétaire d’une maison moderne, fonctionnelle et économe en énergie. Contactez-nous dès maintenant pour plus d’informations et pour visiter ce modèle sur notre terrain.
Bart
TERRAINDécouvrez ce terrain exceptionnel à vendre, offrant une surface généreuse dans la charmante commune de Bart, située dans le département du Doubs. Ce terrain viabilisé, sans vis-à-vis, se présente comme l’emplacement idéal pour concrétiser votre projet de construction de maison. Profitez d’un environnement calme et ensoleillé, propice à l’épanouissement et à la sérénité, tout en bénéficiant d’une qualité de vie incomparable. Ce terrain présente un potentiel remarquable pour ceux désirant bâtir leur maison de rêve dans un cadre idyllique. Ne laissez pas passer cette opportunité unique d’investir dans un bien immobilier de choix à Bart. Contactez-nous pour plus d’informations et laissez libre cours à votre imagination !
Arcey
TERRAIN ET MAISONSur ce terrain, nous vous proposons cette maison neuve, la Prunière, l’un des modèles les plus vendus par Babeau-Seguin, constructeur offrant le meilleur rapport qualité/prix du marché. Figurant dans le top 5 des maisons individuelles Babeau-Seguin, cette maison plain-pied Prunière séduit par son renfoncement qui casse la monotonie de la façade avant et offre un abri de seuil.Avec une surface de 73 m², cette maison traditionnelle comprend 3 pièces, dont 2 chambres, et un garage intégré. Vous avez le choix entre une toiture à 2 pans ou à 4 pans, selon vos préférences esthétiques.La Prunière est également une maison basse consommation, conforme à la réglementation environnementale RE2020, ce qui vous garantit des économies d’énergie et un confort optimal tout au long de l’année.Si on devait retenir la Prunière, ce serait toutefois son prix ! La Prunière est en effet la maison à petit prix par excellence, tout en offrant des prestations de qualité.Ne manquez pas cette opportunité de construire une maison qui allie confort, économie et esthétisme. Contactez-nous pour plus d’informations et pour découvrir toutes les options disponibles pour personnaliser votre future maison.
Arcey
TERRAINVous rêvez de construire votre maison idéale dans un cadre champêtre et paisible ? Ce terrain à vendre à Arcey, dans le département du Doubs, est l’opportunité dont vous avez toujours rêvé. Avec ses 650m2, ce terrain en lotissement, viabilisé, offre un véritable potentiel pour créer un lieu de vie unique et personnalisé. Situé dans la charmante commune d’Arcey, réputée pour sa qualité de vie et son ambiance conviviale, ce terrain se trouve à proximité immédiate des commodités telles que les commerces et les écoles. Vous pourrez ainsi profiter des avantages de la vie à la campagne tout en ayant un accès facile aux services essentiels.
Désandans
TERRAIN ET MAISONPORTES OUVERTES les ven.14 et sam. 15 novembre 2025 à KAPPELEN (68), GRIESHEIM-PRES-MOLSHEIM (67) & WEITBRUCH (67).Visitez nos 3 maisons, échangeons sur votre projet personnalisé et découvrez en exclusivité les opportunités de terrains à vendre dans le Bas-Rhin, le Haut-Rhin et le Territoire de Belfort.Infos, adresses et inscriptions sur notre site internetA DESANDANS sur un terrain de 2300 m², MAISONS STÉPHANE BERGER vous propose de réaliser cette maison neuve d'une surface de 112 m² habitables avec 4 chambres.Caractéristiques principales :• 4 chambres spacieuses, dont une suite parentale pour votre confort.• Un espace de vie lumineux, sublimé par de grandes baies vitrées qui baignent le séjour de lumière naturelle.• Une cuisine ouverte pour des moments de convivialité. Vous préférez une cuisine fermée ? Pas de souci, nous adaptons votre plan à vos envies.• Une salle de bain familiale pensée pour le quotidien.• Un jardin privé, parfait pour des instants de détente en plein air.Personnalisation à votre image :Chaque détail de ce projet peut être ajusté pour répondre à vos goûts et à vos besoins :• Agrandissements• Ajouts de fonctionnalités spécifiques• Choix de matériaux et finitionsUne maison pensée pour vous ! Entièrement personnalisable et évolutive, elle s’adapte à vos envies et à vos projets futurs, pour un confort durable au quotidien. Avec « Mon Évolutive », vous profitez d’une maison prête à vous accompagner tout au long de votre vie.Pourquoi choisir MAISONS STÉPHANE BERGER ?Une marque du Groupe Vivialys, nos maisons sont construites dans le respect du Contrat de Construction de Maison Individuelle (CCMI). Cela vous garantit :• Qualité• Respect des délais• Maîtrise du budgetEt pour une tranquillité d'esprit absolue, notre trio de garanties #EnTouteQuiétude vous protège face aux imprévus de la vie.Créez votre maison sur mesure dès aujourd'hui !Contactez-nous pour discuter de votre projet et explorer toutes les possibilités.Contactez Luc POUILLY au (Numéro supprimé) (Maisons Stéphane Berger – Secteur SUD ALSACE).Prix avec assurance dommages-ouvrage comprise, hors VRD, viabilisation comprise, frais de notaire compris, frais divers compris. Terrain sélectionné et vu pour vous sous réserve de disponibilité et au prix indiqué par notre partenaire foncier. Conditions et visuels non contractuels.
Désandans
TERRAIN ET MAISONPORTES OUVERTES les ven.14 et sam. 15 novembre 2025 à KAPPELEN (68), GRIESHEIM-PRES-MOLSHEIM (67) & WEITBRUCH (67).Visitez nos 3 maisons, échangeons sur votre projet personnalisé et découvrez en exclusivité les opportunités de terrains à vendre dans le Bas-Rhin, le Haut-Rhin et le Territoire de Belfort.Infos, adresses et inscriptions sur notre site internetCe projet à Désandans allie confort, élégance et personnalisation sur un terrain de 604 m². Caractéristiques principales :• 4 chambres spacieuses, dont une suite parentale pour votre confort.• Un espace de vie lumineux, sublimé par de grandes baies vitrées qui baignent le séjour de lumière naturelle.• Une cuisine ouverte pour des moments de convivialité. Vous préférez une cuisine fermée ? Pas de souci, nous adaptons votre plan à vos envies.• Une salle de bain familiale pensée pour le quotidien.• Un jardin privé, parfait pour des instants de détente en plein air.Personnalisation à votre image :Chaque détail de ce projet peut être ajusté pour répondre à vos goûts et à vos besoins :• Agrandissements• Ajouts de fonctionnalités spécifiques• Choix de matériaux et finitionsUne maison pensée pour vous ! Entièrement personnalisable et évolutive, elle s’adapte à vos envies et à vos projets futurs, pour un confort durable au quotidien. Avec « Mon Évolutive », vous profitez d’une maison prête à vous accompagner tout au long de votre vie.Pourquoi choisir MAISONS STÉPHANE BERGER ?Une marque du Groupe Vivialys, nos maisons sont construites dans le respect du Contrat de Construction de Maison Individuelle (CCMI). Cela vous garantit :• Qualité• Respect des délais• Maîtrise du budgetEt pour une tranquillité d'esprit absolue, notre trio de garanties #EnTouteQuiétude vous protège face aux imprévus de la vie.Créez votre maison sur mesure dès aujourd'hui !Contactez-nous pour discuter de votre projet et explorer toutes les possibilités.Contactez Luc POUILLY au (Numéro supprimé) Maisons Stéphane Berger BELFORTPrix avec assurance dommages-ouvrage comprise, hors VRD, viabilisation comprise, frais de notaire compris, frais divers compris. Terrain sélectionné et vu pour vous sous réserve de disponibilité et au prix indiqué par notre partenaire foncier. Conditions et visuels non contractuels.
L’actualité immobilière à Montenois
27/11/2023
02/11/2023
30/10/2023
20/10/2023
16/10/2023
16/10/2023