Images
Description
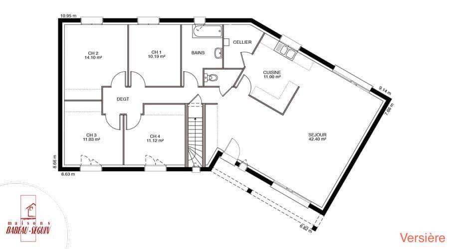
Sur ce terrain, nous vous proposons cette maison neuve : la Versière. Avec ses 92 m² de surface habitable, cette maison de plain-pied se distingue par son plan en V, offrant un brin d’originalité et une grande habitabilité. Elle dispose de 3 chambres et de 4 pièces, parfaitement adaptées pour une famille.
La Versière vous permet de choisir entre une toiture à 2 pans ou à 4 pans, selon vos préférences esthétiques. De plus, elle peut être équipée, en option, d'un garage ou d'un sous-sol, pour répondre à vos besoins de rangement ou de stationnement.
Les grandes baies coulissantes apportent une luminosité naturelle exceptionnelle à l'intérieur de la maison, créant un espace de vie agréable et convivial. Les options les plus demandées par nos clients, telles que les menuiseries en aluminium et la domotique, sont également disponibles pour cette maison, vous permettant de personnaliser votre habitat selon vos envies.
Cette maison neuve est 100% économique grâce au respect de la nouvelle réglementation énergétique RE2020, garantissant une basse consommation énergétique. Vous bénéficierez ainsi d'un confort optimal tout en réalisant des économies sur vos factures d'énergie.
Le constructeur Babeau-Seguin, reconnu pour offrir le meilleur rapport qualité/prix du marché, vous accompagne dans la réalisation de ce projet. N'hésitez plus et optez pour la Versière, une maison moderne, économique et personnalisable, parfaitement adaptée à vos besoins et à votre style de vie.
Logement susceptibles de vous intéresser
Nous vous proposons de découvrir aussi cette sélection de logements situés à moins de 10km de Pouilley-les-Vignes et qui seraient susceptibles de vous intéresser.
Pouilley-Français
TERRAINDu 15 septembre au 14 novembre, bénéficiez d’une remise de 1 500€ sur vos frais de notaire pour toute réservation d’un terrain à bâtir.*Accueil téléphonique : du lundi au samedi, de 8H00 à 19H00Terrains prêts à construire !Située dans le département du Doubs, en région Bourgogne-Franche-Comté, la commune de Pouilley-Français offre un cadre de vie agréable. Village authentique, Pouilley-Français propose à ses habitants une charmante église néo-classique construite dans les années 1838-1841. Commune ouverte sur la nature, elle saura séduire les amateurs de randonnées et d’activités en plein air.Au cour d’un quartier résidentiel de Pouilley-Français, le lotissement La Clé des Champs bénéficie d’une situation idéale. À proximité du centre historique du village et des grands axes principaux, ce lotissement profite d’une adresse très connectée. Toutes les commodités et services sont accessibles à proximité.Le site La Clé des Champs compte 38 terrains à bâtir viabilisés dont 1 terrain intermédiaire Les informations sur l’état des risques auxquels ce bien est exposé sont disponibles sur le site Géorisques : www.georisques.gouv.fr
Pouilley-Français
TERRAINDu 15 septembre au 14 novembre, bénéficiez d’une remise de 1 500€ sur vos frais de notaire pour toute réservation d’un terrain à bâtir.*Accueil téléphonique : du lundi au samedi, de 8H00 à 19H00Terrains prêts à construire !Située dans le département du Doubs, en région Bourgogne-Franche-Comté, la commune de Pouilley-Français offre un cadre de vie agréable. Village authentique, Pouilley-Français propose à ses habitants une charmante église néo-classique construite dans les années 1838-1841. Commune ouverte sur la nature, elle saura séduire les amateurs de randonnées et d’activités en plein air.Au cour d’un quartier résidentiel de Pouilley-Français, le lotissement La Clé des Champs bénéficie d’une situation idéale. À proximité du centre historique du village et des grands axes principaux, ce lotissement profite d’une adresse très connectée. Toutes les commodités et services sont accessibles à proximité.Le site La Clé des Champs compte 38 terrains à bâtir viabilisés dont 1 terrain intermédiaire Les informations sur l’état des risques auxquels ce bien est exposé sont disponibles sur le site Géorisques : www.georisques.gouv.fr
Audeux
TERRAINLibre choix du constructeur pour ce terrain à vendre ( LOT 3) à AUDEUX dans un lotissement au calme et très bien exposé.Terrains rares et situation recherchéeSituation:A 11 km et 11 mn de Besançon ChateaufarineAccès autoroute A36 à 6mnProximité de l’hôpital Jean MinjozParticularitésTerrain profitant d’une belle exposition toute la journéeTerrains prêts à bâtir viabilisés et bornésEau potable, eaux usées, électricité et télécomRécupération des eaux pluviales sur la parcelleEquipements de qualités:Voirie et tous réseaux aménagésAménagements pérennes (voirie, éclairage public, traitement des eaux pluviales)Services de proximité :Ecoles, cantine, garderieTransport en communs du Grand BesançonCe bien est proposé en libre choix de constructeur.Les informations sur les risques auxquels ce bien est exposé sont disponibles sur le site GEORISQUESREF;1_5_669
Audeux
TERRAINLibre choix du constructeur pour ce terrain à vendre ( LOT 12) à AUDEUX dans un lotissement au calme et très bien exposé.Terrains rares et situation recherchéeSituation:A 11 km et 11 mn de Besançon ChateaufarineAccès autoroute A36 à 6mnProximité de l’hôpital Jean MinjozParticularitésTerrain profitant d’une belle exposition toute la journéeTerrains prêts à bâtir viabilisés et bornésEau potable, eaux usées, électricité et télécomRécupération des eaux pluviales sur la parcelleEquipements de qualités:Voirie et tous réseaux aménagésAménagements pérennes (voirie, éclairage public, traitement des eaux pluviales)Services de proximité :Ecoles, cantine, garderieTransport en communs du Grand BesançonCe bien est proposé en libre choix de constructeur.Les informations sur les risques auxquels ce bien est exposé sont disponibles sur le site GEORISQUESREF;1_5_678
Audeux
TERRAINLibre choix du constructeur pour ce terrain à vendre ( LOT 8) à AUDEUX dans un lotissement au calme et très bien exposé.Terrains rares et situation recherchéeSituation:A 11 km et 11 mn de Besançon ChateaufarineAccès autoroute A36 à 6mnProximité de l’hôpital Jean MinjozParticularitésTerrain profitant d’une belle exposition toute la journéeTerrains prêts à bâtir viabilisés et bornésEau potable, eaux usées, électricité et télécomRécupération des eaux pluviales sur la parcelleEquipements de qualités:Voirie et tous réseaux aménagésAménagements pérennes (voirie, éclairage public, traitement des eaux pluviales)Services de proximité :Ecoles, cantine, garderieTransport en communs du Grand BesançonCe bien est proposé en libre choix de constructeur.Les informations sur les risques auxquels ce bien est exposé sont disponibles sur le site GEORISQUESREF;1_5_674
Audeux
TERRAINLibre choix du constructeur pour ce terrain à vendre ( LOT 10) à AUDEUX dans un lotissement au calme et très bien exposé.Terrains rares et situation recherchéeSituation:A 11 km et 11 mn de Besançon ChateaufarineAccès autoroute A36 à 6mnProximité de l’hôpital Jean MinjozParticularitésTerrain profitant d’une belle exposition toute la journéeTerrains prêts à bâtir viabilisés et bornésEau potable, eaux usées, électricité et télécomRécupération des eaux pluviales sur la parcelleEquipements de qualités:Voirie et tous réseaux aménagésAménagements pérennes (voirie, éclairage public, traitement des eaux pluviales)Services de proximité :Ecoles, cantine, garderieTransport en communs du Grand BesançonCe bien est proposé en libre choix de constructeur.Les informations sur les risques auxquels ce bien est exposé sont disponibles sur le site GEORISQUESREF;1_5_676
Audeux
TERRAINLibre choix du constructeur pour ce terrain à vendre ( LOT 13) à AUDEUX dans un lotissement au calme et très bien exposé.Terrains rares et situation recherchéeSituation:A 11 km et 11 mn de Besançon ChateaufarineAccès autoroute A36 à 6mnProximité de l’hôpital Jean MinjozParticularitésTerrain profitant d’une belle exposition toute la journéeTerrains prêts à bâtir viabilisés et bornésEau potable, eaux usées, électricité et télécomRécupération des eaux pluviales sur la parcelleEquipements de qualités:Voirie et tous réseaux aménagésAménagements pérennes (voirie, éclairage public, traitement des eaux pluviales)Services de proximité :Ecoles, cantine, garderieTransport en communs du Grand BesançonCe bien est proposé en libre choix de constructeur.Les informations sur les risques auxquels ce bien est exposé sont disponibles sur le site GEORISQUESREF;1_5_679
Geneuille
TERRAINCe vaste terrain offre un cadre idéal pour implanter votre future maison et profiter d’un bel espace extérieur. Situé dans un environnement calme et recherché, il bénéficie d’une excellente exposition et d’une proximité immédiate avec les commodités du village.Un terrain de cette superficie est une opportunité peu fréquente sur le secteur, parfaite pour un projet familial alliant confort, nature et accessibilité.Prix : 173 000 euros – Honoraires à la charge du vendeurPour visiter et vous accompagner dans votre projet, contactez Baptiste DHOUTAUT, au (Numéro supprimé) ou, par courriel à (Email supprimé).Selon l’article L.561.5 du Code Monétaire et Financier, pour l’organisation de la visite, la présentation d’une pièce d’identité vous sera demandée.Cette présente annonce a été rédigée sous la responsabilité éditoriale de Baptiste DHOUTAUT agissant sous le statut d’agent commercial immatriculé au RSAC 907457717 BESANCON auprès de SAS PROPRIETES PRIVEES, au capital de 44 920 euros, ZAC LE CHÊNE FERRÉ – 44 ALLÉE DES CINQ CONTINENTS 44120 VERTOU; SIRET 487 624 777 00040, RCS Nantes. Carte Professionnelle Transactions sur immeubles et fonds de commerce (T) et Gestion immobilière (G) n°CPI 4401 2016 000 010 388 délivrée par la CCI Nantes – Saint Nazaire. Compte séquestre n(Numéro supprimé)67 BPA SAINT-SEBASTIEN-SUR-LOIRE (44230). Garantie GALIAN-SMABTP – 89 rue de la Boétie, 75008 Paris – n°28137 J pour 2 000 000 euros pour T et 120 000 euros pour G. Assurance responsabilité civile professionnelle par GALIAN-SMABTP n° de police 28137.JMandat réf : 421332. – Le professionnel garantit et sécurise votre projet immobilier. Baptiste DHOUTAUT (EI) Agent Commercial – Numéro RSAC : 907457717 BESANCON – .
Pouilley-Français
TERRAINDu 15 septembre au 14 novembre, bénéficiez d’une remise de 1 500€ sur vos frais de notaire pour toute réservation d’un terrain à bâtir.*Accueil téléphonique : du lundi au samedi, de 8H00 à 19H00Terrains prêts à construire !Située dans le département du Doubs, en région Bourgogne-Franche-Comté, la commune de Pouilley-Français offre un cadre de vie agréable. Village authentique, Pouilley-Français propose à ses habitants une charmante église néo-classique construite dans les années 1838-1841. Commune ouverte sur la nature, elle saura séduire les amateurs de randonnées et d’activités en plein air.Au cour d’un quartier résidentiel de Pouilley-Français, le lotissement La Clé des Champs bénéficie d’une situation idéale. À proximité du centre historique du village et des grands axes principaux, ce lotissement profite d’une adresse très connectée. Toutes les commodités et services sont accessibles à proximité.Le site La Clé des Champs compte 38 terrains à bâtir viabilisés dont 1 terrain intermédiaire Les informations sur l’état des risques auxquels ce bien est exposé sont disponibles sur le site Géorisques : www.georisques.gouv.fr
L’actualité immobilière à Pouilley-les-Vignes
27/11/2023
02/11/2023
30/10/2023
20/10/2023
16/10/2023
16/10/2023