Maison à construire à Ambonil (26800)
Images
Description
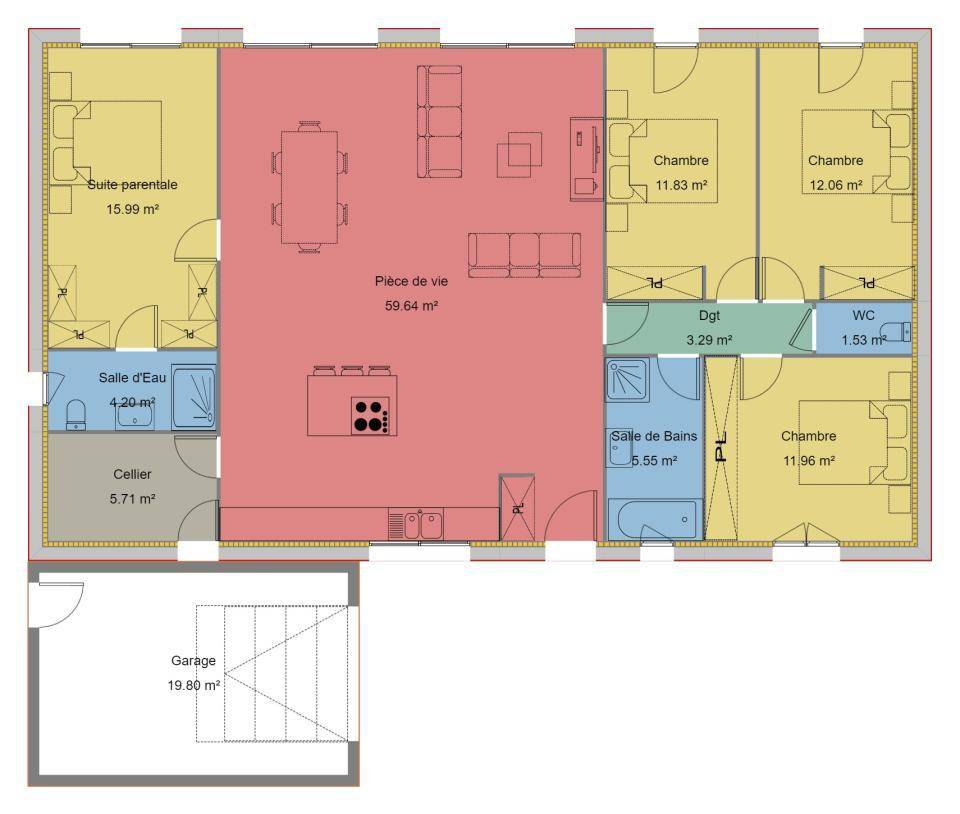
Située dans un cadre paisible, cette villa de 131 m² allie élégance et fonctionnalité !!!
À l'intérieur, vous serez accueilli par un espace de vie de 59,64m², comprenant une cuisine ouverte sur un salon et une salle à manger lumineuse. L'espace nuit se compose de 3 chambres confortables et d'une salle de bains moderne. Une suite parentale séparée de la partie nuit offre l'intimité et le confort nécessaires pour vous détendre en toute tranquillité.
Cette maison de plain-pied, conforme à la Réglementation Environnementale RE2020, vous assure un habitat écologique et économe en énergie. De plus, elle est dotée d'un garage, directement accessible depuis la maison, pour votre plus grand confort au quotidien.
Vous serez également séduit par les nombreuses options disponibles, telles que les volets roulants électriques, la centralisation et la domotique, ajoutant une touche de modernité à votre foyer.
Votre conseiller en construction Olivier PUAUX (Numéro supprimé) MAISONS FRANCE CONFORT se tient à votre disposition pour en savoir plus à propos de cette habitation, en découvrir d'autres ou bien même créer votre projet personnalisé.
Contactez-le sans plus tarder, pour donner vie à votre projet !!!
Logement susceptibles de vous intéresser
Nous vous proposons de découvrir aussi cette sélection de logements situés à moins de 10km de Ambonil et qui seraient susceptibles de vous intéresser.
Loriol-sur-Drôme
TERRAINMAISONS FRANCE CONFORT vous propose, en collaboration avec son partenaire foncier, un terrain situé sur la commune de LORIOL-SUR-DROME.Cette jolie parcelle d’une superficie de 425 m², pour 86 000€, entièrement viabilisée , vous séduira par son cadre agréable.Implantée dans un environnement calme et résidentiel, cette opportunité est idéale pour concrétiser votre projet de vie et bâtir la maison de vos rêves.Pour plus d’informations ou pour être accompagné dans votre recherche de logement, contactez votre conseiller construction, Olivier PUAUX, au (Numéro supprimé).
Loriol-sur-Drôme
TERRAIN ET MAISONDécouvrez le modèle Étage GA 4 Ch Design, une maison moderne de 98 m² conçue pour répondre aux besoins actuels des familles : espaces optimisés, luminosité et confort au quotidien.Au rez-de-chaussée, profitez d’une grande pièce de vie traversante de 33 m², baignée de lumière, où la cuisine ouverte s’intègre harmonieusement au séjour.Une chambre de plain-pied apporte une véritable polyvalence d’usage : idéale pour recevoir ou aménager un espace de travail.Un cellier de 4,83 m², donnant accès direct au garage, vient compléter l’ensemble, offrant un espace de rangement pratique et fonctionnel.À l’étage, l’espace nuit se compose de trois chambres spacieuses et d’une salle de bains équipée d’une baignoire et d’une douche, pour un confort adapté à toute la famille.Grâce à la nouvelle gamme Open, vous bénéficiez de finitions personnalisables et de packs évolutifs, afin d’adapter votre maison à vos envies et à vos besoins.Côté confort, rien n’a été laissé au hasard : volets roulants électriques, centralisation des fermetures, domotique intégrée… autant d’équipements modernes pensés pour simplifier votre quotidien et renforcer votre confort.Fonctionnelle, lumineuse et résolument moderne, cette maison offre un cadre de vie idéal pour accueillir votre famille et concrétiser votre projet de vie.Contactez dès maintenant Olivier PUAUX, votre conseiller MAISONS FRANCE CONFORT, au (Numéro supprimé), pour en savoir plus ou imaginer ensemble votre future maison.
Loriol-sur-Drôme
TERRAIN ET MAISONUne maison contemporaine qui allie élégance, confort et performance !Avec ses 80 m² parfaitement agencés, cette maison offre un style moderne et lumineux, pensé pour répondre aux exigences de confort d’aujourd’hui. Conforme à la réglementation environnementale RE2020, elle conjugue esthétique, efficacité énergétique et bien-être au quotidien.La pièce de vie de 37,80 m², véritable coeur de la maison, profite d’une luminosité traversante et d’un agencement fluide. La cuisine ouverte s’intègre harmonieusement pour créer un espace convivial et accueillant. Une verrière (en option) peut venir sublimer la séparation entre l’entrée et le séjour pour renforcer le caractère contemporain de l’ensemble.L’espace nuit se compose de trois chambres confortables avec rangements intégrés, d’une salle de bains fonctionnelle et d’un WC indépendant. Le cellier attenant à la cuisine facilite le rangement et communique directement avec le garage de 15,68 m², idéal pour le stationnement ou un espace de stockage complémentaire.Les prestations sont à la hauteur de vos attentes avec des volets roulants électriques et leur centralisation, une domotique intégrée pour plus de confort et un chauffage par pompe à chaleur à la fois économique et respectueux de l’environnementAdaptable à votre terrain et à votre mode de vie, ce modèle saura devenir la maison qui vous ressemble, alliant modernité, confort et praticité.Contactez-moi au (Numéro supprimé) pour en discuter et imaginer ensemble votre future maison.Olivier PUAUX – Conseiller Maisons France Confort
Loriol-sur-Drôme
TERRAIN ET MAISONMaison de 6 pièces (100 m²) à vendre à Loriol-sur-DrômeQUARTIER RECHERCHÉ – MAISON 6 PIÈCES NEUVEÀ vendre : localisée à deux pas de Valence, dans un quartier attractif de Loriol-sur-Drôme (26270), notre agence Maisons France Confort Montélimar est heureuse de vous présenter cette maison de 6 pièces de plain-pied de 100 m² et de 540 m² de terrain. Son intérieur est composé de trois chambres, d’une cuisine et de deux salles de bains.La maison est neuve.Cette propriété est située dans un secteur recherché. Il y a quatre établissements scolaires à moins de 10 minutes à pied. Côté transports en commun, on trouve la gare Loriol-sur-Drôme à quelques pas du bien. L’autoroute A7 et la nationale N7 sont accessibles à moins de 3 km. Il y a un tennis, des commerces, deux boulangeries, deux boucheries-charcuteries, une épicerie et une supérette à proximité. Le marché Place du marché anime les environs tous les vendredis matin.Son prix de vente est de 299 427 €.Contactez florian DUBOIS ((Numéro supprimé)) pour toute information sur la maison, sur les modalités de vente ou sur les démarches à suivre.
Loriol-sur-Drôme
TERRAINMAISONS FRANCE CONFORT vous propose, en collaboration avec son partenaire foncier, un terrain situé sur la commune de LORIOL SURN DROMECette jolie parcelle d’une superficie de 400 m² , pour 79500 €, viabilisé est idéalement situéImplantée dans un environnement calme, mais proche des commodité, cette opportunité est idéale pour concrétiser votre projet de vie et bâtir la maison de vos rêves.Si vous aussi, vous rêvez d’une maison qui vous ressemble et d’un accompagnement sur mesure, contactez votre conseiller Florian DUBOIS au (Numéro supprimé) 📞
Loriol-sur-Drôme
TERRAIN ET MAISONVENTE : maison F5 (83 m²) à Loriol-sur-DrômeQUARTIER RECHERCHÉ – MAISON 5 PIÈCES NEUVEÀ vendre à deux pas de Valence, située dans un quartier prisé de Loriol-sur-Drôme (26270), laissez vous charmer par cette maison de 5 pièces de plain-pied de 83 m² et de 325 m² de terrain. Elle est composée de trois chambres, d’une cuisine et d’une salle de bains.La maison est neuve.Cette maison est située dans un secteur convoité. Il y a quatre établissements scolaires à moins de 10 minutes à pied. Niveau transports, on trouve la gare Loriol-sur-Drôme à quelques pas du bien. L’autoroute A7 et la nationale N7 sont accessibles à moins de 3 km. Il y a un tennis, des commerces, deux boulangeries, deux boucheries-charcuteries, une supérette et un bureau de poste à proximité. Le marché Place du marché anime le quartier tous les vendredis matin.Elle est à vendre pour la somme de 198 558 €.Prenez contact avec notre agence (florian DUBOIS : (Numéro supprimé)) pour plus de renseignements sur le bien ou sur les modalités de vente.
Loriol-sur-Drôme
TERRAIN ET MAISONMaison de 4 pièces (83 m²) à vendre à Loriol-sur-DrômeQUARTIER RECHERCHÉ – MAISON 4 PIÈCES NEUVEÀ vendre à quelques kilomètres de Valence, nichée dans un quartier convoité de Loriol-sur-Drôme (26270), notre agence Maisons France Confort Montélimar est ravie de vous présenter cette maison de 4 pièces de 83 m². Elle compte trois chambres, une cuisine et une salle de bains.Le terrain de la maison est de 325 m².C’est une maison de 2 niveaux. Elle est neuve.Cette maison se situe dans un secteur attractif. Quatre établissements scolaires sont implantés à moins de 10 minutes à pied. Côté transports, il y a la gare Loriol-sur-Drôme à proximité. L’autoroute A7 et la nationale N7 sont accessibles à moins de 3 km. On trouve un tennis, des commerces, deux boulangeries, une épicerie, deux boucheries-charcuteries et un bureau de poste à quelques minutes à peine. Ne manquez pas le marché Place du marché chaque vendredi matin.Elle est proposée à l’achat pour 217 658 €.Contactez notre constructeur (florian DUBOIS : (Numéro supprimé)) pour obtenir de plus amples informations sur la maison et sur les démarches à suivre. Maisons France Confort Montélimar vous accompagne à toutes les étapes de l’achat et dans tous vos projets immobiliers.
Loriol-sur-Drôme
TERRAIN ET MAISONLoriol-sur-Drôme : maison T6 (97 m²) en venteQUARTIER RECHERCHÉ – MAISON 6 PIÈCES NEUVEÀ 21 km de Valence, à vendre dans un quartier attractif de Loriol-sur-Drôme (26270), nous vous proposons cette maison de 6 pièces de plain-pied de 97 m² et de 325 m² de terrain.Elle compte quatre chambres, une cuisine et une salle de bains. Cette maison est neuve.La maison se trouve dans un secteur recherché. Quatre établissements scolaires sont implantés à moins de 10 minutes à pied. Côté transports, on trouve la gare Loriol-sur-Drôme dans un rayon de 1 km. L’autoroute A7 et la nationale N7 sont accessibles à moins de 3 km. Il y a un tennis, des commerces, deux boulangeries, une épicerie, un bureau de poste et deux boucheries-charcuteries à proximité du bien. Le marché Place du marché a lieu chaque vendredi matin.Elle est à vendre pour la somme de 217 712 €.Contactez florian DUBOIS (tél : (Numéro supprimé)) pour toute information sur le bien. Faites de vos projets immobiliers une réalité avec Maisons France Confort Montélimar.
Loriol-sur-Drôme
TERRAINMAISONS FRANCE CONFORT vous propose, en collaboration avec son partenaire foncier, un terrain situé sur la commune de LORIOL SURN DROMECette jolie parcelle d’une superficie de 325 m² , pour 68000€, viabilisé est idéalement situéImplantée dans un environnement calme, mais proche des commodité, cette opportunité est idéale pour concrétiser votre projet de vie et bâtir la maison de vos rêves.Si vous aussi, vous rêvez d’une maison qui vous ressemble et d’un accompagnement sur mesure, contactez votre conseiller Florian DUBOIS au (Numéro supprimé) 📞
L’actualité immobilière à Ambonil
27/11/2023
02/11/2023
30/10/2023
20/10/2023
16/10/2023
16/10/2023