Maison à construire à Condorcet (26110)
Images
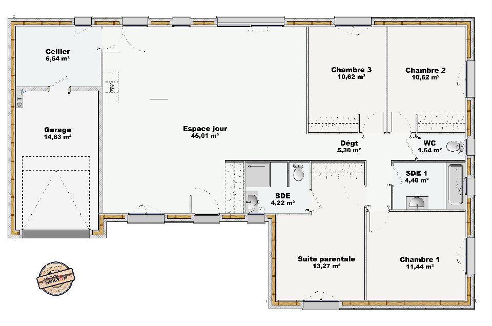
Description
LUMI 113 - Une maison lumineuse et fonctionnelle, pensée pour votre bien-être
Maisons France Confort vous propose la LUMI 113, un modèle de maison de plain-pied à ossature bois, alliant esthétique, confort et performance. Conçue pour favoriser la lumière naturelle, cette maison offre un cadre de vie chaleureux et agréable au quotidien.
Sa pièce de vie principale, d'une surface de 45,01 m², s'ouvre largement sur l'extérieur, créant un espace convivial et accueillant. L'ossature bois assure une excellente isolation thermique et acoustique, tout en apportant une touche naturelle et douce à l'ensemble.
La maison comprend trois chambres, dont une suite parentale avec salle d'eau privative, garantissant à chacun son espace d'intimité. L'agencement a été pensé pour simplifier le quotidien : un cellier fonctionnel, un garage intégré, deux salles d'eau, des toilettes séparées et un dégagement central facilitent la circulation entre les pièces.
LUMI 113 offre également de nombreuses options pour répondre à vos envies de modernité : volets roulants électriques, centralisation des ouvertures, solutions domotiques... Autant d'équipements pour améliorer le confort de votre foyer.
Pour plus d'informations sur ce modèle ou pour découvrir d'autres projets personnalisables, n'hésitez pas à contacter votre conseiller en construction :
Olivier PUAUX - (Numéro supprimé)
Maisons France Confort
Il vous accompagnera avec plaisir dans toutes les étapes de votre projet de construction.
Logement susceptibles de vous intéresser
Nous vous proposons de découvrir aussi cette sélection de logements situés à moins de 10km de Condorcet et qui seraient susceptibles de vous intéresser.
Condorcet
TERRAINMaisons France Confort, en partenariat avec son foncier, vous propose ce très beau terrain constructible de 1 231 m² situé sur la commune de Condorcet, à seulement 10 minutes de Nyons.Située dans un environnement calme et privilégié, cette parcelle viabilisé en bordure offre une vue dégagée sur les Monts des Baronnies.C’est une opportunité rare de bâtir votre maison dans un cadre naturel et recherché. Pour plus d’informations ou un accompagnement personnalisé, contactez :Olivier PUAUX – Conseiller Maisons France Confort (Numéro supprimé)
Condorcet
TERRAIN ET MAISONLUMI 113 – Une maison lumineuse et fonctionnelle, pensée pour votre bien-êtreMaisons France Confort vous propose la LUMI 113, un modèle de maison de plain-pied à ossature bois, alliant esthétique, confort et performance. Conçue pour favoriser la lumière naturelle, cette maison offre un cadre de vie chaleureux et agréable au quotidien.Sa pièce de vie principale, d’une surface de 45,01 m², s’ouvre largement sur l’extérieur, créant un espace convivial et accueillant. L’ossature bois assure une excellente isolation thermique et acoustique, tout en apportant une touche naturelle et douce à l’ensemble.La maison comprend trois chambres, dont une suite parentale avec salle d’eau privative, garantissant à chacun son espace d’intimité. L’agencement a été pensé pour simplifier le quotidien : un cellier fonctionnel, un garage intégré, deux salles d’eau, des toilettes séparées et un dégagement central facilitent la circulation entre les pièces.LUMI 113 offre également de nombreuses options pour répondre à vos envies de modernité : volets roulants électriques, centralisation des ouvertures, solutions domotiques… Autant d’équipements pour améliorer le confort de votre foyer.Pour plus d’informations sur ce modèle ou pour découvrir d’autres projets personnalisables, n’hésitez pas à contacter votre conseiller en construction :Olivier PUAUX – (Numéro supprimé)Maisons France ConfortIl vous accompagnera avec plaisir dans toutes les étapes de votre projet de construction.
Condorcet
TERRAIN ET MAISOND’architecture contemporaine, cette maison de 120m² est composée d’un espace de vie de 50,61 m² avec cuisine ouverte sur un grand salon, salle à manger. Elle possède aussi un espace nuit de 4 chambres et d’une salle de bains, dont une suite parentale de 18,41 m² avec salle d’eau et dressing. Lumineuse et spacieuse cette maison de plain-pied répond à la Réglementation environnementale RE2020. Pour plus de confort, vous trouverez également un garage, totalement accessible de la maison.Vous serez également séduit par ses nombreuses options (volets roulants électriques, centralisation, domotique…).Vous avez le coup de coeur pour ce modèle ou vous souhaitez personnaliser votre maison?Votre conseiller en construction Olivier PUAUX (Numéro supprimé) MAISONS FRANCE CONFORT se tient à votre disposition.
Condorcet
TERRAIN ET MAISONCette maison de plain-pied de 108,30 m² a été pensée pour offrir un cadre de vie confortable, lumineux et parfaitement fonctionnel. Son agencement soigné et ses volumes bien répartis répondent aux attentes de toute la famille.La pièce de vie, vaste et baignée de lumière, regroupe salon, salle à manger et cuisine ouverte dans une ambiance chaleureuse et moderne. Un espace idéal pour partager des instants du quotidien en toute convivialité.L’espace nuit se compose d’une suite parentale avec salle d’eau et dressing privatif, ainsi que de trois autres chambres, idéales pour les enfants, les invités ou un bureau selon vos besoins.Une salle de bains indépendante, des WC séparés, un cellier et un garage attenant viennent compléter l’ensemble, apportant praticité et confort à votre quotidien.La maison dispose également d’équipements modernes : volets roulants électriques, centralisation des fermetures, domotique intégrée… tout est réuni pour simplifier votre vie au quotidien.Fonctionnelle, lumineuse et moderne, cette maison vous offre un cadre de vie prêt à accueillir vos projets.Pour en savoir plus ou imaginer votre future maison, contactez Olivier PUAUX, votre conseiller MAISONS FRANCE CONFORT, au (Numéro supprimé).
Condorcet
TERRAIN ET MAISONÀ la recherche d’une villa au style moderne et raffiné ? Cette magnifique propriété de plain-pied ne manquera pas de vous séduire par son originalité et sa douceur, reflétées à travers une architecture contemporaine et une luminosité exceptionnelle.Dès l’entrée, vous serez captivé par le design distinctif du porche, invitant à découvrir un intérieur où le confort et l’esthétique se marient harmonieusement. La pièce de vie ouverte, au coeur de la maison, favorise les échanges et la convivialité. Ce modèle comprend également quatre chambres, dont une suite parentale avec dressing et salle d’eau, offrant un espace de rangement pratique pour simplifier votre quotidien. Avec une superficie habitable de 114 m² et un garage accolé de 21 m², cette résidence répond parfaitement aux besoins d’une vie familiale épanouie.Vous souhaitez personnaliser cette villa selon vos préférences ? Votre conseiller Olivier PUAUX ((Numéro supprimé)), est à votre disposition pour concrétiser votre projet!
L’actualité immobilière à Condorcet
27/11/2023
02/11/2023
30/10/2023
20/10/2023
16/10/2023
16/10/2023