Maison à construire à Granges-les-Beaumont (26600)
Images
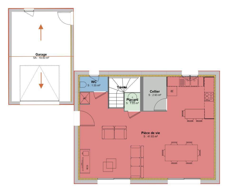
Description
Devenez propriétaire à Granges-les-Beaumont (26600) - Maison 93 m² + Terrain -317758 €
Maisons France Confort - vous propose, dans un nouveau lotissement, à proximité immédiate de , la construction d'une maison moderne de 93 m² parfaitement pensée pour les primo-accédants.
Atouts de votre projet :
Maison neuve, moderne et économe en énergie
Espaces fonctionnels et lumineux
Terrain idéalement situé, proche des écoles, commerces et services
Accession facilitée grâce au PTZ (Prêt à Taux Zéro)
Prix clé en main : 317758 € (terrain + maison)
Contactez Amandine Maggioni, votre conseillère Maisons France Confort, et donnez vie à votre projet dès aujourd'hui au (Numéro supprimé) .
Déjà plus de 100 000 familles nous ont fait confiance, pourquoi pas vous ?
Avec Maisons France Confort, vous bénéficiez de l'expérience du constructeur N°1 en France ainsi que de toutes les garanties du contrat CCMI pour construire en toute sérénité.
Logement susceptibles de vous intéresser
Nous vous proposons de découvrir aussi cette sélection de logements situés à moins de 10km de Granges-les-Beaumont et qui seraient susceptibles de vous intéresser.
Granges-les-Beaumont
TERRAINIDÉALEMENT SITUÉ – PROCHE DE VALENCE (26000), Maisons France Confort vous propose une parcelle constructible de 1331 M2 entierement viabilisé à quelques kilomètres de Valence sur la commune de Granges-les-Beaumont (26600), dans un secteur calme et à quelques minutes seulement des commerces, écoles et services, ce beau terrain plat et entièrement viabilisé bénéficie d »une excellente exposition pour un ensoleillement optimal tout au long de la journée. Ce terrain constructible vous offre un cadre idéal pour concrétiser votre projet de vie.Contactez votre chargée de projet Amandine Maggioni dès aujourd »hui pour plus d »information et une étude gratuite de votre projet de construction au (Numéro supprimé)
Saint-Marcel-lès-Valence
TERRAIN ET MAISONVENTE : maison T4 (73 m²) à Saint-Marcel-lès-ValenceIDÉALEMENT SITUÉE – MAISON 4 PIÈCES NEUVEÀ quelques kilomètres de Valence, votre agence Maisons France Confort Montélimar est heureuse de vous proposer cette maison de 4 pièces de plain-pied de 73 m² et de 441 m² de terrain en vente, idéalement située dans Saint-Marcel-lès-Valence (26320). Elle propose trois chambres, une cuisine et une salle de bains.La maison est neuve.La maison est située dans un secteur attractif. Des écoles maternelles et élémentaires sont implantées à moins de 10 minutes à pied, tout comme deux crèches. Niveau transports, on trouve deux gares (Valence TGV Rhône-Alpes Sud et Valence) à moins de 10 minutes en voiture. On trouve un accès à la nationale N532 à 1 km. Il y a une bibliothèque, un tennis, quatre commerces, deux boulangeries et un bureau de poste à proximité.Elle est à vendre pour la somme de 277 212 €.Contactez Amandine MAGGIONI (tél : (Numéro supprimé)) pour toute question sur la maison.
Saint-Marcel-lès-Valence
TERRAIN ET MAISONVENTE : maison T4 (73 m²) à Saint-Marcel-lès-ValenceIDÉALEMENT SITUÉE – MAISON 4 PIÈCES NEUVEÀ quelques kilomètres de Valence, votre agence Maisons France Confort Montélimar est heureuse de vous proposer cette maison de 4 pièces de plain-pied de 73 m² et de 441 m² de terrain en vente, idéalement située dans Saint-Marcel-lès-Valence (26320). Elle propose trois chambres, une cuisine et une salle de bains.La maison est neuve.La maison est située dans un secteur attractif. Des écoles maternelles et élémentaires sont implantées à moins de 10 minutes à pied, tout comme deux crèches. Niveau transports, on trouve deux gares (Valence TGV Rhône-Alpes Sud et Valence) à moins de 10 minutes en voiture. On trouve un accès à la nationale N532 à 1 km. Il y a une bibliothèque, un tennis, quatre commerces, deux boulangeries et un bureau de poste à proximité.Elle est à vendre pour la somme de 277 212 €.Contactez Amandine MAGGIONI (tél : (Numéro supprimé)) pour toute question sur la maison.
Saint-Marcel-lès-Valence
TERRAINMaiosns France Confort, vous propose un terrain constructible sur la commune de Saint-Marcel-lès-Valence (26320) terrain de 441 m² viabilisé, PROCHE DE VALENCEÀ 6 km de Valence à Saint-Marcel-lès-Valence (26320). Réalisez y la maison de vos rêves. Il bénéficie d’une exposition sud. Dans un quartier attractif, ce terrain constructible, idéalement situé est proche des écoles et des commerces. Contactez Amandine MAGGIONI votre chargée de projet Maisons France Confort au (Numéro supprimé)
Saint-Marcel-lès-Valence
TERRAIN ET MAISONVENTE : maison T4 (73 m²) à Saint-Marcel-lès-ValenceIDÉALEMENT SITUÉE – MAISON 4 PIÈCES NEUVEÀ quelques kilomètres de Valence, votre agence Maisons France Confort Montélimar est heureuse de vous proposer cette maison de 4 pièces de plain-pied de 73 m² et de 441 m² de terrain en vente, idéalement située dans Saint-Marcel-lès-Valence (26320). Elle propose trois chambres, une cuisine et une salle de bains.La maison est neuve.La maison est située dans un secteur attractif. Des écoles maternelles et élémentaires sont implantées à moins de 10 minutes à pied, tout comme deux crèches. Niveau transports, on trouve deux gares (Valence TGV Rhône-Alpes Sud et Valence) à moins de 10 minutes en voiture. On trouve un accès à la nationale N532 à 1 km. Il y a une bibliothèque, un tennis, quatre commerces, deux boulangeries et un bureau de poste à proximité.Elle est à vendre pour la somme de 277 212 €.Contactez Amandine MAGGIONI (tél : (Numéro supprimé)) pour toute question sur la maison.
Saint-Marcel-lès-Valence
TERRAIN ET MAISONL’agence Immo Sud-Est vous propose en exclusivité cette maison neuve de 113 m² habitables sur terrain privatif de 508 m² réalisée par un constructeur et conforme à la réglementation énergétique RE2020.La maison est implantée dans un quartier calme proche des grands axes. Cette localisation offre un cadre de vie recherché, à la fois paisible et fonctionnel.Une opportunité rare d’acquérir un bien moderne, performant et sécurisé, avec frais de notaire réduits et une livraison prévue fin 2026.Le rez-de-chaussée se compose d’une grande pièce de vie avec cuisine ouverte, une suite parentale avec salle d’eau et un wc séparé.A l’étage, 3 chambres, une salle de bain, un wc.Plancher chauffant / rafraîchissant pompe à chaleur.Important : la vérification du financement est obligatoire auprès de notre service avant toute validation du dossier ou réservation du lot.Pour toute information complémentaires veuillez contacter David ROBIN au (Numéro supprimé) / RSAC : 443 955 364 ou Audrey CANTIN au (Numéro supprimé) / RSAC : 851 896 506.Les informations sur les risques auxquels ce bien est exposé sont disponibles sur le site Géorisques : www.georisques.gouv.fr
Romans-sur-Isère
TERRAINTerrain constructible dans un environnement calme Situé sur la commune de MARGES à 19 minutes de ROMANS MAISONS France CONFORT vous propose un terrain constructible de 650 m2 situé dans un secteur calme et à quelques minutes seulement des commerces, écoles et services, ce beau terrain plat et entièrement viabilisé bénéficie d »une excellente exposition pour un ensoleillement optimal tout au long de la journée. Ce terrain constructible vous offre un cadre idéal pour concrétiser votre projet de vie.Contactez votre chargée de projet Amandine Maggioni dès aujourd »hui pour plus d »information et une étude gratuite de votre projet de construction au (Numéro supprimé)
Romans-sur-Isère
TERRAIN ET MAISONMaison T4 (83 m²) en vente à Romans-sur-IsèreMAISON 4 PIÈCES NEUVEMaisons France Confort Montélimar vous propose à vendre à Romans-sur-Isère (26100), cette maison de 4 pièces de plain-pied de 83 m². Elle compte trois chambres, une cuisine et une salle de bains.Le terrain du bien est de 483 m².La maison est neuve.Des établissements scolaires de tous niveaux sont implantés dans la commune, tout comme une structure d’accueil pour les tout-petits à moins de 10 minutes à pied. Niveau transports, il y a deux gares (Romans-Bourg-de-Péage et Valence TGV Rhône-Alpes Sud) à moins de 10 minutes en voiture. L’autoroute A49 et la nationale N532 sont accessibles à moins de 6 km.Elle est proposée à l’achat pour 234 000 €.Prenez contact avec notre agence (MAGGIONI Amandine : (Numéro supprimé)) pour plus de renseignements sur cette maison, sur les démarches à suivre ou sur les modalités de vente.
Romans-sur-Isère
TERRAINMaisons France Confort vous propose un terrain constructible d’une superficie de 483 M2 viabilisé, plat avec une très bonne exposition sur la commune de Romans-sur-Isère (26100), projetez la maison de vos rêves sur ce terrain de 483 m² constructible. Des écoles de tous types (de la maternelle au lycée) sont implantées dans la commune, L »autoroute A49 et la nationale N532 sont accessibles à moins de 6 km.Contactez Amandine MAGGIONI, votre chargée de projet au (tél : (Numéro supprimé). Maisons France Confort vous accompagne à toutes les étapes de votre projet et dans tous vos projets immobiliers.
L’actualité immobilière à Granges-les-Beaumont
27/11/2023
02/11/2023
30/10/2023
20/10/2023
16/10/2023
16/10/2023