Maison à construire à Grignan (26230)
Images
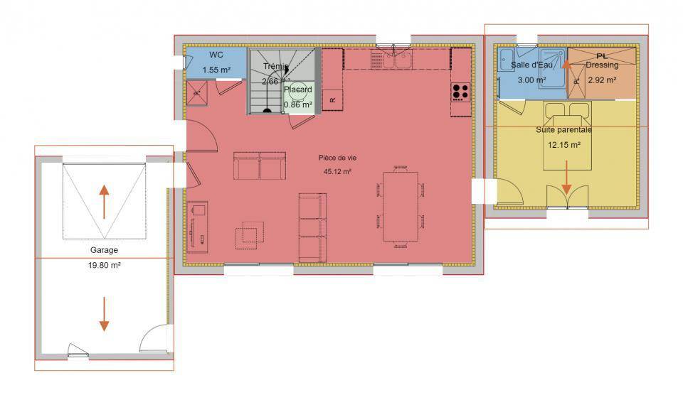
Description
Découvrez une maison à la simplicité, à l'harmonie qui vous ravira au quotidien !!!
Cette maison d'architecture contemporaine, intégrant des menuiseries gris anthracite allie confort et esthétique.
D'une surface habitable de 110 m² ce modèle, accueille 4 chambres.
Au rez-de-chaussée, cette maison à étage découvre un espace jour spacieux et lumineux avec cuisine ouverte sur salon-séjour.
L'agencement intelligemment configuré offre une suite parentale avec salle d'eau et dressing.
L'étage présente un espace nuit avec 3 chambres et une salle de bains équipée d'un meuble simple-vasque, une baignoire et un WC.
Pour votre confort, un garage vient compléter cet habitat.
Vous avez le coup de coeur pour cette maison ?
Votre conseiller en construction MAISONS France CONFORT Olivier PUAUX (Numéro supprimé) se tient à votre disposition pour en savoir plus à propos de cette habitation, en découvrir d'autres ou bien même créer votre projet personnalisé.et personnalisé.
Logement susceptibles de vous intéresser
Nous vous proposons de découvrir aussi cette sélection de logements situés à moins de 10km de Grignan et qui seraient susceptibles de vous intéresser.
Grillon
TERRAINMAISONS FRANCE CONFORT, vous propose avec ses partenaires fonciers un terrain sur la commune de GRILLON à 5 minutes de GRIGNAN. Cette jolie parcelle de 455m² pour 79 900 €, entièrement viabilisé, est située près du centre du village avec un accès facile aux commodités, ce qui vous assure un grand confort de vie. Dans un environnement calme et agréable pour votre projet de vie, réalisez votre rêve grâce à la maison qui vous ressemble.Vous pouvez contacter votre conseiller construction Olivier PUAUX ((Numéro supprimé)) pour en savoir plus ou vous faire accompagner dans votre recherche de logement.
Grillon
TERRAIN ET MAISONMAISONS FRANCE CONFORT vous propose cette maison pensée pour vous !!!Découvrez cette villa, de 73 m² à la ligne épurée et moderne, conçu pour répondre à vos besoins. Chaque espace de cette maison est optimisé et parfaitement fonctionnel, offrant un cadre de vie harmonieux.À l’intérieur, une cuisine ouverte s’ouvre sur un séjour/salon spacieux et agréable, idéal pour les moments de convivialité en famille ou entre amis.L’espace nuit se compose de trois chambres généreuses et d’une salle de bains de plus de 5 m², offrant confort et intimité.Vous serez également séduit par ses nombreuses options (volets roulants électriques, centralisation, domotique…).Vous avez un coup de coeur pour cette maison ? N’hésitez pas à contacter votre conseiller en construction, Olivier PUAUX au (Numéro supprimé), de MAISONS FRANCE CONFORT. Il se tient à votre disposition pour en savoir plus sur cette habitation, découvrir d’autres modèles ou même créer votre projet personnalisé.
Grillon
TERRAIN ET MAISONDécouvrez Optima 84, une maison pensée pour allier confort, modernité et fonctionnalité.Ce plain-pied séduit par son agencement intelligent et ses volumes optimisés : une vaste pièce de vie de 38 m², baignée de lumière, accueille un espace salon-séjour convivial et une cuisine ouverte idéale pour partager des moments en famille.Côté nuit, vous profiterez de deux chambres confortables, d’une salle de bains familiale, ainsi que d’une suite parentale avec sa salle d’eau privative pour plus d’intimité.Un cellier attenant et un garage intégré complètent l’ensemble, pour un quotidien à la fois pratique et agréable.Dans un style résolument contemporain, cette maison est équipée des dernières technologies : volets roulants électriques, centralisation des fermetures, domotique intégrée… tout est prévu pour simplifier votre vie et renforcer votre confort.Fonctionnelle, lumineuse et moderne, Optima 84 est la maison idéale pour accueillir vos projets et offrir à votre famille un cadre de vie épanouissant.Contactez dès maintenant Olivier PUAUX, votre conseiller MAISONS FRANCE CONFORT, au (Numéro supprimé) pour en savoir plus ou imaginer ensemble votre future maison.
Grillon
TERRAIN ET MAISONSituée dans un quartier paisible, cette maison à construire offre un espace de vie moderne et confortable sur 90m2. Composée de trois chambres, elle est idéale pour une famille. La salle de bain est équipée d’une douche spacieuse, d’un meuble vasque et d’un placard pour plus de commodité. Un cellier pratique complète l’agencement fonctionnel de cette maison.Vous serez également séduit par ses nombreuses options (volets roulants électriques, centralisation, domotique…).Ne manquez pas cette opportunité de personnaliser votre futur chez-vous selon vos goûts et besoins ! Contactez votre conseiller en construction Olivier PUAUX (Numéro supprimé) dès aujourd’hui pour plus d’informations.
Grillon
TERRAIN ET MAISONDécouvrez le modèle Étage GA 4 Ch Design, une maison moderne de 98 m² conçue pour répondre aux besoins actuels des familles : espaces optimisés, luminosité et confort au quotidien.Au rez-de-chaussée, profitez d’une grande pièce de vie traversante de 33 m², baignée de lumière, où la cuisine ouverte s’intègre harmonieusement au séjour.Une chambre de plain-pied apporte une véritable polyvalence d’usage : idéale pour recevoir ou aménager un espace de travail.Un cellier de 4,83 m², donnant accès direct au garage, vient compléter l’ensemble, offrant un espace de rangement pratique et fonctionnel.À l’étage, l’espace nuit se compose de trois chambres spacieuses et d’une salle de bains équipée d’une baignoire et d’une douche, pour un confort adapté à toute la famille.Grâce à la nouvelle gamme Open, vous bénéficiez de finitions personnalisables et de packs évolutifs, afin d’adapter votre maison à vos envies et à vos besoins.Côté confort, rien n’a été laissé au hasard : volets roulants électriques, centralisation des fermetures, domotique intégrée… autant d’équipements modernes pensés pour simplifier votre quotidien et renforcer votre confort.Fonctionnelle, lumineuse et résolument moderne, cette maison offre un cadre de vie idéal pour accueillir votre famille et concrétiser votre projet de vie.Contactez dès maintenant Olivier PUAUX, votre conseiller MAISONS FRANCE CONFORT, au (Numéro supprimé), pour en savoir plus ou imaginer ensemble votre future maison.
Montségur-sur-Lauzon
TERRAIN ET MAISONMontségur-sur-Lauzon : maison de 4 pièces (73 m²) en venteQUARTIER RECHERCHÉ – MAISON 4 PIÈCES NEUVEEn vente : localisée à deux pas de Montélimar, Maisons France Confort Montélimar vous propose cette maison de 4 pièces de plain-pied de 73 m² et de 500 m² de terrain dans un secteur convoité de Montségur-sur-Lauzon (26130). Conçue de plain-pied, elle inclut trois chambres, une cuisine et une salle de bains.La maison est neuve.Cette maison se trouve dans un quartier recherché. Il y a l’École Maternelle Albert Bertrand et l’École Publique Montsegur Sur Lauzon à moins de 10 minutes à pied. L’autoroute A7 et la nationale N7 sont accessibles à moins de 14 km. On trouve un tennis, une bibliothèque, deux boulangeries, deux commerces, une boucherie-charcuterie et deux épiceries à proximité du logement.Elle est proposée à l’achat pour 243 500 €.Contactez notre agence (florian DUBOIS : (Numéro supprimé)) pour tout renseignement sur la maison.
Montségur-sur-Lauzon
TERRAIN ET MAISONMontségur-sur-Lauzon : maison de 4 pièces (83 m²) à vendreQUARTIER RECHERCHÉ – MAISON 4 PIÈCES NEUVEÀ 23 km de Montélimar, Maisons France Confort Montélimar vous présente cette maison de 4 pièces de 83 m² en vente située dans un quartier prisé de Montségur-sur-Lauzon (26130).C’est une maison de 2 niveaux. Son intérieur est composé de trois chambres, d’une cuisine et d’une salle de bains. Cette maison est neuve.Le terrain du bien est de 500 m².Cette maison est située dans un secteur recherché. On trouve l’École Maternelle Albert Bertrand et l’École Publique Montsegur Sur Lauzon à moins de 10 minutes à pied. L’autoroute A7 et la nationale N7 sont accessibles à moins de 14 km. Il y a un tennis, une bibliothèque, deux boulangeries, deux commerces, une boucherie-charcuterie et deux épiceries à quelques minutes de la maison.Elle est proposée à l’achat pour 262 600 €.Prenez contact avec florian DUBOIS ((Numéro supprimé)) pour toute information sur la maison, sur les démarches à suivre ou sur les modalités de vente. Maisons France Confort Montélimar vous accompagne à toutes les étapes de l’achat et dans tous vos projets immobiliers.
Grignan
TERRAIN ET MAISONDans un quartier résidentiel paisible, cette maison de plain-pied vous séduira par sa fonctionnalité et son atmosphère chaleureuse. L’entrée, protégée par un porche couvert, ouvre sur une vaste pièce de vie baignée de lumière, intégrant une cuisine ouverte, idéale pour partager de beaux moments en famille.L’espace nuit comprend trois chambres avec placards, une salle de bains bien agencée et des toilettes indépendantes. Pratique au quotidien, la maison dispose également d’un cellier et d’un garage attenant.Construite dans le respect des dernières normes environnementales, cette maison affiche un DPE A, gage de confort thermique optimal et de faibles dépenses énergétiques.Un bien alliant modernité, praticité et performance, parfait pour une vie sereine au quotidien.Contactez-nous au (Numéro supprimé).Frais de notaire non compris.Cette annonce a été créée et diffusée avec le logiciel VITAHOME.
Grignan
TERRAIN ET MAISONLaissez-vous séduire par cette maison à l’architecture soignée, pensée pour allier volume, lumière naturelle et qualité de vie. Dès l’entrée, vous découvrirez un vaste espace de vie baigné de lumière, où la cuisine ouverte, moderne et fonctionnelle, s’intègre parfaitement. Un cellier attenant vient compléter cet espace avec une touche de praticité bienvenue. Le garage intégré, quant à lui, offre non seulement un stationnement sécurisé, mais aussi un bel espace de rangement.À l’étage, l’espace nuit propose 3 chambres confortables, dont une belle suite parentale avec sa salle d’eau privative. Une seconde salle de bains vient parfaire l’aménagement, idéale pour répondre aux besoins de toute la famille.Nichée dans un quartier paisible tout en restant proche des écoles, commerces et services, cette maison offre un cadre de vie agréable et pratique au quotidien. Elle conviendra parfaitement aux familles en quête d’un lieu à la fois chaleureux, moderne et bien situé.Contactez-nous au (Numéro supprimé).Frais de notaire non compris.Cette annonce a été créée et diffusée avec le logiciel VITAHOME.
L’actualité immobilière à Grignan
27/11/2023
02/11/2023
30/10/2023
20/10/2023
16/10/2023
16/10/2023