Maison à construire à Hauterives (26390)
Images
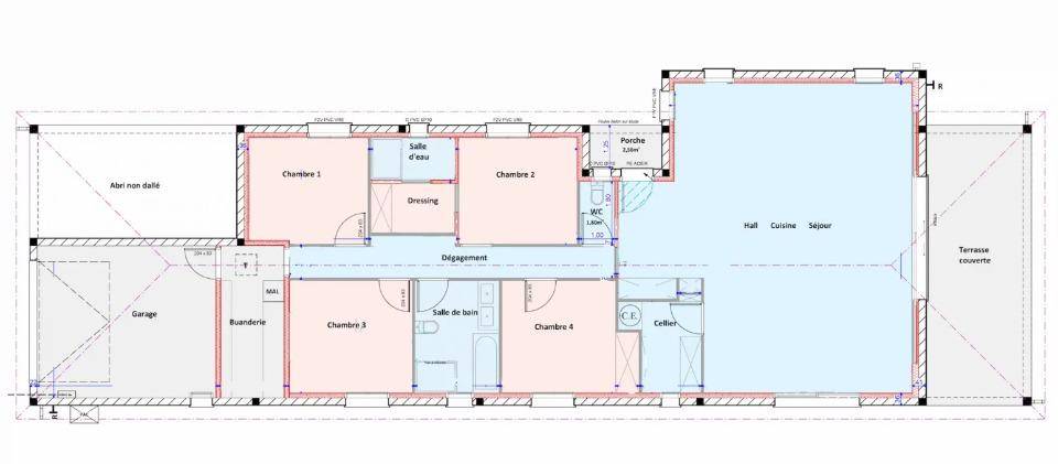
Description
Découvrez l'opportunité unique de vivre dans une maison moderne et confortable à MUREILS. Parfaitement intégrée sur un terrain plat de 957 m², cette maison combine élégance architecturale et environnement fonctionnel. Un espace de vie idéal pour toute la famille.Dotée d'une architecture contemporaine, cette maison de plain-pied de 136 m² offre un confort optimisé pour répondre aux modes de vie actuels. La pièce maîtresse est un séjour cuisine spacieux de plus de 60 m², inondé de lumière et s'ouvrant sur une terrasse en bois. Quatre chambres vous attendent, dont une suite parentale avec dressing et salle d'eau, garantissant une organisation familiale fluide et intime. Une salle de bain, une buanderie, un cellier et de nombreux rangements assurent un quotidien pratique et agréable.- Surface maison : 136 m²- Nombre de pièces : 5- Nombre de chambres : 4- Garage fermé et abri voiture - Pompe à chaleur et isolation performante- Normes de construction : RE2020. Maisons France Confort est un constructeur reconnu pour ses maisons sur-mesure. Depuis plus de 100 ans, nous proposons un accompagnement personnalisé de la conception à la livraison, avec un engagement constant pour la qualité et la satisfaction client. Notre expertise vous garantit une construction durable et adaptée à vos envies.Pour plus d'informations contacter Amandine , votre chargée de projet au (Numéro supprimé)
Logement susceptibles de vous intéresser
Nous vous proposons de découvrir aussi cette sélection de logements situés à moins de 10km de Hauterives et qui seraient susceptibles de vous intéresser.
Saint-Sorlin-en-Valloire
TERRAIN26210 SAINT-SORLIN-EN-VALLOIRE – SUPER EMPLACEMENT – TERRAIN CONSTRUCTIBLE DE 2200.0M² – OPPORTUNITÉ À SAISIR !Quentin ACHOUR et EffiCity, l’agence qui estime votre bien en ligne, vous proposent de découvrir ce terrain idéalement situé à Saint-Sorlin-en-Valloire.Avec une surface de 2200.0m², ce terrain constructible représente une rare opportunité sur le marché de Saint-Sorlin-en-Valloire.Les atouts de ce terrain d’exception sauront vous séduire :- Super emplacement- Vue dégagée sur les alentours- Hors lotissement- Hors copropriété- Idéal pour la construction de votre future résidence- Exposition idéale- Accès rapide aux commodités et aux écoles pour un quotidien facilité- Viabilités en bordure et faciles d’accèsNe manquez pas cette opportunité unique sur le marché de Saint-Sorlin-en-Valloire.Contactez-moi dès maintenant pour organiser une visite et laissez-vous charmer par le potentiel de ce magnifique terrain constructible.Quentin ACHOURVotre consultant immobilier EffiCityDisponible 7 jours sur 7 pour vous accompagner dans votre projet immobilier. Les informations sur les risques auxquels ce bien est exposé sont disponibles sur le site Georisque : georisques. gouv. fr Quentin Achour – EI – est Agent Commercial mandataire en immobilier, immatriculé au Registre Spécial des Agents Commerciaux du Tribunal de Commerce de Romans-sur-Isère sous le n(Numéro supprimé).Siège social du mandant : effiCity, 48 avenue de Villiers – 75017 PARIS – Société par Actions Simplifiée, société au capital de 132 373,05 euros, immatriculée au RCS Paris 497 617 746 et titulaire de la Carte professionnelle CPI 7501 2015 000 002 025 – CCI Paris IDF – Caisse de Garantie : GALIAN Assurances 89 rue de la Boétie 75008 Paris
Châteauneuf-de-Galaure
TERRAIN ET MAISONIdéale premier achat ou retraité Sur une parcelle de 742 m² viabilisé dans une future résidence à bâtir,Cette maison d’une superficie de 70 m², optimisée et évolutive, elle se compose d’une pièce de vie d’une belle surface pour cette maison 3 pièces : plus de 30 m² avec cuisine ouverte. Cette pièce de vie profite d’une double exposition avec ses ouvertures. Les deux chambres, de plus de 10 m², sont chacune équipée d’un placard intégré. Le système de chauffage suggéré vous assurera le plus grand confort dans le respect de la RE 2020, tout en vous assurant de très substantielles économies. Maison prête à décorer, ne vous resterons que les peintures et la cuisine. Votre talent fera le reste ! Plan, disposition, système de chauffage, tout reste entièrement personnalisable selon vos envies. Un accompagnement humain, local et sur mesure.Contactez Amandine Maggioni, votre conseillère Maisons France Confort, et donnez vie à votre projet dès aujourd’hui au (Numéro supprimé)
Châteauneuf-de-Galaure
TERRAIN ET MAISONPROJET DE CONSTRUCTION Maisons France Confort, sur une parcelle constructible de 803 M2 viabilisé au calme, vu dégagée, cette maison de plain-pied de 90m2, fonctionnelle, chaleureuse et pleine de lumière, a été pensée pour conjuguer confort au quotidien et esthétisme intemporel. Une vaste pièce de vie traversante, où salon, salle à manger et cuisine ouverte se fondent dans une atmosphère conviviale. Les trois chambres offrent des espaces nuit cosy et bien séparés, idéals pour une famille ou pour accueillir. Pensée pour s’adapter à votre mode de vie, la maison allie performance énergétique, qualité des matériaux et possibilités de personnalisation. Contactez Amandine Maggioni, votre conseillère Maisons France Confort, et donnez vie à votre projet dès aujourd’hui au (Numéro supprimé)
Châteauneuf-de-Galaure
TERRAINTerrain constructible dans un environnement calme Situé sur la commune de MUREILS (26240) MAISONS France CONFORT vous propose un terrain constructible de 742 m2 viabilisé situé dans un secteur calme et à quelques minutes seulement des commerces, écoles et services, ce beau terrain plat et entièrement viabilisé bénéficie d’une excellente exposition pour un ensoleillement optimal tout au long de la journée. Ce terrain constructible vous offre un cadre idéal pour concrétiser votre projet de vie.Contactez votre chargée de projet Amandine Maggioni dès aujourd’hui pour plus d’information et une étude gratuite de votre projet de construction au (Numéro supprimé). Avec Maisons France Confort, vous bénéficiez du savoir-faire du constructeur N°1 en France et sur le département depuis plus de 18 ans, ainsi que de toutes les garanties du contrat CCMI pour une construction en toute sérénité.
Châteauneuf-de-Galaure
TERRAINMAISONS France CONFORT vous propose un terrain constructible de 803 m2 situé dans un secteur calme et à quelques minutes seulement des commerces, écoles et services, ce beau terrain plat et entièrement viabilisé bénéficie d’une excellente exposition pour un ensoleillement optimal tout au long de la journée. Ce terrain constructible vous offre un cadre idéal pour concrétiser votre projet de vie.Contactez votre chargée de projet Amandine Maggioni dès aujourd’hui pour plus d’information et une étude gratuite de votre projet de construction au (Numéro supprimé)Avec Maisons France Confort, vous bénéficiez du savoir-faire du constructeur N°1 en France et sur le département depuis plus de 18 ans, ainsi que de toutes les garanties du contrat CCMI pour une construction en toute sérénité.
Hauterives
TERRAIN ET MAISONProjet de Construction Maisons France Confort Sur une parcelle constructible de 957 M2 viabilisé avec une vue dégagée, découvrez ce projet de maison neuve sur la commune de MUREILS, à seulement 13 minutes de HAUTERIVESCette maison d’une superficie de 70 m², optimisée et évolutive, elle se compose d’une pièce de vie d’une belle surface pour cette maison 3 pièces : plus de 30 m² avec cuisine ouverte. Cette pièce de vie profite d’une double exposition avec ses ouvertures. Les deux chambres, de plus de 10 m², sont chacune équipée d’un placard intégré. Le système de chauffage suggéré vous assurera le plus grand confort dans le respect de la RE 2020, tout en vous assurant de très substantielles économies. Maison prête à décorer, ne vous resterons que les peintures et la cuisine. Votre talent fera le reste ! Plan, disposition, système de chauffage, tout reste entièrement personnalisable selon vos envies. Construction sur vide sanitaire.Avec Maisons France Confort, vous bénéficiez de l’expérience du constructeur N°1 en France ainsi que de toutes les garanties du contrat CCMI pour construire en toute sérénité. Pour toutes étude de votre projet de construction contactez Amandine Maggioni au (Numéro supprimé), votre chargée de projet sur le secteur.
Manthes
TERRAINTerrain constructible dans un environnement calme Situé sur la commune de Manthes (26210)MAISONS France CONFORT vous propose un terrain constructible de 679 m2 situé dans un secteur calme et à quelques minutes seulement des commerces, écoles et services, ce beau terrain plat et entièrement viabilisé bénéficie d’une excellente exposition pour un ensoleillement optimal tout au long de la journée. Ce terrain constructible vous offre un cadre idéal pour concrétiser votre projet de vie.Contactez votre chargée de projet Amandine Maggioni dès aujourd’hui pour plus d’information et une étude gratuite de votre projet de construction.
Lens-Lestang
TERRAIN ET MAISONDécouvrez l’opportunité unique de vivre dans une maison moderne et confortable à MARGES. Parfaitement intégrée sur un terrain plat de 957 m², cette maison combine élégance architecturale et environnement fonctionnel. Un espace de vie idéal pour toute la famille. Dotée d’une architecture contemporaine, cette maison de plain-pied de 136 m² offre un confort optimisé pour répondre aux modes de vie actuels. La pièce maîtresse est un séjour cuisine spacieux de plus de 60 m², inondé de lumière et s’ouvrant sur une terrasse en bois. Quatre chambres vous attendent, dont une suite parentale avec dressing et salle d’eau, garantissant une organisation familiale fluide et intime. Une salle de bain, une buanderie, un cellier et de nombreux rangements assurent un quotidien pratique et agréable.- Surface maison : 136 m²- Nombre de pièces : 5- Nombre de chambres : 4- Garage fermé et abri voiture – Pompe à chaleur et isolation performante- Normes de construction : RE2020. Pourquoi choisir Maisons France Confort ?Le savoir-faire et la solidité du leader national,Une maison 100 % personnalisable, adaptée à vos envies et votre budget,Des garanties CCMI pour construire en toute sérénité,Un accompagnement humain, local et sur mesure. Contactez Amandine Maggioni, votre conseillère Maisons France Confort, et donnez vie à votre projet dès aujourd’hui au (Numéro supprimé)
Hauterives
TERRAIN ET MAISONDécouvrez l’opportunité unique de vivre dans une maison moderne et confortable à MUREILS. Parfaitement intégrée sur un terrain plat de 957 m², cette maison combine élégance architecturale et environnement fonctionnel. Un espace de vie idéal pour toute la famille.Dotée d’une architecture contemporaine, cette maison de plain-pied de 136 m² offre un confort optimisé pour répondre aux modes de vie actuels. La pièce maîtresse est un séjour cuisine spacieux de plus de 60 m², inondé de lumière et s’ouvrant sur une terrasse en bois. Quatre chambres vous attendent, dont une suite parentale avec dressing et salle d’eau, garantissant une organisation familiale fluide et intime. Une salle de bain, une buanderie, un cellier et de nombreux rangements assurent un quotidien pratique et agréable.- Surface maison : 136 m²- Nombre de pièces : 5- Nombre de chambres : 4- Garage fermé et abri voiture - Pompe à chaleur et isolation performante- Normes de construction : RE2020. Maisons France Confort est un constructeur reconnu pour ses maisons sur-mesure. Depuis plus de 100 ans, nous proposons un accompagnement personnalisé de la conception à la livraison, avec un engagement constant pour la qualité et la satisfaction client. Notre expertise vous garantit une construction durable et adaptée à vos envies.Pour plus d’informations contacter Amandine , votre chargée de projet au (Numéro supprimé)
L’actualité immobilière à Hauterives
27/11/2023
02/11/2023
30/10/2023
20/10/2023
16/10/2023
16/10/2023