Maison à construire à La Baume-de-Transit (26790)
Images
Description
LUMI 113 - Une maison lumineuse et fonctionnelle, pensée pour votre bien-être
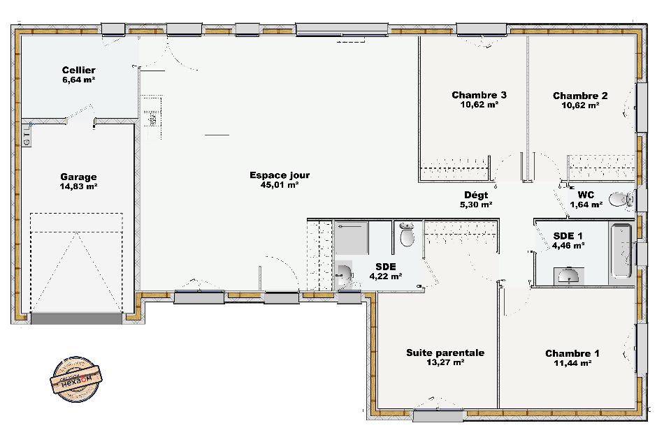
Maisons France Confort vous propose la LUMI 113, un modèle de maison de plain-pied à ossature bois, alliant esthétique, confort et performance. Conçue pour favoriser la lumière naturelle, cette maison offre un cadre de vie chaleureux et agréable au quotidien.
Sa pièce de vie principale, d'une surface de 45,01 m², s'ouvre largement sur l'extérieur, créant un espace convivial et accueillant. L'ossature bois assure une excellente isolation thermique et acoustique, tout en apportant une touche naturelle et douce à l'ensemble.
La maison comprend trois chambres, dont une suite parentale avec salle d'eau privative, garantissant à chacun son espace d'intimité. L'agencement a été pensé pour simplifier le quotidien : un cellier fonctionnel, un garage intégré, deux salles d'eau, des toilettes séparées et un dégagement central facilitent la circulation entre les pièces.
LUMI 113 offre également de nombreuses options pour répondre à vos envies de modernité : volets roulants électriques, centralisation des ouvertures, solutions domotiques... Autant d'équipements pour améliorer le confort de votre foyer.
Pour plus d'informations sur ce modèle ou pour découvrir d'autres projets personnalisables, n'hésitez pas à contacter votre conseiller en construction :
Olivier PUAUX - (Numéro supprimé)
Maisons France Confort
Il vous accompagnera avec plaisir dans toutes les étapes de votre projet de construction.
Logement susceptibles de vous intéresser
Nous vous proposons de découvrir aussi cette sélection de logements situés à moins de 10km de La Baume-de-Transit et qui seraient susceptibles de vous intéresser.
Grillon
TERRAINMAISONS FRANCE CONFORT, vous propose avec ses partenaires fonciers un terrain sur la commune de GRILLON à 5 minutes de GRIGNAN. Cette jolie parcelle de 455m² pour 79 900 €, entièrement viabilisé, est située près du centre du village avec un accès facile aux commodités, ce qui vous assure un grand confort de vie. Dans un environnement calme et agréable pour votre projet de vie, réalisez votre rêve grâce à la maison qui vous ressemble.Vous pouvez contacter votre conseiller construction Olivier PUAUX ((Numéro supprimé)) pour en savoir plus ou vous faire accompagner dans votre recherche de logement.
Grillon
TERRAIN ET MAISONMAISONS FRANCE CONFORT vous propose cette maison pensée pour vous !!!Découvrez cette villa, de 73 m² à la ligne épurée et moderne, conçu pour répondre à vos besoins. Chaque espace de cette maison est optimisé et parfaitement fonctionnel, offrant un cadre de vie harmonieux.À l’intérieur, une cuisine ouverte s’ouvre sur un séjour/salon spacieux et agréable, idéal pour les moments de convivialité en famille ou entre amis.L’espace nuit se compose de trois chambres généreuses et d’une salle de bains de plus de 5 m², offrant confort et intimité.Vous serez également séduit par ses nombreuses options (volets roulants électriques, centralisation, domotique…).Vous avez un coup de coeur pour cette maison ? N’hésitez pas à contacter votre conseiller en construction, Olivier PUAUX au (Numéro supprimé), de MAISONS FRANCE CONFORT. Il se tient à votre disposition pour en savoir plus sur cette habitation, découvrir d’autres modèles ou même créer votre projet personnalisé.
Grillon
TERRAIN ET MAISONDécouvrez Optima 84, une maison pensée pour allier confort, modernité et fonctionnalité.Ce plain-pied séduit par son agencement intelligent et ses volumes optimisés : une vaste pièce de vie de 38 m², baignée de lumière, accueille un espace salon-séjour convivial et une cuisine ouverte idéale pour partager des moments en famille.Côté nuit, vous profiterez de deux chambres confortables, d’une salle de bains familiale, ainsi que d’une suite parentale avec sa salle d’eau privative pour plus d’intimité.Un cellier attenant et un garage intégré complètent l’ensemble, pour un quotidien à la fois pratique et agréable.Dans un style résolument contemporain, cette maison est équipée des dernières technologies : volets roulants électriques, centralisation des fermetures, domotique intégrée… tout est prévu pour simplifier votre vie et renforcer votre confort.Fonctionnelle, lumineuse et moderne, Optima 84 est la maison idéale pour accueillir vos projets et offrir à votre famille un cadre de vie épanouissant.Contactez dès maintenant Olivier PUAUX, votre conseiller MAISONS FRANCE CONFORT, au (Numéro supprimé) pour en savoir plus ou imaginer ensemble votre future maison.
Grillon
TERRAIN ET MAISONSituée dans un quartier paisible, cette maison à construire offre un espace de vie moderne et confortable sur 90m2. Composée de trois chambres, elle est idéale pour une famille. La salle de bain est équipée d’une douche spacieuse, d’un meuble vasque et d’un placard pour plus de commodité. Un cellier pratique complète l’agencement fonctionnel de cette maison.Vous serez également séduit par ses nombreuses options (volets roulants électriques, centralisation, domotique…).Ne manquez pas cette opportunité de personnaliser votre futur chez-vous selon vos goûts et besoins ! Contactez votre conseiller en construction Olivier PUAUX (Numéro supprimé) dès aujourd’hui pour plus d’informations.
Grillon
TERRAIN ET MAISONDécouvrez le modèle Étage GA 4 Ch Design, une maison moderne de 98 m² conçue pour répondre aux besoins actuels des familles : espaces optimisés, luminosité et confort au quotidien.Au rez-de-chaussée, profitez d’une grande pièce de vie traversante de 33 m², baignée de lumière, où la cuisine ouverte s’intègre harmonieusement au séjour.Une chambre de plain-pied apporte une véritable polyvalence d’usage : idéale pour recevoir ou aménager un espace de travail.Un cellier de 4,83 m², donnant accès direct au garage, vient compléter l’ensemble, offrant un espace de rangement pratique et fonctionnel.À l’étage, l’espace nuit se compose de trois chambres spacieuses et d’une salle de bains équipée d’une baignoire et d’une douche, pour un confort adapté à toute la famille.Grâce à la nouvelle gamme Open, vous bénéficiez de finitions personnalisables et de packs évolutifs, afin d’adapter votre maison à vos envies et à vos besoins.Côté confort, rien n’a été laissé au hasard : volets roulants électriques, centralisation des fermetures, domotique intégrée… autant d’équipements modernes pensés pour simplifier votre quotidien et renforcer votre confort.Fonctionnelle, lumineuse et résolument moderne, cette maison offre un cadre de vie idéal pour accueillir votre famille et concrétiser votre projet de vie.Contactez dès maintenant Olivier PUAUX, votre conseiller MAISONS FRANCE CONFORT, au (Numéro supprimé), pour en savoir plus ou imaginer ensemble votre future maison.
Suze-la-Rousse
TERRAIN ET MAISONMaison de 3 pièces (60 m²) en vente à Suze-la-RousseEMPLACEMENT PRIVILÉGIÉ – MAISON 3 PIÈCES NEUVEÀ vendre : à quelques kilomètres de Montélimar, notre agence Maisons France Confort Montélimar est ravie de vous proposer, bénéficiant d’un emplacement d’exception dans Suze-la-Rousse (26790), cette maison de 3 pièces de plain-pied de 60 m² et de 344 m² de terrain.Son intérieur est composé de deux chambres, d’une cuisine et d’une salle de bains. La maison est neuve.La maison se situe dans un quartier attractif. Trois établissements scolaires se trouvent à moins de 10 minutes à pied, tout comme dont le Collège Do Mistrau et l’École Primaire Suze la Rousse. L’autoroute A7 est accessible à 8 km. Il y a une bibliothèque, un tennis, deux boulangeries, trois commerces, trois épiceries, deux boucheries-charcuteries et un bureau de poste à quelques minutes du logement. Ne manquez pas le marché Place du Champ de Mars chaque vendredi matin.Son prix de vente est de 193 900 €.Contactez notre agence (florian DUBOIS : (Numéro supprimé)) pour toute information sur la maison ou sur les modalités de vente. Concrétisez vos projets immobiliers avec Maisons France Confort Montélimar.
Suze-la-Rousse
TERRAIN ET MAISONMaison de 3 pièces (60 m²) en vente à Suze-la-RousseEMPLACEMENT PRIVILÉGIÉ – MAISON 3 PIÈCES NEUVEÀ vendre : à quelques kilomètres de Montélimar, notre agence Maisons France Confort Montélimar est ravie de vous proposer, bénéficiant d’un emplacement d’exception dans Suze-la-Rousse (26790), cette maison de 3 pièces de plain-pied de 60 m² et de 344 m² de terrain.Son intérieur est composé de deux chambres, d’une cuisine et d’une salle de bains. La maison est neuve.La maison se situe dans un quartier attractif. Trois établissements scolaires se trouvent à moins de 10 minutes à pied, tout comme dont le Collège Do Mistrau et l’École Primaire Suze la Rousse. L’autoroute A7 est accessible à 8 km. Il y a une bibliothèque, un tennis, deux boulangeries, trois commerces, trois épiceries, deux boucheries-charcuteries et un bureau de poste à quelques minutes du logement. Ne manquez pas le marché Place du Champ de Mars chaque vendredi matin.Son prix de vente est de 193 900 €.Contactez notre agence (florian DUBOIS : (Numéro supprimé)) pour toute information sur la maison ou sur les modalités de vente. Concrétisez vos projets immobiliers avec Maisons France Confort Montélimar.
Suze-la-Rousse
TERRAIN ET MAISONSuze-la-Rousse : maison de 5 pièces (93 m²) en venteEMPLACEMENT PRIVILÉGIÉ – MAISON 5 PIÈCES NEUVEÀ vendre : à deux pas de Montélimar, découvrez cette maison de 5 pièces de 93 m² et de 344 m² de terrain bénéficiant d’un emplacement d’exception dans Suze-la-Rousse (26790).C’est une maison de 2 niveaux. Elle dispose de trois chambres, d’une cuisine et d’une salle de bains. Cette maison est neuve.Le bien se trouve dans un secteur prisé. Il y a trois établissements scolaires à moins de 10 minutes à pied et dont le Collège Do Mistrau et l’École Primaire Suze la Rousse. L’autoroute A7 est accessible à 8 km. On trouve une bibliothèque, un tennis, deux boulangeries, trois commerces, deux boucheries-charcuteries, trois épiceries et un bureau de poste dans les environs. Le marché Place du Champ de Mars anime les environs tous les vendredis matin.Son prix de vente est de 282 656 €.Contactez florian DUBOIS ((Numéro supprimé)) pour obtenir de plus amples renseignements sur la maison, sur les modalités de vente ou sur les démarches à suivre.
Suze-la-Rousse
TERRAIN ET MAISONMaison de 5 pièces (83 m²) à vendre à Suze-la-RousseEMPLACEMENT PRIVILÉGIÉ – MAISON 5 PIÈCES NEUVEÀ vendre : à 29 km de Montélimar, bénéficiant d’un emplacement privilégié dans Suze-la-Rousse (26790), ayez le coup de coeur pour cette maison de 5 pièces de plain-pied de 83 m².Conçue de plain-pied, elle offre trois chambres, une cuisine et une salle de bains. La maison est neuve.Le terrain de la propriété est de 344 m².Cette maison se trouve dans un quartier attractif. Il y a trois établissements scolaires à moins de 10 minutes à pied et, comme le Collège Do Mistrau ou l’École Primaire Suze la Rousse. On trouve un accès à l’autoroute A7 à 8 km. On trouve une bibliothèque, un tennis, deux boulangeries, trois commerces, deux boucheries-charcuteries, trois épiceries et un bureau de poste à quelques minutes. Enfin, le marché Place du Champ de Mars anime les environs tous les vendredis matin.Elle est à vendre pour la somme de 213 677 €.Prenez contact avec florian DUBOIS ((Numéro supprimé)) pour toute information sur la propriété et sur les démarches à suivre.
L’actualité immobilière à La Baume-de-Transit
27/11/2023
02/11/2023
30/10/2023
20/10/2023
16/10/2023
16/10/2023