Maison à construire à La Motte-de-Galaure (26240)
Images
Description
Projet de construction sur une parcelle constructible de 803 M2 viabilisé, secteur calme, vu dégagée, proche commodités.
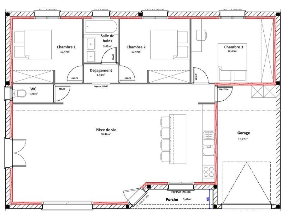
Fonctionnelle, chaleureuse et pleine de lumière, cette maison de plain-pied de 90 m² a été pensée pour conjuguer confort au quotidien et esthétisme intemporel.
Dès l'extérieur, la maison séduit par ses lignes épurées, son toit tuilé typique de la région, et ses belles ouvertures qui invitent la lumière à entrer. La terrasse, baignée de soleil, prolonge l'espace de vie vers un jardin fleuri où chaque instant devient une parenthèse de bien-être. Un espace repas sous pergola, des transats à l'ombre, une ambiance conviviale et naturelle... Tout y est pour savourer les beaux jours en toute intimité.
À l'intérieur, les volumes s'articulent intelligemment autour d'une vaste pièce de vie traversante, où salon, salle à manger et cuisine ouverte se fondent dans une atmosphère conviviale. Les trois chambres offrent des espaces nuit cosy et bien séparés, idéals pour une famille ou pour accueillir. Le garage intégré ajoute une touche de praticité, tout en conservant l'élégance architecturale du projet.
Pensée pour s'adapter à votre mode de vie, la maison allie performance énergétique, qualité des matériaux et possibilités de personnalisation.
Pourquoi choisir Maisons France Confort ?
Le savoir-faire et la solidité du leader national,
Une maison 100 % personnalisable, adaptée à vos envies et votre budget,
Des garanties CCMI pour construire en toute sérénité,
Un accompagnement humain, local et sur mesure.
Contactez Amandine Maggioni, votre conseillère Maisons France Confort, et donnez vie à votre projet dès aujourd'hui au (Numéro supprimé)
Logement susceptibles de vous intéresser
Nous vous proposons de découvrir aussi cette sélection de logements situés à moins de 10km de La Motte-de-Galaure et qui seraient susceptibles de vous intéresser.
Anneyron
TERRAINSur la commune de ANNEYRON (26140), Maisons France Confort vous propose dans une futur résidence à bâtir , une parcelle constructible de 567 m2 viabilisé , au calme et proche de L’autoroute A7 et la nationale N7qui sont accessibles à moins de 9 minutes .Contactez votre chargée de projet Amandine Maggioni dès aujourd’hui pour plus d’information et une étude gratuite de votre projet de construction au (Numéro supprimé)
Saint-Uze
TERRAINTerrain constructible dans un environnement calme Situé sur la commune de ST UZE, (26240)MAISONS France CONFORT vous propose un terrain constructible de 500 m2 viabilisé, dans un secteur calme et à quelques minutes seulement des commerces, écoles et services, ce beau terrain et entièrement viabilisé bénéficie d’une excellente exposition pour un ensoleillement optimal tout au long de la journée. Ce terrain constructible vous offre un cadre idéal pour concrétiser votre projet de vie.Contactez votre chargée de projet Amandine Maggioni dès aujourd’hui pour plus d’information et une étude gratuite de votre projet de construction au (Numéro supprimé)
Anneyron
TERRAIN ET MAISONMaison T4 (91 m²) en vente à AnneyronIDÉALEMENT SITUÉE – MAISON 4 PIÈCES NEUVEÀ vendre : à deux pas de Romans-sur-Isère, nous sommes heureux de vous présenter cette maison de 4 pièces de 91 m² idéalement située dans Anneyron (26140). Son intérieur comporte trois chambres, une cuisine et une salle de bains.Le terrain de la maison est de 567 m².Il s’agit d’une maison de 2 niveaux. Elle est neuve.Cette maison est située dans un secteur convoité. Il y a l’École Buissonnante, l’École Paul Eluard et l’École Maternelle Publique le Petit Prince à moins de 10 minutes à pied et deux structures d’accueil pour la petite enfance. Niveau transports en commun, on trouve la gare Saint-Rambert-d’Albon à moins de 10 minutes en voiture. L’autoroute A7 et la nationale N7 sont accessibles à moins de 9 km. Il y a un tennis, une bibliothèque, trois boulangeries, des commerces, un supermarché, un bureau de poste et une boucherie-charcuterie dans les environs. Ne manquez pas le marché Place de la Mairie tous les mardis matin.Son prix de vente est de 258 800 €.Contactez notre agence (Amandine MAGGIONI : (Numéro supprimé)) pour tout renseignement sur la maison ou sur les modalités de vente.
Anneyron
TERRAIN ET MAISONMaison T4 (91 m²) en vente à AnneyronIDÉALEMENT SITUÉE – MAISON 4 PIÈCES NEUVEÀ vendre : à deux pas de Romans-sur-Isère, nous sommes heureux de vous présenter cette maison de 4 pièces de 91 m² idéalement située dans Anneyron (26140). Son intérieur comporte trois chambres, une cuisine et une salle de bains.Le terrain de la maison est de 567 m².Il s’agit d’une maison de 2 niveaux. Elle est neuve.Cette maison est située dans un secteur convoité. Il y a l’École Buissonnante, l’École Paul Eluard et l’École Maternelle Publique le Petit Prince à moins de 10 minutes à pied et deux structures d’accueil pour la petite enfance. Niveau transports en commun, on trouve la gare Saint-Rambert-d’Albon à moins de 10 minutes en voiture. L’autoroute A7 et la nationale N7 sont accessibles à moins de 9 km. Il y a un tennis, une bibliothèque, trois boulangeries, des commerces, un supermarché, un bureau de poste et une boucherie-charcuterie dans les environs. Ne manquez pas le marché Place de la Mairie tous les mardis matin.Son prix de vente est de 258 800 €.Contactez notre agence (Amandine MAGGIONI : (Numéro supprimé)) pour tout renseignement sur la maison ou sur les modalités de vente.
Saint-Uze
TERRAIN ET MAISONDevenez propriétaire à SAINT-UZE(26240) – Maison 70 m² + Terrain -184564 €Maisons France Confort – vous propose, dans un nouveau lotissement, à proximité immédiate du centre ville , la construction d’une maison moderne de 70 m² parfaitement pensée pour les primo-accédants. Atouts de votre projet :Maison neuve, moderne et économe en énergieEspaces fonctionnels et lumineuxTerrain idéalement situé, proche des écoles, commerces et servicesAccession facilitée grâce au PTZ (Prêt à Taux Zéro)Prix clé en main :184564 € (terrain + maison)Contactez Amandine Maggioni, votre conseillère Maisons France Confort, et donnez vie à votre projet dès aujourd’hui au (Numéro supprimé) .Déjà plus de 100 000 familles nous ont fait confiance, pourquoi pas vous ?Avec Maisons France Confort, vous bénéficiez de l’expérience du constructeur N°1 en France ainsi que de toutes les garanties du contrat CCMI pour construire en toute sérénité.
Anneyron
TERRAIN ET MAISONAnneyron : maison T4 (85 m²) à vendreIDÉALEMENT SITUÉE – MAISON 4 PIÈCES NEUVEÀ 27 km de Romans-sur-Isère, en vente idéalement située dans Anneyron (26140), laissez vous charmer par cette maison de 4 pièces de plain-pied de 85 m² et de 567 m² de terrain. Elle compte trois chambres, une cuisine et une salle de bains.Cette maison est neuve.La maison se situe dans un quartier recherché. Il y a l’École Buissonnante, l’École Paul Eluard et l’École Maternelle Publique le Petit Prince à moins de 10 minutes à pied et deux crèches. Niveau transports en commun, on trouve la gare Saint-Rambert-d’Albon à moins de 10 minutes en voiture. L’autoroute A7 et la nationale N7 sont accessibles à moins de 9 km. Il y a un tennis, une bibliothèque, trois boulangeries, des commerces, un supermarché, une boucherie-charcuterie et un bureau de poste à quelques minutes du logement. Enfin, le marché Place de la Mairie a lieu tous les mardis matin.Son prix de vente est de 235 000 €.Contactez Amandine MAGGIONI ((Numéro supprimé)) pour toute information sur la maison. Maisons France Confort Montélimar est là pour vous accompagner dans tous vos projets immobiliers.
Saint-Sorlin-en-Valloire
TERRAIN26210 SAINT-SORLIN-EN-VALLOIRE – SUPER EMPLACEMENT – TERRAIN CONSTRUCTIBLE DE 2200.0M² – OPPORTUNITÉ À SAISIR !Quentin ACHOUR et EffiCity, l’agence qui estime votre bien en ligne, vous proposent de découvrir ce terrain idéalement situé à Saint-Sorlin-en-Valloire.Avec une surface de 2200.0m², ce terrain constructible représente une rare opportunité sur le marché de Saint-Sorlin-en-Valloire.Les atouts de ce terrain d’exception sauront vous séduire :- Super emplacement- Vue dégagée sur les alentours- Hors lotissement- Hors copropriété- Idéal pour la construction de votre future résidence- Exposition idéale- Accès rapide aux commodités et aux écoles pour un quotidien facilité- Viabilités en bordure et faciles d’accèsNe manquez pas cette opportunité unique sur le marché de Saint-Sorlin-en-Valloire.Contactez-moi dès maintenant pour organiser une visite et laissez-vous charmer par le potentiel de ce magnifique terrain constructible.Quentin ACHOURVotre consultant immobilier EffiCityDisponible 7 jours sur 7 pour vous accompagner dans votre projet immobilier. Les informations sur les risques auxquels ce bien est exposé sont disponibles sur le site Georisque : georisques. gouv. fr Quentin Achour – EI – est Agent Commercial mandataire en immobilier, immatriculé au Registre Spécial des Agents Commerciaux du Tribunal de Commerce de Romans-sur-Isère sous le n(Numéro supprimé).Siège social du mandant : effiCity, 48 avenue de Villiers – 75017 PARIS – Société par Actions Simplifiée, société au capital de 132 373,05 euros, immatriculée au RCS Paris 497 617 746 et titulaire de la Carte professionnelle CPI 7501 2015 000 002 025 – CCI Paris IDF – Caisse de Garantie : GALIAN Assurances 89 rue de la Boétie 75008 Paris
Châteauneuf-de-Galaure
TERRAIN ET MAISONIdéale premier achat ou retraité Sur une parcelle de 742 m² viabilisé dans une future résidence à bâtir,Cette maison d’une superficie de 70 m², optimisée et évolutive, elle se compose d’une pièce de vie d’une belle surface pour cette maison 3 pièces : plus de 30 m² avec cuisine ouverte. Cette pièce de vie profite d’une double exposition avec ses ouvertures. Les deux chambres, de plus de 10 m², sont chacune équipée d’un placard intégré. Le système de chauffage suggéré vous assurera le plus grand confort dans le respect de la RE 2020, tout en vous assurant de très substantielles économies. Maison prête à décorer, ne vous resterons que les peintures et la cuisine. Votre talent fera le reste ! Plan, disposition, système de chauffage, tout reste entièrement personnalisable selon vos envies. Un accompagnement humain, local et sur mesure.Contactez Amandine Maggioni, votre conseillère Maisons France Confort, et donnez vie à votre projet dès aujourd’hui au (Numéro supprimé)
Fay-le-Clos
TERRAIN ET MAISONIdéale premier achat ou retraité Sur une parcelle de 957 m² viabilisé dans une future résidence à bâtir, environnement calmeCette maison d’une superficie de 70 m², optimisée et évolutive, elle se compose d’une pièce de vie d’une belle surface pour cette maison 3 pièces : plus de 30 m² avec cuisine ouverte. Cette pièce de vie profite d’une double exposition avec ses ouvertures. Les deux chambres, de plus de 10 m², sont chacune équipée d’un placard intégré. Le système de chauffage suggéré vous assurera le plus grand confort dans le respect de la RE 2020, tout en vous assurant de très substantielles économies. Maison prête à décorer, ne vous resterons que les peintures et la cuisine. Votre talent fera le reste ! Plan, disposition, système de chauffage, tout reste entièrement personnalisable selon vos envies. Construction sur vide sanitaire. Contactez Amandine MAGGIONI, Maisons France Confort, pour toutes étude de votre projet de construction. (Numéro supprimé)
L’actualité immobilière à La Motte-de-Galaure
27/11/2023
02/11/2023
30/10/2023
20/10/2023
16/10/2023
16/10/2023