Maison à construire à Laveyron (26240)
Images
Description
Laveyron : maison de 4 pièces (93 m²) à vendre
IDÉALEMENT SITUÉE - MAISON 4 PIÈCES NEUVE
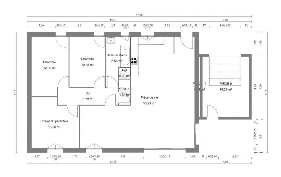
À 24 km de Romans-sur-Isère, en vente idéalement située dans Laveyron (26240), nous vous présentons cette maison de 4 pièces de plain-pied de 93 m² et de 429 m² de terrain. Elle offre trois chambres, une cuisine et une salle de bains.
La maison est neuve.
La maison se trouve dans un quartier recherché. L'École Primaire des Bords du Rhône est implantée à moins de 10 minutes à pied, tout comme une structure d'accueil pour les tout-petits. Niveau transports en commun, il y a deux gares (Saint-Vallier sur Rhône et Saint-Rambert-d'Albon) à moins de 10 minutes en voiture. La nationale N7 est accessible à 1 km.
Elle est proposée à l'achat pour 225 558 €.
N'hésitez pas à prendre contact avec Amandine MAGGIONI ((Numéro supprimé)) pour obtenir de plus amples informations sur la maison, sur les démarches à suivre ou sur les modalités de vente. Maisons France Confort Montélimar vous accompagne dans tous vos projets immobiliers et dans toutes vos démarches.
Logement susceptibles de vous intéresser
Nous vous proposons de découvrir aussi cette sélection de logements situés à moins de 10km de Laveyron et qui seraient susceptibles de vous intéresser.
Laveyron
TERRAINSitué dans un futur petit lotissement sur les hauteurs de St Vallier et Laveyron, dans un quartier calme et pavillonnaire avec vue dégagée, ce terrain est prêt pour accueillir votre future maison de plain-pied ou à étage.Ce terrain est situé au calme mais à 5 minutes des commerce.Très beau terrain légèrement pentu de 449 m² dans quartier pavillonnaire et calme (autres surface disponibles jusqu’à 610 m²).La commune de Laveyron est située sur le secteur de la communauté de Communes de Porte de Dromardèche, dans le Nord de la Drôme.Bénéficiant de tous les commerces et service de proximité, sur l’axe N7, la commune de Laveyron est accueillante et propose une école et/ou un ramassage scolaire pour les enfants.A visiter rapidementContactez dés à présent Amandine Maggioni, MAisons France Confort au (Numéro supprimé)
Champagne
TERRAIN ET MAISONDe plain-pied ce modèle de maison contemporaine a été conçu par notre bureau d’études en 4 versions.4 plans pour cette maison contemporaine de plain-pied pour vous permettre de trouver la configuration qui correspond le mieux à vos envies. Changez les couleurs des jeux d’enduits selon vos préférences ou les impératifs du PLU, choisissez un plan de maison avec ou sans garage, préférez 3 à 4 chambres ou 3 chambres et un bureau ou 3 chambres et une plus grande pièce de vie …Une maison contemporaine et modulableL’avantage de la maison FLORIDE c’est définitivement sa modularité.Ce modèle résolument contemporain qui se décline en plusieurs versions, de 95 à 132 m², vous permet d’envisager plusieurs configurations selon votre mode de vie :une maison de 95 m² avec 3 chambres situées en retrait du salon-séjour et desservies par un dégagement tout en longueur,une maison de 105 m² avec 3 chambres et en complément un bureau ultra fonctionnel,une maison de 115 m² où le salon forme un L avec une cuisine semi-ouverte et 3 spacieuses chambres dont l’agencement optimise le confort acoustique de chacune,une maison de 132 m² comprenant un salon en L doté d’une triple exposition, 4 chambres, un bureau et un garage.Contact et renseignements: Cédric RÊTEUX (Numéro supprimé)
Champagne
TERRAIN ET MAISONCette maison à étage au caractère méditerranéen séduit par ses volumes et ses agencements intérieurs.L’un des points fort de cette construction est le grand salon-séjour qui se prolonge sur une agréable terrasse couverte.Une grande cuisine de plus de 11m2 permet de profiter des repas en famille. Elle communique avec le cellier et le garage pour une vie plus simple au quotidien (gestion des courses, stockage…).Le hall d’entrée central réunit toutes les pièces à vivre, ainsi qu’une première chambre avec sa salle d’eau qui deviendra la suite parentale. L’escalier mène à un palier qui dessert le reste de la partie nuit, composée de 3 belles chambres et d’une grande salle de bain avec double vasque, douche et baignoire.Fonctionnelle, chaque chambre de cette maison de 130 m2 dispose de placards.Vous préférez une cuisine ouverte ? Vous souhaitez revoir l’agencement d’une pièce ? C’est possible car ce modèle est 100% personnalisable ! Prix indicatif hors peintures, hors options et hors frais annexes. Terrain sélectionné et vu pour vous sous réserve de disponibilité et au prix indiqué par notre partenaire foncier. Visuels non contractuels.Contact et renseignements: Cédric RÊTEUX (Numéro supprimé)Projet de construction signé les Maisons MCAMaisons de la Côte Atlantique Saintes est là pour vous accompagner dans tous vos projets immobiliers.
Champagne
TERRAINTerrain viabilisé à la sortie du charmant village de Champagne.Boulangerie et école primaire accessibles à pied. Ecole, collège et Lycée à moins de 5 minutes en voiture. Environnement calme.Dans ce même secteur nous disposons de nombreux terrains, n’hésitez pas à contacter votre conseiller pour un devis gratuit, rapide et sans engagement, du lundi au samedi de 9h00 à 19h00 sans interruption.Terrain de notre partenaire foncier. Non mandaté pour réaliser la vente.Contact : Cédric RÊTEUX (Numéro supprimé)Maisons MCA Saintes
Champagne
TERRAIN ET MAISONFort d’une expérience de près de 40 ans, Maisons MCA vous accompagne dans votre projet.Maison de plain-pied de 84 m², comprenant une belle pièce à vivre lumineuse, dédiée à la cuisine et au séjour, 3 chambres, une salle d’eau équipée, un WC, cellier et un garage.Outre ses nombreuses possibilités de personnalisations, cette maison saura aussi vous séduire par la qualité de ses menuiseries et de ses équipements, notamment ses volets roulants motorisés. Ces derniers sont pilotables depuis votre smartphone ou votre tablette grâce à la box domotique fournie.Pour un confort optimal en toute saison, le séjour/cuisine est équipé d’émetteurs Air/Air permettant de chauffer ou climatiser le volume de la pièce très rapidement.Cette maison est conforme à la Réglementation Environnementale 2020 (RE 2020).Classe énergétique : AGaranties et assurances obligatoires incluses (voir détails en agence). Prix indicatif hors peintures et hors options. Dans ce même secteur nous disposons de nombreux terrains, n’hésitez pas à contacter Cédric RÊTEUX pour un devis gratuit, rapide et sans engagement, du lundi au samedi de 9h00 à 19h00 sans interruption.Renseignements Cédric RÊTEUX (Numéro supprimé)Projet de construction Maisons MCA
Anneyron
TERRAIN🏡 Construisez votre maison à Anneyron (26140) avec le leader de la maison individuelle !Venez découvrir ce magnifique terrain plat et viabilisé de 400 m² situé sur la belle commune d’Anneyron, à proximité des écoles, commerces et axes principaux.Un emplacement idéal pour concrétiser votre projet de vie dans un cadre calme et verdoyant 🌿Avec Maisons France Confort, leader français de la construction de maisons individuelles depuis plus de 110 ans, profitez d’un accompagnement complet, du choix du terrain jusqu’à la remise des clés 🔑Conception respectant la réglementation RE 2020 pour un confort et des économies d’énergie au quotidien 🌍💪 Pourquoi choisir Maisons France Confort ?Le savoir-faire et la solidité du leader national,Une maison 100 % personnalisable, adaptée à vos envies et votre budget,Des garanties CCMI pour construire en toute sérénité,Un accompagnement humain, local et sur mesure.📞 Contactez Amandine Maggioni, votre conseillère Maisons France Confort à Anneyron, et donnez vie à votre projet dès aujourd’hui au (Numéro supprimé)
Anneyron
TERRAIN🏡 Construisez votre maison à Anneyron(26140) avec le leader de la maison individuelle !Venez découvrir ce magnifique terrain plat et viabilisé de 600 m² situé sur la belle commune d’Anneyron, à proximité des écoles, commerces et axes principaux.Un emplacement idéal pour concrétiser votre projet de vie dans un cadre calme et verdoyant 🌿Avec Maisons France Confort, leader français de la construction de maisons individuelles depuis plus de 110 ans, profitez d’un accompagnement complet, du choix du terrain jusqu’à la remise des clés 🔑Conception respectant la réglementation RE 2020 pour un confort et des économies d’énergie au quotidien 🌍💪 Pourquoi choisir Maisons France Confort ?Le savoir-faire et la solidité du leader national,Une maison 100 % personnalisable, adaptée à vos envies et votre budget,Des garanties CCMI pour construire en toute sérénité,Un accompagnement humain, local et sur mesure.📞 Contactez Amandine Maggioni, votre conseillère Maisons France Confort à Anneyron, et donnez vie à votre projet dès aujourd’hui au (Numéro supprimé)
Saint-Uze
TERRAIN ET MAISONSur une parcelle de 500 m² viabilisé dans un lotissement, sur la commune de Saint-UZE (26240) Cette maison d’une superficie de 65 m²,optimisée et évolutive, elle se compose d’une pièce de vie d’une belle surface pour cette maison 3 pièces : plus de 30 m² avec cuisine ouverte. Cette pièce de vie profite d’une double exposition avec ses ouvertures. Les deux chambres, de plus de 10 m², sont chacune équipée d’un placard intégré. le système de chauffage suggéré vous assurera le plus grand confort dans le respect de la RE 2020, tout en vous assurant de très substantielles économies. Maison prête à décorer, ne vous resterons que les peintures et la cuisine. Votre talent fera le reste ! Plan, disposition, système de chauffage, tout reste entièrement personnalisable selon vos envies. Construction sur vide sanitaire. Pour tous renseignements et étude personnalisé de votre projet de construction, contactez Amandine Maggioni, Maisons France Confort au (Numéro supprimé)
Saint-Uze
TERRAIN ET MAISONRépartie sur deux étages, cette maison de 83 m² profite de nombreuses ouvertures et baies vitrées qui illuminent les pièces et les rendent particulièrement agréable à vivre. Au rez-de-chaussée on trouve une grande pièce à vivre et cuisine de 45 m² , un garage. L’étage de la maison s’organise quant à lui en 3 grandes chambres et une salle de bain,WC, pour accueillir toute la famille. Pour tous renseignements et étude personnalisé de votre projet de construction, contactez Amandine Maggioni, Maisons France Confort au (Numéro supprimé)Toutes nos constructions sont conformes à la RE2020.Suivant disponibilité de notre partenaire foncier. En tant que constructeur nous n’intervenons pas dans la vente du terrain. Garanties branchement et raccordements compris dans le prix du bien. Plusieurs projets dans le secteur
L’actualité immobilière à Laveyron
27/11/2023
02/11/2023
30/10/2023
20/10/2023
16/10/2023
16/10/2023