Maison à construire à Le Poët-Laval (26160)
Images
Description
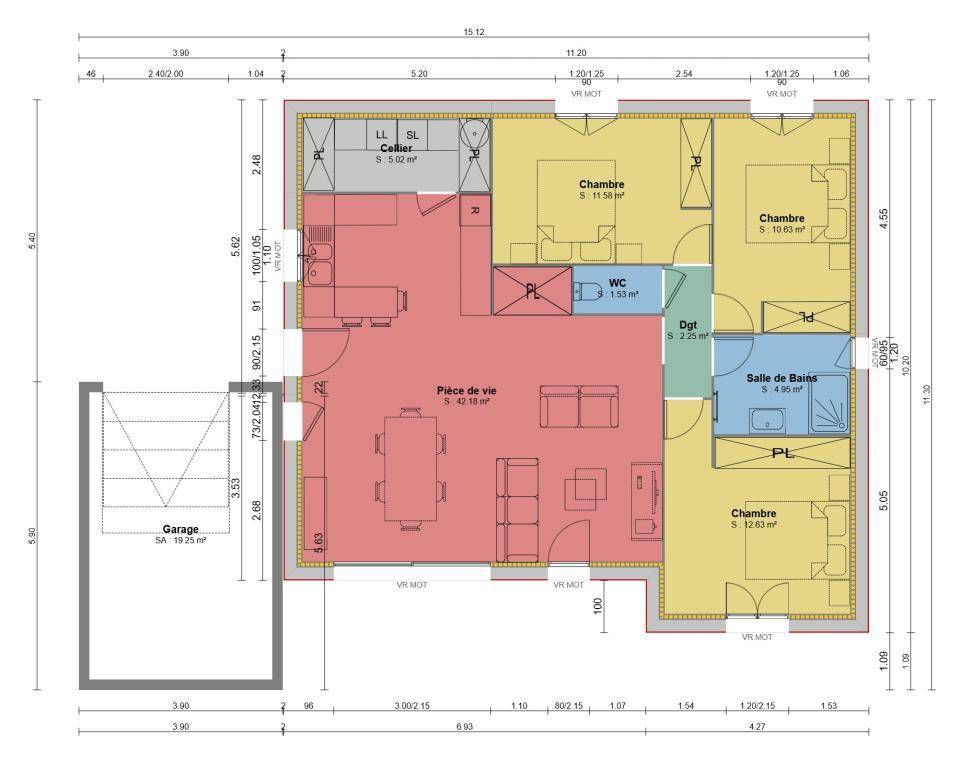
Découvrez une maison moderne, élégante et performante, pensée pour offrir un confort optimal au quotidien !
Avec ses 90 m² parfaitement agencés, cette maison conjugue design contemporain, efficacité énergétique et bien-être intérieur, le tout dans le respect de la réglementation environnementale RE2020.
Dès l'entrée, vous serez séduit par sa grande pièce de vie lumineuse, ouverte sur la cuisine, idéale pour partager des moments conviviaux en famille ou entre amis.
Les trois chambres offrent un espace intime et fonctionnel, tandis que le garage et le cellier apportent une véritable praticité au quotidien.
Côté confort, rien n'a été laissé au hasard : volets roulants électriques, centralisation, domotique et surtout un système de chauffage par pompe à chaleur, à la fois économique et respectueux de l'environnement. Vous profitez ainsi d'une maison agréable à vivre, été comme hiver, tout en maîtrisant vos consommations énergétiques.
Parce que chaque projet est unique, nous adaptons ensemble ce plan à votre mode de vie et à votre terrain.
Mon rôle est de vous accompagner à chaque étape de votre construction, pour faire de ce projet une maison qui vous ressemble pleinement.
Contactez-moi au (Numéro supprimé) pour en discuter et commencer à bâtir votre futur chez-vous.
Olivier PUAUX - Conseiller Maisons France Confort
Logement susceptibles de vous intéresser
Nous vous proposons de découvrir aussi cette sélection de logements situés à moins de 10km de Le Poët-Laval et qui seraient susceptibles de vous intéresser.
Le Poët-Laval
TERRAINMAISONS FRANCE CONFORT vous propose, avec son partenaire foncier, un superbe terrain sur la commune de Le Poët-Laval, à seulement 5 minutes de Dieulefit.Découvrez cette magnifique parcelle de 500 m², entièrement viabilisée, au prix de 105 000 €. Située à proximité de toutes les commodités, elle vous assure un confort de vie optimal.Implantée dans un environnement calme et agréable, cette opportunité est idéale pour concrétiser votre projet de vie et bâtir la maison de vos rêves.Pour plus d’informations ou pour être accompagné dans votre recherche de logement, contactez votre conseiller construction Olivier PUAUX au (Numéro supprimé).
Le Poët-Laval
TERRAIN ET MAISONDécouvrez une maison moderne, élégante et performante, pensée pour offrir un confort optimal au quotidien !Avec ses 90 m² parfaitement agencés, cette maison conjugue design contemporain, efficacité énergétique et bien-être intérieur, le tout dans le respect de la réglementation environnementale RE2020.Dès l’entrée, vous serez séduit par sa grande pièce de vie lumineuse, ouverte sur la cuisine, idéale pour partager des moments conviviaux en famille ou entre amis.Les trois chambres offrent un espace intime et fonctionnel, tandis que le garage et le cellier apportent une véritable praticité au quotidien.Côté confort, rien n’a été laissé au hasard : volets roulants électriques, centralisation, domotique et surtout un système de chauffage par pompe à chaleur, à la fois économique et respectueux de l’environnement. Vous profitez ainsi d’une maison agréable à vivre, été comme hiver, tout en maîtrisant vos consommations énergétiques.Parce que chaque projet est unique, nous adaptons ensemble ce plan à votre mode de vie et à votre terrain.Mon rôle est de vous accompagner à chaque étape de votre construction, pour faire de ce projet une maison qui vous ressemble pleinement.Contactez-moi au (Numéro supprimé) pour en discuter et commencer à bâtir votre futur chez-vous.Olivier PUAUX – Conseiller Maisons France Confort
Pont-de-Barret
TERRAINMAISONS FRANCE CONFORT, vous propose avec son partenaire foncier un terrain sur la commune de PONT-DE-BARRET à 10 minutes de CLEON-D’ANDRAN.Cette jolie parcelle de 478 m² pour 82 000 €, entièrement viabilisé, est située à proximité des commodités, ce qui vous assure un grand confort de vie. Dans un environnement calme et agréable pour votre projet de vie, réalisez votre rêve grâce à la maison qui vous ressemble.Vous pouvez contacter votre conseiller construction Olivier PUAUX ((Numéro supprimé)) pour en savoir plus ou vous faire accompagner dans votre recherche de logement.
Pont-de-Barret
TERRAIN ET MAISONSituée dans un cadre calme et agréable, cette maison de 121 m² offre une pièce de vie spacieuse et lumineuse, parfaite pour des moments de convivialité en famille.La cuisine ouverte, donnant sur le cellier, ajoute une touche de modernité et de fonctionnalité à cet espace. Avec ses 4 chambres bien agencées, dont une suite parentale en rez-de-chaussée avec dressing et salle d’eau, cette maison RE 2020, vous procure un confort de vie et une efficacité énergétique incomparable. Un garage vient également compléter cet habitat.Ne manquez pas l’opportunité de vivre dans une maison qui allie style contemporain et praticité au quotidien!Votre conseiller en construction Olivier PUAUX (Numéro supprimé) MAISONS FRANCE CONFORT se tient à votre disposition pour en savoir plus à propos de cette habitation, en découvrir d’autres ou bien même créer votre projet personnalisé.Contactez-le sans plus tarder, pour donner vie à votre projet !!!
Pont-de-Barret
TERRAIN ET MAISONQue diriez-vous d’une maison conviviale et chaleureuse ? C’est la promesse de cette villa ! Cette maison de 83 m² propose au rez-de-chaussée une magnifique pièce de vie de 40,30 m², traversante et baignée de lumière. Chaque espace est exploité pour s’adapter à votre quotidien et créer une ambiance cosy.Pour le côté pratique, vous apprécierez la présence d’un garage de 19,80 m² jouxtant cet habitat.A l’étage, 3 belles chambres vous-y attendent, complétées par une grande salle de bains proposant baignoire, une vasque ainsi qu’un second WC. Chacune des chambres disposent d’un placard intégré offrant un aménagement et une décoration soignés, que ce soit dans un style contemporain ou plutôt scandinave. Pour l’aspect extérieur, les menuiseries de couleur anthracite apportent une signature architecturale bien distincte pour une maison totalement à votre goût !Vous souhaitez en savoir plus ? Votre conseiller Olivier PUAUX ((Numéro supprimé)), vous accompagne dans la réalisation de ce projet de construction en définissant avec vous votre plan de maison. Contactez-le sans plus tarder, pour donner vie à votre projet !!!
Pont-de-Barret
TERRAIN ET MAISONAvec son architecture en L, la maison de plain-pied Natura 90 est pensée pour distinguer l’espace de vie de l’espace de nuit. En effet, une aile est réservée aux pièces de vie avec l’entrée, le salon, la salle à manger et la cuisine dans un espace ouvert et lumineux, et dans l’autre aile, 3 chambres, une salle de bains et le garage. Le tout dans une maison fonctionnelle et agréable. Vous souhaitez en savoir plus ?Votre conseiller MAISONS FRANCE CONFORT Olivier PUAUX ((Numéro supprimé)), vous accompagne dans la réalisation de ce projet de construction en définissant avec vous votre plan de maison. Contactez-le sans plus tarder, pour donner vie à votre projet !!!
Pont-de-Barret
TERRAINMAISONS FRANCE CONFORT, vous propose avec son partenaire foncier un terrain sur la commune de PONT-DE-BARRET à 10 minutes de CLEON-D’ANDRAN.Cette jolie parcelle de 406 m² pour 74 000 €, entièrement viabilisé, est située à proximité des commodités, ce qui vous assure un grand confort de vie. Dans un environnement calme et agréable pour votre projet de vie, réalisez votre rêve grâce à la maison qui vous ressemble.Vous pouvez contacter votre conseiller construction Olivier PUAUX ((Numéro supprimé)) pour en savoir plus ou vous faire accompagner dans votre recherche de logement.
Pont-de-Barret
TERRAIN ET MAISONSituée dans un quartier paisible, cette maison à construire offre un espace de vie moderne et confortable sur 90m2. Composée de trois chambres, elle est idéale pour une famille. La salle de bain est équipée d’une douche spacieuse, d’un meuble vasque et d’un placard pour plus de commodité. Un cellier pratique complète l’agencement fonctionnel de cette maison.Vous serez également séduit par ses nombreuses options (volets roulants électriques, centralisation, domotique…).Ne manquez pas cette opportunité de personnaliser votre futur chez-vous selon vos goûts et besoins ! Contactez votre conseiller en construction Olivier PUAUX (Numéro supprimé) dès aujourd’hui pour plus d’informations.
Pont-de-Barret
TERRAIN ET MAISONMAISONS FRANCE CONFORT vous propose cette maison pensée pour vous !!!Le modèle présenté sur le terrain, d’architecture contemporaine, intégrant des menuiseries grises anthracite allie confort et esthétique. Dans une superficie de 81 m2 vous y trouverez une entrée avec rangement, un bel espace de vie, une cuisine, une salle de bain, 3 chambres, et un cellier. Le tout dans une maison fonctionnelle, agréable et répondant à la norme RE 2020. Vous avez le coup de coeur pour cette maison ?Votre conseiller MAISONS FRANCE CONFORT Olivier PUAUX ((Numéro supprimé)), vous accompagne dans la réalisation de ce projet de construction en définissant avec vous votre plan de maison. Contactez-le sans plus tarder, pour donner vie à votre projet !!!
L’actualité immobilière à Le Poët-Laval
27/11/2023
02/11/2023
30/10/2023
20/10/2023
16/10/2023
16/10/2023