Maison à construire à Malataverne (26780)
Images
Description
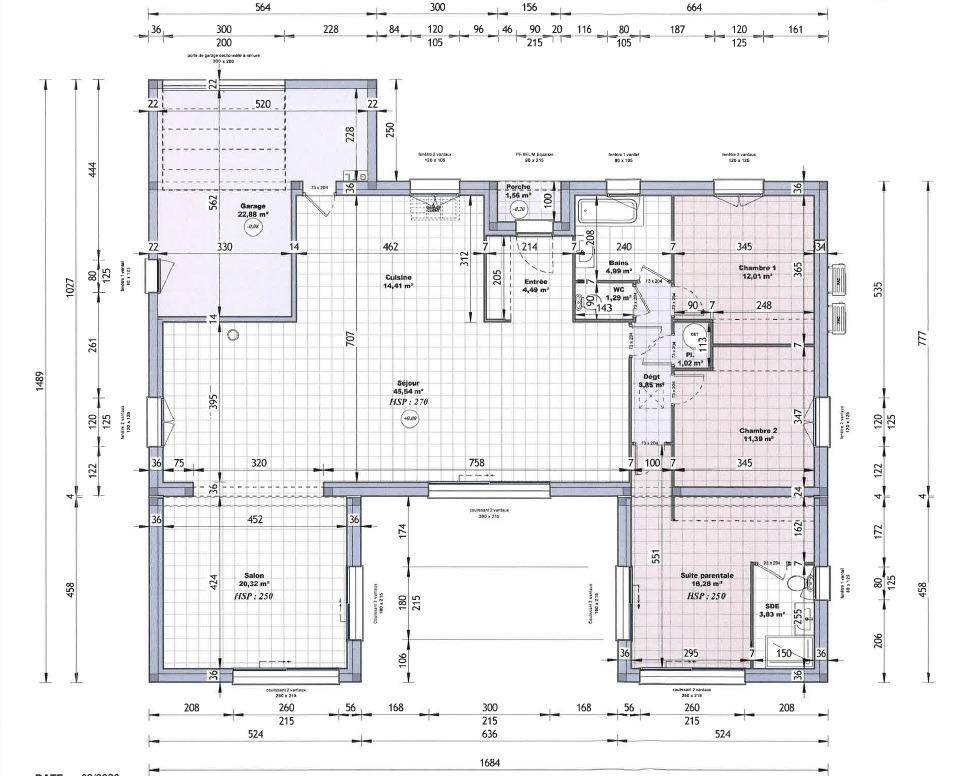
Découvrez Patio 140, une maison de plain-pied, conçue pour répondre aux exigences de la Réglementation Environnementale RE2020.
Avec une surface habitable de 140 m², cette demeure se distingue par son architecture en U, créant un espace de vie, fonctionnel et convivial.
Ainsi vous profiterez de 80,27 m² dédiés à l'espace jour, incluant une cuisine américaine ouverte sur un double salon et une salle à manger. Les grandes baies vitrées offrent une vue imprenable sur le jardin, inondant l'intérieur de lumière naturelle et créant une ambiance chaleureuse.
Un cellier pratique et un garage intégré avec accès direct à la maison vous facilitent la vie au quotidien.
Pour votre confort l'espace nuit comprend trois chambres et une salle de bains. La suite parentale vous offre une salle d'eau privative et un dressing, garantissant bien-être et intimité.
Vous serez également séduit les nombreux équipements modernes comme les volets roulants électriques, le système de centralisation et la domotique, qui ajoutent confort et praticité au quotidien.
Ne tardez plus ! Contactez dès maintenant votre conseiller MAISONS FRANCE CONFORT : Olivier PUAUX au (Numéro supprimé).
Logement susceptibles de vous intéresser
Nous vous proposons de découvrir aussi cette sélection de logements situés à moins de 10km de Malataverne et qui seraient susceptibles de vous intéresser.
Allan
TERRAINMAISONS FRANCE CONFORT vous propose, en partenariat avec son foncier, cette magnifique parcelle entièrement viabilisée de 490 m², au prix de 90 000 €.Située sur la charmante commune d’ALLAN, dans la Drôme, cette parcelle offre une opportunité unique de concrétiser votre projet de construction dans un cadre calme, verdoyant et recherché. Vous apprécierez la quiétude du quartier, tout en bénéficiant de la proximité des commodités et des principaux axes routiers.Un emplacement idéal pour concevoir et bâtir la maison de vos rêves, signée Maisons France Confort.Pour plus d’informations, contactez votre conseiller en construction :Olivier PUAUX – (Numéro supprimé)
Allan
TERRAIN ET MAISONDécouvrez le modèle Étage GA 4 Ch Design, une maison moderne de 98 m² conçue pour répondre aux besoins actuels des familles : espaces optimisés, luminosité et confort au quotidien.Au rez-de-chaussée, profitez d’une grande pièce de vie traversante de 33 m², baignée de lumière, où la cuisine ouverte s’intègre harmonieusement au séjour.Une chambre de plain-pied apporte une véritable polyvalence d’usage : idéale pour recevoir ou aménager un espace de travail.Un cellier de 4,83 m², donnant accès direct au garage, vient compléter l’ensemble, offrant un espace de rangement pratique et fonctionnel.À l’étage, l’espace nuit se compose de trois chambres spacieuses et d’une salle de bains équipée d’une baignoire et d’une douche, pour un confort adapté à toute la famille.Grâce à la nouvelle gamme Open, vous bénéficiez de finitions personnalisables et de packs évolutifs, afin d’adapter votre maison à vos envies et à vos besoins.Côté confort, rien n’a été laissé au hasard : volets roulants électriques, centralisation des fermetures, domotique intégrée… autant d’équipements modernes pensés pour simplifier votre quotidien et renforcer votre confort.Fonctionnelle, lumineuse et résolument moderne, cette maison offre un cadre de vie idéal pour accueillir votre famille et concrétiser votre projet de vie.Contactez dès maintenant Olivier PUAUX, votre conseiller MAISONS FRANCE CONFORT, au (Numéro supprimé), pour en savoir plus ou imaginer ensemble votre future maison.
Allan
TERRAIN ET MAISONMAISONS FRANCE CONFORT vous propose cette maison pensée pour vous !!!Découvrez cette villa, de 73 m² à la ligne épurée et moderne, conçu pour répondre à vos besoins. Chaque espace de cette maison est optimisé et parfaitement fonctionnel, offrant un cadre de vie harmonieux.À l’intérieur, une cuisine ouverte s’ouvre sur un séjour/salon spacieux et agréable, idéal pour les moments de convivialité en famille ou entre amis.L’espace nuit se compose de trois chambres généreuses et d’une salle de bains de plus de 5 m², offrant confort et intimité.Vous serez également séduit par ses nombreuses options (volets roulants électriques, centralisation, domotique…).Vous avez un coup de coeur pour cette maison ? N’hésitez pas à contacter votre conseiller en construction, Olivier PUAUX au (Numéro supprimé), de MAISONS FRANCE CONFORT. Il se tient à votre disposition pour en savoir plus sur cette habitation, découvrir d’autres modèles ou même créer votre projet personnalisé.
Allan
TERRAIN ET MAISONDécouvrez une maison moderne, élégante et performante, pensée pour offrir un confort optimal au quotidien !Avec ses 90 m² parfaitement agencés, cette maison conjugue design contemporain, efficacité énergétique et bien-être intérieur, le tout dans le respect de la réglementation environnementale RE2020.Dès l’entrée, vous serez séduit par sa grande pièce de vie lumineuse, ouverte sur la cuisine, idéale pour partager des moments conviviaux en famille ou entre amis.Les trois chambres offrent un espace intime et fonctionnel, tandis que le garage et le cellier apportent une véritable praticité au quotidien.Côté confort, rien n’a été laissé au hasard : volets roulants électriques, centralisation, domotique et surtout un système de chauffage par pompe à chaleur, à la fois économique et respectueux de l’environnement. Vous profitez ainsi d’une maison agréable à vivre, été comme hiver, tout en maîtrisant vos consommations énergétiques.Parce que chaque projet est unique, nous adaptons ensemble ce plan à votre mode de vie et à votre terrain.Mon rôle est de vous accompagner à chaque étape de votre construction, pour faire de ce projet une maison qui vous ressemble pleinement.Contactez-moi au (Numéro supprimé) pour en discuter et commencer à bâtir votre futur chez-vous.Olivier PUAUX – Conseiller Maisons France Confort
Les Granges-Gontardes
TERRAINMAISONS FRANCE CONFORT vous propose, en collaboration avec son partenaire foncier, un terrain situé sur la commune des GRANGES-GONTARDES.Cette jolie parcelle d’une superficie de 411 m², pour 76000€, entièrement viabilisée , vous séduira par son cadre agréable.Implantée dans un environnement calme et résidentiel, cette opportunité est idéale pour concrétiser votre projet de vie et bâtir la maison de vos rêves.Pour plus d’informations ou pour être accompagné dans votre recherche de logement, contactez votre conseiller construction, Olivier PUAUX, au (Numéro supprimé).
Les Granges-Gontardes
TERRAIN ET MAISONDécouvrez une maison moderne, élégante et performante, pensée pour offrir un confort optimal au quotidien !Avec ses 90 m² parfaitement agencés, cette maison conjugue design contemporain, efficacité énergétique et bien-être intérieur, le tout dans le respect de la réglementation environnementale RE2020.Dès l’entrée, vous serez séduit par sa grande pièce de vie lumineuse, ouverte sur la cuisine, idéale pour partager des moments conviviaux en famille ou entre amis.Les trois chambres offrent un espace intime et fonctionnel, tandis que le garage et le cellier apportent une véritable praticité au quotidien.Côté confort, rien n’a été laissé au hasard : volets roulants électriques, centralisation, domotique et surtout un système de chauffage par pompe à chaleur, à la fois économique et respectueux de l’environnement. Vous profitez ainsi d’une maison agréable à vivre, été comme hiver, tout en maîtrisant vos consommations énergétiques.Parce que chaque projet est unique, nous adaptons ensemble ce plan à votre mode de vie et à votre terrain.Mon rôle est de vous accompagner à chaque étape de votre construction, pour faire de ce projet une maison qui vous ressemble pleinement.Contactez-moi au (Numéro supprimé) pour en discuter et commencer à bâtir votre futur chez-vous.Olivier PUAUX – Conseiller Maisons France Confort
Les Granges-Gontardes
TERRAINMAISONS FRANCE CONFORT vous propose, en collaboration avec son partenaire foncier, un terrain situé sur la commune des GRANGES-GONTARDES.Cette jolie parcelle d’une superficie de 405 m², pour 71 000€, entièrement viabilisée , vous séduira par son cadre agréable.Implantée dans un environnement calme et résidentiel, cette opportunité est idéale pour concrétiser votre projet de vie et bâtir la maison de vos rêves.Pour plus d’informations ou pour être accompagné dans votre recherche de logement, contactez votre conseiller construction, Olivier PUAUX, au (Numéro supprimé).
Les Granges-Gontardes
TERRAIN ET MAISONDécouvrez Optima 84, une maison pensée pour allier confort, modernité et fonctionnalité.Ce plain-pied séduit par son agencement intelligent et ses volumes optimisés : une vaste pièce de vie de 38 m², baignée de lumière, accueille un espace salon-séjour convivial et une cuisine ouverte idéale pour partager des moments en famille.Côté nuit, vous profiterez de deux chambres confortables, d’une salle de bains familiale, ainsi que d’une suite parentale avec sa salle d’eau privative pour plus d’intimité.Un cellier attenant et un garage intégré complètent l’ensemble, pour un quotidien à la fois pratique et agréable.Dans un style résolument contemporain, cette maison est équipée des dernières technologies : volets roulants électriques, centralisation des fermetures, domotique intégrée… tout est prévu pour simplifier votre vie et renforcer votre confort.Fonctionnelle, lumineuse et moderne, Optima 84 est la maison idéale pour accueillir vos projets et offrir à votre famille un cadre de vie épanouissant.Contactez dès maintenant Olivier PUAUX, votre conseiller MAISONS FRANCE CONFORT, au (Numéro supprimé) pour en savoir plus ou imaginer ensemble votre future maison.
Donzère
TERRAINMAISONS FRANCE CONFORT vous propose, en collaboration avec son partenaire foncier, un terrain situé sur la commune de DONZERECette jolie parcelle d’une superficie de 390 m² boisé, pour 72000 €, viabilisé en bordure, vous séduira par son cadre unique.Implantée dans un environnement calme, mais proche des commodité, cette opportunité est idéale pour concrétiser votre projet de vie et bâtir la maison de vos rêves.Si vous aussi, vous rêvez d’une maison qui vous ressemble et d’un accompagnement sur mesure, contactez votre conseiller Florian DUBOIS au (Numéro supprimé) 📞
L’actualité immobilière à Malataverne
27/11/2023
02/11/2023
30/10/2023
20/10/2023
16/10/2023
16/10/2023