Maison à construire à Margès (26260)
Images
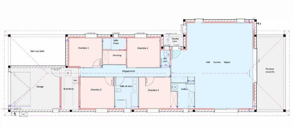
Description
Découvrez l'opportunité unique de vivre dans une maison moderne et confortable à MARGES. Parfaitement intégrée sur un terrain plat de 635 m², cette maison combine élégance architecturale et environnement fonctionnel. Un espace de vie idéal pour toute la famille.Dotée d'une architecture contemporaine, cette maison de plain-pied de 136 m² offre un confort optimisé pour répondre aux modes de vie actuels. La pièce maîtresse est un séjour-cuisine spacieux de plus de 60 m², inondé de lumière et s'ouvrant sur une terrasse en bois. Quatre chambres vous attendent, dont une suite parentale avec dressing et salle d'eau, garantissant une organisation familiale fluide et intime. Une salle de bain, une buanderie, un cellier et de nombreux rangements assurent un quotidien pratique et agréable.- Surface maison : 135 m²- Nombre de pièces : 5- Nombre de chambres : 4- Garage fermé et abri voiture - Pompe à chaleur et isolation performante- Normes de construction : RE2020.
Pourquoi choisir Maisons France Confort ?
Le savoir-faire et la solidité du leader national,
Une maison 100 % personnalisable, adaptée à vos envies et votre budget,
Des garanties CCMI pour construire en toute sérénité,
Un accompagnement humain, local et sur mesure.
Contactez Amandine Maggioni, votre conseillère Maisons France Confort, et donnez vie à votre projet dès aujourd'hui au (Numéro supprimé)
Logement susceptibles de vous intéresser
Nous vous proposons de découvrir aussi cette sélection de logements situés à moins de 10km de Margès et qui seraient susceptibles de vous intéresser.
Margès
TERRAIN ET MAISONDécouvrez l’opportunité unique de vivre dans une maison moderne et confortable à MARGES. Parfaitement intégrée sur un terrain plat de 635 m², cette maison combine élégance architecturale et environnement fonctionnel. Un espace de vie idéal pour toute la famille.Dotée d’une architecture contemporaine, cette maison de plain-pied de 136 m² offre un confort optimisé pour répondre aux modes de vie actuels. La pièce maîtresse est un séjour-cuisine spacieux de plus de 60 m², inondé de lumière et s’ouvrant sur une terrasse en bois. Quatre chambres vous attendent, dont une suite parentale avec dressing et salle d’eau, garantissant une organisation familiale fluide et intime. Une salle de bain, une buanderie, un cellier et de nombreux rangements assurent un quotidien pratique et agréable.- Surface maison : 135 m²- Nombre de pièces : 5- Nombre de chambres : 4- Garage fermé et abri voiture - Pompe à chaleur et isolation performante- Normes de construction : RE2020. Pourquoi choisir Maisons France Confort ?Le savoir-faire et la solidité du leader national,Une maison 100 % personnalisable, adaptée à vos envies et votre budget,Des garanties CCMI pour construire en toute sérénité,Un accompagnement humain, local et sur mesure. Contactez Amandine Maggioni, votre conseillère Maisons France Confort, et donnez vie à votre projet dès aujourd’hui au (Numéro supprimé)
Margès
TERRAIN ET MAISONProjet de Construction, maison neuve sur la commune de MARGES (26260), sur une parcelle constructible de 635 m2 viabilisé, Cette maison d’une superficie de 85 m², optimisée et évolutive, elle se compose d’une pièce de vie d’une belle surface pour cette maison 3 pièces : plus de 30 m² avec cuisine ouverte. Cette pièce de vie profite d’une double exposition avec ses ouvertures. Les trois chambres, de plus de 10 m², sont chacune équipée d’un placard intégré. Le système de chauffage suggéré vous assurera le plus grand confort dans le respect de la RE 2020, tout en vous assurant de très substantielles économies. Maison prête à décorer, ne vous resterons que les peintures et la cuisine. Votre talent fera le reste ! Plan, disposition, système de chauffage, tout reste entièrement personnalisable Pourquoi choisir Maisons France Confort ?Le savoir-faire et la solidité du leader national,Une maison 100 % personnalisable, adaptée à vos envies et votre budget,Des garanties CCMI pour construire en toute sérénité,Un accompagnement humain, local et sur mesure. Contactez Amandine Maggioni, votre conseillère Maisons France Confort, et donnez vie à votre projet dès aujourd’hui au (Numéro supprimé)
Romans-sur-Isère
TERRAINTerrain constructible dans un environnement calme Situé sur la commune de MARGES à 19 minutes de ROMANS MAISONS France CONFORT vous propose un terrain constructible de 650 m2 situé dans un secteur calme et à quelques minutes seulement des commerces, écoles et services, ce beau terrain plat et entièrement viabilisé bénéficie d »une excellente exposition pour un ensoleillement optimal tout au long de la journée. Ce terrain constructible vous offre un cadre idéal pour concrétiser votre projet de vie.Contactez votre chargée de projet Amandine Maggioni dès aujourd »hui pour plus d »information et une étude gratuite de votre projet de construction au (Numéro supprimé)
Romans-sur-Isère
TERRAIN ET MAISONMaison T4 (83 m²) en vente à Romans-sur-IsèreMAISON 4 PIÈCES NEUVEMaisons France Confort Montélimar vous propose à vendre à Romans-sur-Isère (26100), cette maison de 4 pièces de plain-pied de 83 m². Elle compte trois chambres, une cuisine et une salle de bains.Le terrain du bien est de 483 m².La maison est neuve.Des établissements scolaires de tous niveaux sont implantés dans la commune, tout comme une structure d’accueil pour les tout-petits à moins de 10 minutes à pied. Niveau transports, il y a deux gares (Romans-Bourg-de-Péage et Valence TGV Rhône-Alpes Sud) à moins de 10 minutes en voiture. L’autoroute A49 et la nationale N532 sont accessibles à moins de 6 km.Elle est proposée à l’achat pour 234 000 €.Prenez contact avec notre agence (MAGGIONI Amandine : (Numéro supprimé)) pour plus de renseignements sur cette maison, sur les démarches à suivre ou sur les modalités de vente.
Romans-sur-Isère
TERRAINMaisons France Confort vous propose un terrain constructible d’une superficie de 483 M2 viabilisé, plat avec une très bonne exposition sur la commune de Romans-sur-Isère (26100), projetez la maison de vos rêves sur ce terrain de 483 m² constructible. Des écoles de tous types (de la maternelle au lycée) sont implantées dans la commune, L »autoroute A49 et la nationale N532 sont accessibles à moins de 6 km.Contactez Amandine MAGGIONI, votre chargée de projet au (tél : (Numéro supprimé). Maisons France Confort vous accompagne à toutes les étapes de votre projet et dans tous vos projets immobiliers.
Margès
TERRAINMaisons France Confort vous propose sur la commune de Margès (26260), un terrain constructible de 635 viabilisé. IDÉALEMENT SITUÉ, à 37 minutes de Valence sur la commune de Margès (26260), Il bénéficie d »une exposition sud. Dans un secteur recherché, la parcelle constructible est proche des commerces et des écoles. Pourquoi choisir Maisons France Confort ?Le savoir-faire et la solidité du leader national,Une maison 100 % personnalisable, adaptée à vos envies et votre budget,Des garanties CCMI pour construire en toute sérénité,Un accompagnement humain, local et sur mesure. Contactez Amandine Maggioni, votre conseillère Maisons France Confort, et donnez vie à votre projet dès aujourd’hui au (Numéro supprimé)
Saint-Donat-sur-l'Herbasse
TERRAINA saisir, très beau terrain plat viabilisé de 651 m2, situé dans un lotissement calme et résidentiel à MARGES à 9 minutes de Saint-Donat-sur-l’Herbasse (26260). Exposition sud idéal pour maison de plain-pied. A 5 minutes du centre, des écoles et des commerces. Contactez Amandine MAGGIONI ((Numéro supprimé)) pour tout renseignement sur le terrain et une étude gratuite de votre projet de construction.
Saint-Donat-sur-l'Herbasse
TERRAIN ET MAISONDevenez propriétaire à MARGES (26260) – Maison 120 m² + Terrain – 332500 €Maisons France Confort – vous propose, dans un nouveau lotissement, à proximité immédiate de , la construction d’une maison moderne de 120 m² parfaitement pensée pour les primo-accédants. Atouts de votre projet :Maison neuve, moderne et économe en énergieEspaces fonctionnels et lumineuxTerrain idéalement situé, proche des écoles, commerces et servicesAccession facilitée grâce au PTZ (Prêt à Taux Zéro)Prix clé en main :332500 € (terrain + maison)Contactez Amandine Maggioni, votre conseillère Maisons France Confort, et donnez vie à votre projet dès aujourd’hui au (Numéro supprimé) .Déjà plus de 100 000 familles nous ont fait confiance, pourquoi pas vous ?Avec Maisons France Confort, vous bénéficiez de l’expérience du constructeur N°1 en France ainsi que de toutes les garanties du contrat CCMI pour construire en toute sérénité.
Saint-Donat-sur-l'Herbasse
TERRAIN ET MAISONDevenez propriétaire à MARGES (26260) – Maison 85 m² + Terrain – 273411 €Maisons France Confort – vous propose, dans un nouveau lotissement, à proximité immédiate de , la construction d’une maison moderne de 85 m² parfaitement pensée pour les primo-accédants. Atouts de votre projet :Maison neuve, moderne et économe en énergieEspaces fonctionnels et lumineuxTerrain idéalement situé, proche des écoles, commerces et servicesAccession facilitée grâce au PTZ (Prêt à Taux Zéro)Prix clé en main :273411 € (terrain + maison)Contactez Amandine Maggioni, votre conseillère Maisons France Confort, et donnez vie à votre projet dès aujourd’hui au (Numéro supprimé) .Déjà plus de 100 000 familles nous ont fait confiance, pourquoi pas vous ?Avec Maisons France Confort, vous bénéficiez de l’expérience du constructeur N°1 en France ainsi que de toutes les garanties du contrat CCMI pour construire en toute sérénité.
L’actualité immobilière à Margès
27/11/2023
02/11/2023
30/10/2023
20/10/2023
16/10/2023
16/10/2023