Maison à construire à Mirabel-et-Blacons (26400)
Images
Description
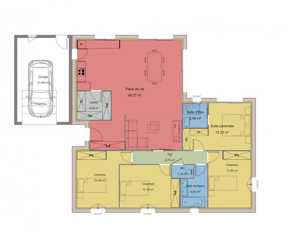
À la recherche d'une villa au style moderne et raffiné ? Cette magnifique propriété de plain-pied ne manquera pas de vous séduire par son originalité et sa douceur, reflétées à travers une architecture contemporaine et une luminosité exceptionnelle.
Dès l'entrée, vous serez captivé par le design distinctif du porche, invitant à découvrir un intérieur où le confort et l'esthétique se marient harmonieusement. La pièce de vie ouverte, au coeur de la maison, favorise les échanges et la convivialité.
Ce modèle comprend également quatre chambres, dont une suite parentale avec dressing et salle d'eau, offrant un espace de rangement pratique pour simplifier votre quotidien. Avec une superficie habitable de 114 m² et un garage accolé de 21 m², cette résidence répond parfaitement aux besoins d'une vie familiale épanouie.
Vous souhaitez personnaliser cette villa selon vos préférences ? Votre conseiller Olivier PUAUX ((Numéro supprimé)), est à votre disposition pour concrétiser votre projet!
Logement susceptibles de vous intéresser
Nous vous proposons de découvrir aussi cette sélection de logements situés à moins de 10km de Mirabel-et-Blacons et qui seraient susceptibles de vous intéresser.
Mirabel-et-Blacons
TERRAINMaisons France Confort, en collaboration avec son partenaire foncier, vous propose ce beau terrain constructible de 800 m², au prix de 102 000 €, situé sur la charmante commune de Mirabel-et-Blacons, dans la Drôme.À seulement 10 minutes à l’est de Crest (26400), cette parcelle offre un cadre de vie privilégié, au coeur d’un environnement verdoyant et bien exposé, avec une vue dégagée.Vous apprécierez la proximité des commodités tout en profitant d’un quartier paisible, idéal pour construire la maison de vos rêves.Vous souhaitez en savoir plus ?Contactez Olivier PUAUX, votre conseiller en construction Maisons France Confort, au (Numéro supprimé).
Mirabel-et-Blacons
TERRAIN ET MAISOND’architecture contemporaine, cette maison de 120m² est composée d’un espace de vie de 50,61 m² avec cuisine ouverte sur un grand salon, salle à manger. Elle possède aussi un espace nuit de 4 chambres et d’une salle de bains, dont une suite parentale de 18,41 m² avec salle d’eau et dressing. Lumineuse et spacieuse cette maison de plain-pied répond à la Réglementation environnementale RE2020. Pour plus de confort, vous trouverez également un garage, totalement accessible de la maison.Vous serez également séduit par ses nombreuses options (volets roulants électriques, centralisation, domotique…).Vous avez le coup de coeur pour ce modèle ou vous souhaitez personnaliser votre maison?Votre conseiller en construction Olivier PUAUX (Numéro supprimé) MAISONS FRANCE CONFORT se tient à votre disposition.
Mirabel-et-Blacons
TERRAIN ET MAISONÀ la recherche d’une villa au style moderne et raffiné ? Cette magnifique propriété de plain-pied ne manquera pas de vous séduire par son originalité et sa douceur, reflétées à travers une architecture contemporaine et une luminosité exceptionnelle.Dès l’entrée, vous serez captivé par le design distinctif du porche, invitant à découvrir un intérieur où le confort et l’esthétique se marient harmonieusement. La pièce de vie ouverte, au coeur de la maison, favorise les échanges et la convivialité. Ce modèle comprend également quatre chambres, dont une suite parentale avec dressing et salle d’eau, offrant un espace de rangement pratique pour simplifier votre quotidien. Avec une superficie habitable de 114 m² et un garage accolé de 21 m², cette résidence répond parfaitement aux besoins d’une vie familiale épanouie.Vous souhaitez personnaliser cette villa selon vos préférences ? Votre conseiller Olivier PUAUX ((Numéro supprimé)), est à votre disposition pour concrétiser votre projet!
Aouste-sur-Sye
TERRAINMAISONS FRANCE CONFORT vous propose, en collaboration avec son partenaire foncier, un terrain situé sur la commune de AOUSTE SUR SYE.Cette jolie parcelle d’une superficie de 745 m², pour 129000 €, non viabilisé , vous séduira par son cadre agréable.Implantée dans un environnement calme cette opportunité est idéale pour concrétiser votre projet de vie et bâtir la maison de vos rêves.Pour plus d’informations ou pour être accompagné dans votre recherche de logement, contactez votre conseiller construction, Florian DUBOIS (Numéro supprimé)
Aouste-sur-Sye
TERRAINMAISONS FRANCE CONFORT vous propose, en collaboration avec son partenaire foncier, un terrain situé sur la commune de AOUSTE SUR SYE.Cette jolie parcelle d’une superficie de 905 m², pour 149 000€, non viabilisé , vous séduira par son cadre agréable.Implantée dans un environnement calme cette opportunité est idéale pour concrétiser votre projet de vie et bâtir la maison de vos rêves.Pour plus d’informations ou pour être accompagné dans votre recherche de logement, contactez votre conseiller construction, Florian DUBOIS (Numéro supprimé)
Aouste-sur-Sye
TERRAIN ET MAISONVENTE d’une maison T5 (83 m²) à Aouste-sur-SyeEMPLACEMENT PRIVILÉGIÉ – MAISON 5 PIÈCES NEUVEÀ vendre : située à quelques kilomètres de Valence, votre agence Maisons France Confort Montélimar est ravie de vous proposer, bénéficiant d’un emplacement d’exception dans Aouste-sur-Sye (26400), cette maison de 5 pièces de plain-pied de 83 m². Conçue de plain-pied, elle comporte trois chambres, une cuisine et une salle de bains.Le terrain de la maison s’étend sur 745 m².La maison est neuve.Cette propriété se trouve dans un quartier convoité. Il y a l’École Publique Jules Ferry et l’École Maternelle Jules Ferry à moins de 10 minutes à pied. Niveau transports, on trouve la gare Crest à moins de 10 minutes en voiture. Il y a un accès à la nationale N7 à 19 km. Il y a un tennis, une bibliothèque, une boulangerie, un commerce, une supérette et une épicerie dans les environs.Elle est à vendre pour la somme de 267 900 €.Prenez contact avec notre agence (DUBOIS florian : (Numéro supprimé)) pour toute information sur la maison, sur les démarches à suivre ou sur les modalités de vente. Maisons France Confort Montélimar est là pour vous accompagner dans tous vos projets immobiliers.
Aouste-sur-Sye
TERRAIN ET MAISONVENTE : maison F5 (120 m²) à Aouste-sur-SyeEMPLACEMENT PRIVILÉGIÉ – MAISON 5 PIÈCES NEUVEÀ vendre : à quelques kilomètres de Valence, Maisons France Confort Montélimar vous propose cette maison de 5 pièces de plain-pied de 120 m² et de 745 m² de terrain, bénéficiant d’un emplacement privilégié dans Aouste-sur-Sye (26400). Elle se divise en trois chambres, une cuisine et deux salles de bains.La maison est neuve.Cette maison se trouve dans un secteur attractif. L’École Publique Jules Ferry et l’École Maternelle Jules Ferry sont implantées à moins de 10 minutes à pied. Côté transports en commun, il y a la gare Crest à moins de 10 minutes en voiture. On trouve un accès à la nationale N7 à 19 km. On trouve un tennis, une bibliothèque, une boulangerie, un commerce, une épicerie et une supérette à quelques minutes du logement.Elle est à vendre pour la somme de 410 900 €.Prenez contact avec notre agence (DUBOIS florian : (Numéro supprimé)) pour tout renseignement sur le bien ou sur les modalités de vente.
Aouste-sur-Sye
TERRAIN ET MAISONVENTE : maison de 5 pièces (93 m²) à Aouste-sur-SyeEMPLACEMENT PRIVILÉGIÉ – MAISON 5 PIÈCES NEUVEÀ vendre : localisée à quelques kilomètres de Valence, Maisons France Confort Montélimar vous propose, bénéficiant d’un emplacement d’exception dans Aouste-sur-Sye (26400), cette maison de 5 pièces de 93 m² et de 745 m² de terrain. Son intérieur est composé de trois chambres, d’une cuisine et d’une salle de bains.Il s’agit d’une maison de 2 niveaux. Elle est neuve.Cette propriété se situe dans un quartier convoité. Il y a l’École Publique Jules Ferry et l’École Maternelle Jules Ferry à moins de 10 minutes à pied. Côté transports, on trouve la gare Crest à moins de 10 minutes en voiture. Il y a un accès à la nationale N7 à 19 km. Il y a un tennis, une bibliothèque, une boulangerie, un commerce, une épicerie et une supérette à proximité.Elle est proposée à l’achat pour 331 981 €.Contactez notre agence (DUBOIS florian : (Numéro supprimé)) pour plus de renseignements sur la maison, sur les modalités de vente ou sur les démarches à suivre.
Aouste-sur-Sye
TERRAIN ET MAISONMaison T7 (179 m²) en vente à Aouste-sur-SyeEMPLACEMENT PRIVILÉGIÉ – MAISON 7 PIÈCES NEUVEÀ vendre : située à deux pas de Valence, nous sommes heureux de vous présenter, bénéficiant d’un emplacement privilégié dans Aouste-sur-Sye (26400), cette maison de 7 pièces de 179 m². Elle compte cinq chambres, une cuisine et trois salles de bains.Le terrain de cette maison s’étend sur 745 m².Il s’agit d’une maison de 2 niveaux. Elle est neuve.Le bien se situe dans un quartier prisé. L’École Publique Jules Ferry et l’École Maternelle Jules Ferry sont implantées à moins de 10 minutes à pied. Côté transports en commun, il y a la gare Crest à moins de 10 minutes en voiture. La nationale N7 est accessible à 19 km. On trouve un tennis, une bibliothèque, une boulangerie, un commerce, une épicerie et une supérette à quelques minutes à peine.Il est proposé à l’achat pour 520 500 €.Contactez notre agence (florian DUBOIS : (Numéro supprimé)) pour toute question sur la maison et sur les modalités de vente.
L’actualité immobilière à Mirabel-et-Blacons
27/11/2023
02/11/2023
30/10/2023
20/10/2023
16/10/2023
16/10/2023