Maison à construire à Montoison (26800)
Images
Description
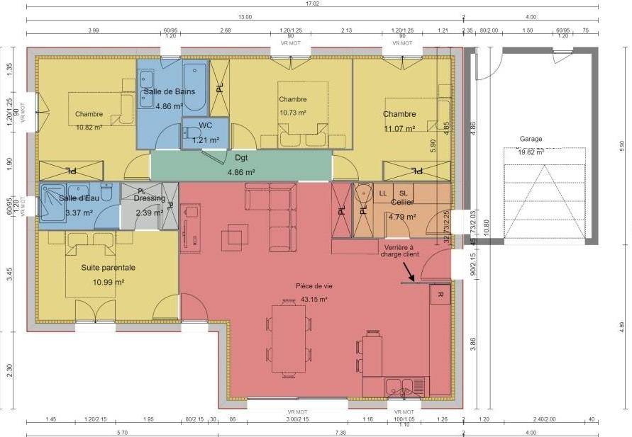
Cette maison de plain-pied de 108,30 m² a été pensée pour offrir un cadre de vie confortable, lumineux et parfaitement fonctionnel. Son agencement soigné et ses volumes bien répartis répondent aux attentes de toute la famille.
La pièce de vie, vaste et baignée de lumière, regroupe salon, salle à manger et cuisine ouverte dans une ambiance chaleureuse et moderne. Un espace idéal pour partager des instants du quotidien en toute convivialité.
L'espace nuit se compose d'une suite parentale avec salle d'eau et dressing privatif, ainsi que de trois autres chambres, idéales pour les enfants, les invités ou un bureau selon vos besoins.
Une salle de bains indépendante, des WC séparés, un cellier et un garage attenant viennent compléter l'ensemble, apportant praticité et confort à votre quotidien.
La maison dispose également d'équipements modernes : volets roulants électriques, centralisation des fermetures, domotique intégrée... tout est réuni pour simplifier votre vie au quotidien.
Fonctionnelle, lumineuse et moderne, cette maison vous offre un cadre de vie prêt à accueillir vos projets.
Pour en savoir plus ou imaginer votre future maison, contactez Olivier PUAUX, votre conseiller MAISONS FRANCE CONFORT, au (Numéro supprimé).
Logement susceptibles de vous intéresser
Nous vous proposons de découvrir aussi cette sélection de logements situés à moins de 10km de Montoison et qui seraient susceptibles de vous intéresser.
Montéléger
TERRAINVENTE d’un terrain de 1 020 m² à MontélégerEMPLACEMENT PRIVILÉGIÉ – PROCHE DE VALENCEGrand terrain en vente à deux pas de Valence. De 1 020 m², ce terrain se situe bénéficiant d’un emplacement d’exception dans Montéléger (26760). Il donne sur un espace vert. L’autoroute A7 et la nationale N7 sont accessibles à moins de 7 km. On trouve un bassin de natation, deux commerces, deux boulangeries et une boucherie-charcuterie à quelques minutes à peine.Il est proposé à l’achat pour 240 000 €. Prenez contact avec florian DUBOIS (tél : (Numéro supprimé)) pour plus d’informations sur ce terrain. Concrétisez vos projets immobiliers avec Maisons France Confort Montélimar.
Eurre
TERRAIN ET MAISONVous êtes à la recherche d’une maison qui conjugue charme régional et modernité ? Ce modèle signé Maisons France Confort est pensé pour répondre à toutes vos attentes.Avec ses volumes généreux et ses lignes élégantes, cette villa de 140 m² associe confort, praticité et convivialité.Dès l’entrée, vous découvrez un espace fonctionnel avec rangements et commodités. Le vaste séjour de près de 60 m², baigné de lumière grâce à ses larges ouvertures, accueille salon, salle à manger et cuisine ouverte dans un esprit chaleureux. En rez-de-chaussée, une suite parentale de presque 20 m² avec dressing et salle d’eau privée offre un véritable cocon, complété par un cellier pratique et un garage attenant.L’étage poursuit cette harmonie avec trois chambres confortables dotées de rangements ainsi qu’une salle d’eau familiale. La conception en L et les terrasses couvertes invitent à profiter du jardin en toute saison, dans une atmosphère lumineuse et agréable.Au-delà de son esthétique, cette maison bénéficie d’équipements modernes : volets roulants électriques, centralisation des ouvertures, solutions domotiques, pompe à chaleur avec plancher chauffant, autant d’atouts pour un confort optimal au quotidien.Pour en savoir plus et échanger sur votre projet, contactez dès aujourd’hui Olivier PUAUX au (Numéro supprimé) – Maisons France Confort. Je vous accompagne à chaque étape pour construire la maison qui vous ressemble.
Montoison
TERRAINTerrain à bâtir de 1 857 m² à MONTOISON – 167 130 €Maisons France Confort, en partenariat avec son foncier, vous propose cette belle parcelle de 1 857 m², idéalement située sur la commune de Montoison.Dans un cadre calme et résidentiel, ce terrain vous séduira par sa vue dégagée et sa belle exposition, idéale pour un projet de construction lumineux et confortable.Les viabilités sont en bordure, et un assainissement individuel est à prévoir.C’est l’opportunité parfaite pour réaliser une maison sur mesure, adaptée à vos besoins et à votre style de vie, dans un environnement de qualité.Pour plus d’informations ou planifier une visite, contactez Olivier PUAUX, votre conseiller Maisons France Confort, au (Numéro supprimé).
Montoison
TERRAIN ET MAISONLUMI 113 – Une maison lumineuse et fonctionnelle, pensée pour votre bien-êtreMaisons France Confort vous propose la LUMI 113, un modèle de maison de plain-pied à ossature bois, alliant esthétique, confort et performance. Conçue pour favoriser la lumière naturelle, cette maison offre un cadre de vie chaleureux et agréable au quotidien.Sa pièce de vie principale, d’une surface de 45,01 m², s’ouvre largement sur l’extérieur, créant un espace convivial et accueillant. L’ossature bois assure une excellente isolation thermique et acoustique, tout en apportant une touche naturelle et douce à l’ensemble.La maison comprend trois chambres, dont une suite parentale avec salle d’eau privative, garantissant à chacun son espace d’intimité. L’agencement a été pensé pour simplifier le quotidien : un cellier fonctionnel, un garage intégré, deux salles d’eau, des toilettes séparées et un dégagement central facilitent la circulation entre les pièces.LUMI 113 offre également de nombreuses options pour répondre à vos envies de modernité : volets roulants électriques, centralisation des ouvertures, solutions domotiques… Autant d’équipements pour améliorer le confort de votre foyer.Pour plus d’informations sur ce modèle ou pour découvrir d’autres projets personnalisables, n’hésitez pas à contacter votre conseiller en construction :Olivier PUAUX – (Numéro supprimé)Maisons France ConfortIl vous accompagnera avec plaisir dans toutes les étapes de votre projet de construction.
Montoison
TERRAIN ET MAISONCette maison de plain-pied de 108,30 m² a été pensée pour offrir un cadre de vie confortable, lumineux et parfaitement fonctionnel. Son agencement soigné et ses volumes bien répartis répondent aux attentes de toute la famille.La pièce de vie, vaste et baignée de lumière, regroupe salon, salle à manger et cuisine ouverte dans une ambiance chaleureuse et moderne. Un espace idéal pour partager des instants du quotidien en toute convivialité.L’espace nuit se compose d’une suite parentale avec salle d’eau et dressing privatif, ainsi que de trois autres chambres, idéales pour les enfants, les invités ou un bureau selon vos besoins.Une salle de bains indépendante, des WC séparés, un cellier et un garage attenant viennent compléter l’ensemble, apportant praticité et confort à votre quotidien.La maison dispose également d’équipements modernes : volets roulants électriques, centralisation des fermetures, domotique intégrée… tout est réuni pour simplifier votre vie au quotidien.Fonctionnelle, lumineuse et moderne, cette maison vous offre un cadre de vie prêt à accueillir vos projets.Pour en savoir plus ou imaginer votre future maison, contactez Olivier PUAUX, votre conseiller MAISONS FRANCE CONFORT, au (Numéro supprimé).
Montoison
TERRAIN ET MAISONÀ la recherche d’une villa au style moderne et raffiné ? Cette magnifique propriété de plain-pied ne manquera pas de vous séduire par son originalité et sa douceur, reflétées à travers une architecture contemporaine et une luminosité exceptionnelle.Dès l’entrée, vous serez captivé par le design distinctif du porche, invitant à découvrir un intérieur où le confort et l’esthétique se marient harmonieusement. La pièce de vie ouverte, au coeur de la maison, favorise les échanges et la convivialité. Ce modèle comprend également quatre chambres, dont une suite parentale avec dressing et salle d’eau, offrant un espace de rangement pratique pour simplifier votre quotidien. Avec une superficie habitable de 114 m² et un garage accolé de 21 m², cette résidence répond parfaitement aux besoins d’une vie familiale épanouie.Vous souhaitez personnaliser cette villa selon vos préférences ? Votre conseiller Olivier PUAUX ((Numéro supprimé)), est à votre disposition pour concrétiser votre projet!
Montéléger
TERRAINVENTE d’un terrain de 1 280 m² à MontélégerEMPLACEMENT PRIVILÉGIÉ – PROCHE DE VALENCEÀ quelques kilomètres de Valence à Montéléger (26760), grand terrain. Réalisez-y la maison de vos rêves. Il donne sur un espace vert. Il est situé dans un quartier recherché. On trouve l’École Monteléger et le Lycée Agricole Privé de Montéléger à moins de 10 minutes à pied. Niveau transports en commun, il y a la gare Valence à moins de 10 minutes en voiture. L’autoroute A7 et la nationale N7 sont accessibles à moins de 7 km. Ce terrain est à vendre pour la somme de 320 000 €. N’hésitez pas à prendre contact avec notre agence (DUBOIS florian : (Numéro supprimé)) pour tout renseignement sur ce terrain. Maisons France Confort Montélimar est là pour vous accompagner dans toutes vos démarches.
Montéléger
TERRAINVENTE : terrain de 3 606 m² à MontélégerEMPLACEMENT PRIVILÉGIÉ – VUE SUR PARCEn vente à quelques kilomètres de Valence à Montéléger (26760), grand terrain. Réalisez-y la maison de vos rêves. Il donne sur un parc. Il est situé dans un secteur attractif. L’École Monteléger et le Lycée Agricole Privé de Montéléger sont implantés à moins de 10 minutes à pied. Niveau transports en commun, on trouve la gare Valence à moins de 10 minutes en voiture. L’autoroute A7 et la nationale N7 sont accessibles à moins de 7 km. Il y a un bassin de natation, deux commerces, deux boulangeries et une boucherie-charcuterie à proximité de la propriété.Son prix de vente est de 490 000 €. Contactez notre agence (DUBOIS florian : (Numéro supprimé)) pour tout renseignement sur le terrain. Maisons France Confort Montélimar vous accompagne dans tous vos projets immobiliers et à toutes les étapes de l’achat.
Montéléger
TERRAINVENTE : terrain de 3 606 m² à MontélégerEMPLACEMENT PRIVILÉGIÉ – VUE SUR PARCEn vente à quelques kilomètres de Valence à Montéléger (26760), grand terrain. Réalisez-y la maison de vos rêves. Il donne sur un parc. Il est situé dans un secteur attractif. L’École Monteléger et le Lycée Agricole Privé de Montéléger sont implantés à moins de 10 minutes à pied. Niveau transports en commun, on trouve la gare Valence à moins de 10 minutes en voiture. L’autoroute A7 et la nationale N7 sont accessibles à moins de 7 km. Il y a un bassin de natation, deux commerces, deux boulangeries et une boucherie-charcuterie à proximité de la propriété.Son prix de vente est de 490 000 €. Contactez notre agence (DUBOIS florian : (Numéro supprimé)) pour tout renseignement sur le terrain. Maisons France Confort Montélimar vous accompagne dans tous vos projets immobiliers et à toutes les étapes de l’achat.
L’actualité immobilière à Montoison
27/11/2023
02/11/2023
30/10/2023
20/10/2023
16/10/2023
16/10/2023