Maison à construire à Montségur-sur-Lauzon (26130)
Images
Description
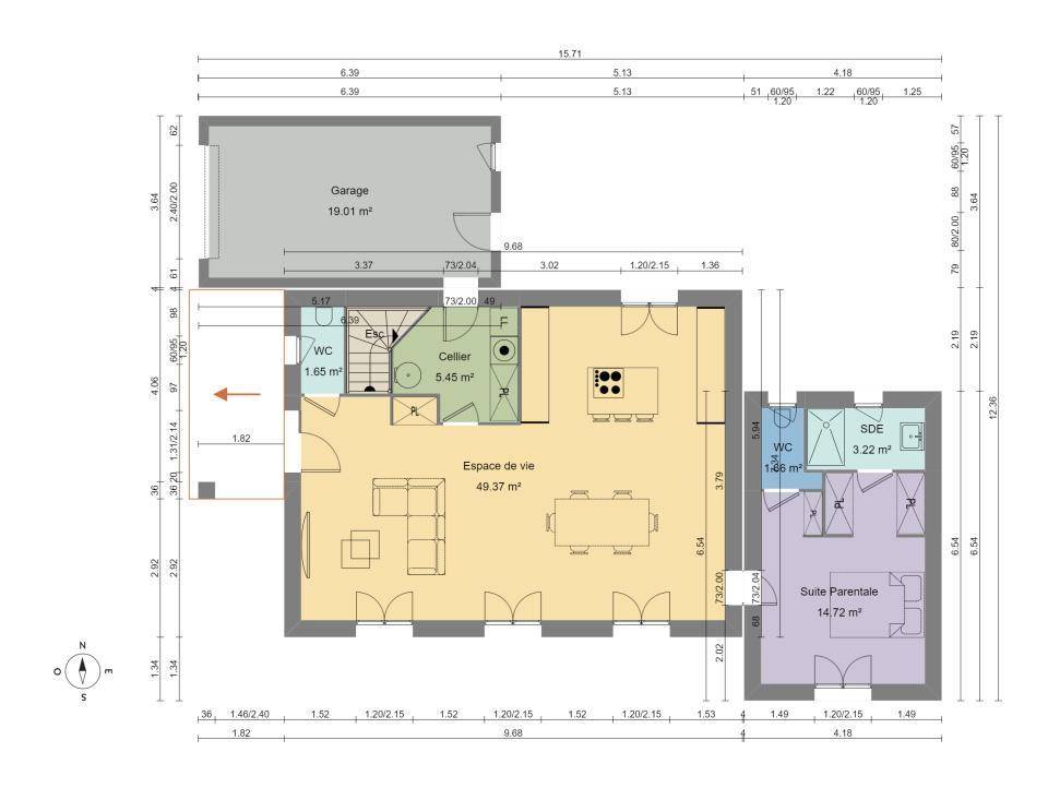
Maison Bastide - 129,67 m² : le charme du traditionnel et le confort du moderne
Découvrez le modèle Bastide, une maison traditionnelle du Sud de la France de 129,67 m² qui séduit par son élégance et ses volumes généreux.
Au rez-de-chaussée, profitez d'une vaste pièce de vie lumineuse de 49,37 m² avec cuisine ouverte sur salle à manger et salon, complétée par un cellier attenant à la cuisine et au garage. Vous bénéficierez également d'une suite parentale indépendante avec dressing, salle d'eau et WC.
À l'étage, le palier dessert deux chambres confortables, une salle de bains avec WC, ainsi qu'une belle suite parentale avec dressing et salle d'eau privative.
Cette maison associe authenticité et modernité, avec de nombreuses options pour s'adapter à vos envies : volets battants pour l'esthétique, volets roulants électriques, centralisation des ouvertures, solutions domotiques, pompe à chaleur avec plancher chauffant... autant d'atouts pour un confort optimal.
Pour plus d'informations sur ce modèle ou découvrir d'autres projets personnalisables, contactez dès aujourd'hui :
Olivier PUAUX - (Numéro supprimé)
Maisons France Confort
Je vous accompagne dans toutes les étapes de votre projet de construction afin de bâtir la maison qui vous ressemble.
Logement susceptibles de vous intéresser
Nous vous proposons de découvrir aussi cette sélection de logements situés à moins de 10km de Montségur-sur-Lauzon et qui seraient susceptibles de vous intéresser.
Grillon
TERRAINMAISONS FRANCE CONFORT, vous propose avec ses partenaires fonciers un terrain sur la commune de GRILLON à 5 minutes de GRIGNAN. Cette jolie parcelle de 455m² pour 79 900 €, entièrement viabilisé, est située près du centre du village avec un accès facile aux commodités, ce qui vous assure un grand confort de vie. Dans un environnement calme et agréable pour votre projet de vie, réalisez votre rêve grâce à la maison qui vous ressemble.Vous pouvez contacter votre conseiller construction Olivier PUAUX ((Numéro supprimé)) pour en savoir plus ou vous faire accompagner dans votre recherche de logement.
Grillon
TERRAIN ET MAISONMAISONS FRANCE CONFORT vous propose cette maison pensée pour vous !!!Découvrez cette villa, de 73 m² à la ligne épurée et moderne, conçu pour répondre à vos besoins. Chaque espace de cette maison est optimisé et parfaitement fonctionnel, offrant un cadre de vie harmonieux.À l’intérieur, une cuisine ouverte s’ouvre sur un séjour/salon spacieux et agréable, idéal pour les moments de convivialité en famille ou entre amis.L’espace nuit se compose de trois chambres généreuses et d’une salle de bains de plus de 5 m², offrant confort et intimité.Vous serez également séduit par ses nombreuses options (volets roulants électriques, centralisation, domotique…).Vous avez un coup de coeur pour cette maison ? N’hésitez pas à contacter votre conseiller en construction, Olivier PUAUX au (Numéro supprimé), de MAISONS FRANCE CONFORT. Il se tient à votre disposition pour en savoir plus sur cette habitation, découvrir d’autres modèles ou même créer votre projet personnalisé.
Grillon
TERRAIN ET MAISONDécouvrez Optima 84, une maison pensée pour allier confort, modernité et fonctionnalité.Ce plain-pied séduit par son agencement intelligent et ses volumes optimisés : une vaste pièce de vie de 38 m², baignée de lumière, accueille un espace salon-séjour convivial et une cuisine ouverte idéale pour partager des moments en famille.Côté nuit, vous profiterez de deux chambres confortables, d’une salle de bains familiale, ainsi que d’une suite parentale avec sa salle d’eau privative pour plus d’intimité.Un cellier attenant et un garage intégré complètent l’ensemble, pour un quotidien à la fois pratique et agréable.Dans un style résolument contemporain, cette maison est équipée des dernières technologies : volets roulants électriques, centralisation des fermetures, domotique intégrée… tout est prévu pour simplifier votre vie et renforcer votre confort.Fonctionnelle, lumineuse et moderne, Optima 84 est la maison idéale pour accueillir vos projets et offrir à votre famille un cadre de vie épanouissant.Contactez dès maintenant Olivier PUAUX, votre conseiller MAISONS FRANCE CONFORT, au (Numéro supprimé) pour en savoir plus ou imaginer ensemble votre future maison.
Grillon
TERRAIN ET MAISONSituée dans un quartier paisible, cette maison à construire offre un espace de vie moderne et confortable sur 90m2. Composée de trois chambres, elle est idéale pour une famille. La salle de bain est équipée d’une douche spacieuse, d’un meuble vasque et d’un placard pour plus de commodité. Un cellier pratique complète l’agencement fonctionnel de cette maison.Vous serez également séduit par ses nombreuses options (volets roulants électriques, centralisation, domotique…).Ne manquez pas cette opportunité de personnaliser votre futur chez-vous selon vos goûts et besoins ! Contactez votre conseiller en construction Olivier PUAUX (Numéro supprimé) dès aujourd’hui pour plus d’informations.
Grillon
TERRAIN ET MAISONDécouvrez le modèle Étage GA 4 Ch Design, une maison moderne de 98 m² conçue pour répondre aux besoins actuels des familles : espaces optimisés, luminosité et confort au quotidien.Au rez-de-chaussée, profitez d’une grande pièce de vie traversante de 33 m², baignée de lumière, où la cuisine ouverte s’intègre harmonieusement au séjour.Une chambre de plain-pied apporte une véritable polyvalence d’usage : idéale pour recevoir ou aménager un espace de travail.Un cellier de 4,83 m², donnant accès direct au garage, vient compléter l’ensemble, offrant un espace de rangement pratique et fonctionnel.À l’étage, l’espace nuit se compose de trois chambres spacieuses et d’une salle de bains équipée d’une baignoire et d’une douche, pour un confort adapté à toute la famille.Grâce à la nouvelle gamme Open, vous bénéficiez de finitions personnalisables et de packs évolutifs, afin d’adapter votre maison à vos envies et à vos besoins.Côté confort, rien n’a été laissé au hasard : volets roulants électriques, centralisation des fermetures, domotique intégrée… autant d’équipements modernes pensés pour simplifier votre quotidien et renforcer votre confort.Fonctionnelle, lumineuse et résolument moderne, cette maison offre un cadre de vie idéal pour accueillir votre famille et concrétiser votre projet de vie.Contactez dès maintenant Olivier PUAUX, votre conseiller MAISONS FRANCE CONFORT, au (Numéro supprimé), pour en savoir plus ou imaginer ensemble votre future maison.
La Garde-Adhémar
TERRAIN ET MAISONLa Garde-Adhémar : maison F5 (110 m²) en venteEMPLACEMENT PRIVILÉGIÉ – MAISON 5 PIÈCES NEUVEEn vente : à 19 km de Montélimar, Maisons France Confort Montélimar vous présente cette maison de 5 pièces de 110 m² bénéficiant d’un emplacement d’exception dans La Garde-Adhémar (26700). Elle offre quatre chambres, une cuisine et deux salles de bains.Le terrain de la propriété est de 740 m².Il s’agit d’une maison de 2 niveaux. Elle est neuve.La maison est située dans un secteur convoité. Des écoles maternelles et élémentaires sont implantées à moins de 10 minutes à pied, tout comme dont l’École Élémentaire Publique. Niveau transports, on trouve les gares Pierrelatte et Donzère à moins de 10 minutes en voiture. L’autoroute A7 et la nationale N7 sont accessibles à moins de 10 km. Il y a une bibliothèque, un tennis et une épicerie dans les environs.Elle est proposée à l’achat pour 321 456 €.Contactez notre agence (florian DUBOIS : (Numéro supprimé)) pour obtenir de plus amples renseignements sur la maison ou sur les démarches à suivre. Maisons France Confort Montélimar vous accompagne à toutes les étapes de votre projet et dans tous vos projets immobiliers.
La Garde-Adhémar
TERRAIN ET MAISONLa Garde-Adhémar : maison F5 (110 m²) en venteEMPLACEMENT PRIVILÉGIÉ – MAISON 5 PIÈCES NEUVEEn vente : à 19 km de Montélimar, Maisons France Confort Montélimar vous présente cette maison de 5 pièces de 110 m² bénéficiant d’un emplacement d’exception dans La Garde-Adhémar (26700). Elle offre quatre chambres, une cuisine et deux salles de bains.Le terrain de la propriété est de 740 m².Il s’agit d’une maison de 2 niveaux. Elle est neuve.La maison est située dans un secteur convoité. Des écoles maternelles et élémentaires sont implantées à moins de 10 minutes à pied, tout comme dont l’École Élémentaire Publique. Niveau transports, on trouve les gares Pierrelatte et Donzère à moins de 10 minutes en voiture. L’autoroute A7 et la nationale N7 sont accessibles à moins de 10 km. Il y a une bibliothèque, un tennis et une épicerie dans les environs.Elle est proposée à l’achat pour 321 456 €.Contactez notre agence (florian DUBOIS : (Numéro supprimé)) pour obtenir de plus amples renseignements sur la maison ou sur les démarches à suivre. Maisons France Confort Montélimar vous accompagne à toutes les étapes de votre projet et dans tous vos projets immobiliers.
La Garde-Adhémar
TERRAIN ET MAISONVENTE d’une maison F6 (93 m²) à La Garde-AdhémarEMPLACEMENT PRIVILÉGIÉ – MAISON 6 PIÈCES NEUVEEn vente à quelques kilomètres de Montélimar, bénéficiant d’un emplacement d’exception dans La Garde-Adhémar (26700), nous vous proposons cette maison de 6 pièces de plain-pied de 93 m² et de 740 m² de terrain.Conçue de plain-pied, elle propose trois chambres, une cuisine et une salle de bains. La maison est neuve.Ce bien se trouve dans un quartier recherché. Des écoles maternelles et élémentaires sont implantées à moins de 10 minutes à pied, tout comme, parmi lesquelles l’École Élémentaire Publique. Côté transports, il y a deux gares (Pierrelatte et Donzère) à moins de 10 minutes en voiture. L’autoroute A7 et la nationale N7 sont accessibles à moins de 10 km. On trouve une bibliothèque, un tennis et une épicerie dans les environs.Il est proposé à l’achat pour 250 641 €.Contactez florian DUBOIS ((Numéro supprimé)) pour obtenir de plus amples informations sur la maison. Maisons France Confort Montélimar est là pour vous accompagner à toutes les étapes de l’achat.
La Garde-Adhémar
TERRAIN ET MAISONVENTE d’une maison F6 (93 m²) à La Garde-AdhémarEMPLACEMENT PRIVILÉGIÉ – MAISON 6 PIÈCES NEUVEEn vente à quelques kilomètres de Montélimar, bénéficiant d’un emplacement d’exception dans La Garde-Adhémar (26700), nous vous proposons cette maison de 6 pièces de plain-pied de 93 m² et de 740 m² de terrain.Conçue de plain-pied, elle propose trois chambres, une cuisine et une salle de bains. La maison est neuve.Ce bien se trouve dans un quartier recherché. Des écoles maternelles et élémentaires sont implantées à moins de 10 minutes à pied, tout comme, parmi lesquelles l’École Élémentaire Publique. Côté transports, il y a deux gares (Pierrelatte et Donzère) à moins de 10 minutes en voiture. L’autoroute A7 et la nationale N7 sont accessibles à moins de 10 km. On trouve une bibliothèque, un tennis et une épicerie dans les environs.Il est proposé à l’achat pour 250 641 €.Contactez florian DUBOIS ((Numéro supprimé)) pour obtenir de plus amples informations sur la maison. Maisons France Confort Montélimar est là pour vous accompagner à toutes les étapes de l’achat.
L’actualité immobilière à Montségur-sur-Lauzon
27/11/2023
02/11/2023
30/10/2023
20/10/2023
16/10/2023
16/10/2023