Maison à construire à Pierrelatte (26700)
Images
Description
MAISONS FRANCE CONFORT vous propose cette maison, d'architecture contemporaine, qui allie confort et esthétique.
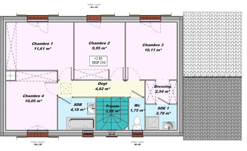
D'une surface habitable de 120 m² ce modèle sépare sur 2 niveaux le coin jour et le coin nuit,
Le rez-de-chaussée entièrement dédié à l'espace à vivre, découvre un espace jour spacieux et lumineux avec cuisine ouverte sur salon, salle à manger et un cellier communiquant au garage. L'étage présente un espace nuit avec 4 chambres et une salle de bains, dont une suite parentale de 18,23 m² avec salle d'eau et dressing.
Vous serez également séduit par ses nombreuses options (volets roulants électriques, centralisation, domotique...).
Vous avez le coup de coeur pour ce modèle ou vous souhaitez personnaliser votre maison ?
Votre conseiller en construction Olivier PUAUX (Numéro supprimé) se tient à votre disposition.
Logement susceptibles de vous intéresser
Nous vous proposons de découvrir aussi cette sélection de logements situés à moins de 10km de Pierrelatte et qui seraient susceptibles de vous intéresser.
Les Granges-Gontardes
TERRAINMAISONS FRANCE CONFORT vous propose, en collaboration avec son partenaire foncier, un terrain situé sur la commune des GRANGES-GONTARDES.Cette jolie parcelle d’une superficie de 411 m², pour 76000€, entièrement viabilisée , vous séduira par son cadre agréable.Implantée dans un environnement calme et résidentiel, cette opportunité est idéale pour concrétiser votre projet de vie et bâtir la maison de vos rêves.Pour plus d’informations ou pour être accompagné dans votre recherche de logement, contactez votre conseiller construction, Olivier PUAUX, au (Numéro supprimé).
Les Granges-Gontardes
TERRAIN ET MAISONDécouvrez une maison moderne, élégante et performante, pensée pour offrir un confort optimal au quotidien !Avec ses 90 m² parfaitement agencés, cette maison conjugue design contemporain, efficacité énergétique et bien-être intérieur, le tout dans le respect de la réglementation environnementale RE2020.Dès l’entrée, vous serez séduit par sa grande pièce de vie lumineuse, ouverte sur la cuisine, idéale pour partager des moments conviviaux en famille ou entre amis.Les trois chambres offrent un espace intime et fonctionnel, tandis que le garage et le cellier apportent une véritable praticité au quotidien.Côté confort, rien n’a été laissé au hasard : volets roulants électriques, centralisation, domotique et surtout un système de chauffage par pompe à chaleur, à la fois économique et respectueux de l’environnement. Vous profitez ainsi d’une maison agréable à vivre, été comme hiver, tout en maîtrisant vos consommations énergétiques.Parce que chaque projet est unique, nous adaptons ensemble ce plan à votre mode de vie et à votre terrain.Mon rôle est de vous accompagner à chaque étape de votre construction, pour faire de ce projet une maison qui vous ressemble pleinement.Contactez-moi au (Numéro supprimé) pour en discuter et commencer à bâtir votre futur chez-vous.Olivier PUAUX – Conseiller Maisons France Confort
Les Granges-Gontardes
TERRAINMAISONS FRANCE CONFORT vous propose, en collaboration avec son partenaire foncier, un terrain situé sur la commune des GRANGES-GONTARDES.Cette jolie parcelle d’une superficie de 405 m², pour 71 000€, entièrement viabilisée , vous séduira par son cadre agréable.Implantée dans un environnement calme et résidentiel, cette opportunité est idéale pour concrétiser votre projet de vie et bâtir la maison de vos rêves.Pour plus d’informations ou pour être accompagné dans votre recherche de logement, contactez votre conseiller construction, Olivier PUAUX, au (Numéro supprimé).
Les Granges-Gontardes
TERRAIN ET MAISONDécouvrez Optima 84, une maison pensée pour allier confort, modernité et fonctionnalité.Ce plain-pied séduit par son agencement intelligent et ses volumes optimisés : une vaste pièce de vie de 38 m², baignée de lumière, accueille un espace salon-séjour convivial et une cuisine ouverte idéale pour partager des moments en famille.Côté nuit, vous profiterez de deux chambres confortables, d’une salle de bains familiale, ainsi que d’une suite parentale avec sa salle d’eau privative pour plus d’intimité.Un cellier attenant et un garage intégré complètent l’ensemble, pour un quotidien à la fois pratique et agréable.Dans un style résolument contemporain, cette maison est équipée des dernières technologies : volets roulants électriques, centralisation des fermetures, domotique intégrée… tout est prévu pour simplifier votre vie et renforcer votre confort.Fonctionnelle, lumineuse et moderne, Optima 84 est la maison idéale pour accueillir vos projets et offrir à votre famille un cadre de vie épanouissant.Contactez dès maintenant Olivier PUAUX, votre conseiller MAISONS FRANCE CONFORT, au (Numéro supprimé) pour en savoir plus ou imaginer ensemble votre future maison.
Pierrelatte
TERRAIN ET MAISONDécouvrez le modèle Étage GA 4 Ch Design, une maison moderne de 98 m² conçue pour répondre aux besoins actuels des familles : espaces optimisés, luminosité et confort au quotidien.Au rez-de-chaussée, profitez d’une grande pièce de vie traversante de 33 m², baignée de lumière, où la cuisine ouverte s’intègre harmonieusement au séjour.Une chambre de plain-pied apporte une véritable polyvalence d’usage : idéale pour recevoir ou aménager un espace de travail.Un cellier de 4,83 m², donnant accès direct au garage, vient compléter l’ensemble, offrant un espace de rangement pratique et fonctionnel.À l’étage, l’espace nuit se compose de trois chambres spacieuses et d’une salle de bains équipée d’une baignoire et d’une douche, pour un confort adapté à toute la famille.Grâce à la nouvelle gamme Open, vous bénéficiez de finitions personnalisables et de packs évolutifs, afin d’adapter votre maison à vos envies et à vos besoins.Côté confort, rien n’a été laissé au hasard : volets roulants électriques, centralisation des fermetures, domotique intégrée… autant d’équipements modernes pensés pour simplifier votre quotidien et renforcer votre confort.Fonctionnelle, lumineuse et résolument moderne, cette maison offre un cadre de vie idéal pour accueillir votre famille et concrétiser votre projet de vie.Contactez dès maintenant Olivier PUAUX, votre conseiller MAISONS FRANCE CONFORT, au (Numéro supprimé), pour en savoir plus ou imaginer ensemble votre future maison.
Donzère
TERRAINMAISONS FRANCE CONFORT vous propose, en collaboration avec son partenaire foncier, un terrain situé sur la commune de DONZERECette jolie parcelle d’une superficie de 390 m² boisé, pour 72000 €, viabilisé en bordure, vous séduira par son cadre unique.Implantée dans un environnement calme, mais proche des commodité, cette opportunité est idéale pour concrétiser votre projet de vie et bâtir la maison de vos rêves.Si vous aussi, vous rêvez d’une maison qui vous ressemble et d’un accompagnement sur mesure, contactez votre conseiller Florian DUBOIS au (Numéro supprimé) 📞
Donzère
TERRAIN ET MAISONVENTE d’une maison T3 (60 m²) à DonzèreMAISON 3 PIÈCES NEUVE – PROCHE DE MONTÉLIMAREn vente : située à quelques kilomètres de Montélimar, votre agence Maisons France Confort Montélimar est ravie de vous présenter à Donzère (26290), cette maison de 3 pièces de plain-pied de 60 m². Son intérieur inclut deux chambres, une cuisine et une salle de bains.Le terrain de la maison s’étend sur 390 m².La maison est neuve.L’École Publique André Jullien, l’École Maternelle Aiguebelle et l’École Privée Sainte Marie sont implantées à moins de 10 minutes à pied. Niveau transports, on trouve la gare Donzère dans un rayon de 1 km. Il y a un accès à la nationale N7 à 1 km. Il y a un tennis, un bassin de natation, des commerces, une boulangerie, une épicerie, un bureau de poste et une boucherie-charcuterie à quelques minutes.Son prix de vente est de 181 910 €.Contactez florian DUBOIS ((Numéro supprimé)) pour obtenir de plus amples informations sur cette maison, sur les modalités de vente et sur les démarches à suivre. Donnez vie à vos projets immobiliers avec Maisons France Confort Montélimar.
Donzère
TERRAIN ET MAISONMaison de 6 pièces (93 m²) à vendre à DonzèreMAISON 6 PIÈCES NEUVE – PROCHE DE MONTÉLIMAREn vente : localisée à quelques kilomètres de Montélimar, laissez vous charmer par à Donzère (26290), cette maison de 6 pièces de plain-pied de 93 m² et de 390 m² de terrain. Conçue de plain-pied, elle offre trois chambres, une cuisine et une salle de bains.La maison est neuve.L’École Publique André Jullien, l’École Maternelle Aiguebelle et l’École Privée Sainte Marie sont implantées à moins de 10 minutes à pied. Niveau transports, on trouve la gare Donzère à quelques pas du bien. On trouve un accès à la nationale N7 à 1 km. Il y a un tennis, un bassin de natation, des commerces, une boulangerie, une épicerie, une boucherie-charcuterie et un bureau de poste à proximité.Son prix de vente est de 214 341 €.Contactez florian DUBOIS (tél : (Numéro supprimé)) pour tout renseignement sur la maison, sur les démarches à suivre ou sur les modalités de vente. Maisons France Confort Montélimar vous accompagne dans tous vos projets immobiliers et dans toutes vos démarches.
Donzère
TERRAIN ET MAISONMaison de 4 pièces (83 m²) à vendre à DonzèrePROCHE DE MONTÉLIMAR – MAISON 4 PIÈCES NEUVEEn vente à quelques kilomètres de Montélimar, venez découvrir cette maison de 4 pièces de 83 m² à Donzère (26290). Son intérieur inclut trois chambres, une cuisine et une salle de bains.Le terrain de la maison s’étend sur 390 m².Cette maison possède 2 niveaux. Elle est neuve.Il y a l’École Publique André Jullien, l’École Maternelle Aiguebelle et l’École Privée Sainte Marie à moins de 10 minutes à pied. Niveau transports, on trouve la gare Donzère dans les environs. On trouve un accès à la nationale N7 à 1 km. Il y a un tennis, un bassin de natation, des commerces, une boulangerie, une épicerie, une boucherie-charcuterie et un bureau de poste à proximité du logement.Il est proposé à l’achat pour 218 480 €.N’hésitez pas à prendre contact avec notre agence (DUBOIS florian : (Numéro supprimé)) pour toute question sur la maison ou sur les modalités de vente. Maisons France Confort Montélimar vous accompagne dans toutes vos démarches et dans tous vos projets immobiliers.
L’actualité immobilière à Pierrelatte
27/11/2023
02/11/2023
30/10/2023
20/10/2023
16/10/2023
16/10/2023