Maison à construire à Puygiron (26160)
Images
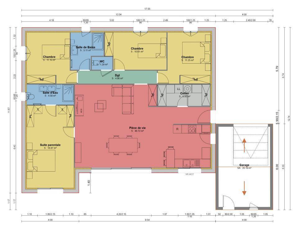
Description
Maison contemporaine de 121,99 m² - moderne, spacieuse et lumineuse
Cette maison contemporaine de 121,99 m² habitables a été conçue pour offrir confort et praticité à toute la famille.
Dès l'entrée, vous découvrirez une vaste pièce de vie de près de 50 m², baignée de lumière grâce à ses larges ouvertures, où séjour et cuisine s'harmonisent dans une atmosphère conviviale et chaleureuse.
La partie nuit comprend une suite parentale de 18,87 m² avec salle d'eau privative, véritable cocon pour les parents. Trois autres chambres bien agencées complètent l'espace et pourront accueillir enfants, invités ou bureau. Une salle de bains familiale et un WC indépendant viennent renforcer le confort du quotidien.
Un cellier, directement relié à la cuisine, facilite le rangement et l'organisation. Le garage de 20 m² apporte un espace supplémentaire, à la fois pratique et fonctionnel.
La maison bénéficie également d'équipements modernes tels que les volets roulants électriques, la centralisation des fermetures et la domotique intégrée, autant d'atouts pensés pour simplifier votre quotidien et renforcer votre confort.
Fonctionnelle, lumineuse et résolument moderne, cette maison offre un cadre de vie idéal pour accueillir vos projets et votre famille.
Pour en savoir plus ou imaginer votre future maison, contactez Olivier PUAUX, votre conseiller MAISONS FRANCE CONFORT, au (Numéro supprimé).
Logement susceptibles de vous intéresser
Nous vous proposons de découvrir aussi cette sélection de logements situés à moins de 10km de Puygiron et qui seraient susceptibles de vous intéresser.
Cléon-d'Andran
TERRAINMAISONS FRANCE CONFORT vous propose, avec son partenaire foncier, un superbe terrain sur la commune de CLEON-D’ANDRAN.Cette belle parcelle arborée de 625 m², proposée au prix de 99 000 €, viabilisée en bordure vous séduira par son cadre agréable et verdoyant. Implantée dans un environnement calme et résidentiel, cette opportunité est idéale pour concrétiser votre projet de vie et bâtir la maison de vos rêves.L’orientation de votre future construction vous permettra de profiter d’une superbe vue dégagée sur le Mont Ventoux, ajoutant encore du charme de cet emplacement unique.Pour plus d’informations ou pour bénéficier d’un accompagnement personnalisé, contactez dès maintenant votre conseiller en construction, Olivier PUAUX, au (Numéro supprimé).
Cléon-d'Andran
TERRAIN ET MAISONSituée dans un quartier paisible, cette maison à construire offre un espace de vie moderne et confortable sur 90m2. Composée de trois chambres, elle est idéale pour une famille. La salle de bain est équipée d’une douche spacieuse, d’un meuble vasque et d’un placard pour plus de commodité. Un cellier pratique complète l’agencement fonctionnel de cette maison.Vous serez également séduit par ses nombreuses options (volets roulants électriques, centralisation, domotique…).Ne manquez pas cette opportunité de personnaliser votre futur chez-vous selon vos goûts et besoins ! Contactez votre conseiller en construction Olivier PUAUX (Numéro supprimé) dès aujourd’hui pour plus d’informations.
Cléon-d'Andran
TERRAIN ET MAISONSituée dans un cadre paisible, cette villa de 131 m² allie élégance et fonctionnalité !!!À l’intérieur, vous serez accueilli par un espace de vie de 59,64m², comprenant une cuisine ouverte sur un salon et une salle à manger lumineuse. L’espace nuit se compose de 3 chambres confortables et d’une salle de bains moderne. Une suite parentale séparée de la partie nuit offre l’intimité et le confort nécessaires pour vous détendre en toute tranquillité.Cette maison de plain-pied, conforme à la Réglementation Environnementale RE2020, vous assure un habitat écologique et économe en énergie. De plus, elle est dotée d’un garage, directement accessible depuis la maison, pour votre plus grand confort au quotidien.Vous serez également séduit par les nombreuses options disponibles, telles que les volets roulants électriques, la centralisation et la domotique, ajoutant une touche de modernité à votre foyer.Votre conseiller en construction Olivier PUAUX (Numéro supprimé) MAISONS FRANCE CONFORT se tient à votre disposition pour en savoir plus à propos de cette habitation, en découvrir d’autres ou bien même créer votre projet personnalisé.Contactez-le sans plus tarder, pour donner vie à votre projet !!!
Cléon-d'Andran
TERRAIN ET MAISONCette maison de plain-pied de 104 m² conçu en ossature bois, a été pensée pour offrir un cadre de vie à la fois fonctionnel, lumineux et chaleureux. Dès l’entrée, on découvre un vaste espace jour, où la lumière naturelle s’invite généreusement grâce à de larges ouvertures. Cet espace de vie ouvert est idéal pour partager des moments en famille ou entre amis, dans une ambiance conviviale et confortable.Côté nuit, quatre chambres de tailles variées permettent à chacun de disposer de son propre espace d’intimité. Le quotidien est facilité par des espaces parfaitement agencés : cellier, salle de bains, WC séparés, garage attenant… Chaque mètre carré a été pensé pour répondre aux besoins de toute la famille.Enfin, la maison intègre des équipements modernes : volets roulants, système de centralisation, domotique… autant d’équipements qui vous faciliteront la vie et vous permettront de profiter pleinement de votre chez-vous.Vous souhaitez la découvrir ou créer votre propre projet ?Contactez Olivier PUAUX, votre conseiller MAISONS FRANCE CONFORT.((Numéro supprimé))
Cléon-d'Andran
TERRAIN ET MAISONMaison contemporaine de plain-pied – 3 chambres dont 1 suite parentale – GarageDécouvrez cette maison contemporaine de plain-pied d’une superficie de 104,40 m², pensée pour offrir un cadre de vie à la fois moderne, lumineux et chaleureux.Dès l’entrée, une vaste pièce de vie de plus de 45 m² s’ouvre sur le jardin, baignée de lumière grâce à ses grandes ouvertures. Cet espace central, où se mêlent salon, salle à manger et cuisine ouverte, invite à la convivialité et aux moments partagés en famille.À proximité immédiate de la cuisine, un cellier fonctionnel facilite le rangement et l’organisation du quotidien, apportant un vrai confort d’usage. Le garage d’environ 20 m² vient compléter l’ensemble, idéal pour le stationnement ou pour créer un espace de stockage supplémentaire.Le coin nuit se compose de trois chambres confortables, dont une suite parentale spacieuse de 17 m² avec dressing et salle d’eau privative. Chacun y trouvera son intimité dans un cadre apaisant et bien pensé. Une seconde salle de bains et un WC indépendant viennent parfaire cet agencement harmonieux.La maison bénéficie également d’équipements modernes tels que les volets roulants électriques, la centralisation des volets et la domotique intégrée, autant d’atouts pensés pour simplifier votre quotidien et renforcer votre confort.Pour en savoir plus ou imaginer votre future maison, contactezOlivier PUAUX, votre conseiller MAISONS FRANCE CONFORT, au (Numéro supprimé).
Cléon-d'Andran
TERRAINMAISONS FRANCE CONFORT vous propose, en collaboration avec son partenaire foncier, un terrain situé sur la commune de CLEON D’ANDRANCette jolie parcelle d’une superficie de 625 m² boisé, pour 99 000 €, (viabilité en bordure), vous séduira par son cadre unique.Implantée dans un environnement calme, mais proche des commodité, cette opportunité est idéale pour concrétiser votre projet de vie et bâtir la maison de vos rêves.Si vous aussi, vous rêvez d’une maison qui vous ressemble et d’un accompagnement sur mesure, contactez votre conseiller Florian DUBOIS au (Numéro supprimé) 📞
Cléon-d'Andran
TERRAIN ET MAISONCléon-d’Andran : maison T6 (100 m²) en venteEMPLACEMENT PRIVILÉGIÉ – MAISON 6 PIÈCES NEUVEEn vente à deux pas de Montélimar, bénéficiant d’un emplacement d’exception dans Cléon-d’Andran (26450), laissez vous charmer par cette maison de 6 pièces de plain-pied de 100 m² et de 625 m² de terrain.Elle est composée de trois chambres, d’une cuisine et de deux salles de bains. Cette maison est neuve.La maison se situe dans un quartier recherché. On trouve le Collège Olivier de Serres et l’École Publique Cléon d’Andran à moins de 10 minutes à pied et deux crèches. L’autoroute A7 et les nationales N7 et N102 sont accessibles à moins de 19 km. Il y a un bassin de natation, un tennis, une bibliothèque, deux boulangeries, quatre commerces, un supermarché, une supérette et deux boucheries-charcuteries à proximité.Elle est proposée à l’achat pour 310 427 €.Contactez florian DUBOIS ((Numéro supprimé)) pour toute information sur la propriété, sur les démarches à suivre ou sur les modalités de vente. Maisons France Confort Montélimar est là pour vous accompagner à toutes les étapes de votre projet.
Cléon-d'Andran
TERRAIN ET MAISONMaison F5 (83 m²) à vendre à Cléon-d’AndranEMPLACEMENT PRIVILÉGIÉ – MAISON 5 PIÈCES NEUVEEn vente : située à 16 km de Montélimar, Maisons France Confort Montélimar vous présente cette maison de 5 pièces de plain-pied de 83 m² et de 625 m² de terrain bénéficiant d’un emplacement d’exception dans Cléon-d’Andran (26450). Conçue de plain-pied, elle dispose de trois chambres, d’une cuisine et d’une salle de bains.Cette maison est neuve.Cette propriété est située dans un secteur convoité. Le Collège Olivier de Serres et l’École Publique Cléon d’Andran se trouvent à moins de 10 minutes à pied, tout comme deux crèches. L’autoroute A7 et les nationales N7 et N102 sont accessibles à moins de 19 km. Il y a un bassin de natation, un tennis, une bibliothèque, deux boulangeries, quatre commerces, un supermarché, deux boucheries-charcuteries et un bureau de poste à proximité du bien.Son prix de vente est de 229 837 €.Prenez contact avec notre agence (DUBOIS florian : (Numéro supprimé)) pour tout renseignement sur la maison. Donnez vie à vos projets immobiliers avec Maisons France Confort Montélimar.
Cléon-d'Andran
TERRAIN ET MAISONCléon-d’Andran : maison de 5 pièces (110 m²) en venteEMPLACEMENT PRIVILÉGIÉ – MAISON 5 PIÈCES NEUVEEn vente à deux pas de Montélimar, bénéficiant d’un emplacement d’exception dans Cléon-d’Andran (26450), nous sommes heureux de vous proposer cette maison de 5 pièces de 110 m² et de 625 m² de terrain. Son intérieur offre quatre chambres, une cuisine et deux salles de bains.Cette maison possède 2 niveaux. Elle est neuve.Cette maison se situe dans un quartier attractif. Le Collège Olivier de Serres et l’École Publique Cléon d’Andran sont implantés à moins de 10 minutes à pied, tout comme deux structures d’accueil pour la petite enfance. L’autoroute A7 et les nationales N7 et N102 sont accessibles à moins de 19 km. Il y a un bassin de natation, un tennis, une bibliothèque, deux boulangeries, quatre commerces, un supermarché, un bureau de poste et une supérette à quelques minutes.Son prix de vente est de 285 558 €.Contactez notre agence (DUBOIS florian : (Numéro supprimé)) pour toute question sur la maison.
L’actualité immobilière à Puygiron
27/11/2023
02/11/2023
30/10/2023
20/10/2023
16/10/2023
16/10/2023