Maison à construire à Tain-l'Hermitage (26600)
Images
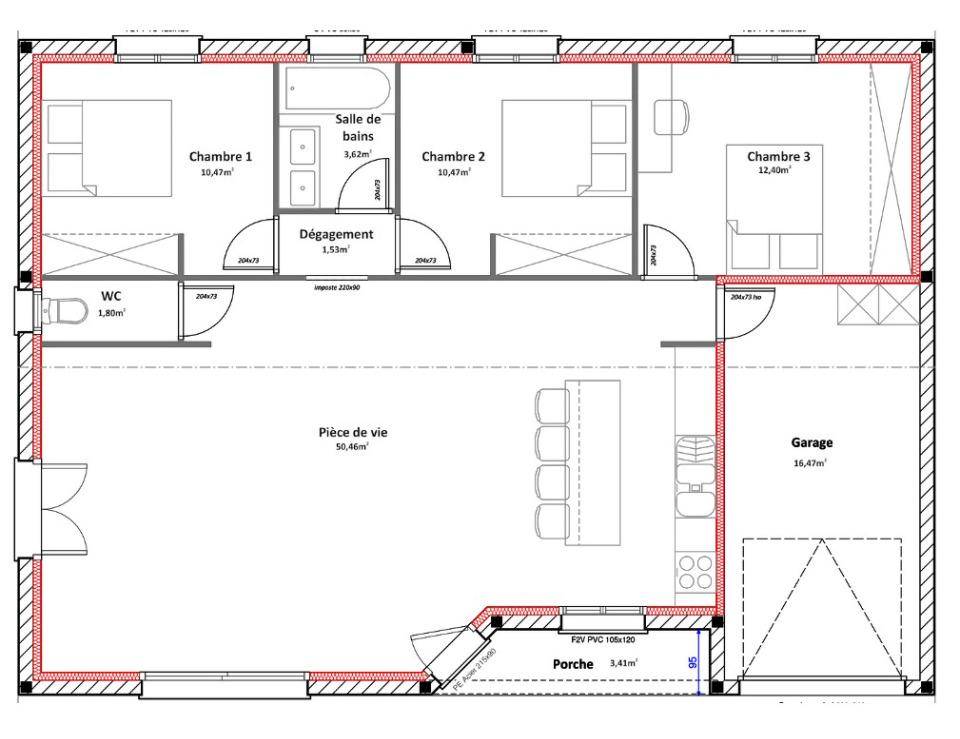
Description
Projet de Construction, sur la commune de Tain-L'Hermitage (26600), sur une parcelle constructible viabilisé découvrez ce projet de construction.
Fonctionnelle, chaleureuse et pleine de lumière, cette maison de plain-pied de 90 m² a été pensée pour conjuguer confort au quotidien et esthétisme intemporel. À l'intérieur, les volumes s'articulent intelligemment autour d'une vaste pièce de vie traversante, où salon, salle à manger et cuisine ouverte se fondent dans une atmosphère conviviale. Les trois chambres offrent des espaces nuit cosy et bien séparés, idéals pour une famille ou pour accueillir. Le garage intégré ajoute une touche de praticité, tout en conservant l'élégance architecturale du projet.
Pensée pour s'adapter à votre mode de vie, la maison allie performance énergétique, qualité des matériaux et possibilités de personnalisation.
Pourquoi choisir Maisons France Confort ?
Le savoir-faire et la solidité du leader national,
Une maison 100 % personnalisable, adaptée à vos envies et votre budget,
Des garanties CCMI pour construire en toute sérénité,
Un accompagnement humain, local et sur mesure.
Contactez Amandine Maggioni, votre conseillère Maisons France Confort, et donnez vie à votre projet dès aujourd'hui au (Numéro supprimé)
Logement susceptibles de vous intéresser
Nous vous proposons de découvrir aussi cette sélection de logements situés à moins de 10km de Tain-l'Hermitage et qui seraient susceptibles de vous intéresser.
Sécheras
TERRAINTerrain constructible de 994 m2 non viabilisé au calme sur la commune de SécherasCette annonce référence 313739 vous est présentée par votre agent commercial BSK Immobilier LUCAS RIPOLL (EI) immatriculé au RSAC de ROMANS-SUR-ISERE (26100) sous le numéro 97777282100012.Prix du bien : 68 500,00 €Les honoraires d’agence sont à la charge du vendeur.Les informations sur les risques auxquels ce bien est exposé sont disponibles sur le site Géorisques : www.georisques.gouv.fr
Tain-l'Hermitage
TERRAIN ET MAISONSur une parcelle constructible de 600M2 viabilisé, situé sur la commune de Tain-L’Hermitage (26600), Maisons France Confort vous propose, une maison contemporaine à étage pensée pour conjuguer esthétisme, fonctionnalité et bien-être au quotidien. À l’intérieur, vous serez charmé par un séjour lumineux de près de 42 m², ouvert sur une cuisine conviviale et prolongé par une terrasse couverte idéale pour les repas en extérieur. La suite parentale, située au rez-de-chaussée, bénéficie d’un dressing et d’une salle d’eau privative, garantissant intimité et confort. À l’étage, trois chambres supplémentaires, une salle de bain familiale. Cette maison bénéficie de solutions d’optimisation énergétique et d’un agencement sur-mesure, entièrement personnalisable selon vos envies. Avec Maisons France Confort, vous bénéficiez de l’expérience du constructeur N°1 en France ainsi que de toutes les garanties du contrat CCMI pour construire en toute sérénité. Pour toutes étude de votre projet de construction contactez Amandine Maggioni au (Numéro supprimé), votre chargée de projet sur le secteur.
Tain-l'Hermitage
TERRAIN ET MAISONProjet de construction Maisons France ConfortMaison 120 M2 4 chambres, un garage intégré avec terrasse couverte Une maison 100 % personnalisable, adaptée à vos envies et votre budget,Des garanties CCMI pour construire en toute sérénité,Un accompagnement humain, local et sur mesure.Construite avec des matériaux performants, cette maison offre un excellent confort thermique et des économies d’énergie appréciable. Elle est entièrement personnalisable pour s’adapter à votre mode de vie. Contactez Amandine Maggioni, votre conseillère Maisons France Confort, et donnez vie à votre projet dès aujourd’hui au (Numéro supprimé)
Tain-l'Hermitage
TERRAIN ET MAISONProjet de Construction, sur la commune de Tain-L’Hermitage (26600), sur une parcelle constructible viabilisé découvrez ce projet de construction.Fonctionnelle, chaleureuse et pleine de lumière, cette maison de plain-pied de 90 m² a été pensée pour conjuguer confort au quotidien et esthétisme intemporel. À l’intérieur, les volumes s’articulent intelligemment autour d’une vaste pièce de vie traversante, où salon, salle à manger et cuisine ouverte se fondent dans une atmosphère conviviale. Les trois chambres offrent des espaces nuit cosy et bien séparés, idéals pour une famille ou pour accueillir. Le garage intégré ajoute une touche de praticité, tout en conservant l’élégance architecturale du projet.Pensée pour s’adapter à votre mode de vie, la maison allie performance énergétique, qualité des matériaux et possibilités de personnalisation. Pourquoi choisir Maisons France Confort ?Le savoir-faire et la solidité du leader national,Une maison 100 % personnalisable, adaptée à vos envies et votre budget,Des garanties CCMI pour construire en toute sérénité,Un accompagnement humain, local et sur mesure.Contactez Amandine Maggioni, votre conseillère Maisons France Confort, et donnez vie à votre projet dès aujourd’hui au (Numéro supprimé)
Tain-l'Hermitage
TERRAINMAISONS FRANCE CONFORT vous propose, en collaboration avec son partenaire foncier, un terrain constructible situé sur la commune de Tain-l’Hermitage (26600). Cette jolie parcelle constructible d’une superficie de 600 m², pour 145000 €, viabilisé, vous séduira par son cadre agréable. Implantée dans un Quartier recherché cette opportunité est idéale pour concrétiser votre projet de vie et bâtir la maison de vos rêves. Pour plus d’informations ou pour être accompagné dans votre recherche de logement, Contactez votre chargée de projet Amandine Maggioni au (Numéro supprimé)
Tain-l'Hermitage
TERRAIN ET MAISONPROJET DE CONSTRUCTION sur la commune de TAIN-L’HERMITAGE (26600) Construisez votre maison avec le leader de la maison individuelle ! sur une parcelle constructible viabilisé de 600M2.Dans cette maison contemporaine en L, chaque espace a été pensé pour conjuguer bien-être quotidien et art de vivre à la méridionale. Son architecture à 3 pans et ses finitions soignées illustrent parfaitement le savoir-faire Maisons France Confort dans la construction de maisons sur-mesure. Avec ses 115 m² habitables et ses annexes fonctionnelles, cette villa séduit autant par son élégance que par son intelligence d’agencement. Pourquoi choisir Maisons France Confort ?Le savoir-faire et la solidité du leader national,Une maison 100 % personnalisable, adaptée à vos envies et votre budget,Des garanties CCMI pour construire en toute sérénité,Un accompagnement humain, local et sur mesure.Contactez Amandine Maggioni, votre conseillère Maisons France Confort, et donnez vie à votre projet dès aujourd’hui au (Numéro supprimé)
Tain-l'Hermitage
TERRAIN ET MAISONProjet de Construction, maison neuve sur la commune de Tain-L’Hermitage (26600), sur une parcelle constructible de 600 m2 viabilisé, Maisons France Confort vous propose une maison de plain pied, avec ses 70 m² de surface habitable, cette maison est idéale pour un premier achat, un investissement ou pour des retraités souhaitant un logement adapté à leur mode de vie. Pensée pour s’adapter à votre mode de vie, la maison allie performance énergétique, qualité des matériaux et possibilités de personnalisation. Pourquoi choisir Maisons France Confort ?Le savoir-faire et la solidité du leader national,Une maison 100 % personnalisable, adaptée à vos envies et votre budget,Des garanties CCMI pour construire en toute sérénité,Un accompagnement humain, local et sur mesure. Contactez Amandine Maggioni, votre conseillère Maisons France Confort, et donnez vie à votre projet dès aujourd’hui au (Numéro supprimé),
Tournon-sur-Rhône
TERRAINArdèche – TOURNON SUR RHONE – Terrain Constructible Viabilisé 838 m² – 190 000 Euros -EXCLUSIVITÉ – Nicolas JENNY vous propose ce terrain à bâtir, idéalement situé dans un secteur calme et recherché, à proximité immédiate des commodités, des écoles et des accès principaux. Les atouts de ce bien :- Superficie généreuse de 838 m², parfaitement plate et facile d’accès- Zone UC : secteur résidentiel urbain propice à une construction individuelle ou projet d’investissement- Viabilisé : raccordements eau, électricité, gaz, et tout-à-l’égout déjà réalisés.- Etudes de sol à disposition, pièce de refuge impérative à l’étage.- Environnement paisible, idéal pour une vie de famille ou une résidence locative- Possibilité de plusieurs constructions selon votre projet (à valider auprès du service urbanisme).Prix de vente : 190 000 euros (honoraires à la charge du vendeur)(Numéro supprimé), (Email supprimé).Mandat 426626. Non soumis à DPE.Selon l’article L.561.5 du Code Monétaire et Financier, pour l’organisation de la visite, la présentation d’une pièce d’identité vous sera demandée.Informations sur les risques auxquels ce bien est exposé sont disponibles sur le site Géorisques : www.georisques.gouv.frCette présente annonce a été rédigée sous la responsabilité éditoriale de Nicolas JENNY agissant en qualité de conseiller immobilier indépendant sous portage salarial auprès de SAS PROPRIETES PRIVEES, au capital de 44 920 Euros, ZAC LE CHÊNE FERRÉ – 44 ALLÉE DES CINQ CONTINENTS 44120 VERTOU. SIRET 487 624 777 00040, RCS Nantes. Carte Professionnelle Transactions sur immeubles et fonds de commerce (T) et Gestion immobilière (G) n°CPI 4401 2016 000 010 388 délivrée par la CCI Nantes – Saint Nazaire. Compte séquestre n(Numéro supprimé)67 BPA SAINT-SEBASTIEN-SUR-LOIRE (44230). Garantie GALIAN-SMABTP – 89 rue de la Boétie, 75008 Paris – n°28137 J pour 2 000 000 euros pour T et 120 000 euros pour G. Assurance responsabilité civile professionnelle par GALIAN-SMABTP n° de police 28137.J.
Ponsas
TERRAINÀ vendre – Terrain à bâtir de 4 747 m² à Ponsas (26240)Situé sur les hauteurs de la commune de Ponsas, ce superbe terrain à bâtir de 4 747 m² offre un cadre de vie privilégié, dans un environnement naturel, arboré et résidentiel.Idéal pour un projet de lotissement ou de construction individuelle, le terrain présente une constructibilité permettant la création de 1 à 7 lots selon votre projet (sous réserve d’accord administratif).Caractéristiques principales :Surface : 4 747 m²Possibilité de division parcellaire (jusqu’à 7 lots)Exposition favorableTerrain libre de constructeurProximité immédiate des réseaux pour la viabilisationCadre verdoyant et calme, à deux pas du village et des commoditésUne opportunité rare sur le secteur, à découvrir rapidement !Pour plus d’informations ou organiser une visite, contactez moi dès maintenant. Les honoraires sont à la charge du vendeur.Les informations sur les risques auxquels ce bien est exposé sont disponibles sur le site Géorisques : www. georisques. gouv. fr.Réseau Immobilier CAPIFRANCE – Votre agent commercial (RSAC N(Numéro supprimé) – Greffe de ROMANS SUR ISERE) Françoise GIMENEZ Entrepreneur Individuel (Numéro supprimé) – Réf.902552
L’actualité immobilière à Tain-l'Hermitage
27/11/2023
02/11/2023
30/10/2023
20/10/2023
16/10/2023
16/10/2023