Maison à construire à Valence (26000)
Images
Description
Que diriez-vous d'une maison conviviale et chaleureuse ?
C'est la promesse de cette villa !
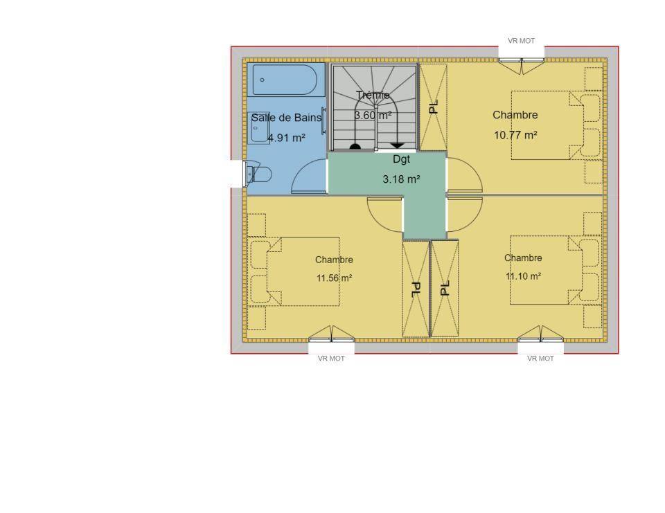
Cette maison de 83 m² propose au rez-de-chaussée une magnifique pièce de vie de 40,30 m², traversante et baignée de lumière. Chaque espace est exploité pour s'adapter à votre quotidien et créer une ambiance cosy.
Pour le côté pratique, vous apprécierez la présence d'un garage de 19,80 m² jouxtant cet habitat.
A l'étage, 3 belles chambres vous-y attendent, complétées par une grande salle de bains proposant baignoire, une vasque ainsi qu'un second WC. Chacune des chambres disposent d'un placard intégré offrant un aménagement et une décoration soignés, que ce soit dans un style contemporain ou plutôt scandinave.
Pour l'aspect extérieur, les menuiseries de couleur anthracite apportent une signature architecturale bien distincte pour une maison totalement à votre goût !
Vous souhaitez en savoir plus ?
Votre conseiller Olivier PUAUX ((Numéro supprimé)), vous accompagne dans la réalisation de ce projet de construction en définissant avec vous votre plan de maison.
Contactez-le sans plus tarder, pour donner vie à votre projet !!!
Logement susceptibles de vous intéresser
Nous vous proposons de découvrir aussi cette sélection de logements situés à moins de 10km de Valence et qui seraient susceptibles de vous intéresser.
Montéléger
TERRAINVENTE d’un terrain de 1 020 m² à MontélégerEMPLACEMENT PRIVILÉGIÉ – PROCHE DE VALENCEGrand terrain en vente à deux pas de Valence. De 1 020 m², ce terrain se situe bénéficiant d’un emplacement d’exception dans Montéléger (26760). Il donne sur un espace vert. L’autoroute A7 et la nationale N7 sont accessibles à moins de 7 km. On trouve un bassin de natation, deux commerces, deux boulangeries et une boucherie-charcuterie à quelques minutes à peine.Il est proposé à l’achat pour 240 000 €. Prenez contact avec florian DUBOIS (tél : (Numéro supprimé)) pour plus d’informations sur ce terrain. Concrétisez vos projets immobiliers avec Maisons France Confort Montélimar.
Bourg-lès-Valence
TERRAINEXCLUSIVITE !Terrain viabilisé de 520 m².Cette annonce référence 270168 vous est présentée par votre agent commercial BSK Immobilier JEREMY SACLIER (EI) immatriculé au RSAC de ROMANS-SUR-ISERE (26100) sous le numéro 89394801800013.Prix du bien : 180 000,00 €Les honoraires d’agence sont à la charge du vendeur.Les informations sur les risques auxquels ce bien est exposé sont disponibles sur le site Géorisques : www.georisques.gouv.fr
Bourg-lès-Valence
TERRAINEXCLUSIVITE !Terrain viabilisé 648 m².Cette annonce référence 273199 vous est présentée par votre agent commercial BSK Immobilier JEREMY SACLIER (EI) immatriculé au RSAC de ROMANS-SUR-ISERE (26100) sous le numéro 89394801800013.Prix du bien : 199 000,00 €Les honoraires d’agence sont à la charge du vendeur.Les informations sur les risques auxquels ce bien est exposé sont disponibles sur le site Géorisques : www.georisques.gouv.fr
Valence
TERRAINMAISONS FRANCE CONFORT, vous propose avec son partenaire foncier un terrain sur la commune de VALENCE. Cette jolie parcelle de 604 m² pour 173 000€, entièrement viabilisée, est située à proximité des commodités, ce qui vous assure un grand confort de vie. Dans un environnement calme et agréable pour votre projet de vie, réalisez votre rêve grâce à la maison qui vous ressemble.Vous pouvez contacter votre conseiller construction Olivier PUAUX ((Numéro supprimé)) pour en savoir plus ou vous faire accompagner dans votre recherche de logement.
Valence
TERRAINMAISONS FRANCE CONFORT, vous propose avec son partenaire foncier un terrain sur la commune de VALENCE. Cette jolie parcelle de 422 m² pour 127 000€, entièrement viabilisée, est située à proximité des commodités, ce qui vous assure un grand confort de vie. Dans un environnement calme et agréable pour votre projet de vie, réalisez votre rêve grâce à la maison qui vous ressemble.Vous pouvez contacter votre conseiller construction Olivier PUAUX ((Numéro supprimé)) pour en savoir plus ou vous faire accompagner dans votre recherche de logement.
Valence
TERRAIN ET MAISONDans un environnement privilégié, Maisons France Confort vous propose cette maison de 93 m². Avec son architecture moderne et fonctionnelle Accès 93 c’est 93 m² d’espace astucieusement organisé pour vous faciliter le quotidien. L’espace jour accueille une cuisine ouverte, un salon, un séjour. Pour la partie nuit, ce modèle offre 3 chambres et une salle de bains équipé avec un meuble simple-vasque et une baignoire. À l’extérieur, la propriété vous offre un jardin, idéal pour loger votre famille avec un réel bien-être. Vous avez le coup de coeur pour cette maison ?Votre conseiller MAISONS FRANCE CONFORT Olivier PUAUX ((Numéro supprimé)), vous accompagne dans la réalisation de ce projet de construction en définissant avec vous votre plan de maison. Contactez-le sans plus tarder, pour donner vie à votre projet !!!
Valence
TERRAIN ET MAISONAvec des volumes généreux, cette villa se distingue par ses lignes modernes et de superbes perspectives. L’agencement du rez-de-chaussée est conçu pour offrir bien-être et convivialité !Dessinée en L, avec ces terrasses couvertes et de larges ouvertures sur le jardin cet habitat propose des espaces de vie chaleureux et lumineux. Avec ses 140 m² cette maison offre de beaux atouts : une entrée avec toutes les commodités, placards, WC, un séjour de près de 60 m² pour le salon et la salle à manger ouverte sur la cuisine. Sur ce même niveau on retrouve une grande suite parentale de près de 20 m² avec chambre, salle d’eau et dressing. Très fonctionnel ce modèle de maison propose aussi un garage et un cellier !À l’étage, la composition du plan continue avec 3 belles chambres équipées de rangements, et une salle d’eau. Le charme d’une maison traditionnelle et l’élégance des matériaux d’aujourd’hui pour ravir toute la famille.Vous souhaitez en savoir plus, contactez-nous !Votre conseiller en construction Olivier PUAUX (Numéro supprimé) MAISONS FRANCE CONFORT se tient à votre disposition pour en savoir plus à propos de cette habitation, en découvrir d’autres ou bien même créer votre projet personnalisé.
Valence
TERRAIN ET MAISONDécouvrez une maison à la simplicité, à l’harmonie qui vous ravira au quotidien !!!Cette maison d’architecture contemporaine, intégrant des menuiseries gris anthracite allie confort et esthétique. D’une surface habitable de 110 m² ce modèle, accueille 4 chambres.Au rez-de-chaussée, cette maison à étage découvre un espace jour spacieux et lumineux avec cuisine ouverte sur salon-séjour.L’agencement intelligemment configuré offre une suite parentale avec salle d’eau et dressing. L’étage présente un espace nuit avec 3 chambres et une salle de bains équipée d’un meuble simple-vasque, une baignoire et un WC.Pour votre confort, un garage vient compléter cet habitat.Vous avez le coup de coeur pour cette maison ?Votre conseiller en construction MAISONS France CONFORT Olivier PUAUX (Numéro supprimé) se tient à votre disposition pour en savoir plus à propos de cette habitation, en découvrir d’autres ou bien même créer votre projet personnalisé.
Valence
TERRAIN ET MAISONMAISONS FRANCE CONFORT vous propose cette maison, d’architecture contemporaine, qui allie confort et esthétique. D’une surface habitable de 120 m² ce modèle sépare sur 2 niveaux le coin jour et le coin nuit, Le rez-de-chaussée entièrement dédié à l’espace à vivre, découvre un espace jour spacieux et lumineux avec cuisine ouverte sur salon, salle à manger et un cellier communiquant au garage. L’étage présente un espace nuit avec 4 chambres et une salle de bains, dont une suite parentale de 18,23 m² avec salle d’eau et dressing. Vous serez également séduit par ses nombreuses options (volets roulants électriques, centralisation, domotique…).Vous avez le coup de coeur pour ce modèle ou vous souhaitez personnaliser votre maison ?Votre conseiller en construction Olivier PUAUX (Numéro supprimé) se tient à votre disposition.
L’actualité immobilière à Valence
27/11/2023
02/11/2023
30/10/2023
20/10/2023
16/10/2023
16/10/2023