Maison à construire à Valence (26000)
Images
Description
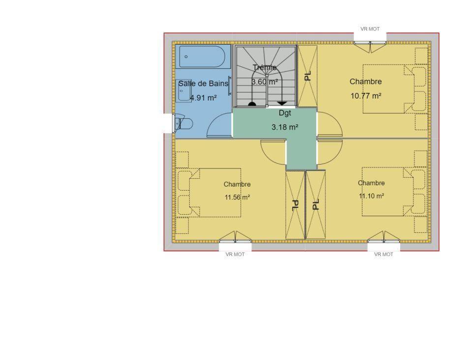
Devenez propriétaire à VALENCE - Maison 83 m² + Terrain - 257658 €
Maisons France Confort - vous propose, dans un nouveau lotissement, à proximité immédiate des commerces, écoles , la construction d'une maison moderne de 83 m² parfaitement pensée pour les primo-accédants.
Atouts de votre projet :
Maison neuve, moderne et économe en énergie
Espaces fonctionnels et lumineux
Terrain idéalement situé, proche des écoles, commerces et services
Accession facilitée grâce au PTZ (Prêt à Taux Zéro)
Prix clé en main : 257658 € (terrain + maison)
Avec Maisons France Confort, vous bénéficiez de l'expérience du constructeur N°1 en France ainsi que de toutes les garanties du contrat CCMI pour construire en toute sérénité. Contact : Amandine Maggioni (Numéro supprimé)
Logement susceptibles de vous intéresser
Nous vous proposons de découvrir aussi cette sélection de logements situés à moins de 10km de Valence et qui seraient susceptibles de vous intéresser.
Saint-Marcel-lès-Valence
TERRAIN ET MAISONVENTE : maison T4 (73 m²) à Saint-Marcel-lès-ValenceIDÉALEMENT SITUÉE – MAISON 4 PIÈCES NEUVEÀ quelques kilomètres de Valence, votre agence Maisons France Confort Montélimar est heureuse de vous proposer cette maison de 4 pièces de plain-pied de 73 m² et de 441 m² de terrain en vente, idéalement située dans Saint-Marcel-lès-Valence (26320). Elle propose trois chambres, une cuisine et une salle de bains.La maison est neuve.La maison est située dans un secteur attractif. Des écoles maternelles et élémentaires sont implantées à moins de 10 minutes à pied, tout comme deux crèches. Niveau transports, on trouve deux gares (Valence TGV Rhône-Alpes Sud et Valence) à moins de 10 minutes en voiture. On trouve un accès à la nationale N532 à 1 km. Il y a une bibliothèque, un tennis, quatre commerces, deux boulangeries et un bureau de poste à proximité.Elle est à vendre pour la somme de 277 212 €.Contactez Amandine MAGGIONI (tél : (Numéro supprimé)) pour toute question sur la maison.
Saint-Marcel-lès-Valence
TERRAIN ET MAISONVENTE : maison T4 (73 m²) à Saint-Marcel-lès-ValenceIDÉALEMENT SITUÉE – MAISON 4 PIÈCES NEUVEÀ quelques kilomètres de Valence, votre agence Maisons France Confort Montélimar est heureuse de vous proposer cette maison de 4 pièces de plain-pied de 73 m² et de 441 m² de terrain en vente, idéalement située dans Saint-Marcel-lès-Valence (26320). Elle propose trois chambres, une cuisine et une salle de bains.La maison est neuve.La maison est située dans un secteur attractif. Des écoles maternelles et élémentaires sont implantées à moins de 10 minutes à pied, tout comme deux crèches. Niveau transports, on trouve deux gares (Valence TGV Rhône-Alpes Sud et Valence) à moins de 10 minutes en voiture. On trouve un accès à la nationale N532 à 1 km. Il y a une bibliothèque, un tennis, quatre commerces, deux boulangeries et un bureau de poste à proximité.Elle est à vendre pour la somme de 277 212 €.Contactez Amandine MAGGIONI (tél : (Numéro supprimé)) pour toute question sur la maison.
Saint-Marcel-lès-Valence
TERRAINMaiosns France Confort, vous propose un terrain constructible sur la commune de Saint-Marcel-lès-Valence (26320) terrain de 441 m² viabilisé, PROCHE DE VALENCEÀ 6 km de Valence à Saint-Marcel-lès-Valence (26320). Réalisez y la maison de vos rêves. Il bénéficie d’une exposition sud. Dans un quartier attractif, ce terrain constructible, idéalement situé est proche des écoles et des commerces. Contactez Amandine MAGGIONI votre chargée de projet Maisons France Confort au (Numéro supprimé)
Saint-Marcel-lès-Valence
TERRAIN ET MAISONVENTE : maison T4 (73 m²) à Saint-Marcel-lès-ValenceIDÉALEMENT SITUÉE – MAISON 4 PIÈCES NEUVEÀ quelques kilomètres de Valence, votre agence Maisons France Confort Montélimar est heureuse de vous proposer cette maison de 4 pièces de plain-pied de 73 m² et de 441 m² de terrain en vente, idéalement située dans Saint-Marcel-lès-Valence (26320). Elle propose trois chambres, une cuisine et une salle de bains.La maison est neuve.La maison est située dans un secteur attractif. Des écoles maternelles et élémentaires sont implantées à moins de 10 minutes à pied, tout comme deux crèches. Niveau transports, on trouve deux gares (Valence TGV Rhône-Alpes Sud et Valence) à moins de 10 minutes en voiture. On trouve un accès à la nationale N532 à 1 km. Il y a une bibliothèque, un tennis, quatre commerces, deux boulangeries et un bureau de poste à proximité.Elle est à vendre pour la somme de 277 212 €.Contactez Amandine MAGGIONI (tél : (Numéro supprimé)) pour toute question sur la maison.
Saint-Marcel-lès-Valence
TERRAIN ET MAISONL’agence Immo Sud-Est vous propose en exclusivité cette maison neuve de 113 m² habitables sur terrain privatif de 508 m² réalisée par un constructeur et conforme à la réglementation énergétique RE2020.La maison est implantée dans un quartier calme proche des grands axes. Cette localisation offre un cadre de vie recherché, à la fois paisible et fonctionnel.Une opportunité rare d’acquérir un bien moderne, performant et sécurisé, avec frais de notaire réduits et une livraison prévue fin 2026.Le rez-de-chaussée se compose d’une grande pièce de vie avec cuisine ouverte, une suite parentale avec salle d’eau et un wc séparé.A l’étage, 3 chambres, une salle de bain, un wc.Plancher chauffant / rafraîchissant pompe à chaleur.Important : la vérification du financement est obligatoire auprès de notre service avant toute validation du dossier ou réservation du lot.Pour toute information complémentaires veuillez contacter David ROBIN au (Numéro supprimé) / RSAC : 443 955 364 ou Audrey CANTIN au (Numéro supprimé) / RSAC : 851 896 506.Les informations sur les risques auxquels ce bien est exposé sont disponibles sur le site Géorisques : www.georisques.gouv.fr
Valence
TERRAINMaisons France Confort vous propose, un terrain constructible de 349 viabilisé. IDÉALEMENT SITUÉ, sur la commune de VALENCE (26000), Il bénéficie d »une exposition sud. Dans un secteur recherché, la parcelle constructible est proche des commerces et des écoles. Pourquoi choisir Maisons France Confort ?Le savoir-faire et la solidité du leader national,Une maison 100 % personnalisable, adaptée à vos envies et votre budget,Des garanties CCMI pour construire en toute sérénité,Un accompagnement humain, local et sur mesure. Contactez Amandine Maggioni, votre conseillère Maisons France Confort, et donnez vie à votre projet dès aujourd’hui au (Numéro supprimé)
Valence
TERRAIN ET MAISONProjet de Construction, maison neuve sur la commune de VALENCE (26000), sur une parcelle constructible de 349 m2 viabilisé, Maisons France Confort vous propose une maison de plain pied, avec ses 70 m² de surface habitable, cette maison est idéale pour un premier achat, un investissement ou pour des retraités souhaitant un logement adapté à leur mode de vie. Pensée pour s’adapter à votre mode de vie, la maison allie performance énergétique, qualité des matériaux et possibilités de personnalisation. Pourquoi choisir Maisons France Confort ?Le savoir-faire et la solidité du leader national,Une maison 100 % personnalisable, adaptée à vos envies et votre budget,Des garanties CCMI pour construire en toute sérénité,Un accompagnement humain, local et sur mesure. Contactez Amandine Maggioni, votre conseillère Maisons France Confort, et donnez vie à votre projet dès aujourd’hui au (Numéro supprimé)
Valence
TERRAIN ET MAISONProjet de construction Maisons France Confort sur la commune de VALENCE (26000)Fonctionnelle, chaleureuse et pleine de lumière, cette maison de plain-pied de 70 m² en L a été pensée pour conjuguer confort au quotidien et esthétisme intemporel. Le coeur de la maison bat dans un vaste séjour traversant de près de 43 m², baigné de lumière naturelle grâce à de grandes baies vitrées. Côté nuit, la maison propose 2 chambres confortables, un garage intégré complète la maison. Construite avec des matériaux performants, cette maison offre un excellent confort thermique et des économies d’énergie appréciable. Elle est entièrement personnalisable pour s’adapter à votre mode de vie. Contactez Amandine Maggioni, votre conseillère Maisons France Confort, et donnez vie à votre projet dès aujourd’hui au (Numéro supprimé)
Valence
TERRAIN ET MAISONDevenez propriétaire à VALENCE – Maison 83 m² + Terrain – 257658 €Maisons France Confort – vous propose, dans un nouveau lotissement, à proximité immédiate des commerces, écoles , la construction d’une maison moderne de 83 m² parfaitement pensée pour les primo-accédants. Atouts de votre projet :Maison neuve, moderne et économe en énergieEspaces fonctionnels et lumineuxTerrain idéalement situé, proche des écoles, commerces et servicesAccession facilitée grâce au PTZ (Prêt à Taux Zéro)Prix clé en main : 257658 € (terrain + maison)Avec Maisons France Confort, vous bénéficiez de l’expérience du constructeur N°1 en France ainsi que de toutes les garanties du contrat CCMI pour construire en toute sérénité. Contact : Amandine Maggioni (Numéro supprimé)
L’actualité immobilière à Valence
27/11/2023
02/11/2023
30/10/2023
20/10/2023
16/10/2023
16/10/2023