Maison à construire à Ballancourt-sur-Essonne (91610)
Images
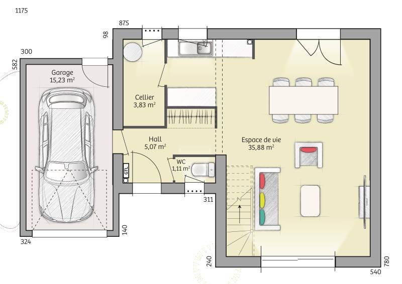
Description
Maison 3 chambres à Ballancourt-sur-Essonne (91610), à moins d'une heure de PARIS, dès 293 000 €
Saisissez cette belle opportunité de construction à Ballancourt-sur-Essonne, sur une parcelle à bâtir de 455 m², longue de plus de 36 mètres !
Faites confiance aux Maisons Balency d'Ormoy pour vous réaliser une maison moderne de 90 m² qui sera idéalement située.
Ballancourt offre un cadre de vie agréable avec de nombreuses commodités à proximité : écoles, commerces, collège Montaigne et supermarchés accessibles en quelques minutes. La gare RER D de Ballancourt permet de rejoindre Paris en moins d'une heure, et plusieurs axes routiers facilitent les déplacements vers Évry ou Arpajon.
Avec Maisons Balency, du Groupe Hexaôm, 1er constructeur de maisons individuelles en France, réalisez votre projet sur mesure ou personnalisez l'un de nos modèles issus de notre large catalogue. Toutes nos constructions sont conformes à la réglementation environnementale RE2020, garantissant confort, performance énergétique et respect de l'environnement.
Appelez-nous sans plus attendre au (Numéro supprimé) afin de débuter votre projet, de la recherche foncière à la remise des clés !
Maisons BALENCY - Agence d'Ormoy
23 chemin de Tournenfils - 91540 Ormoy
Annonce proposée par un Agent Commercial Partenaire.
Logement susceptibles de vous intéresser
Nous vous proposons de découvrir aussi cette sélection de logements situés à moins de 10km de Ballancourt-sur-Essonne et qui seraient susceptibles de vous intéresser.
Leudeville
TERRAINEric Mouthon Conseiller Commercial (Numéro supprimé) Étude gratuite et personnalisée sur rendez-vous.Terrain constructible de 394 m² clos de murs en pierre sur 3 côtés. Façade sur rue 15,15 mètres, profondeur 26 mètres.
Leudeville
TERRAIN ET MAISONEric Mouthon Conseiller Commercial (Numéro supprimé) Étude gratuite et personnalisée sur rendez-vous.Agencement Flexible :4 chambres lumineuses et des plans entièrement personnalisables pour un espace de vie qui vous ressemble. Performance RE 2020 : Une solution thermique et acoustique de pointe, garantissant un confort d’été supérieur (idéal contre la chaleur) et des économies d’énergie. Plancher Chauffant pour une chaleur douce et uniforme, sans radiateur encombrant. Volets Roulants (VR) motorisés et centralisé. Saisissez cette opportunité de bâtir une maison intelligente, éco-performante et sur mesure, dans un environnement paisible.
Le Coudray-Montceaux
TERRAINPROCHE Coudray-Montceaux (91830) pour 159 000 € !Faites confiance aux MAISONS BALENCY D’ORMOY pour vous construire votre future maison sur un beau lot avant de 450 m² !Les Maisons Balency d’Ormoy (constructeur du Groupe Hexaôm, n°1 de la maison individuelle en France) vous proposent un terrain à bâtir de 450 m², au prix de 159 000 €. Ce terrain plat, idéalement situé dans un environnement résidentiel calme, offre une belle opportunité pour construire votre future maison RE2020, pensée pour le confort, la performance énergétique et le respect de l’environnement.Vous trouverez à deux pas l’école maternelle et primaire « Jean de La Fontaine », la mairie et une médiathèque municipale. Le supermarché Carrefour Market de Boissise-le-Roi est accessible en moins de 6 minutes. Pour vos déplacements vers Paris ou Melun, la gare de Ponthierry-Pringy (ligne R – Transilien) se situe à 7 minutes, avec un accès direct à la gare de Lyon en 35 minutes.Que vous soyez un jeune couple, une famille en pleine expansion ou à la recherche d’un cadre serein pour vos années paisibles, ce terrain est une base idéale pour une maison moderne, performante et personnalisée.Appelez-nous sans plus attendre au (Numéro supprimé) afin de concrétiser votre projet de construction dans les meilleures conditions ! Maisons Balency – Agence d’Ormoy, 23 chemin de Tournenfils, 91540 Ormoy.Annonce proposée par un Agent Commercial Partenaire.
Saint-Vrain
TERRAIN🏡 Vaste Terrain Constructible de 731 m² situé à Saint-Vrain, en Essonne (91770), et proposé au prix de 145 000 € !Proche RER CIdéalement situé à seulement 8 minutes à pied de la mairie, ce terrain profond de 40 mètres vous offre un cadre de vie paisible dans la charmante commune de Saint-Vrain, en Île-de-France. Vous bénéficierez de toutes les commodités à proximité : un grand supermarché à moins de 10 minutes, plusieurs écoles, commerces et la gare RER C de Bouray-Lardy également accessibles en 9 minutes maximum 🚆🛍️.Chez Maisons Balency Ormoy, nous concevons des maisons sur-mesure, conformes aux dernières normes RE2020 🌱. Nous pouvons aussi personnaliser nos modèles existants selon vos envies. Contactez-nous au (Numéro supprimé) pour une recherche foncière gratuite et lancez votre projet de construction dans des conditions idéales ! 🏠✨Annonce proposée par un Agent Commercial Partenaire.
Saint-Vrain
TERRAIN ET MAISONSaint-Vrain, Île de France (91770), dès 285 600 € : Plain-Pied Contemporain en L de 90 m² constructible à proximité du RER C, sur un vaste terrain de 731 m² !Découvrez ce charmant modèle de maison respectant les normes RE2020 à construire au coeur de l’Essonne. Réalisable sur un terrain spacieux de 731 m², profond de 40 mètres et offrant une façade constructible de 14,63 mètres, ce bien saura répondre à toutes vos attentes.Situé à seulement 8 minutes à pied d’une école et à 10 minutes des commerces, ce pavillon est parfait pour une famille en quête de confort et de commodité. Les transports sont également facilités grâce à la gare de Bouray-Lardy, desservant le RER C, qui permet de rejoindre Paris en seulement 40 minutes. Que vous cherchiez à investir, à offrir un cadre de vie agréable à votre famille ou à profiter d’une retraite paisible, cette parcelle est faite pour vous.Dans notre agence d’Ormoy des Maisons Balency, spécifiquement, nous vous proposons des réalisations totalement sur-mesure, conceptualisées avec soin. Nous pouvons également adapter nos modèles existants pour répondre à vos besoins spécifiques. Que vous soyez un jeune couple, une famille nombreuse ou des jeunes retraités, nous nous adaptons à tous les profils pour créer la maison de vos rêves.N’hésitez pas à nous contacter au (Numéro supprimé) pour lancer une recherche foncière gratuite et débuter votre projet de construction. Laissez-nous vous accompagner dans la réalisation de votre future demeure en Île de France !Annonce proposée par un Agent Commercial Partenaire.
Saint-Vrain
TERRAINVENTE d’un terrain de 390 m² à Saint-VrainPROCHE DE CRÉTEILÀ proximité de la station Bouray du RER C (30 min de Paris) à Saint-Vrain (91770), terrain de 390 m². Ce terrain est proche des écoles et des commerces. Il y a l’École Élémentaire Daniel Galland et l’École Maternelle Daniel Galland à moins de 10 minutes à pied. Côté transports en commun, on trouve le RER C et D ainsi que 11 gares à moins de 10 minutes en voiture. On trouve une bibliothèque, un tennis et une boulangerie à proximité du terrain.Ce terrain est proposé à l’achat pour 158 000 €. Prenez contact avec notre agence (Jerome RAOUX : (Numéro supprimé)) pour plus de renseignements sur le terrain, sur les démarches à suivre ou sur les modalités de vente.Annonce proposée par un Agent Commercial Partenaire.
Fontenay-le-Vicomte
TERRAINProche Fontenay-le-Vicomte : terrain de 400 m² en venteProche Fontenay-le-Vicomte (91540) au pied de la station Bouray (Paris à 30 min par le RER C), découvrez ce terrain de 400 m². Ce terrain est proche des écoles et des commerces. Il y a l’École Primaire École Publique à moins de 10 minutes à pied. Côté transports, on trouve deux lignes de RER (D et C) ainsi que 15 gares à moins de 10 minutes en voiture. Il y a deux commerces, un supermarché et une boulangerie à quelques minutes du terrain.Son prix de vente est de 158 000 €. N’hésitez pas à prendre contact avec notre agence (Jerome RAOUX : (Numéro supprimé)) pour toute information sur ce terrain, sur les démarches à suivre ou sur les modalités de vente. Maisons France Confort Nemours est là pour vous accompagner dans tous vos projets immobiliers.Annonce proposée par un Agent Commercial Partenaire.
Saint-Vrain
TERRAIN ET MAISONVENTE d’une maison T6 (89 m²) à Saint-VrainPROCHE DE CRÉTEIL – MAISON 6 PIÈCES NEUVEEn vente : au pied de la station Bouray (Paris à 30 min avec le RER C), à Saint-Vrain (91770), venez découvrir cette maison de 6 pièces de 89 m².Il s’agit d’une maison de 2 niveaux. Son intérieur se divise en quatre chambres, une cuisine et une salle de bains. La maison est neuve.Le terrain du bien est de 390 m².Il y a l’École Élémentaire Daniel Galland et l’École Maternelle Daniel Galland à moins de 10 minutes à pied. Niveau transports en commun, on trouve les lignes C et D du RER ainsi que 11 gares à moins de 10 minutes en voiture. On trouve une bibliothèque, un tennis et une boulangerie à quelques minutes à peine.Elle est à vendre pour la somme de 375 000 €.Contactez Jerome RAOUX (tél : (Numéro supprimé)) pour plus d’informations sur cette maison ou sur les modalités de vente. Donnez vie à vos projets immobiliers avec Maisons France Confort Nemours.Annonce proposée par un Agent Commercial Partenaire.
Saint-Vrain
TERRAIN ET MAISONVENTE : maison de 5 pièces (80 m²) à Saint-VrainMAISON 5 PIÈCES NEUVE – PROCHE DE CRÉTEILÀ quelques minutes de la station Bouray (Paris à 30 min avec le RER C), laissez vous charmer par cette maison de 5 pièces de plain-pied de 80 m² en vente à Saint-Vrain (91770). Conçue de plain-pied, elle est composée de trois chambres, d’une cuisine et d’une salle de bains.Le terrain du bien s’étend sur 390 m².Cette maison est neuve.On trouve l’École Élémentaire Daniel Galland et l’École Maternelle Daniel Galland à moins de 10 minutes à pied. Niveau transports, il y a deux lignes de RER (C et D) ainsi que 11 gares à moins de 10 minutes en voiture. Il y a une bibliothèque, un tennis et une boulangerie à quelques minutes du logement.Son prix de vente est de 360 000 €.Contactez Jerome RAOUX ((Numéro supprimé)) pour tout renseignement sur cette propriété, sur les démarches à suivre ou sur les modalités de vente.Annonce proposée par un Agent Commercial Partenaire.
L’actualité immobilière à Ballancourt-sur-Essonne
27/11/2023
02/11/2023
30/10/2023
20/10/2023
16/10/2023
16/10/2023