Images
Description
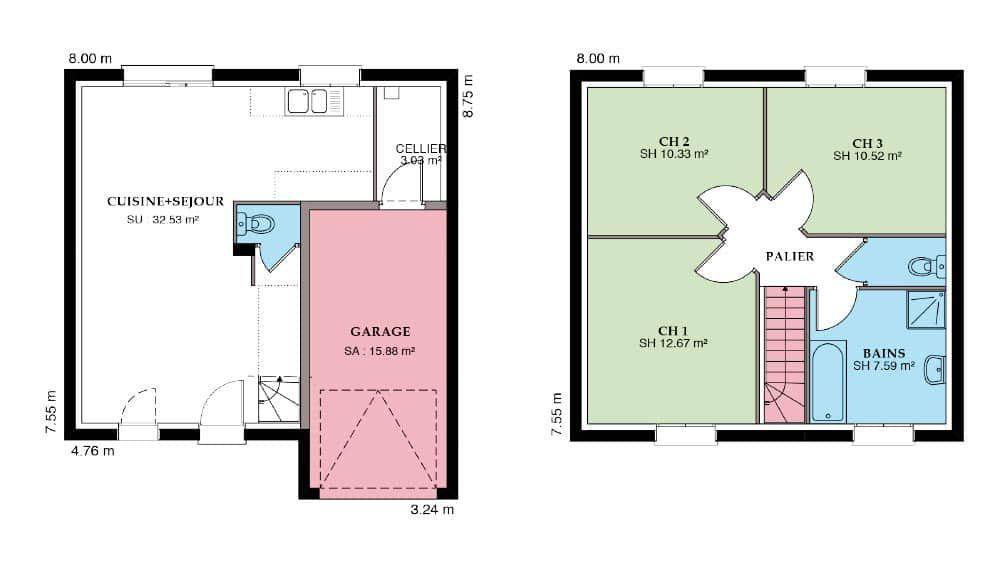
Sur ce terrain, nous vous proposons cette maison neuve baptisée Extenso, conçue par Babeau-Seguin, constructeur offrant le meilleur rapport qualité/prix du marché. Cette belle maison familiale à étage, d'une surface de 91 m², dispose de 3 chambres, d'un vaste séjour, d'une salle de bain, de 2 WC et d'un cellier, ainsi qu'un garage accolé.
Modèle au style urbain parfaitement adapté à ce terrain, cette maison vous offre tout le confort d’une grande maison dans un espace compact et parfaitement optimisé. Vous retrouverez dans cette maison neuve des caractéristiques modernes et pratiques telles que l'enduit bi-ton, la domotique et les volets roulants motorisés, qui sont parmi les options les plus demandées par nos clients.
L'Extenso est une maison basse consommation, conforme à la norme RE2020, garantissant des économies d'énergie significatives et un confort de vie optimal. Avec son plancher béton à l'étage, elle s'affiche au prix de nombreuses maisons de plain-pied, tout en offrant une qualité et une modernité incomparables.
Ne manquez pas cette opportunité unique de devenir propriétaire d'une maison neuve, confortable et économe en énergie, le tout à un prix cassé. Une exclusivité Maisons Babeau-Seguin.
Logement susceptibles de vous intéresser
Nous vous proposons de découvrir aussi cette sélection de logements situés à moins de 10km de Baulne et qui seraient susceptibles de vous intéresser.
Chevannes
TERRAINÀ vendre : Terrain à bâtir – Chevannes (91)Vous souhaitez construire votre maison dans un cadre paisible, verdoyant et familial ?Découvrez ce terrain à bâtir en lot arrière de 433 m², non viabilisé, situé sur la charmante commune de Chevannes, à proximité de Mennecy et d’Écharcon.👉 Les atouts du terrain :Surface : 433 m²Terrain en lot arrière, garantissant calme, intimité et tranquillitéTerrain non viabilisé (viabilisation à prévoir)Environnement résidentiel, verdoyant et recherchéÀ proximité des écoles, commerces et axes routiers principaux (A6, N104)Idéal pour primo-accédants, secundo-accédants ou investisseursCe terrain offre un cadre de vie privilégié, parfait pour un projet de maison sur mesure, dans une commune agréable du sud Essonne, alliant nature, sérénité et confort de vie.Faites confiance à Maisons Balency – Groupe Hexaôm, 1er constructeur de maisons individuelles en France, pour concrétiser votre projet.Nos maisons respectent la réglementation environnementale RE2020, gage de performance énergétique, confort et durabilité.📍 Contactez dès maintenant notre agence d’Ormoy :Maisons BALENCY – Agence d’Ormoy23 chemin de Tournenfils, 91540 Ormoy📞 (Numéro supprimé)(Terrains proposés par nos partenaires fonciers, sous réserve des disponibilités à la date de diffusion.)Annonce proposée par un Agent Commercial Partenaire.
Chevannes
TERRAIN ET MAISONChevannes : maison de 6 pièces (89 m²) en venteIDÉALEMENT SITUÉE – MAISON 6 PIÈCES NEUVEÀ quelques minutes de la station Corbeil-Essonnes (Paris à 40 min par le RER D), laissez vous charmer par cette maison de 6 pièces de 89 m² en vente idéalement située dans Chevannes (91750).Cette maison comporte 2 niveaux. Son intérieur propose quatre chambres, une cuisine et une salle de bains. Cette maison est neuve.Le terrain de la propriété s’étend sur 433 m².La maison est située dans un secteur prisé. L’École Élémentaire le Centre et l’École Maternelle de la Plaine sont implantées à moins de 10 minutes à pied. Côté transports, il y a la ligne de RER D (Mennecy) ainsi que 13 gares à moins de 10 minutes en voiture. On trouve une bibliothèque, un tennis, une boucherie-charcuterie et une épicerie dans les environs.Elle est à vendre pour la somme de 284 864 €.Contactez notre agence au (Numéro supprimé) pour toute question sur la maison.Annonce proposée par un Agent Commercial Partenaire.
Chevannes
TERRAIN ET MAISONVENTE d’une maison de 5 pièces (89 m²) à ChevannesIDÉALEMENT SITUÉE – MAISON 5 PIÈCES NEUVEÀ deux pas de la station Corbeil-Essonnes du RER D (40 min de Paris), venez découvrir cette maison de 5 pièces de 89 m² et de 433 m² de terrain idéalement située dans Chevannes (91750). Son intérieur dispose de trois chambres, d’une cuisine et de deux salles de bains.C’est une maison de 2 niveaux. Elle est neuve.La maison est située dans un secteur prisé. L’École Élémentaire le Centre et l’École Maternelle de la Plaine sont implantées à moins de 10 minutes à pied. Côté transports, il y a la ligne de RER D (Mennecy) ainsi que 13 gares à moins de 10 minutes en voiture. On trouve une bibliothèque, un tennis, une épicerie et une boucherie-charcuterie à proximité.Son prix de vente est de 288 864 €.Prenez contact avec notre agence au (Numéro supprimé) pour toute question sur la maison, sur les modalités de vente ou sur les démarches à suivre. Donnez vie à vos projets immobiliers avec Maisons Balency Ormoy.Annonce proposée par un Agent Commercial Partenaire.
Mennecy
TERRAINÀ vendre : Terrain à bâtir – Proche Mennecy (91)Vous souhaitez construire votre maison dans un cadre paisible, verdoyant et familial ?Découvrez ce terrain à bâtir en lot arrière de 433 m², non viabilisé, situé sur la charmante commune de Chevannes, à proximité de Mennecy et d’Écharcon.👉 Les atouts du terrain :Surface : 433 m²Terrain en lot arrière, garantissant calme, intimité et tranquillitéTerrain non viabilisé (viabilisation à prévoir)Environnement résidentiel, verdoyant et recherchéÀ proximité des écoles, commerces et axes routiers principaux (A6, N104)Idéal pour primo-accédants, secundo-accédants ou investisseursCe terrain offre un cadre de vie privilégié, parfait pour un projet de maison sur mesure, dans une commune agréable du sud Essonne, alliant nature, sérénité et confort de vie.Faites confiance à Maisons Balency – Groupe Hexaôm, 1er constructeur de maisons individuelles en France, pour concrétiser votre projet.Nos maisons respectent la réglementation environnementale RE2020, gage de performance énergétique, confort et durabilité.📍 Contactez dès maintenant notre agence d’Ormoy :Maisons BALENCY – Agence d’Ormoy23 chemin de Tournenfils, 91540 Ormoy📞 (Numéro supprimé)(Terrains proposés par nos partenaires fonciers, sous réserve des disponibilités à la date de diffusion.)Annonce proposée par un Agent Commercial Partenaire.
Mennecy
TERRAIN ET MAISONVENTE d’une maison T5 (89 m²) à ChevannesIDÉALEMENT SITUÉE – MAISON 5 PIÈCES NEUVEEn vente : à deux pas de la station Corbeil-Essonnes (Paris à 40 min par le RER D), Maisons Balency Ormoy vous propose cette maison de 5 pièces de 89 m² et de 433 m² de terrain idéalement située dans Chevannes (91750).Cette maison possède 2 niveaux. Elle est composée de trois chambres, d’une cuisine et de deux salles de bains. La maison est neuve.Cette maison se trouve dans un quartier convoité. L’École Élémentaire le Centre et l’École Maternelle de la Plaine sont implantées à moins de 10 minutes à pied. Niveau transports en commun, on trouve la ligne de RER D (Mennecy) ainsi que 13 gares à moins de 10 minutes en voiture. Il y a une bibliothèque, un tennis, une boucherie-charcuterie et une épicerie dans les environs.Son prix de vente est de 288 864 €.Contactez notre agence au (Numéro supprimé) pour toute question sur la propriété.Annonce proposée par un Agent Commercial Partenaire.
Mennecy
TERRAIN ET MAISONMaison de 6 pièces (89 m²) en vente à ChevannesIDÉALEMENT SITUÉE – MAISON 6 PIÈCES NEUVEEn vente : proche de la station Corbeil-Essonnes (Paris à 40 min avec le RER D), nous vous proposons cette maison de 6 pièces de 89 m² idéalement située dans Chevannes (91750).Il s’agit d’une maison de 2 niveaux. Elle offre quatre chambres, une cuisine et une salle de bains. Cette maison est neuve.Le terrain de la propriété est de 433 m².La propriété est située dans un secteur prisé. On trouve l’École Élémentaire le Centre et l’École Maternelle de la Plaine à moins de 10 minutes à pied. Côté transports, il y a la ligne de RER D (Mennecy) ainsi que 13 gares à moins de 10 minutes en voiture. Il y a une bibliothèque, un tennis, une épicerie et une boucherie-charcuterie à quelques minutes.Elle est à vendre pour la somme de 284 864 €.Contactez nous au (Numéro supprimé) pour toute question sur la maison.Annonce proposée par un Agent Commercial Partenaire.
Ballancourt-sur-Essonne
TERRAINPrix : 175000 €.Sur ce terrain de 707 m² à BALLANCOURT-SUR-ESSONNE, Maisons Clairval vous propose de réaliser votre projet de construction de maison individuelle.Maisons Clairval propose de construire votre maison neuve avec toutes les prestations suivantes :- Plan sur-mesure et personnalisé de 2 à 6 chambres- Mode de chauffage au choix- Grands choix d'équipements et de prestations- Matériaux de qualité selon les normes en vigueur- Accompagnement dans le choix et l’acquisition du terrain- Construction conforme à la nouvelle RE 2020Demandez une étude gratuite et personnalisée de votre projet de construction sur ce terrain !Contactez Nicolas REBOUL au (Numéro supprimé) ou au (Numéro supprimé) (Maisons Clairval – Agence de Villemoisson).Prix hors frais de notaire. Terrain sélectionné et vu pour vous sous réserve de disponibilité et au prix indiqué par notre partenaire foncier. Conditions et visuels non contractuels.Cette annonce a été créée et diffusée avec le logiciel VITAHOME.
Champcueil
TERRAINAu cOEur de la ville de Champcueil, À PROXIMITÉ DE TOUTES LES COMMODITÉSPrix : 149000 €.Sur ce terrain de 401 m² à CHAMPCUEIL, Maisons Clairval vous propose de réaliser votre projet de construction de maison individuelle.Maisons Clairval propose de construire votre maison neuve avec toutes les prestations suivantes :- Plan sur-mesure et personnalisé de 2 à 6 chambres- Mode de chauffage au choix- Grands choix d'équipements et de prestations- Matériaux de qualité selon les normes en vigueur- Accompagnement dans le choix et l’acquisition du terrain- Construction conforme à la nouvelle RE 2020Demandez une étude gratuite et personnalisée de votre projet de construction sur ce terrain !Contactez Nicolas REBOUL au (Numéro supprimé) ou au (Numéro supprimé) (Maisons Clairval – Agence de Villemoisson).Prix hors frais de notaire. Terrain sélectionné et vu pour vous sous réserve de disponibilité et au prix indiqué par notre partenaire foncier. Conditions et visuels non contractuels.Cette annonce a été créée et diffusée avec le logiciel VITAHOME.
La Ferté-Alais
TERRAINproche de toute commodités, transports, axes routiersPrix : 125000 €.Sur ce terrain de 716 m² à LA FERTE-ALAIS, Maisons Clairval vous propose de réaliser votre projet de construction de maison individuelle.Maisons Clairval propose de construire votre maison neuve avec toutes les prestations suivantes :- Plan sur-mesure et personnalisé de 2 à 6 chambres- Mode de chauffage au choix- Grands choix d'équipements et de prestations- Matériaux de qualité selon les normes en vigueur- Accompagnement dans le choix et l’acquisition du terrain- Construction conforme à la nouvelle RE 2020Demandez une étude gratuite et personnalisée de votre projet de construction sur ce terrain !Contactez Nicolas REBOUL au (Numéro supprimé) ou au (Numéro supprimé) (Maisons Clairval – Agence de Villemoisson).Prix hors frais de notaire. Terrain sélectionné et vu pour vous sous réserve de disponibilité et au prix indiqué par notre partenaire foncier. Conditions et visuels non contractuels.Cette annonce a été créée et diffusée avec le logiciel VITAHOME.
L’actualité immobilière à Baulne
27/11/2023
02/11/2023
30/10/2023
20/10/2023
16/10/2023
16/10/2023