Maison à construire à Baulne (91590)
Images
Description
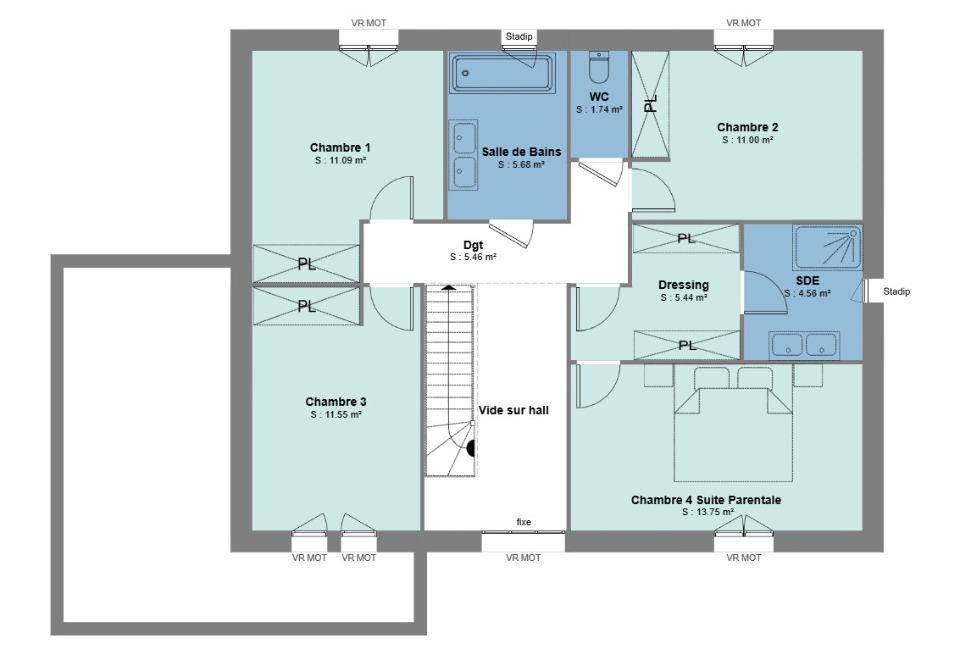
Baulne (91590) - Belle Maison en R+1 de 136 m² à bâtir sur un grand terrain viabilisé de 321 m² !
Découvrez ce projet de construction spécialement conceptualisé par les Maisons Balency d'Ormoy, et envisageable sur un déjà viabilisé idéalement situé, dès 380 000 € (terrain viabilisé + maison).
Proche des commodités, vous rejoindrez en quelques minutes le centre-ville de Baulne, les écoles, la pharmacie de la Place de l'Église, ainsi que le supermarché Intermarché de La Ferté-Alais. La gare RER D de La Ferté-Alais se trouve à environ cinq minutes, permettant de rejoindre Paris en moins d'une heure.
Cette habitation est personnalisable : nous réalisons des maisons sur mesure selon vos envies ou adaptons l'un de nos modèles existants, tout en garantissant une construction respectueuse des dernières normes RE2020 pour un confort optimal et une performance énergétique durable.
Maisons Balency fait partie du Groupe Hexaôm, 1er constructeur de maisons individuelles en France.
Maisons BALENCY - Agence d'Ormoy
23 chemin de Tournenfils - 91540 Ormoy
📞 (Numéro supprimé)
Annonce proposée par un Agent Commercial Partenaire.
Logement susceptibles de vous intéresser
Nous vous proposons de découvrir aussi cette sélection de logements situés à moins de 10km de Baulne et qui seraient susceptibles de vous intéresser.
Leudeville
TERRAINEric Mouthon Conseiller Commercial (Numéro supprimé) Étude gratuite et personnalisée sur rendez-vous.Terrain constructible de 394 m² clos de murs en pierre sur 3 côtés. Façade sur rue 15,15 mètres, profondeur 26 mètres.
Leudeville
TERRAIN ET MAISONEric Mouthon Conseiller Commercial (Numéro supprimé) Étude gratuite et personnalisée sur rendez-vous.Agencement Flexible :4 chambres lumineuses et des plans entièrement personnalisables pour un espace de vie qui vous ressemble. Performance RE 2020 : Une solution thermique et acoustique de pointe, garantissant un confort d’été supérieur (idéal contre la chaleur) et des économies d’énergie. Plancher Chauffant pour une chaleur douce et uniforme, sans radiateur encombrant. Volets Roulants (VR) motorisés et centralisé. Saisissez cette opportunité de bâtir une maison intelligente, éco-performante et sur mesure, dans un environnement paisible.
Saint-Vrain
TERRAIN🏡 Vaste Terrain Constructible de 731 m² situé à Saint-Vrain, en Essonne (91770), et proposé au prix de 145 000 € !Proche RER CIdéalement situé à seulement 8 minutes à pied de la mairie, ce terrain profond de 40 mètres vous offre un cadre de vie paisible dans la charmante commune de Saint-Vrain, en Île-de-France. Vous bénéficierez de toutes les commodités à proximité : un grand supermarché à moins de 10 minutes, plusieurs écoles, commerces et la gare RER C de Bouray-Lardy également accessibles en 9 minutes maximum 🚆🛍️.Chez Maisons Balency Ormoy, nous concevons des maisons sur-mesure, conformes aux dernières normes RE2020 🌱. Nous pouvons aussi personnaliser nos modèles existants selon vos envies. Contactez-nous au (Numéro supprimé) pour une recherche foncière gratuite et lancez votre projet de construction dans des conditions idéales ! 🏠✨Annonce proposée par un Agent Commercial Partenaire.
Saint-Vrain
TERRAIN ET MAISONSaint-Vrain, Île de France (91770), dès 285 600 € : Plain-Pied Contemporain en L de 90 m² constructible à proximité du RER C, sur un vaste terrain de 731 m² !Découvrez ce charmant modèle de maison respectant les normes RE2020 à construire au coeur de l’Essonne. Réalisable sur un terrain spacieux de 731 m², profond de 40 mètres et offrant une façade constructible de 14,63 mètres, ce bien saura répondre à toutes vos attentes.Situé à seulement 8 minutes à pied d’une école et à 10 minutes des commerces, ce pavillon est parfait pour une famille en quête de confort et de commodité. Les transports sont également facilités grâce à la gare de Bouray-Lardy, desservant le RER C, qui permet de rejoindre Paris en seulement 40 minutes. Que vous cherchiez à investir, à offrir un cadre de vie agréable à votre famille ou à profiter d’une retraite paisible, cette parcelle est faite pour vous.Dans notre agence d’Ormoy des Maisons Balency, spécifiquement, nous vous proposons des réalisations totalement sur-mesure, conceptualisées avec soin. Nous pouvons également adapter nos modèles existants pour répondre à vos besoins spécifiques. Que vous soyez un jeune couple, une famille nombreuse ou des jeunes retraités, nous nous adaptons à tous les profils pour créer la maison de vos rêves.N’hésitez pas à nous contacter au (Numéro supprimé) pour lancer une recherche foncière gratuite et débuter votre projet de construction. Laissez-nous vous accompagner dans la réalisation de votre future demeure en Île de France !Annonce proposée par un Agent Commercial Partenaire.
Vayres-sur-Essonne
TERRAINTerrain de 500 m² en vente à Vayres-sur-EssonnePROCHE D’ÉVRY-COURCOURONNESÀ Vayres-sur-Essonne (91820) à deux pas d’Évry-Courcouronnes, projetez la maison de vos rêves sur ce terrain de 500 m². Le terrain est proche des commerces et des écoles. Il y a l’École Maternelle Pierre Siriex à moins de 10 minutes à pied. Niveau transports en commun, on trouve la station de RER Boutigny-Sur-Essonne (ligne D) ainsi que la gare Boutigny-sur-Essonne à quelques pas du terrain. Il y a un tennis, des commerces, une boulangerie, un bureau de poste et une boucherie-charcuterie à quelques minutes.Il est à vendre pour la somme de 148 000 €. Prenez contact avec notre agence (RAOUX Jerome : (Numéro supprimé)) pour toute question sur ce terrain ou sur les démarches à suivre. Maisons France Confort Nemours vous accompagne dans tous vos projets immobiliers et dans toutes vos démarches.Annonce proposée par un Agent Commercial Partenaire.
Vayres-sur-Essonne
TERRAIN ET MAISONVENTE d’une maison de 6 pièces (89 m²) à Vayres-sur-EssonnePROCHE D’ÉVRY-COURCOURONNES – MAISON 6 PIÈCES NEUVEÀ vendre : à 23 km d’Évry-Courcouronnes, votre agence Maisons France Confort Nemours est ravie de vous proposer cette maison de 6 pièces de 89 m² et de 500 m² de terrain à Vayres-sur-Essonne (91820).Cette maison compte 2 niveaux. Son intérieur dispose de quatre chambres, d’une cuisine et d’une salle de bains. La maison est neuve.Il y a l’École Maternelle Pierre Siriex à moins de 10 minutes à pied. Côté transports en commun, on trouve la station de RER Boutigny-Sur-Essonne (ligne D) ainsi que la gare Boutigny-sur-Essonne dans les environs. Il y a un tennis, des commerces, une boulangerie, une boucherie-charcuterie et un bureau de poste à proximité.Elle est proposée à l’achat pour 360 000 €.N’hésitez pas à prendre contact avec notre agence (Jerome RAOUX : (Numéro supprimé)) pour obtenir de plus amples informations sur cette maison, sur les démarches à suivre ou sur les modalités de vente. Maisons France Confort Nemours est là pour vous accompagner à toutes les étapes de l’achat.Annonce proposée par un Agent Commercial Partenaire.
Vayres-sur-Essonne
TERRAIN ET MAISONVENTE d’une maison de 5 pièces (100 m²) à Vayres-sur-EssonneMAISON 5 PIÈCES NEUVE – PROCHE D’ÉVRY-COURCOURONNESÀ vendre : à quelques kilomètres d’Évry-Courcouronnes, nous vous présentons cette maison de 5 pièces de 100 m² à Vayres-sur-Essonne (91820).C’est une maison de 2 niveaux. Son intérieur comporte trois chambres, une cuisine et une salle de bains. La maison est neuve.Le terrain du bien est de 500 m².On trouve l’École Maternelle Pierre Siriex à moins de 10 minutes à pied. Côté transports en commun, il y a la station de RER Boutigny-Sur-Essonne (ligne D) ainsi que la gare Boutigny-sur-Essonne juste à côté. On trouve un tennis, des commerces, une boulangerie, un bureau de poste et une boucherie-charcuterie dans les environs.Elle est à vendre pour la somme de 380 000 €.Contactez Jerome RAOUX ((Numéro supprimé)) pour toute information sur ce bien ou sur les modalités de vente.Annonce proposée par un Agent Commercial Partenaire.
Saint-Vrain
TERRAINVENTE d’un terrain de 390 m² à Saint-VrainPROCHE DE CRÉTEILÀ proximité de la station Bouray du RER C (30 min de Paris) à Saint-Vrain (91770), terrain de 390 m². Ce terrain est proche des écoles et des commerces. Il y a l’École Élémentaire Daniel Galland et l’École Maternelle Daniel Galland à moins de 10 minutes à pied. Côté transports en commun, on trouve le RER C et D ainsi que 11 gares à moins de 10 minutes en voiture. On trouve une bibliothèque, un tennis et une boulangerie à proximité du terrain.Ce terrain est proposé à l’achat pour 158 000 €. Prenez contact avec notre agence (Jerome RAOUX : (Numéro supprimé)) pour plus de renseignements sur le terrain, sur les démarches à suivre ou sur les modalités de vente.Annonce proposée par un Agent Commercial Partenaire.
Fontenay-le-Vicomte
TERRAINProche Fontenay-le-Vicomte : terrain de 400 m² en venteProche Fontenay-le-Vicomte (91540) au pied de la station Bouray (Paris à 30 min par le RER C), découvrez ce terrain de 400 m². Ce terrain est proche des écoles et des commerces. Il y a l’École Primaire École Publique à moins de 10 minutes à pied. Côté transports, on trouve deux lignes de RER (D et C) ainsi que 15 gares à moins de 10 minutes en voiture. Il y a deux commerces, un supermarché et une boulangerie à quelques minutes du terrain.Son prix de vente est de 158 000 €. N’hésitez pas à prendre contact avec notre agence (Jerome RAOUX : (Numéro supprimé)) pour toute information sur ce terrain, sur les démarches à suivre ou sur les modalités de vente. Maisons France Confort Nemours est là pour vous accompagner dans tous vos projets immobiliers.Annonce proposée par un Agent Commercial Partenaire.
L’actualité immobilière à Baulne
27/11/2023
02/11/2023
30/10/2023
20/10/2023
16/10/2023
16/10/2023