Maison à construire à Boullay-les-Troux (91470)
Images
Description
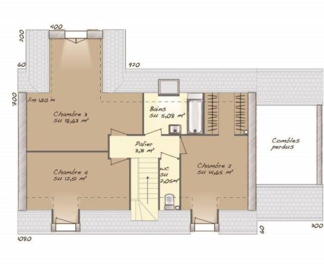
Maison F6 (114 m²) à vendre à Boullay-les-Troux
IDÉALEMENT SITUÉE - MAISON 6 PIÈCES NEUVE
À vendre : à côté du RER B (station Saint-Rémy-lès-Chevreuse, 35 min de Paris), nous vous proposons cette maison de 6 pièces de 114 m² et de 565 m² de terrain avec vue sur jardin idéalement située dans Boullay-les-Troux (91470). Son intérieur comporte quatre chambres, une cuisine et deux salles de bains.
Il s'agit d'une maison de 2 niveaux. Elle est neuve.
Cette maison se situe dans un secteur attractif. L'École Primaire Jean-Theodore Lepeintre est implantée à moins de 10 minutes à pied. Niveau transports, il y a la ligne de RER B (Saint-Rémy-Lès-Chevreuse) à moins de 10 minutes en voiture. On trouve une bibliothèque à proximité.
Elle est proposée à l'achat pour 467 000 €.
Contactez notre agence (DUTEURTRE Thibault : (Numéro supprimé)) pour toute information sur la maison.
Annonce proposée par un Agent Commercial Partenaire.
Logement susceptibles de vous intéresser
Nous vous proposons de découvrir aussi cette sélection de logements situés à moins de 10km de Boullay-les-Troux et qui seraient susceptibles de vous intéresser.
Vaugrigneuse
TERRAIN ET MAISONVivez le confort et la simplicité dans un cadre privilégié à Vaugrigneuse, avec un terrain de 529 m² sur lequel peut s’élever votre future Natirena, maison ossature bois de plain-pied pensée pour optimiser l’espace.Le charme de la Natirena réside dans son plan plus long que large, idéal pour ce type de parcelle. Son grand espace de vie ouvert central distribue naturellement les chambres, la salle de bains, les WC, le cellier et le garage. Les grandes ouvertures captent la lumière et ouvrent la maison sur l’extérieur, offrant un cadre de vie agréable tout au long de la journée.La maison est équipée d’une pompe à chaleur et d’un plancher chauffant, pour un confort thermique optimal et des économies d’énergie. La disposition fonctionnelle et chaleureuse de la Natirena en fait un lieu où chaque membre de la famille trouve son espace et son intimité.👉 Le prix comprend le terrain (159 000 €) et la construction de la maison sur vide sanitaire (hors frais de notaire, VRD et aménagements extérieurs). Terrain sous réserve de disponibilité auprès de notre partenaire foncier.
Gometz-la-Ville
TERRAINGometz-la-Ville : terrain de 604 m² en ventePROCHE DE PARISGrand terrain à côté de la station Gif-sur-Yvette (Paris à 30 min par le RER B). De 604 m², ce terrain se situe dans Gometz-la-Ville (91400). Le terrain est proche des écoles et des commerces. Il y a l’École Primaire Jean Bertin à moins de 10 minutes à pied. Niveau transports, on trouve la ligne de RER B (Gif-Sur-Yvette) à moins de 10 minutes en voiture. On trouve un tennis, des commerces, une boulangerie, un supermarché et une épicerie à quelques minutes de la propriété.Son prix de vente est de 299 000 €. Contactez notre agence (AUGUSTINE Sabrina : (Numéro supprimé)) pour tout renseignement sur le terrain, sur les modalités de vente ou sur les démarches à suivre. Maisons France Confort Ris-Orangis est là pour vous accompagner dans tous vos projets immobiliers.
Gometz-la-Ville
TERRAIN ET MAISONVENTE d’une maison de 7 pièces (120 m²) à Gometz-la-VillePROCHE DE PARIS – MAISON 7 PIÈCES NEUVEÀ proximité du RER B (station Gif-sur-Yvette, 30 min de Paris), notre agence Maisons France Confort Ris-Orangis est ravie de vous proposer en vente à Gometz-la-Ville (91400), cette maison de 7 pièces de 120 m² et de 604 m² de terrain.Cette maison comporte 2 niveaux. Son intérieur se divise en quatre chambres, une cuisine et deux salles de bains. Cette maison est neuve.L’École Primaire Jean Bertin est implantée à moins de 10 minutes à pied. Niveau transports en commun, on trouve la ligne de RER B (Gif-Sur-Yvette) à moins de 10 minutes en voiture. Il y a un tennis, des commerces, une boulangerie, un supermarché et une épicerie à quelques minutes.Son prix de vente est de 600 000 €.Prenez contact avec Sabrina AUGUSTINE ((Numéro supprimé)) pour toute question sur cette propriété ou sur les modalités de vente. Maisons France Confort Ris-Orangis est là pour vous accompagner à toutes les étapes de l’achat.
Gometz-la-Ville
TERRAIN ET MAISONVENTE : maison de 8 pièces (155 m²) à Gometz-la-VilleMAISON 8 PIÈCES NEUVE – PROCHE DE PARISEn vente : au pied du RER B (station Gif-sur-Yvette, 30 min de Paris), à Gometz-la-Ville (91400), nous sommes heureux de vous présenter cette maison de 8 pièces de 155 m² et de 604 m² de terrain. Son intérieur offre cinq chambres, une cuisine et deux salles de bains.Il s’agit d’une maison de 2 niveaux. Elle est neuve.Il y a l’École Primaire Jean Bertin à moins de 10 minutes à pied. Côté transports, on trouve la ligne de RER B (Gif-Sur-Yvette) à moins de 10 minutes en voiture. On trouve un tennis, des commerces, une boulangerie, un supermarché et une épicerie à quelques minutes du logement.Elle est à vendre pour la somme de 580 900 €.N’hésitez pas à prendre contact avec notre agence (AUGUSTINE Sabrina : (Numéro supprimé)) pour obtenir de plus amples informations sur la maison, sur les démarches à suivre ou sur les modalités de vente. Faites de vos projets immobiliers une réalité avec Maisons France Confort Ris-Orangis.
Gometz-la-Ville
TERRAIN ET MAISONGometz-la-Ville : maison de 6 pièces (115 m²) à vendreMAISON 6 PIÈCES NEUVE – PROCHE DE PARISEn vente : à deux pas de la station Gif-sur-Yvette du RER B (30 min de Paris), notre agence Maisons France Confort Ris-Orangis est ravie de vous présenter cette maison de 6 pièces de 115 m² à Gometz-la-Ville (91400).Cette maison possède 2 niveaux. Elle inclut quatre chambres, une cuisine et deux salles de bains. La maison est neuve.Le terrain du bien est de 604 m².Il y a l’École Primaire Jean Bertin à moins de 10 minutes à pied. Niveau transports en commun, on trouve la ligne de RER B (Gif-Sur-Yvette) à moins de 10 minutes en voiture. Il y a un tennis, des commerces, une boulangerie, un supermarché et une épicerie dans les environs.Elle est à vendre pour la somme de 580 900 €.Prenez contact avec Sabrina AUGUSTINE (tél : (Numéro supprimé)) pour plus de renseignements sur cette maison, sur les démarches à suivre ou sur les modalités de vente.
Gometz-la-Ville
TERRAIN ET MAISONVENTE : maison F6 (109 m²) à Gometz-la-VillePROCHE DE PARIS – MAISON 6 PIÈCES NEUVEÀ côté de la station Gif-sur-Yvette (Paris à 30 min par le RER B), votre agence Maisons France Confort Ris-Orangis est ravie de vous proposer en vente à Gometz-la-Ville (91400), cette maison de 6 pièces de 109 m² et de 604 m² de terrain. Elle dispose de quatre chambres, d’une cuisine et de deux salles de bains.Cette maison compte 2 niveaux. Elle est neuve.Il y a l’École Primaire Jean Bertin à moins de 10 minutes à pied. Niveau transports, on trouve la ligne de RER B (Gif-Sur-Yvette) à moins de 10 minutes en voiture. On trouve un tennis, des commerces, une boulangerie, un supermarché et une épicerie à quelques minutes à peine.Elle est à vendre pour la somme de 500 000 €.Prenez contact avec Sabrina AUGUSTINE (tél : (Numéro supprimé)) pour tout renseignement sur la maison, sur les démarches à suivre ou sur les modalités de vente.
Gometz-la-Ville
TERRAIN ET MAISONGometz-la-Ville : maison de 7 pièces (160 m²) à vendreMAISON 7 PIÈCES NEUVE – PROCHE DE PARISEn vente : au pied du RER B (station Gif-sur-Yvette, 30 min de Paris), Maisons France Confort Ris-Orangis vous propose cette maison de 7 pièces de 160 m² à Gometz-la-Ville (91400).C’est une maison de 2 niveaux. Elle propose cinq chambres, une cuisine et deux salles de bains. Cette maison est neuve.Le terrain du bien s’étend sur 604 m².L’École Primaire Jean Bertin se trouve à moins de 10 minutes à pied. Niveau transports, il y a la ligne de RER B (Gif-Sur-Yvette) à moins de 10 minutes en voiture. On trouve un tennis, des commerces, une boulangerie, un supermarché et une épicerie dans les environs.Il est à vendre pour la somme de 620 900 €.Contactez notre agence (Sabrina AUGUSTINE : (Numéro supprimé)) pour toute question sur cette maison, sur les démarches à suivre ou sur les modalités de vente. Maisons France Confort Ris-Orangis vous accompagne à toutes les étapes de l’achat et dans tous vos projets immobiliers.
Saint-Rémy-lès-Chevreuse
TERRAINTerrain de 450 m² à vendre à Saint-Rémy-lès-ChevreuseEMPLACEMENT PRIVILÉGIÉ – PROCHE DE PARISTerrain de 450 m² proche du RER Saint-Rémy-Lès-Chevreuse (ligne B). Ce terrain se situe bénéficiant d’un emplacement d’exception dans Saint-Rémy-lès-Chevreuse (78470). Dans un secteur recherché, ce terrain est proche des écoles et des commerces. Il y a l’École Maternelle Saint-Exupéry, l’École Élémentaire Jean Jaurès et l’École Élémentaire Jean Moulin à moins de 10 minutes à pied et une structure d’accueil pour la petite enfance. Côté transports en commun, on trouve la station de RER Saint-Rémy-Lès-Chevreuse (ligne B) juste à côté, positionnant Paris à 35 min de ce terrain en rer. On trouve un tennis, des commerces, trois boulangeries, un supermarché, deux épiceries et un bureau de poste dans les environs. Le marché Centre-Ville anime les environs.Il est à vendre pour la somme de 250 000 €. Contactez Charles ZAGDANSKI ((Numéro supprimé)) pour obtenir de plus amples renseignements sur le terrain. Maisons France Confort Jouars-Pontchartrain vous accompagne dans tous vos projets immobiliers et dans toutes vos démarches.
Saint-Rémy-lès-Chevreuse
TERRAIN ET MAISONSaint-Rémy-lès-Chevreuse : maison T6 (100 m²) à vendreEMPLACEMENT PRIVILÉGIÉ – MAISON 6 PIÈCES NEUVEEn vente : proche du RER B, Maisons France Confort Jouars-Pontchartrain vous présente cette maison de 6 pièces de 100 m² bénéficiant d’un emplacement privilégié dans Saint-Rémy-lès-Chevreuse (78470).C’est une maison de 2 niveaux. Elle se divise en quatre chambres, une cuisine et une salle de bains. Cette maison est neuve.Le terrain de la propriété s’étend sur 450 m².Cette maison est située dans un quartier convoité. On trouve l’École Maternelle Saint-Exupéry, l’École Élémentaire Jean Jaurès et l’École Élémentaire Jean Moulin à moins de 10 minutes à pied et une structure d’accueil pour la petite enfance. Niveau transports en commun, il y a la station de RER Saint-Rémy-Lès-Chevreuse (ligne B) dans les alentours, mettant la propriété à 35 min de Paris en rer. Il y a un tennis, des commerces, trois boulangeries, un supermarché, une boucherie-charcuterie et deux épiceries à quelques minutes de la maison. Enfin, le marché Centre-Ville anime le quartier.Elle est à vendre pour la somme de 450 000 €.N’hésitez pas à prendre contact avec notre agence (ZAGDANSKI Charles : (Numéro supprimé)) pour plus d’informations sur cette maison ou sur les démarches à suivre.
L’actualité immobilière à Boullay-les-Troux
27/11/2023
02/11/2023
30/10/2023
20/10/2023
16/10/2023
16/10/2023