Maison à construire à Boullay-les-Troux (91470)
Images
Description
Eric Mouthon Conseiller Commercial (Numéro supprimé) Étude gratuite et personnalisée sur rendez-vous.
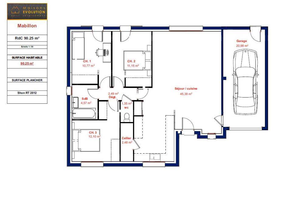
Maison RE 2020 de 90m².
Découvrez ce terrain de 450m² dans un village qui a su conserver son authenticité et sa tranquillité.
Cadre de Vie Idéal : Écoles sur place et environnement calme.
Agencement Flexible : 4 chambres lumineuses et des plans entièrement personnalisables pour un espace de vie qui vous ressemble. Performance RE 2020 : Une solution thermique et acoustique de pointe, garantissant un confort d'été supérieur (idéal contre la chaleur) et des économies d'énergie. Plancher Chauffant pour une chaleur douce et uniforme, sans radiateur encombrant. Volets Roulants (VR) motorisés et centralisé. Saisissez cette opportunité de bâtir une maison intelligente, éco-performante et sur mesure, dans un environnement paisible.
Logement susceptibles de vous intéresser
Nous vous proposons de découvrir aussi cette sélection de logements situés à moins de 10km de Boullay-les-Troux et qui seraient susceptibles de vous intéresser.
Boullay-les-Troux
TERRAINTerrain à bâtir de 645 m² entièrement viabilisé, Façade 20 ml, terrain, exposition idéale Est /Ouest en vente au Coeur de la vallée de ChevreuseA proximité de la gare (RER B, Saint-Rémy-lès-Chevreuse paris en 40mn) – Environnement d’exception entre Forets sentiers de randonnées et espaces boisés pour les amoureux de la nature tout en étant proche des commodités situées sur la commune de Boullay les Trous, Ecole Primaire sur place, collège et Lycées sur les communes de Limours et gif sur Yvette, Réalisez votre projet a très basse consommation en brique de terre cuite ou en bois sur ce sur ce terrain.Il est à vendre pour la somme de 230000 €. Prenez contact avec Jean Jacques PROCUREUR ((Numéro supprimé)) ou (Numéro supprimé) Maisons Balency Domexpo sud de la Ville du Bois pour tout renseignement sur le terrain et sur les modalités de vente.
Magny-les-Hameaux
TERRAINTerrain de 300 m² à vendre à Magny-les-HameauxEMPLACEMENT PRIVILÉGIÉ – VUE SANS VIS-À-VISÀ Magny-les-Hameaux (78114) à deux pas de la station Saint-Rémy-lès-Chevreuse du RER B (35 min de Paris), projetez la maison de vos rêves sur ce terrain de 300 m². Il profite d’une vue sans vis-à-vis. Dans un secteur recherché, le terrain bénéficiant d’un emplacement privilégié est proche des commerces et des écoles. Des établissements scolaires du primaire et du secondaire sont implantés à moins de 10 minutes en voiture, 68 crèches à moins de 10 minutes à pied, tout comme huit établissements du supérieur pour le supérieur. Niveau transports, il y a deux lignes de RER (B et C) ainsi que 14 gares à moins de 10 minutes en voiture. On trouve des tennis, des bibliothèques, des bassins de natation, un bowling, des supermarchés, des commerces, des boulangeries, des épiceries et des boucheries-charcuteries dans les environs. Enfin, 10 marchés animent le quartier.Son prix de vente est de 210 000 €. N’hésitez pas à prendre contact avec notre agence (ZAGDANSKI Charles : (Numéro supprimé)) pour obtenir de plus amples renseignements sur le terrain, sur les modalités de vente ou sur les démarches à suivre. Maisons France Confort Jouars-Pontchartrain vous accompagne à toutes les étapes de l’achat et dans tous vos projets immobiliers.
Saint-Rémy-lès-Chevreuse
TERRAIN ET MAISONA proximité de Saint Remy les Chevreuse sur la commune de Boullay les trous : Maison de 5 pièces (110 m² utiles et 92 m² Loi carrez) + Garage en venteEMPLACEMENT PRIVILÉGIÉ -Pour cette future réalisation neuveA proximité de la gare (RER B, Saint-Rémy-lès-Chevreuse paris en 40mn) – Environnement d’exception entre Forets sentiers de randonnées et espaces boisés pour les amoureux de la nature tout en étant proche des commodités situées sur la commune de Boullay les Trous, Ecole Primaire sur place, collège et Lycées sur les communes de Limours et gif sur Yvette, Réalisez votre projet a très basse consommation en brique de terre cuite ou en bois sur ce sur ce terrain.Coté prestations : Réalisation en Brique de terre cuite, Tuiles terre cuite 22 au m², Pompe a chaleur, Domotique, menuiseries en aluminium de couleur, carrelage grand format, Maison a très basse consommation énergétiqueElle est à vendre pour la somme de 385 039 €. Hors Frais de Notaire Prévoir env 16000 €N’hésitez pas à prendre contact avec notre agence (Jean Jacques PROCUREUR : (Numéro supprimé) ou (Numéro supprimé)) pour obtenir de plus amples informations sur le bien, sur les démarches à suivre ou sur les modalités de vente. Maisons Balency La Ville-du-Bois est là pour vous accompagner dans tous vos projets immobiliers.
Vaugrigneuse
TERRAIN ET MAISONVENTE d’une maison de 5 pièces (90 m²) à VaugrigneuseMAISON 5 PIÈCES NEUVE – PROCHE DE BOULOGNE-BILLANCOURTÀ quelques minutes du RER C (station Breuillet Village, 40 min de Paris), nous vous proposons à vendre à Vaugrigneuse (91640), cette maison de 5 pièces de 90 m². Elle compte trois chambres, une cuisine et une salle de bains.Le terrain du bien s’étend sur 220 m².C’est une maison de 2 niveaux. Elle est neuve.L’École Élémentaire les Pensées et l’École Maternelle Daniel Balavoine sont implantées à moins de 10 minutes à pied. Côté transports en commun, il y a la ligne de RER C (Breuillet-Village) ainsi que six gares à moins de 10 minutes en voiture. On trouve un tennis à proximité du logement.Elle est proposée à l’achat pour 330 000 €.Prenez contact avec Jerome RAOUX (tél : (Numéro supprimé)) pour toute question sur cette maison ou sur les modalités de vente. Maisons France Confort Nemours est là pour vous accompagner dans toutes vos démarches.Annonce proposée par un Agent Commercial Partenaire.
Voisins-le-Bretonneux
TERRAIN ET MAISONMaison de 6 pièces (100 m²) en vente à Voisins-le-BretonneuxMAISON 6 PIÈCES NEUVE – PROCHE DE PARISÀ côté de la gare de Saint-Quentin en Yvelines-Montigny-le-Bretonneux (Paris à 20 min par le Transilien N), à vendre à Voisins-le-Bretonneux (78960), laissez vous charmer par cette maison de 6 pièces de 100 m² et de 415 m² de terrain.Il s’agit d’une maison de 2 niveaux. Son intérieur compte quatre chambres, une cuisine et une salle de bains. La maison est neuve.Des écoles (de la maternelle au lycée) se trouvent à moins de 10 minutes à pied. Niveau transports, il y a les lignes de RER C et B ainsi que 16 gares à moins de 10 minutes en voiture. On trouve deux tennis, un bassin de natation, des commerces, deux supermarchés, quatre boulangeries, deux poissonneries et une épicerie dans les environs.Elle est à vendre pour la somme de 485 000 €.Prenez contact avec Charles ZAGDANSKI ((Numéro supprimé)) pour plus d’informations sur la maison, sur les démarches à suivre ou sur les modalités de vente. Maisons France Confort Jouars-Pontchartrain vous accompagne dans tous vos projets immobiliers et à toutes les étapes de l’achat.
Briis-sous-Forges
TERRAIN ET MAISONFranck DORSAINT – Tél. (Numéro supprimé) propose :À Briis-sous-Forges (91640), à proximité de la gare RER C Breuillet-Bruyères-le-Châtel (environ 40 minutes de Paris), découvrez une maison neuve de 6 pièces, idéale pour une famille.Elle offre environ 141 m² habitables sur deux niveaux, avec un séjour lumineux, une cuisine, cinq chambres et deux salles de bains. Le terrain d’environ 486 m² permet de profiter d’un jardin agréable, parfait pour les beaux jours.Les écoles (maternelle Les Lutins, élémentaire Les Bosquets, collège Jean Monnet) sont accessibles à pied en moins de 10 minutes. Vous profitez également des commerces de proximité, boulangeries, épiceries, bibliothèque, tennis et bureau de poste. Les lignes de RER C et B sont accessibles en quelques minutes en voiture.Prix de vente : 421 000 €Pour plus d’informations sur cette maison ou pour organiser un rendez-vous, contactez :Franck DORSAINT – (Numéro supprimé).
Voisins-le-Bretonneux
TERRAINVENTE : terrain de 415 m² à Voisins-le-BretonneuxPROCHE DE PARISÀ Voisins-le-Bretonneux (78960) proche de la gare de Saint-Quentin en Yvelines-Montigny-le-Bretonneux (Paris à 20 min avec le Transilien N), découvrez ce terrain de 415 m². Le terrain est proche des écoles et des commerces. Tous les types d’établissements scolaires sont implantés à moins de 10 minutes à pied. Niveau transports en commun, on trouve les lignes de RER C et B ainsi que 16 gares à moins de 10 minutes en voiture. Il y a deux tennis, un bassin de natation, des commerces, deux supermarchés, quatre boulangeries, une épicerie et un bureau de poste à quelques minutes.Son prix de vente est de 305 000 €. Contactez Charles ZAGDANSKI ((Numéro supprimé)) pour obtenir de plus amples renseignements sur ce terrain ou sur les modalités de vente. Concrétisez vos projets immobiliers avec Maisons France Confort Jouars-Pontchartrain.
Magny-les-Hameaux
TERRAIN ET MAISONVENTE d’une maison de 8 pièces (140 m²) à Magny-les-HameauxEMPLACEMENT PRIVILÉGIÉ – MAISON 8 PIÈCES NEUVEÀ quelques minutes de la station Saint-Rémy-lès-Chevreuse (Paris à 35 min par le RER B), nous vous proposons à vendre, bénéficiant d’un emplacement privilégié dans Magny-les-Hameaux (78114), cette maison de 8 pièces de 140 m².Il s’agit d’une maison de 2 niveaux. Elle propose cinq chambres, une cuisine et deux salles de bains. La maison est neuve.Le terrain du bien s’étend sur 300 m².Cette maison est située dans un secteur convoité. Tous les types d’établissements scolaires (maternelle, élémentaire et secondaire) sont implantés à moins de 10 minutes en voiture, 68 structures d’accueil pour la petite enfance à moins de 10 minutes à pied, tout comme huit établissements du supérieur pour le supérieur. Côté transports, on trouve deux lignes de RER (B et C) ainsi que 14 gares à moins de 10 minutes en voiture. Il y a des tennis, des bibliothèques, des bassins de natation, un bowling, des supermarchés, des commerces, des boulangeries, des boucheries-charcuteries et des épiceries à proximité. 10 marchés animent les environs.Elle est proposée à l’achat pour 445 000 €.Contactez notre agence (ZAGDANSKI Charles : (Numéro supprimé)) pour obtenir de plus amples renseignements sur la maison. Maisons France Confort Jouars-Pontchartrain vous accompagne dans tous vos projets immobiliers et à toutes les étapes de l’achat.
Boullay-les-Troux
TERRAIN ET MAISONVENTE d’une maison F5 contemporaine toit plat de Plain-pied 3 ou 4 chambres avec suite parentale (120 m² + Garage ) au Coeur de la vallée de Chevreuse à proximité de Saint Rémy sur la commune à Boullay-les-Troux, Réalisation a ossature Bois dans un cadre privilégié pour les amoureux de la nature et sensible à l’environnement en construisant une maison à ossature bois 60% moins impactant sur le changement climatique !!!A proximité de la gare (RER B, Saint-Rémy-lès-Chevreuse paris en 40mn) – Environnement d’exception entre Forets sentiers de randonnées et espaces boisés pour les amoureux de la nature tout en étant proche des commodités situées sur la commune de Boullay les Trous, Ecole Primaire sur place, collège et Lycées sur les communes de Limours et gif sur Yvette, Réalisez votre projet a très haute performance énergétique sobre et Bas-carbonne et préserver la BiodiversitéCoté maison : Réalisation à Ossature Bois avec une double isolation Intérieur/Extérieur, isolation thermique et acoustique, des performances exceptionnelles » 20 fois supérieur au béton! », tuiles en terre cuite, Menuiserie en Aluminium, Domotique, Pompe a chaleur couplée a un plancher chauffant, Délais de construction réduit d’environ 5 mois par rapport à une Maison en briques ou parpaings !Elle est à vendre pour la somme de 598 421€. hors frais de notaire ( prévoir env 20 000 €), hors frais annexes et décoration et aménagementsPrenez contact avec Jean Jacques PROCUREUR ((Numéro supprimé)) ou (Numéro supprimé) Maisons Balency Domexpo sud de la Ville du Bois pour tout renseignement sur le terrain et sur les modalités de vente.
L’actualité immobilière à Boullay-les-Troux
27/11/2023
02/11/2023
30/10/2023
20/10/2023
16/10/2023
16/10/2023