Maison à construire à Breuillet (91650)
Images
Description
Opportunité à saisir ! Projet de construction d'une maison d'exception BALENCY sur mesure
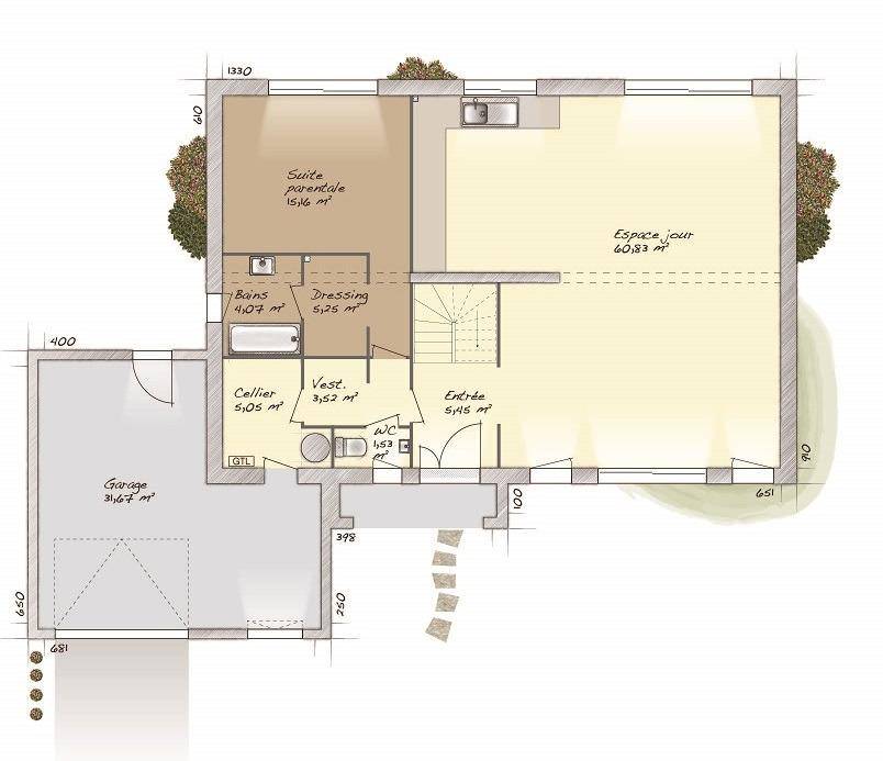
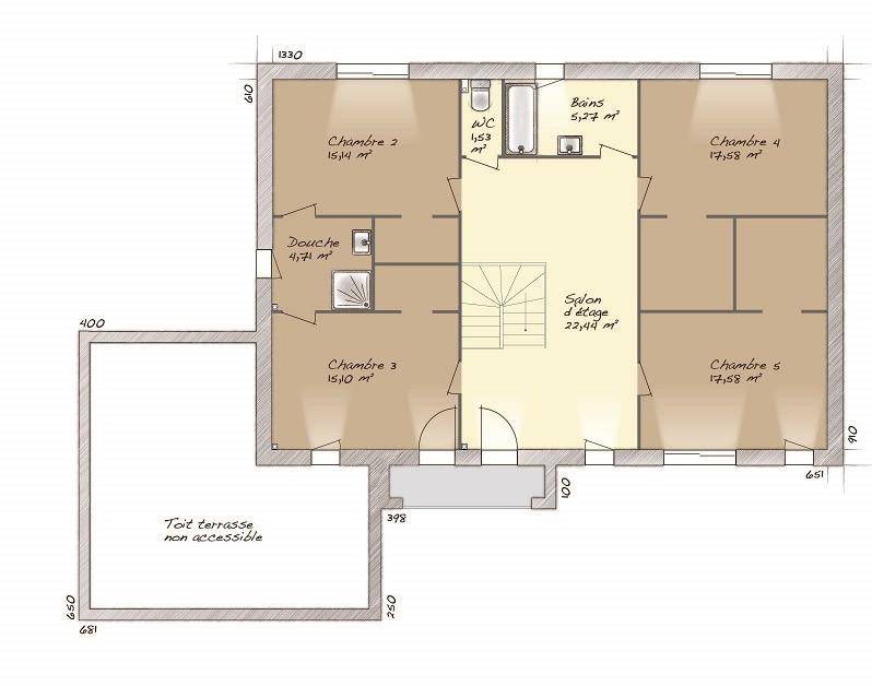
Dans un cadre privilégié, découvrez ce projet unique de construction d'une maison sur mesure, pensée pour allier élégance, confort et prestations haut de gamme. Sur un terrain de 1625 m², cette future propriété offrira une surface habitable de 200 m², conçue selon vos envies et vos exigences.
Caractéristiques principales :
- Architecture contemporaine ou classique selon vos préférences
- Matériaux nobles et finitions de qualité supérieure
- Grands volumes lumineux avec baies vitrées et hauteurs sous plafond
- Cuisine équipée haut de gamme ouverte sur un vaste espace de vie
- Suites parentales avec dressing et salle de bain privative
- Espaces personnalisables : bureau, salle de sport, home cinéma...
- Système de chauffage et climatisation gainable pour un confort thermique optimal et une intégration discrète digne d'un palace
- Domotique intégrée pour un confort optimal
- Jardin paysager avec possibilité de piscine, terrasse, pool house...
Localisation idéale :
Située dans un environnement calme et résidentiel, à proximité des commodités, écoles, transports et axes principaux, cette maison incarne le parfait équilibre entre tranquillité et vie active.
Un projet clé en main :
Accompagnement complet par des professionnels reconnus : architectes, artisans, décorateurs. Vous choisissez, nous réalisons.
Pour plus d'informations, merci de nous contacter au (Numéro supprimé)
Annonce proposée par un Agent Commercial Partenaire.
Logement susceptibles de vous intéresser
Nous vous proposons de découvrir aussi cette sélection de logements situés à moins de 10km de Breuillet et qui seraient susceptibles de vous intéresser.
Chamarande
TERRAINTerrain de 209 m² en vente à ChamarandeEMPLACEMENT PRIVILÉGIÉ – PROCHE D’ANTONYTerrain de 209 m² à proximité du RER C (station Lardy, 35 min de Paris). Ce terrain se situe bénéficiant d’un emplacement privilégié dans Chamarande (91730). Il est orienté au sud-ouest. Dans un quartier convoité, ce terrain est proche des commerces et des écoles. On trouve l’École Élémentaire École Publique à moins de 10 minutes à pied. Niveau transports, il y a la ligne de RER C (Chamarande) ainsi que 11 gares à moins de 10 minutes en voiture. On trouve une bibliothèque à quelques minutes.Il est à vendre pour la somme de 126 000 €. Contactez notre agence (RUBAL Alan : (Numéro supprimé)) pour toute question sur le terrain ou sur les modalités de vente.Annonce proposée par un Agent Commercial Partenaire.
Chamarande
TERRAIN ET MAISONChamarande : maison de 7 pièces (120 m²) en venteEMPLACEMENT PRIVILÉGIÉ – MAISON 7 PIÈCES NEUVEÀ quelques minutes du RER C (station Lardy, 35 min de Paris), ayez le coup de coeur pour en vente, bénéficiant d’un emplacement privilégié dans Chamarande (91730), cette maison de 7 pièces de 120 m².C’est une maison de 2 niveaux. Son intérieur est composé de cinq chambres, d’une cuisine et de deux salles de bains. Cette maison est neuve.Le terrain de la propriété s’étend sur 209 m².La propriété se trouve dans un secteur prisé. Il y a l’École Élémentaire École Publique à moins de 10 minutes à pied. Niveau transports, on trouve la ligne de RER C (Chamarande) ainsi que 11 gares à moins de 10 minutes en voiture. On trouve une bibliothèque dans les environs.Elle est à vendre pour la somme de 342 000 €.Contactez Alan RUBAL ((Numéro supprimé)) pour toute question sur la maison. Maisons France Confort Magny-le-Hongre vous accompagne dans toutes vos démarches et dans tous vos projets immobiliers.Annonce proposée par un Agent Commercial Partenaire.
Chamarande
TERRAIN ET MAISONVENTE d’une maison T5 (114 m²) à ChamarandeEMPLACEMENT PRIVILÉGIÉ – MAISON 5 PIÈCES NEUVEAu pied du RER C (station Lardy, 35 min de Paris), Maisons France Confort Magny-le-Hongre vous propose en vente, bénéficiant d’un emplacement d’exception dans Chamarande (91730), cette maison de 5 pièces de 114 m² et de 209 m² de terrain. Son intérieur se divise en quatre chambres, une cuisine et une salle de bains.Cette maison compte 2 niveaux. Elle est neuve.La maison se trouve dans un quartier convoité. L’École Élémentaire École Publique est implantée à moins de 10 minutes à pied. Niveau transports, il y a la ligne de RER C (Chamarande) ainsi que 11 gares à moins de 10 minutes en voiture. On trouve une bibliothèque dans les environs.Son prix de vente est de 331 200 €.Prenez contact avec notre agence (Alan RUBAL : (Numéro supprimé)) pour tout renseignement sur la maison, sur les démarches à suivre ou sur les modalités de vente. Maisons France Confort Magny-le-Hongre vous accompagne dans tous vos projets immobiliers et à toutes les étapes de l’achat.Annonce proposée par un Agent Commercial Partenaire.
Chamarande
TERRAIN ET MAISONVENTE : maison de 5 pièces (105 m²) à ChamarandeEMPLACEMENT PRIVILÉGIÉ – MAISON 5 PIÈCES NEUVEEn vente : à deux pas de la station Lardy du RER C (35 min de Paris), nous sommes ravis de vous présenter, bénéficiant d’un emplacement privilégié dans Chamarande (91730), cette maison de 5 pièces de plain-pied de 105 m² et de 209 m² de terrain. Elle est composée de quatre chambres, d’une cuisine et de deux salles de bains.Cette maison est neuve.Cette maison se trouve dans un quartier recherché. L’École Élémentaire École Publique est implantée à moins de 10 minutes à pied. Côté transports en commun, il y a la ligne de RER C (Chamarande) ainsi que 11 gares à moins de 10 minutes en voiture. On trouve une bibliothèque dans les environs.Elle est à vendre pour la somme de 315 000 €.Prenez contact avec notre agence (RUBAL Alan : (Numéro supprimé)) pour plus d’informations sur la maison. Donnez vie à vos projets immobiliers avec Maisons France Confort Magny-le-Hongre.Annonce proposée par un Agent Commercial Partenaire.
Arpajon
TERRAINPrix : 154000 €.Sur ce terrain de 298 m² à ARPAJON, Maisons Clairval vous propose de réaliser votre projet de construction de maison individuelle.Maisons Clairval propose de construire votre maison neuve avec toutes les prestations suivantes :- Plan sur-mesure et personnalisé de 2 à 6 chambres- Mode de chauffage au choix- Grands choix d'équipements et de prestations- Matériaux de qualité selon les normes en vigueur- Accompagnement dans le choix et l’acquisition du terrain- Construction conforme à la nouvelle RE 2020Demandez une étude gratuite et personnalisée de votre projet de construction sur ce terrain !Contactez Nicolas REBOUL au (Numéro supprimé) ou au (Numéro supprimé) (Maisons Clairval – Agence de Villemoisson).Prix hors frais de notaire. Terrain sélectionné et vu pour vous sous réserve de disponibilité et au prix indiqué par notre partenaire foncier. Conditions et visuels non contractuels.Cette annonce a été créée et diffusée avec le logiciel VITAHOME.
Breuillet
TERRAINPrix : 99000 €.Sur ce terrain de 478 m² à BREUILLET, Maisons Clairval vous propose de réaliser votre projet de construction de maison individuelle.Maisons Clairval propose de construire votre maison neuve avec toutes les prestations suivantes :- Plan sur-mesure et personnalisé de 2 à 6 chambres- Mode de chauffage au choix- Grands choix d'équipements et de prestations- Matériaux de qualité selon les normes en vigueur- Accompagnement dans le choix et l’acquisition du terrain- Construction conforme à la nouvelle RE 2020Demandez une étude gratuite et personnalisée de votre projet de construction sur ce terrain !Contactez Nicolas REBOUL au (Numéro supprimé) ou au (Numéro supprimé) (Maisons Clairval – Agence de Villemoisson).Prix hors frais de notaire. Terrain sélectionné et vu pour vous sous réserve de disponibilité et au prix indiqué par notre partenaire foncier. Conditions et visuels non contractuels.Cette annonce a été créée et diffusée avec le logiciel VITAHOME.
Breux-Jouy
TERRAINPrix : 108000 €.Sur ce terrain de 310 m² à BREUX-JOUY, Maisons Clairval vous propose de réaliser votre projet de construction de maison individuelle.Maisons Clairval propose de construire votre maison neuve avec toutes les prestations suivantes :- Plan sur-mesure et personnalisé de 2 à 6 chambres- Mode de chauffage au choix- Grands choix d'équipements et de prestations- Matériaux de qualité selon les normes en vigueur- Accompagnement dans le choix et l’acquisition du terrain- Construction conforme à la nouvelle RE 2020Demandez une étude gratuite et personnalisée de votre projet de construction sur ce terrain !Contactez Nicolas REBOUL au (Numéro supprimé) ou au (Numéro supprimé) (Maisons Clairval – Agence de Villemoisson).Prix hors frais de notaire. Terrain sélectionné et vu pour vous sous réserve de disponibilité et au prix indiqué par notre partenaire foncier. Conditions et visuels non contractuels.Cette annonce a été créée et diffusée avec le logiciel VITAHOME.
Briis-sous-Forges
TERRAINPrix : 149000 €.Sur ce terrain de 510 m² à BRIIS-SOUS-FORGES, Maisons Clairval vous propose de réaliser votre projet de construction de maison individuelle.Maisons Clairval propose de construire votre maison neuve avec toutes les prestations suivantes :- Plan sur-mesure et personnalisé de 2 à 6 chambres- Mode de chauffage au choix- Grands choix d'équipements et de prestations- Matériaux de qualité selon les normes en vigueur- Accompagnement dans le choix et l’acquisition du terrain- Construction conforme à la nouvelle RE 2020Demandez une étude gratuite et personnalisée de votre projet de construction sur ce terrain !Contactez Nicolas REBOUL au (Numéro supprimé) ou au (Numéro supprimé) (Maisons Clairval – Agence de Villemoisson).Prix hors frais de notaire. Terrain sélectionné et vu pour vous sous réserve de disponibilité et au prix indiqué par notre partenaire foncier. Conditions et visuels non contractuels.Cette annonce a été créée et diffusée avec le logiciel VITAHOME.
Bruyères-le-Châtel
TERRAINProche de toutes commodités, transports, écoles et autoroutePrix : 119000 €.Sur ce terrain de 195 m² à BRUYERES-LE-CHATEL, Maisons Clairval vous propose de réaliser votre projet de construction de maison individuelle.Maisons Clairval propose de construire votre maison neuve avec toutes les prestations suivantes :- Plan sur-mesure et personnalisé de 2 à 6 chambres- Mode de chauffage au choix- Grands choix d'équipements et de prestations- Matériaux de qualité selon les normes en vigueur- Accompagnement dans le choix et l’acquisition du terrain- Construction conforme à la nouvelle RE 2020Demandez une étude gratuite et personnalisée de votre projet de construction sur ce terrain !Contactez Nicolas REBOUL au (Numéro supprimé) ou au (Numéro supprimé) (Maisons Clairval – Agence de Villemoisson).Prix hors frais de notaire. Terrain sélectionné et vu pour vous sous réserve de disponibilité et au prix indiqué par notre partenaire foncier. Conditions et visuels non contractuels.Cette annonce a été créée et diffusée avec le logiciel VITAHOME.
L’actualité immobilière à Breuillet
27/11/2023
02/11/2023
30/10/2023
20/10/2023
16/10/2023
16/10/2023