Maison à construire à Breux-Jouy (91650)
Images
Description
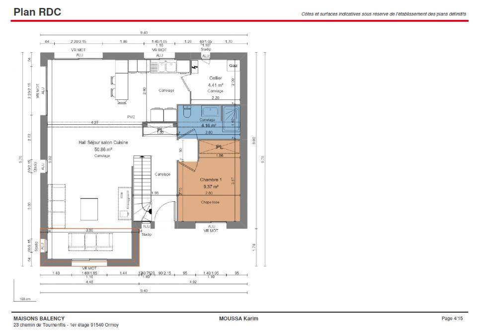
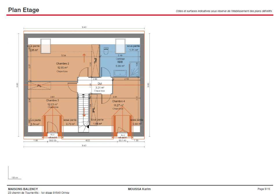
Breux-Jouy (91650), en Île de France : Belle Maison Design de 100 m² des Maisons Balency d'Ormoy à bâtir sur un terrain en lot avant de 326 m².
À Breux-Jouy, commune verdoyante de l'Essonne, notre agence de construction vous propose une maison contemporaine de 6 pièces à bâtir sur une parcelle de 326 m². Cette future construction, qui sera réalisée en totale conformité avec la réglementation RE2020, vous offrira confort, performance énergétique et esthétisme moderne.
À proximité immédiate, vous profiterez des commodités de Saint-Chéron et d'Arpajon : commerces, écoles, collège Roland Garros et supermarché Carrefour Market accessibles en quelques minutes. La gare RER C de Breux-Jouy permet de rejoindre Paris-Austerlitz en moins d'une heure, idéale pour les trajets quotidiens.
Nous concevons votre maison sur mesure, ou adaptons nos modèles existants selon vos envies et votre mode de vie, tout en vous garantissant la qualité et le savoir-faire du 1er constructeur de maisons individuelles en France.
Le projet est envisageable dès 324 000 € (terrain + maison, hors frais annexes).
Maisons BALENCY - Agence d'Ormoy
23 chemin de Tournenfils, 91540 ORMOY
(Numéro supprimé)
Annonce proposée par un Agent Commercial Partenaire.
Logement susceptibles de vous intéresser
Nous vous proposons de découvrir aussi cette sélection de logements situés à moins de 10km de Breux-Jouy et qui seraient susceptibles de vous intéresser.
Chamarande
TERRAINTerrain de 209 m² en vente à ChamarandeEMPLACEMENT PRIVILÉGIÉ – PROCHE D’ANTONYTerrain de 209 m² à proximité du RER C (station Lardy, 35 min de Paris). Ce terrain se situe bénéficiant d’un emplacement privilégié dans Chamarande (91730). Il est orienté au sud-ouest. Dans un quartier convoité, ce terrain est proche des commerces et des écoles. On trouve l’École Élémentaire École Publique à moins de 10 minutes à pied. Niveau transports, il y a la ligne de RER C (Chamarande) ainsi que 11 gares à moins de 10 minutes en voiture. On trouve une bibliothèque à quelques minutes.Il est à vendre pour la somme de 126 000 €. Contactez notre agence (RUBAL Alan : (Numéro supprimé)) pour toute question sur le terrain ou sur les modalités de vente.Annonce proposée par un Agent Commercial Partenaire.
Chamarande
TERRAIN ET MAISONChamarande : maison de 7 pièces (120 m²) en venteEMPLACEMENT PRIVILÉGIÉ – MAISON 7 PIÈCES NEUVEÀ quelques minutes du RER C (station Lardy, 35 min de Paris), ayez le coup de coeur pour en vente, bénéficiant d’un emplacement privilégié dans Chamarande (91730), cette maison de 7 pièces de 120 m².C’est une maison de 2 niveaux. Son intérieur est composé de cinq chambres, d’une cuisine et de deux salles de bains. Cette maison est neuve.Le terrain de la propriété s’étend sur 209 m².La propriété se trouve dans un secteur prisé. Il y a l’École Élémentaire École Publique à moins de 10 minutes à pied. Niveau transports, on trouve la ligne de RER C (Chamarande) ainsi que 11 gares à moins de 10 minutes en voiture. On trouve une bibliothèque dans les environs.Elle est à vendre pour la somme de 342 000 €.Contactez Alan RUBAL ((Numéro supprimé)) pour toute question sur la maison. Maisons France Confort Magny-le-Hongre vous accompagne dans toutes vos démarches et dans tous vos projets immobiliers.Annonce proposée par un Agent Commercial Partenaire.
Chamarande
TERRAIN ET MAISONVENTE d’une maison T5 (114 m²) à ChamarandeEMPLACEMENT PRIVILÉGIÉ – MAISON 5 PIÈCES NEUVEAu pied du RER C (station Lardy, 35 min de Paris), Maisons France Confort Magny-le-Hongre vous propose en vente, bénéficiant d’un emplacement d’exception dans Chamarande (91730), cette maison de 5 pièces de 114 m² et de 209 m² de terrain. Son intérieur se divise en quatre chambres, une cuisine et une salle de bains.Cette maison compte 2 niveaux. Elle est neuve.La maison se trouve dans un quartier convoité. L’École Élémentaire École Publique est implantée à moins de 10 minutes à pied. Niveau transports, il y a la ligne de RER C (Chamarande) ainsi que 11 gares à moins de 10 minutes en voiture. On trouve une bibliothèque dans les environs.Son prix de vente est de 331 200 €.Prenez contact avec notre agence (Alan RUBAL : (Numéro supprimé)) pour tout renseignement sur la maison, sur les démarches à suivre ou sur les modalités de vente. Maisons France Confort Magny-le-Hongre vous accompagne dans tous vos projets immobiliers et à toutes les étapes de l’achat.Annonce proposée par un Agent Commercial Partenaire.
Chamarande
TERRAIN ET MAISONVENTE : maison de 5 pièces (105 m²) à ChamarandeEMPLACEMENT PRIVILÉGIÉ – MAISON 5 PIÈCES NEUVEEn vente : à deux pas de la station Lardy du RER C (35 min de Paris), nous sommes ravis de vous présenter, bénéficiant d’un emplacement privilégié dans Chamarande (91730), cette maison de 5 pièces de plain-pied de 105 m² et de 209 m² de terrain. Elle est composée de quatre chambres, d’une cuisine et de deux salles de bains.Cette maison est neuve.Cette maison se trouve dans un quartier recherché. L’École Élémentaire École Publique est implantée à moins de 10 minutes à pied. Côté transports en commun, il y a la ligne de RER C (Chamarande) ainsi que 11 gares à moins de 10 minutes en voiture. On trouve une bibliothèque dans les environs.Elle est à vendre pour la somme de 315 000 €.Prenez contact avec notre agence (RUBAL Alan : (Numéro supprimé)) pour plus d’informations sur la maison. Donnez vie à vos projets immobiliers avec Maisons France Confort Magny-le-Hongre.Annonce proposée par un Agent Commercial Partenaire.
Arpajon
TERRAINPrix : 154000 €.Sur ce terrain de 298 m² à ARPAJON, Maisons Clairval vous propose de réaliser votre projet de construction de maison individuelle.Maisons Clairval propose de construire votre maison neuve avec toutes les prestations suivantes :- Plan sur-mesure et personnalisé de 2 à 6 chambres- Mode de chauffage au choix- Grands choix d'équipements et de prestations- Matériaux de qualité selon les normes en vigueur- Accompagnement dans le choix et l’acquisition du terrain- Construction conforme à la nouvelle RE 2020Demandez une étude gratuite et personnalisée de votre projet de construction sur ce terrain !Contactez Nicolas REBOUL au (Numéro supprimé) ou au (Numéro supprimé) (Maisons Clairval – Agence de Villemoisson).Prix hors frais de notaire. Terrain sélectionné et vu pour vous sous réserve de disponibilité et au prix indiqué par notre partenaire foncier. Conditions et visuels non contractuels.Cette annonce a été créée et diffusée avec le logiciel VITAHOME.
Breuillet
TERRAINPrix : 99000 €.Sur ce terrain de 478 m² à BREUILLET, Maisons Clairval vous propose de réaliser votre projet de construction de maison individuelle.Maisons Clairval propose de construire votre maison neuve avec toutes les prestations suivantes :- Plan sur-mesure et personnalisé de 2 à 6 chambres- Mode de chauffage au choix- Grands choix d'équipements et de prestations- Matériaux de qualité selon les normes en vigueur- Accompagnement dans le choix et l’acquisition du terrain- Construction conforme à la nouvelle RE 2020Demandez une étude gratuite et personnalisée de votre projet de construction sur ce terrain !Contactez Nicolas REBOUL au (Numéro supprimé) ou au (Numéro supprimé) (Maisons Clairval – Agence de Villemoisson).Prix hors frais de notaire. Terrain sélectionné et vu pour vous sous réserve de disponibilité et au prix indiqué par notre partenaire foncier. Conditions et visuels non contractuels.Cette annonce a été créée et diffusée avec le logiciel VITAHOME.
Breux-Jouy
TERRAINPrix : 108000 €.Sur ce terrain de 310 m² à BREUX-JOUY, Maisons Clairval vous propose de réaliser votre projet de construction de maison individuelle.Maisons Clairval propose de construire votre maison neuve avec toutes les prestations suivantes :- Plan sur-mesure et personnalisé de 2 à 6 chambres- Mode de chauffage au choix- Grands choix d'équipements et de prestations- Matériaux de qualité selon les normes en vigueur- Accompagnement dans le choix et l’acquisition du terrain- Construction conforme à la nouvelle RE 2020Demandez une étude gratuite et personnalisée de votre projet de construction sur ce terrain !Contactez Nicolas REBOUL au (Numéro supprimé) ou au (Numéro supprimé) (Maisons Clairval – Agence de Villemoisson).Prix hors frais de notaire. Terrain sélectionné et vu pour vous sous réserve de disponibilité et au prix indiqué par notre partenaire foncier. Conditions et visuels non contractuels.Cette annonce a été créée et diffusée avec le logiciel VITAHOME.
Briis-sous-Forges
TERRAINPrix : 149000 €.Sur ce terrain de 510 m² à BRIIS-SOUS-FORGES, Maisons Clairval vous propose de réaliser votre projet de construction de maison individuelle.Maisons Clairval propose de construire votre maison neuve avec toutes les prestations suivantes :- Plan sur-mesure et personnalisé de 2 à 6 chambres- Mode de chauffage au choix- Grands choix d'équipements et de prestations- Matériaux de qualité selon les normes en vigueur- Accompagnement dans le choix et l’acquisition du terrain- Construction conforme à la nouvelle RE 2020Demandez une étude gratuite et personnalisée de votre projet de construction sur ce terrain !Contactez Nicolas REBOUL au (Numéro supprimé) ou au (Numéro supprimé) (Maisons Clairval – Agence de Villemoisson).Prix hors frais de notaire. Terrain sélectionné et vu pour vous sous réserve de disponibilité et au prix indiqué par notre partenaire foncier. Conditions et visuels non contractuels.Cette annonce a été créée et diffusée avec le logiciel VITAHOME.
Bruyères-le-Châtel
TERRAINProche de toutes commodités, transports, écoles et autoroutePrix : 119000 €.Sur ce terrain de 195 m² à BRUYERES-LE-CHATEL, Maisons Clairval vous propose de réaliser votre projet de construction de maison individuelle.Maisons Clairval propose de construire votre maison neuve avec toutes les prestations suivantes :- Plan sur-mesure et personnalisé de 2 à 6 chambres- Mode de chauffage au choix- Grands choix d'équipements et de prestations- Matériaux de qualité selon les normes en vigueur- Accompagnement dans le choix et l’acquisition du terrain- Construction conforme à la nouvelle RE 2020Demandez une étude gratuite et personnalisée de votre projet de construction sur ce terrain !Contactez Nicolas REBOUL au (Numéro supprimé) ou au (Numéro supprimé) (Maisons Clairval – Agence de Villemoisson).Prix hors frais de notaire. Terrain sélectionné et vu pour vous sous réserve de disponibilité et au prix indiqué par notre partenaire foncier. Conditions et visuels non contractuels.Cette annonce a été créée et diffusée avec le logiciel VITAHOME.
L’actualité immobilière à Breux-Jouy
27/11/2023
02/11/2023
30/10/2023
20/10/2023
16/10/2023
16/10/2023