Maison à construire à Brunoy (91800)
Images
Description
Opportunité à saisir ! Projet de construction d'une maison d'exception BALENCY sur mesure
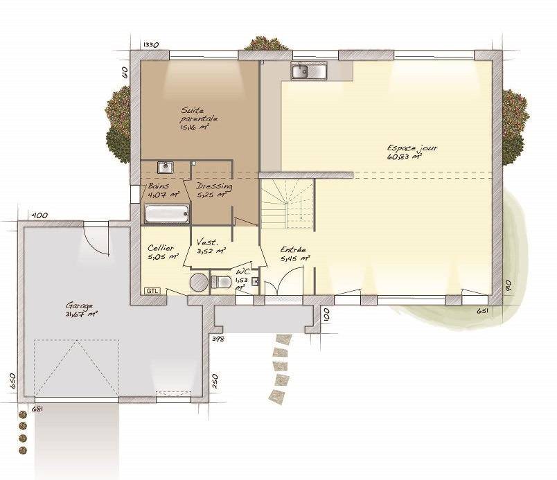
Dans un cadre privilégié, découvrez ce projet unique de construction d'une maison sur mesure, pensée pour allier élégance, confort et prestations haut de gamme. Sur un terrain de 986 m², cette future propriété offrira une surface habitable de 200 m², conçue selon vos envies et vos exigences.
Caractéristiques principales :
- Architecture contemporaine ou classique selon vos préférences
- Matériaux nobles et finitions de qualité supérieure
- Grands volumes lumineux avec baies vitrées et hauteurs sous plafond
- Cuisine équipée haut de gamme ouverte sur un vaste espace de vie
- Suites parentales avec dressing et salle de bain privative
- Espaces personnalisables : bureau, salle de sport, home cinéma...
- Système de chauffage et climatisation gainable pour un confort thermique optimal et une intégration discrète digne d'un palace
- Domotique intégrée pour un confort optimal
- Jardin paysager avec possibilité de piscine, terrasse, pool house...
Localisation idéale :
Située dans un environnement calme et résidentiel, à proximité des commodités, écoles, transports et axes principaux, cette maison incarne le parfait équilibre entre tranquillité et vie active.
Un projet clé en main :
Accompagnement complet par des professionnels reconnus : architectes, artisans, décorateurs. Vous choisissez, nous réalisons.
Pour plus d'informations, merci de nous contacter au (Numéro supprimé)
Annonce proposée par un Agent Commercial Partenaire.
Logement susceptibles de vous intéresser
Nous vous proposons de découvrir aussi cette sélection de logements situés à moins de 10km de Brunoy et qui seraient susceptibles de vous intéresser.
Servon
TERRAIN ET MAISONMaison T7 (120 m²) en vente à ServonMAISON 7 PIÈCES NEUVE – PROCHE DE PARISÀ vendre : à proximité de la station Boussy-Saint-Antoine du RER D (30 min de Paris), Maisons France Confort Magny-le-Hongre vous présente cette maison de 7 pièces de 120 m² et de 600 m² de terrain à Servon (77170).Cette maison possède 2 niveaux. Elle offre cinq chambres, une cuisine et deux salles de bains. Cette maison est neuve.Il y a l’École Primaire la Butte Aux Bergers à moins de 10 minutes à pied. Niveau transports en commun, on trouve trois lignes de RER (D, A et E) ainsi que sept gares à moins de 10 minutes en voiture. Il y a un tennis, une bibliothèque, des boulangeries, des commerces, un supermarché, un bureau de poste et une boucherie-charcuterie à proximité de la maison.Elle est à vendre pour la somme de 401 000 €.Prenez contact avec Alan RUBAL (tél : (Numéro supprimé)) pour plus d’informations sur la maison. Maisons France Confort Magny-le-Hongre vous accompagne dans tous vos projets immobiliers et dans toutes vos démarches.Annonce proposée par un Agent Commercial Partenaire.
Servon
TERRAIN ET MAISONMaison T8 (160 m²) en vente à ServonPROCHE DE PARIS – MAISON 8 PIÈCES NEUVEÀ vendre : à côté de la station Boussy-Saint-Antoine du RER D (30 min de Paris), à Servon (77170), nous sommes ravis de vous proposer cette maison de 8 pièces de 160 m² et de 600 m² de terrain. Son intérieur dispose de cinq chambres, d’une cuisine et de six salles de bains.C’est une maison de 2 niveaux. Elle est neuve.Il y a l’École Primaire la Butte Aux Bergers à moins de 10 minutes à pied. Niveau transports, on trouve les lignes de RER D, A et E ainsi que sept gares à moins de 10 minutes en voiture. On trouve un tennis, une bibliothèque, des boulangeries, des commerces, un supermarché, une boucherie-charcuterie et un bureau de poste à proximité.Elle est à vendre pour la somme de 473 000 €.N’hésitez pas à prendre contact avec notre agence (Alan RUBAL : (Numéro supprimé)) pour obtenir de plus amples renseignements sur ce bien, sur les démarches à suivre ou sur les modalités de vente. Donnez vie à vos projets immobiliers avec Maisons France Confort Magny-le-Hongre.Annonce proposée par un Agent Commercial Partenaire.
Servon
TERRAIN ET MAISONMaison de 5 pièces (100 m²) à vendre à ServonMAISON 5 PIÈCES NEUVE – PROCHE DE PARISÀ côté de la station Boussy-Saint-Antoine (Paris à 30 min par le RER D), Maisons France Confort Magny-le-Hongre vous propose cette maison de 5 pièces de 100 m² et de 600 m² de terrain à Servon (77170). Elle compte trois chambres, une cuisine et une salle de bains.Cette maison possède 2 niveaux. Elle est neuve.L’École Primaire la Butte Aux Bergers est implantée à moins de 10 minutes à pied. Niveau transports en commun, on trouve les lignes de RER D, A et E ainsi que sept gares à moins de 10 minutes en voiture. Il y a un tennis, une bibliothèque, des boulangeries, des commerces, un supermarché, un bureau de poste et une boucherie-charcuterie à proximité du logement.Elle est à vendre pour la somme de 365 000 €.N’hésitez pas à prendre contact avec Alan RUBAL ((Numéro supprimé)) pour plus d’informations sur la maison. Concrétisez vos projets immobiliers avec Maisons France Confort Magny-le-Hongre.Annonce proposée par un Agent Commercial Partenaire.
Athis-Mons
TERRAINSecteur calme et recherché à proximité du RER C.Rare sur le secteur.Prix : 227000 €.Sur ce terrain de 460 m² à ATHIS-MONS, Maisons Clairval vous propose de réaliser votre projet de construction de maison individuelle.Maisons Clairval propose de construire votre maison neuve avec toutes les prestations suivantes :- Plan sur-mesure et personnalisé de 2 à 6 chambres- Mode de chauffage au choix- Grands choix d'équipements et de prestations- Matériaux de qualité selon les normes en vigueur- Accompagnement dans le choix et l’acquisition du terrain- Construction conforme à la nouvelle RE 2020Demandez une étude gratuite et personnalisée de votre projet de construction sur ce terrain !Contactez Nicolas REBOUL au (Numéro supprimé) ou au (Numéro supprimé) (Maisons Clairval – Agence de Villemoisson).Prix hors frais de notaire. Terrain sélectionné et vu pour vous sous réserve de disponibilité et au prix indiqué par notre partenaire foncier. Conditions et visuels non contractuels.Cette annonce a été créée et diffusée avec le logiciel VITAHOME.
Boussy-Saint-Antoine
TERRAINProfitez du PTZ en zone A pour financer votre projetPrix : 149000 €.Sur ce terrain de 657 m² à BOUSSY-SAINT-ANTOINE, Maisons Clairval vous propose de réaliser votre projet de construction de maison individuelle.Maisons Clairval propose de construire votre maison neuve avec toutes les prestations suivantes :- Plan sur-mesure et personnalisé de 2 à 6 chambres- Mode de chauffage au choix- Grands choix d'équipements et de prestations- Matériaux de qualité selon les normes en vigueur- Accompagnement dans le choix et l’acquisition du terrain- Construction conforme à la nouvelle RE 2020Demandez une étude gratuite et personnalisée de votre projet de construction sur ce terrain !Contactez Nicolas REBOUL au (Numéro supprimé) ou au (Numéro supprimé) (Maisons Clairval – Agence de Villemoisson).Prix hors frais de notaire. Terrain sélectionné et vu pour vous sous réserve de disponibilité et au prix indiqué par notre partenaire foncier. Conditions et visuels non contractuels.Cette annonce a été créée et diffusée avec le logiciel VITAHOME.
Brunoy
TERRAINConstruction possible de 101 m² en R+1+combles.Prix : 130000 €.Sur ce terrain de 353 m² à BRUNOY, Maisons Clairval vous propose de réaliser votre projet de construction de maison individuelle.Maisons Clairval propose de construire votre maison neuve avec toutes les prestations suivantes :- Plan sur-mesure et personnalisé de 2 à 6 chambres- Mode de chauffage au choix- Grands choix d'équipements et de prestations- Matériaux de qualité selon les normes en vigueur- Accompagnement dans le choix et l’acquisition du terrain- Construction conforme à la nouvelle RE 2020Demandez une étude gratuite et personnalisée de votre projet de construction sur ce terrain !Contactez Nicolas REBOUL au (Numéro supprimé) ou au (Numéro supprimé) (Maisons Clairval – Agence de Villemoisson).Prix hors frais de notaire. Terrain sélectionné et vu pour vous sous réserve de disponibilité et au prix indiqué par notre partenaire foncier. Conditions et visuels non contractuels.Cette annonce a été créée et diffusée avec le logiciel VITAHOME.
Draveil
TERRAINproximité des commodités : Ecoles, commerces, hôpital, Gares RER D de Ris Orangis et de Juvisy.Prix : 172000 €.Sur ce terrain de 335 m² à DRAVEIL, Maisons Clairval vous propose de réaliser votre projet de construction de maison individuelle.Maisons Clairval propose de construire votre maison neuve avec toutes les prestations suivantes :- Plan sur-mesure et personnalisé de 2 à 6 chambres- Mode de chauffage au choix- Grands choix d'équipements et de prestations- Matériaux de qualité selon les normes en vigueur- Accompagnement dans le choix et l’acquisition du terrain- Construction conforme à la nouvelle RE 2020Demandez une étude gratuite et personnalisée de votre projet de construction sur ce terrain !Contactez Nicolas REBOUL au (Numéro supprimé) ou au (Numéro supprimé) (Maisons Clairval – Agence de Villemoisson).Prix hors frais de notaire. Terrain sélectionné et vu pour vous sous réserve de disponibilité et au prix indiqué par notre partenaire foncier. Conditions et visuels non contractuels.Cette annonce a été créée et diffusée avec le logiciel VITAHOME.
Limeil-Brévannes
TERRAINPrix : 190000 €.Sur ce terrain de 495 m² à LIMEIL-BREVANNES, Maisons Clairval vous propose de réaliser votre projet de construction de maison individuelle.Maisons Clairval propose de construire votre maison neuve avec toutes les prestations suivantes :- Plan sur-mesure et personnalisé de 2 à 6 chambres- Mode de chauffage au choix- Grands choix d'équipements et de prestations- Matériaux de qualité selon les normes en vigueur- Accompagnement dans le choix et l’acquisition du terrain- Construction conforme à la nouvelle RE 2020Demandez une étude gratuite et personnalisée de votre projet de construction sur ce terrain !Contactez Nicolas REBOUL au (Numéro supprimé) ou au (Numéro supprimé) (Maisons Clairval – Agence de Villemoisson).Prix hors frais de notaire. Terrain sélectionné et vu pour vous sous réserve de disponibilité et au prix indiqué par notre partenaire foncier. Conditions et visuels non contractuels.Cette annonce a été créée et diffusée avec le logiciel VITAHOME.
Montgeron
TERRAINLOT AVANTPrix : 179900 €.Sur ce terrain de 485 m² à MONTGERON, Maisons Clairval vous propose de réaliser votre projet de construction de maison individuelle.Maisons Clairval propose de construire votre maison neuve avec toutes les prestations suivantes :- Plan sur-mesure et personnalisé de 2 à 6 chambres- Mode de chauffage au choix- Grands choix d'équipements et de prestations- Matériaux de qualité selon les normes en vigueur- Accompagnement dans le choix et l’acquisition du terrain- Construction conforme à la nouvelle RE 2020Demandez une étude gratuite et personnalisée de votre projet de construction sur ce terrain !Contactez Nicolas REBOUL au (Numéro supprimé) ou au (Numéro supprimé) (Maisons Clairval – Agence de Villemoisson).Prix hors frais de notaire. Terrain sélectionné et vu pour vous sous réserve de disponibilité et au prix indiqué par notre partenaire foncier. Conditions et visuels non contractuels.Cette annonce a été créée et diffusée avec le logiciel VITAHOME.
L’actualité immobilière à Brunoy
27/11/2023
02/11/2023
30/10/2023
20/10/2023
16/10/2023
16/10/2023