Maison à construire à Bruyères-le-Châtel (91680)
Images
Description
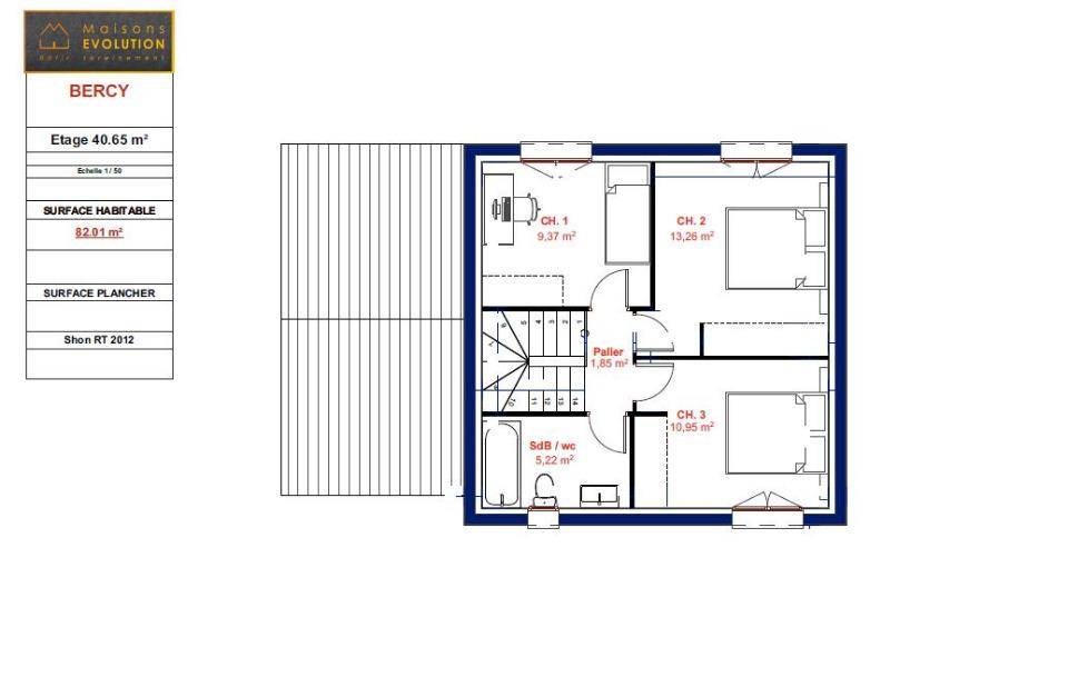
VENTE d'une maison F4 (82 m²) à Bruyères-le-Châtel
Paris à 40 min (RER C, Breuillet-Bruyères-le-Châtel) - À vendre à Bruyères-le-Châtel (91680) : maison neuve 4 pièces de 82 m² sur un terrain de 260 m². Son intérieur inclut trois chambres, une cuisine et deux salles de bains.
À proximité : RER C (Breuillet-Bruyères-Le-Châtel), gares, écoles, bibliothèque. Boulogne-Billancourt à 27 km.
Cette maison de 4 pièces est proposée à l'achat pour 319 900 €.
Contactez Steeve KANOR (tél : (Numéro supprimé)) pour obtenir de plus amples informations sur la maison. Concrétisez vos projets immobiliers avec Maisons Evolution Tigery.
Annonce proposée par un Agent Commercial Partenaire.
Logement susceptibles de vous intéresser
Nous vous proposons de découvrir aussi cette sélection de logements situés à moins de 10km de Bruyères-le-Châtel et qui seraient susceptibles de vous intéresser.
Vaugrigneuse
TERRAINDans un environnement recherché du sud de l’Essonne, découvrez ce terrain à bâtir de 337 m², idéalement situé à Vaugrigneuse, proposé au prix de 132 000 €.Nichée entre forêts et vallons, cette charmante commune offre un cadre de vie préservé, tout en bénéficiant d’une proximité directe avec les grands axes : N20, A10, et la gare de Saint-Chéron à moins de 10 minutes pour rejoindre Paris en une heure.Les écoles maternelle et primaire sont sur place, le collège accessible à Briis-sous-Forges, et de nombreux commerces et services se trouvent à proximité immédiate.Ce terrain, bien orienté, situé dans un secteur calme et verdoyant, offre de belles possibilités d’aménagement pour concrétiser un projet de vie serein à la campagne, tout en restant proche des commodités et de la capitale. Ce terrain pourrait notamment accueillir une maison moderne Natiban, un modèle à ossature bois conjuguant élégance, confort et performance énergétique, parfaitement adaptée à ce cadre naturel privilégié. Prix : 132 000 €Terrain proposé par notre partenaire foncier. En tant que constructeur, nous ne réalisons pas la vente du terrain seul.
Vaugrigneuse
TERRAIN ET MAISONEt si vous donniez vie à votre projet dans le charmant village de Vaugrigneuse, sur ce beau terrain de 337 m² ?Nous vous proposons d’y construire la Natiban, une maison contemporaine à ossature bois, élégante et chaleureuse, parfaitement adaptée à ce cadre bucolique.Cette maison de 3 chambres se distingue par son plan ingénieux et lumineux. De plain-pied, elle offre un grand espace de vie traversant, baigné de lumière grâce à ses larges ouvertures donnant sur le jardin. La pompe à chaleur et le plancher chauffant assurent un confort moderne, écologique et économique au fil des saisons.L’espace nuit, bien séparé, comprend trois chambres accueillantes et une salle de bain fonctionnelle, pensée pour le bien-être de toute la famille.Un garage intégré vient compléter l’ensemble, ajoutant praticité et élégance à cette maison à la fois simple et raffinée. Le prix comprend le terrain (132 000 €) et la construction de la maison sur vide sanitaire (hors frais de notaire, VRD et aménagements extérieurs). Terrain sous réserve de disponibilité auprès de notre partenaire foncier.
Ollainville
TERRAINMaison de 4 pièces (100 m²) à vendre à OllainvilleParis à 35 min (RER C, Égly) – À vendre, idéalement située dans Ollainville (91340) : maison neuve 4 pièces de 100 m² et de 284 m² de terrain. Son intérieur est composé de quatre chambres, d’une cuisine et de deux salles de bains.Proche RER (lignes C et B), gares, établissements scolaires, bibliothèques. Paris à 30 km.Le prix de vente de cette maison de 4 pièces est de 348 489 €.Prenez contact avec notre agence (Steeve KANOR : (Numéro supprimé)) pour toute question sur la maison.Annonce proposée par un Agent Commercial Partenaire.
Ollainville
TERRAIN ET MAISONMaison de 4 pièces (100 m²) à vendre à OllainvilleParis à 35 min (RER C, Égly) – À vendre, idéalement située dans Ollainville (91340) : maison neuve 4 pièces de 100 m² et de 284 m² de terrain. Son intérieur est composé de quatre chambres, d’une cuisine et de deux salles de bains.Proche RER (lignes C et B), gares, établissements scolaires, bibliothèques. Paris à 30 km.Le prix de vente de cette maison de 4 pièces est de 348 489 €.Prenez contact avec notre agence (Steeve KANOR : (Numéro supprimé)) pour toute question sur la maison.Annonce proposée par un Agent Commercial Partenaire.
Ollainville
TERRAIN ET MAISONMaison de 4 pièces (100 m²) à vendre à OllainvilleParis à 35 min (RER C, Égly) – À vendre, idéalement située dans Ollainville (91340) : maison neuve 4 pièces de 100 m² et de 284 m² de terrain. Son intérieur est composé de quatre chambres, d’une cuisine et de deux salles de bains.Proche RER (lignes C et B), gares, établissements scolaires, bibliothèques. Paris à 30 km.Le prix de vente de cette maison de 4 pièces est de 348 489 €.Prenez contact avec notre agence (Steeve KANOR : (Numéro supprimé)) pour toute question sur la maison.Annonce proposée par un Agent Commercial Partenaire.
Montlhéry
TERRAINEric Mouthon Conseiller Commercial MaisonsEvolution (Numéro supprimé) Étude gratuite et personnalisée sur rendez-vous.Situé sur les hauteurs de Montlhéry, dans un secteur calme et recherché, venez découvrir ce terrain à bâtir de 531 m² offrant une façade de 14,26 mètres.
Montlhéry
TERRAIN ET MAISONEric Mouthon Conseiller Commercial MaisonsEvolution (Numéro supprimé) Étude gratuite et personnalisée sur rendez-vous.Situé sur les hauteurs de Montlhéry, dans un secteur calme et recherché, venez découvrir ce terrain à bâtir de 531 m² offrant une façade de 14,26 mètres.Agencement Flexible :4 chambres lumineuses et des plans entièrement personnalisables pour un espace de vie qui vous ressemble. Performance RE 2020 : Une solution thermique et acoustique de pointe, garantissant un confort d’été supérieur (idéal contre la chaleur) et des économies d’énergie. Plancher Chauffant pour une chaleur douce et uniforme, sans radiateur encombrant. Volets Roulants (VR) motorisés et centralisé. Saisissez cette opportunité de bâtir une maison intelligente, éco-performante et sur mesure, dans un environnement paisible.
Brétigny-sur-Orge
TERRAINTerrain de 300 m² en vente proche Brétigny-sur-Orgeproche Brétigny-sur-Orge (91220) au pied de la gare, projetez la maison de vos rêves sur ce terrain de 300 m². Le terrain est proche des commerces et des écoles. Il y a des établissements scolaires (de la maternelle au lycée) à moins de 10 minutes à pied, tout comme quatre crèches. Niveau transports, on trouve la station de RER Brétigny (ligne C) ainsi que la gare Brétigny-sur-Orge dans un rayon de 1 km, plaçant Paris à 20 min du terrain en rer. Il y a un tennis, un bassin de natation, des boulangeries, des commerces, deux supermarchés, des épiceries et deux boucheries-charcuteries à proximité de la propriété. Enfin, le marché Place du marché anime le quartier.Son prix de vente est de 145 000 €. Prenez contact avec notre agence (Jerome RAOUX : (Numéro supprimé)) pour plus de renseignements sur ce terrain ou sur les démarches à suivre. Faites de vos projets immobiliers une réalité avec Maisons France Confort Nemours.Annonce proposée par un Agent Commercial Partenaire.
Brétigny-sur-Orge
TERRAIN ET MAISONMaison F6 (89 m²) en vente proche Brétigny-sur-OrgeMAISON 6 PIÈCES NEUVEÀ proximité de la gare, Maisons France Confort Nemours vous présente cette maison de 6 pièces de 89 m² proche Brétigny-sur-Orge (91220). Son intérieur inclut quatre chambres, une cuisine et une salle de bains.Le terrain de la maison est de 300 m².C’est une maison de 2 niveaux. Elle est neuve.Il y a des établissements scolaires (de la maternelle au lycée) à moins de 10 minutes à pied, tout comme quatre structures d’accueil pour les tout-petits. Niveau transports, on trouve la station de RER Brétigny (ligne C) ainsi que la gare Brétigny-sur-Orge dans un rayon de 1 km, positionnant la maison à 20 min de Paris en rer. Il y a un tennis, un bassin de natation, des boulangeries, des commerces, deux supermarchés, un bureau de poste et des épiceries à proximité du logement. Le marché Place du marché anime les environs.Son prix de vente est de 340 000 €.Contactez Jerome RAOUX (tél : (Numéro supprimé)) pour toute question sur le bien. Faites de vos projets immobiliers une réalité avec Maisons France Confort Nemours.Annonce proposée par un Agent Commercial Partenaire.
L’actualité immobilière à Bruyères-le-Châtel
27/11/2023
02/11/2023
30/10/2023
20/10/2023
16/10/2023
16/10/2023