Maison à construire à Cerny (91590)
Images
Description
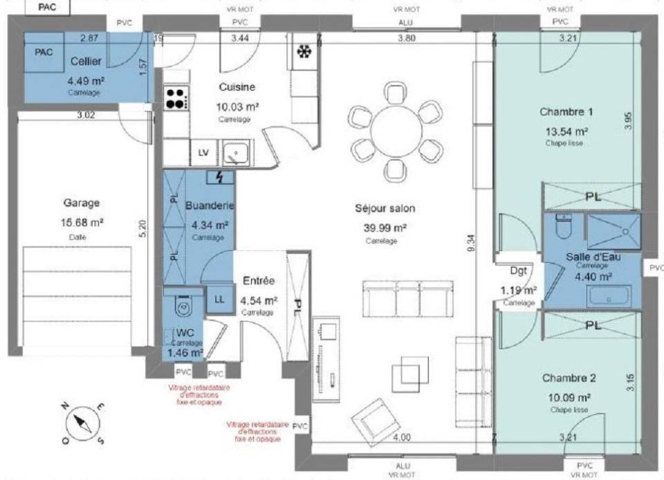
Beau Plain-pied en L de 90 m² à construire sur un grand terrain de 870 m², proche de Cerny (91590)
À seulement cinq minutes de Cerny, découvrez ce superbe projet de maison, avec garage, à bâtir sur un vaste et verdoyant terrain de 870 m², à partir de 283 000 € (terrain + maison + garage, hors frais annexes). 
Vous bénéficierez d'un cadre de vie privilégié à proximité immédiate des commodités : écoles, commerces, boulangerie et supermarché accessibles en quelques minutes, tout comme le collège Georges Brassens et le centre commercial de La Ferté-Alais. La gare de La Ferté-Alais, sur la ligne RER D, permet de rejoindre Paris en environ une heure.
Les Maisons Balency d'Ormoy, membres du Groupe Hexaôm, 1er constructeur de maisons individuelles en France, vous accompagnent dans la conception et la réalisation de votre future habitation. Nous créons des maisons entièrement sur mesure ou personnalisons l'un de nos modèles existants selon vos envies et votre budget. Toutes nos constructions respectent les dernières normes RE2020, garantissant un confort thermique optimal et un DPE classé A ou B.
Notre agence des Maisons Balency d'Ormoy est à votre écoute au (Numéro supprimé) pour concrétiser votre projet, de la recherche du terrain jusqu'à la remise des clés !
Annonce proposée par un Agent Commercial Partenaire.
Logement susceptibles de vous intéresser
Nous vous proposons de découvrir aussi cette sélection de logements situés à moins de 10km de Cerny et qui seraient susceptibles de vous intéresser.
 
  
 
 Leudeville
TERRAINEric Mouthon Conseiller Commercial Maison Evolution , (Numéro supprimé) Étude gratuite et personnalisée sur rendez-vous.Superbe terrain plat en lot clos de murs de 450m² belle façade d’environ 15m.
 
  
 
 Ballancourt-sur-Essonne
TERRAINEric Mouthon Conseiller Commercial Maison Evolution , (Numéro supprimé) Étude gratuite et personnalisée sur rendez-vous.Terrain plat en lot avant de 500M² déjà viabilisé situé dans une rue calme proche du centre ville.
 
  
 
 Leudeville
TERRAIN ET MAISONEric Mouthon Conseiller Commercial (Numéro supprimé) Étude gratuite et personnalisée sur rendez-vous.Maison Neuve RE 2020.Découvrez ce terrain de 450m² dans un village qui a su conserver son authenticité et sa tranquillité. Cadre de Vie Idéal : Écoles sur place et environnement calme.Agencement Flexible : 4 chambres lumineuses et des plans entièrement personnalisables pour un espace de vie qui vous ressemble. Performance RE 2020 : Une solution thermique et acoustique de pointe, garantissant un confort d’été supérieur (idéal contre la chaleur) et des économies d’énergie. Plancher Chauffant pour une chaleur douce et uniforme, sans radiateur encombrant. Volets Roulants (VR) motorisés et centralisé. Saisissez cette opportunité de bâtir une maison intelligente, éco-performante et sur mesure, dans un environnement paisible.
 
  
 
 Ballancourt-sur-Essonne
TERRAIN ET MAISONEric Mouthon Conseiller Commercial Maison Evolution , (Numéro supprimé) Étude gratuite et personnalisée sur rendez-vous.Cadre de Vie Idéal : Écoles sur place et environnement calme.Agencement Flexible :4 chambres lumineuses et des plans entièrement personnalisables pour un espace de vie qui vous ressemble. Performance RE 2020 : Une solution thermique et acoustique de pointe, garantissant un confort d’été supérieur (idéal contre la chaleur) et des économies d’énergie. Plancher Chauffant pour une chaleur douce et uniforme, sans radiateur encombrant. Volets Roulants (VR) motorisés et centralisé. Saisissez cette opportunité de bâtir une maison intelligente, éco-performante et sur mesure, dans un environnement paisible.
 
  
 
 Morigny-Champigny
TERRAIN(Numéro supprimé) — Les maisons CLAIRVAL vous proposent ce terrain de 450 m² situé à Morigny-Champigny, charmante commune de l’Essonne, à deux pas d’Étampes. Vous profiterez d’un environnement paisible et verdoyant, tout en bénéficiant de la proximité des commerces, écoles et services. Les gares RER et TER d’Étampes, ainsi que les axes routiers, facilitent vos déplacements vers Paris et les villes voisines. Ce terrain plat et bien exposé est idéal pour concevoir une maison moderne, lumineuse et économe en énergie, conforme à la norme RE2020, avec des prestations sur mesure : aménagements intérieurs personnalisés, solutions énergétiques performantes, menuiseries contemporaines et domotique. 📞 Contactez-nous dès aujourd’hui pour concrétiser votre projet à Morigny-Champigny.Prix : 85000 €.Sur ce terrain de 450 m² à MORIGNY-CHAMPIGNY, Maisons Clairval vous propose de réaliser votre projet de construction de maison individuelle.Demandez une étude gratuite et personnalisée de votre projet de construction sur ce terrain !Contactez John BOUT au (Numéro supprimé) ou au (Numéro supprimé) (Maisons Clairval – Agence de Rouvres).Prix hors frais de notaire. Terrain sélectionné et vu pour vous sous réserve de disponibilité et au prix indiqué par notre partenaire foncier. Conditions et visuels non contractuels.Cette annonce a été créée et diffusée avec le logiciel VITAHOME.
 
  
 
 Vayres-sur-Essonne
TERRAINEric Mouthon Conseiller Commercial (Numéro supprimé) Étude gratuite et personnalisée sur rendez-vous.Très beau terrain à Batir d’environ 600m2 avec une facade d’environ 24m dans rue paisible sur la commune de Vayres sur Essonne. Clos sur trois coté. Portail existant.
 
  
 
 Vayres-sur-Essonne
TERRAIN ET MAISONEric Mouthon Conseiller Commercial (Numéro supprimé) Étude gratuite et personnalisée sur rendez-vous.Agencement Flexible : 4 chambres lumineuses et des plans entièrement personnalisables pour un espace de vie qui vous ressemble. Performance RE 2020 : Une solution thermique et acoustique de pointe, garantissant un confort d’été supérieur (idéal contre la chaleur) et des économies d’énergie. Plancher Chauffant pour une chaleur douce et uniforme, sans radiateur encombrant. Volets Roulants (VR) motorisés et centralisé. Saisissez cette opportunité de bâtir une maison intelligente, éco-performante et sur mesure, dans un environnement paisible.
 
  
 
 Cerny
TERRAINVaste Terrain à bâtir de 870 m² situé à proximité de Cerny (91590) – 103 000 €À seulement cinq minutes de Cerny, dans un environnement calme et verdoyant, découvrez ce vaste terrain à bâtir profond de près de 60 mètres, idéal pour concrétiser votre projet de maison individuelle. Situé à proximité immédiate des commodités essentielles écoles, commerces, pharmacie et supermarché à moins de dix minutes ainsi que du collège de Cerny et du centre commercial d’Itteville, ce terrain bénéficie d’un emplacement recherché. La gare de La Ferté-Alais, desservie par la ligne RER D, permet de rejoindre Paris en environ une heure.Les Maisons Balency d’Ormoy, membres du Groupe Hexaôm, 1er constructeur de maisons individuelles en France, vous accompagnent dans la réalisation d’une maison totalement sur mesure ou dans l’adaptation de l’un de nos modèles catalogues, selon vos envies et votre budget. Toutes nos constructions respectent les dernières normes environnementales RE2020, assurant un excellent niveau de performance énergétique (DPE A ou B).Situé à moins de 30 minutes d’Évry-Courcouronnes et d’Arpajon, ce terrain offre un parfait équilibre entre tranquillité et proximité urbaine. Notre agence des Maisons Balency d’Ormoy est à votre disposition au (Numéro supprimé) pour vous accompagner de la recherche foncière à la remise des clés de votre futur foyer.Annonce proposée par un Agent Commercial Partenaire.
 
  
 
 La Ferté-Alais
TERRAINVaste Terrain à bâtir de 870 m² situé à deux pas de La Ferté-Alais (91590) – 103 000 €Dans un environnement calme et verdoyant, découvrez ce vaste terrain à bâtir profond de près de 60 mètres, idéal pour concrétiser votre projet de maison individuelle. Situé à proximité immédiate des commodités essentielles écoles, commerces, pharmacie et supermarché à moins de dix minutes ainsi que du collège de Cerny et du centre commercial d’Itteville, ce terrain bénéficie d’un emplacement recherché. La gare de La Ferté-Alais, desservie par la ligne RER D, permet de rejoindre Paris en environ une heure.Les Maisons Balency d’Ormoy, membres du Groupe Hexaôm, 1er constructeur de maisons individuelles en France, vous accompagnent dans la réalisation d’une maison totalement sur mesure ou dans l’adaptation de l’un de nos modèles catalogues, selon vos envies et votre budget. Toutes nos constructions respectent les dernières normes environnementales RE2020, assurant un excellent niveau de performance énergétique (DPE A ou B).Situé à moins de 30 minutes d’Évry-Courcouronnes et d’Arpajon, ce terrain offre un parfait équilibre entre tranquillité et proximité urbaine. Notre agence des Maisons Balency d’Ormoy est à votre disposition au (Numéro supprimé) pour vous accompagner de la recherche foncière à la remise des clés de votre futur foyer.Annonce proposée par un Agent Commercial Partenaire.
L’actualité immobilière à Cerny
 27/11/2023
 
 27/11/2023
 
  02/11/2023
 
 02/11/2023
 
  30/10/2023
 
 30/10/2023
 
  20/10/2023
 
 20/10/2023
 
  16/10/2023
 
 16/10/2023
 
  16/10/2023
 
 16/10/2023
 
  
 
 
 
 
 
  
  
  
  
  
  
  
  
  
 