Images
Description
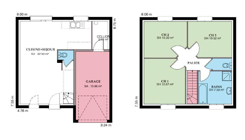
Sur ce terrain, nous vous proposons cette maison neuve baptisée Extenso, conçue par Babeau-Seguin, constructeur offrant le meilleur rapport qualité/prix du marché. Cette belle maison familiale à étage, d'une surface de 94 m², dispose de 3 chambres, d'un vaste séjour, d'une salle de bain, de 2 WC et d'un cellier, ainsi qu'un garage accolé.
Avec ses 4 pièces, cette maison traditionnelle à fort cachet est idéale pour les familles à la recherche de confort et de modernité. Conformément à la réglementation RE2020, cette maison est basse consommation, vous garantissant des économies d'énergie significatives.
Les options les plus demandées par nos clients sont disponibles pour cette maison : enduit bi-ton pour une façade personnalisable, domotique pour un confort de vie optimal, et volets roulants motorisés pour plus de praticité.
Ne manquez pas cette opportunité unique d'acquérir une maison neuve, moderne et économe en énergie, le tout à un prix attractif. L'Extenso vous offre le confort, la qualité et la modernité, le tout à un prix cassé ! Une exclusivité Maisons Babeau-Seguin.
Logement susceptibles de vous intéresser
Nous vous proposons de découvrir aussi cette sélection de logements situés à moins de 10km de Champcueil et qui seraient susceptibles de vous intéresser.
Saint-Sauveur-sur-École
TERRAINsituée aux portes du Parc Naturel du Gatinais Français, à 12 minutes de BARBIZON, à 20 minutes de FONTAINEBLEAU et Autoroute A6 à quelques minutes en voiture.Prix : 280000 €.Sur ce terrain de 1200 m² à SAINT-SAUVEUR-SUR-ECOLE, Maisons Clairval vous propose de réaliser votre projet de construction de maison individuelle.Maisons Clairval propose de construire votre maison neuve avec toutes les prestations suivantes :- Plan sur-mesure et personnalisé de 2 à 6 chambres- Mode de chauffage au choix- Grands choix d'équipements et de prestations- Matériaux de qualité selon les normes en vigueur- Accompagnement dans le choix et l’acquisition du terrain- Construction conforme à la nouvelle RE 2020Demandez une étude gratuite et personnalisée de votre projet de construction sur ce terrain !Contactez Nicolas REBOUL au (Numéro supprimé) ou au (Numéro supprimé) (Maisons Clairval – Agence de Villemoisson).Prix hors frais de notaire. Terrain sélectionné et vu pour vous sous réserve de disponibilité et au prix indiqué par notre partenaire foncier. Conditions et visuels non contractuels.Cette annonce a été créée et diffusée avec le logiciel VITAHOME.
Saint-Vrain
TERRAINPrix : 157900 €.Sur ce terrain de 382 m² à SAINT-VRAIN, Maisons Clairval vous propose de réaliser votre projet de construction de maison individuelle.Maisons Clairval propose de construire votre maison neuve avec toutes les prestations suivantes :- Plan sur-mesure et personnalisé de 2 à 6 chambres- Mode de chauffage au choix- Grands choix d'équipements et de prestations- Matériaux de qualité selon les normes en vigueur- Accompagnement dans le choix et l’acquisition du terrain- Construction conforme à la nouvelle RE 2020Demandez une étude gratuite et personnalisée de votre projet de construction sur ce terrain !Contactez Nicolas REBOUL au (Numéro supprimé) ou au (Numéro supprimé) (Maisons Clairval – Agence de Villemoisson).Prix hors frais de notaire. Terrain sélectionné et vu pour vous sous réserve de disponibilité et au prix indiqué par notre partenaire foncier. Conditions et visuels non contractuels.Cette annonce a été créée et diffusée avec le logiciel VITAHOME.
Seine-Port
TERRAINPrix : 275000 €.Sur ce terrain de 1019 m² à SEINE-PORT, Maisons Clairval vous propose de réaliser votre projet de construction de maison individuelle.Maisons Clairval propose de construire votre maison neuve avec toutes les prestations suivantes :- Plan sur-mesure et personnalisé de 2 à 6 chambres- Mode de chauffage au choix- Grands choix d'équipements et de prestations- Matériaux de qualité selon les normes en vigueur- Accompagnement dans le choix et l’acquisition du terrain- Construction conforme à la nouvelle RE 2020Demandez une étude gratuite et personnalisée de votre projet de construction sur ce terrain !Contactez Nicolas REBOUL au (Numéro supprimé) ou au (Numéro supprimé) (Maisons Clairval – Agence de Villemoisson).Prix hors frais de notaire. Terrain sélectionné et vu pour vous sous réserve de disponibilité et au prix indiqué par notre partenaire foncier. Conditions et visuels non contractuels.Cette annonce a été créée et diffusée avec le logiciel VITAHOME.
Saint-Vrain
TERRAINPrix : 158900 €.Sur ce terrain de 396 m² à SAINT-VRAIN, Maisons Clairval vous propose de réaliser votre projet de construction de maison individuelle.Maisons Clairval propose de construire votre maison neuve avec toutes les prestations suivantes :- Plan sur-mesure et personnalisé de 2 à 6 chambres- Mode de chauffage au choix- Grands choix d'équipements et de prestations- Matériaux de qualité selon les normes en vigueur- Accompagnement dans le choix et l’acquisition du terrain- Construction conforme à la nouvelle RE 2020Demandez une étude gratuite et personnalisée de votre projet de construction sur ce terrain !Contactez Nicolas REBOUL au (Numéro supprimé) ou au (Numéro supprimé) (Maisons Clairval – Agence de Villemoisson).Prix hors frais de notaire. Terrain sélectionné et vu pour vous sous réserve de disponibilité et au prix indiqué par notre partenaire foncier. Conditions et visuels non contractuels.Cette annonce a été créée et diffusée avec le logiciel VITAHOME.
Villabé
TERRAIN ET MAISONA VILLABE sur un terrain de 500 m², Maisons Clairval vous propose de réaliser cette maison neuve d'une surface de 135 m² habitables avec 4 chambres. Informations du terrain : terrain Plat, 16m de façade, belle profondeur sans vis à vis, non accolé a une autre maisonDemandez une étude gratuite et personnalisée de votre projet de construction au : (Numéro supprimé) !Contactez nous au (Numéro supprimé) (Maisons Clairval ).Prix avec assurance dommages-ouvrage comprise, VRD non compris, terrain viabilisé, adaptation non comprise, assainissement non compris, frais de notaire non compris, taxes non comprises, frais divers non compris. Terrain sélectionné et vu pour vous sous réserve de disponibilité et au prix indiqué par notre partenaire foncier. Conditions et visuels non contractuels.Cette annonce a été créée et diffusée avec le logiciel VITAHOME.
Villabé
TERRAINTerrain plat – Secteur Moulin GalantAvec 16 m de large, ce terrain permet tous les types d'architecture.Prêt à bâtir ! Sa configuration rectangulaire avec une belle profondeur est parfaite pour implanter votre maison tout en conservant un vaste jardin.Totalement indépendant (non accolé) et sans aucun vis-à-vis. Profitez d'une intimité totale, d'un calme et d'une luminosité exceptionnelle toute la journée.Ce terrain combine la tranquillité d'une zone pavillonnaire avec un accès direct à toutes les commodités.Rejoignez Paris facilement ! La gare RER D (Moulin Galant) est accessible à pied. Accès immédiat aux grands axes (N104, A6) pour vos déplacements en voiture. Les écoles (maternelle et primaire) se trouvent à quelques minutes de marche. Plus besoin de voiture pour accompagner les enfants ! Profitez des commerces de proximité (boulangerie, etc.) et des grands centres commerciaux à seulement quelques minutes en voiture. Environnement calme et recherché. Viabilités sur ruePrix : 210000 €.Sur ce terrain de 500 m² à VILLABE, Maisons Clairval vous propose de réaliser votre projet de construction de maison individuelle.Demandez une étude gratuite et personnalisée de votre projet de construction sur ce terrain !Contactez Houssine BAHARI au (Numéro supprimé) ou au (Numéro supprimé) (Maisons Clairval – Agence de Rouvres).Prix hors frais de notaire. Terrain sélectionné et vu pour vous sous réserve de disponibilité et au prix indiqué par notre partenaire foncier. Conditions et visuels non contractuels.Cette annonce a été créée et diffusée avec le logiciel VITAHOME.
Champcueil
TERRAINChampcueil : terrain de 405 m² à vendreEMPLACEMENT PRIVILÉGIÉ – PROCHE DE BALLANCOURTÀ quelques kilomètres de BALLANCOURT à Champcueil (91750), terrain de 405 m². Réalisez-y votre résidence principale ou secondaire. Il se situe dans un secteur attractif. L’École Élémentaire Chancolia, l’École Maternelle École Publique et le Collège Olympe de Gouges se trouvent à moins de 10 minutes à pied. Côté transports, il y a la ligne de RER D (Ballancourt) ainsi que 10 gares à moins de 10 minutes en voiture. On trouve une bibliothèque, un commerce, une boulangerie, une boucherie-charcuterie et un bureau de poste dans les environs.Son prix de vente est de 149 000 €. Contactez notre agence (DELOHEN Anne : (Numéro supprimé)) pour tout renseignement sur ce terrain et sur les modalités de vente.Annonce proposée par un Agent Commercial Partenaire.
Boutigny-sur-Essonne
TERRAINBoutigny-sur-Essonne : terrain de 688 m² en ventePROCHE D’ÉVRY-COURCOURONNESGrand terrain à deux pas de la gare. De 688 m², ce terrain se situe dans Boutigny-sur-Essonne (91820). Il y a l’École Maternelle Pierre Siriex à moins de 10 minutes à pied. Niveau transports, on trouve la station de RER Boutigny-Sur-Essonne (ligne D) ainsi que la gare Boutigny-sur-Essonne dans un rayon de 1 km. Il y a un tennis, quatre commerces, une boulangerie, un bureau de poste et une boucherie-charcuterie dans les environs.Son prix de vente est de 101 500 €. Contactez notre agence (Anne DELOHEN : (Numéro supprimé)) pour toute question sur ce terrain ou sur les modalités de vente. Maisons France Confort Nemours vous accompagne dans toutes vos démarches et à toutes les étapes de l’achat.Annonce proposée par un Agent Commercial Partenaire.
Champcueil
TERRAIN ET MAISONChampcueil : maison T5 (98 m²) à vendreEMPLACEMENT PRIVILÉGIÉ – MAISON 5 PIÈCES NEUVEEn vente : localisée à deux pas de Créteil, nous sommes heureux de vous présenter cette maison de 5 pièces de 98 m² bénéficiant d’un emplacement d’exception dans Champcueil (91750).Il s’agit d’une maison de 2 niveaux. Son intérieur propose quatre chambres, une cuisine et une salle de bains. Cette maison est neuve.Le terrain de la propriété s’étend sur 405 m².La maison est située dans un quartier recherché. Il y a l’École Élémentaire Chancolia, l’École Maternelle École Publique et le Collège Olympe de Gouges à moins de 10 minutes à pied. Niveau transports en commun, on trouve la ligne de RER D (Ballancourt) ainsi que 10 gares à moins de 10 minutes en voiture. Il y a une bibliothèque, un commerce, une boulangerie, une boucherie-charcuterie et un bureau de poste à proximité.Son prix de vente est de 324 310 €.N’hésitez pas à prendre contact avec notre agence (DELOHEN Anne : (Numéro supprimé)) pour obtenir de plus amples informations sur le bien, sur les modalités de vente ou sur les démarches à suivre. Donnez vie à vos projets immobiliers avec Maisons France Confort Nemours.Annonce proposée par un Agent Commercial Partenaire.
L’actualité immobilière à Champcueil
27/11/2023
02/11/2023
30/10/2023
20/10/2023
16/10/2023
16/10/2023