Maison à construire à Dannemois (91490)
Images
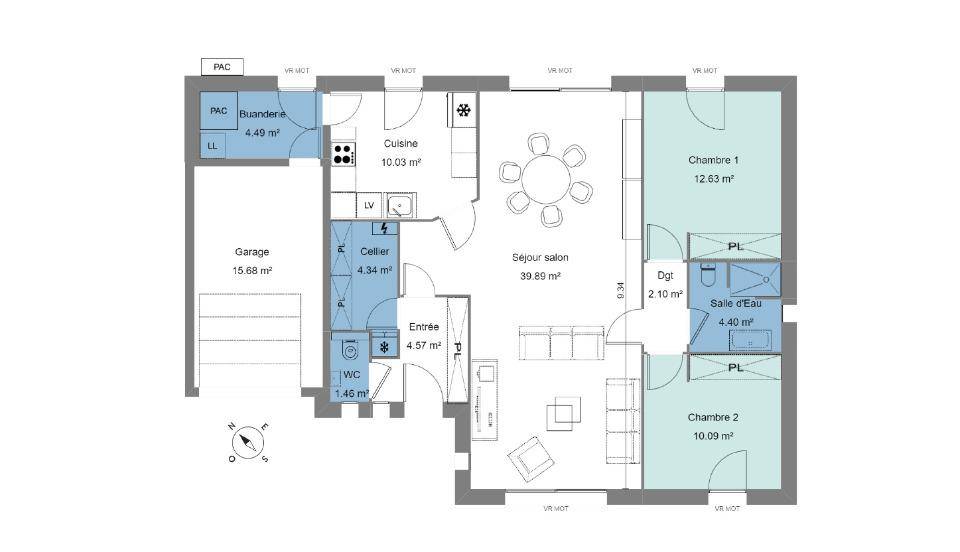
Description
VENTE : maison de 3 pièces (90 m²) à Dannemois
IDÉALEMENT SITUÉE - MAISON 3 PIÈCES NEUVE
À vendre : située à deux pas d'Évry-Courcouronnes, idéalement située dans Dannemois (91490), découvrez cette maison de 3 pièces de plain-pied de 90 m².
Elle est composée de deux chambres, d'une cuisine et d'une salle de bains. La maison est neuve.
Le terrain de la propriété est de 653 m².
Cette maison se situe dans un quartier prisé. On y trouve une école primaire. Côté transports en commun, on trouve la ligne de RER D (Boutigny-Sur-Essonne) ainsi que trois gares (Boutigny-sur-Essonne, Maisse et La Ferté-Alais) à moins de 10 minutes en voiture. Il y a un tennis et un commerce à quelques minutes à peine.
Elle est à vendre pour la somme de 367 890 €.
Prenez contact avec au (Numéro supprimé) pour toute information sur le bien ou sur les modalités de vente. Donnez vie à vos projets immobiliers avec Maisons Balency Ormoy.
Annonce proposée par un Agent Commercial Partenaire.
Logement susceptibles de vous intéresser
Nous vous proposons de découvrir aussi cette sélection de logements situés à moins de 10km de Dannemois et qui seraient susceptibles de vous intéresser.
Dannemois
TERRAINÀ vendre : Terrain à bâtir – Dannemois (91)Vous rêvez de construire votre maison dans un cadre verdoyant et paisible, au coeur du Parc Naturel du Gâtinais Français ?Découvrez ce superbe terrain à bâtir de 653 m², entièrement viabilisé, situé dans la commune prisée et pleine de charme de Dannemois, à quelques minutes de Milly-la-Forêt.👉 Les atouts du terrain :Surface : 653 m²Terrain plat et viabilisé, prêt à accueillir votre projet de constructionEnvironnement calme, résidentiel et verdoyantÀ proximité des écoles, commerces et commodités de Milly-la-ForêtSecteur recherché, idéal pour primo-accédants, secundo-accédants ou investisseursCe terrain offre un cadre de vie exceptionnel, mêlant nature, sérénité et confort moderne, parfait pour une maison familiale ou contemporaine.Avec Maisons Balency – Groupe Hexaôm, 1er constructeur de maisons individuelles en France, bénéficiez d’un accompagnement complet pour concevoir et bâtir la maison de vos rêves.Nos réalisations respectent la réglementation environnementale RE2020, garantissant performance énergétique, confort et durabilité.📍 Contactez dès maintenant notre agence d’Ormoy :Maisons BALENCY – Agence d’Ormoy23 chemin de Tournenfils, 91540 Ormoy📞 (Numéro supprimé)(Terrains proposés par nos partenaires fonciers, sous réserve des disponibilités à la date de diffusion.)Annonce proposée par un Agent Commercial Partenaire.
Dannemois
TERRAIN ET MAISONVENTE : maison de 3 pièces (90 m²) à DannemoisIDÉALEMENT SITUÉE – MAISON 3 PIÈCES NEUVEÀ vendre : située à deux pas d’Évry-Courcouronnes, idéalement située dans Dannemois (91490), découvrez cette maison de 3 pièces de plain-pied de 90 m².Elle est composée de deux chambres, d’une cuisine et d’une salle de bains. La maison est neuve.Le terrain de la propriété est de 653 m².Cette maison se situe dans un quartier prisé. On y trouve une école primaire. Côté transports en commun, on trouve la ligne de RER D (Boutigny-Sur-Essonne) ainsi que trois gares (Boutigny-sur-Essonne, Maisse et La Ferté-Alais) à moins de 10 minutes en voiture. Il y a un tennis et un commerce à quelques minutes à peine.Elle est à vendre pour la somme de 367 890 €.Prenez contact avec au (Numéro supprimé) pour toute information sur le bien ou sur les modalités de vente. Donnez vie à vos projets immobiliers avec Maisons Balency Ormoy.Annonce proposée par un Agent Commercial Partenaire.
Dannemois
TERRAIN ET MAISONDannemois : maison de 6 pièces (120 m²) en venteIDÉALEMENT SITUÉE – MAISON 6 PIÈCES NEUVEÀ deux pas d’Évry-Courcouronnes, notre agence Maisons Balency Ormoy est heureuse de vous présenter cette maison de 6 pièces de 120 m² idéalement située dans Dannemois (91490).Cette maison comporte 2 niveaux. Son intérieur compte quatre chambres, une cuisine et trois salles de bains. La maison est neuve.Le terrain du bien s’étend sur 653 m².La maison se trouve dans un quartier prisé. Une école primaire y est implantée. Niveau transports en commun, il y a la ligne de RER D (Boutigny-Sur-Essonne) ainsi que les gares Boutigny-sur-Essonne, Maisse et La Ferté-Alais à moins de 10 minutes en voiture. On trouve un tennis et un commerce à quelques minutes à peine.Elle est à vendre pour la somme de 402 456 €.Contactez nous au (Numéro supprimé) pour tout renseignement sur la maison.Annonce proposée par un Agent Commercial Partenaire.
Dannemois
TERRAIN ET MAISONDannemois : maison T7 (142 m²) en venteIDÉALEMENT SITUÉE – MAISON 7 PIÈCES NEUVEÀ 19 km d’Évry-Courcouronnes, venez découvrir en vente, idéalement située dans Dannemois (91490), cette maison de 7 pièces de 142 m². Elle se divise en cinq chambres, une cuisine et trois salles de bains.Le terrain du bien est de 653 m².Cette maison compte 2 niveaux. Elle est neuve.La maison se trouve dans un quartier attractif. Une école primaire y est implantée. Côté transports en commun, il y a la ligne de RER D (Boutigny-Sur-Essonne) ainsi que les gares Boutigny-sur-Essonne, Maisse et La Ferté-Alais à moins de 10 minutes en voiture. On trouve un tennis et un commerce à quelques minutes du logement.Son prix de vente est de 409 546 €.Contactez nous au (Numéro supprimé) pour tout renseignement sur la maison.Annonce proposée par un Agent Commercial Partenaire.
Dannemois
TERRAIN ET MAISONVENTE d’une maison T3 (71 m²) à DannemoisIDÉALEMENT SITUÉE – MAISON 3 PIÈCES NEUVEÀ vendre : à deux pas d’Évry-Courcouronnes, idéalement située dans Dannemois (91490), nous vous proposons cette maison de 3 pièces de plain-pied de 71 m² et de 653 m² de terrain.Conçue de plain-pied, elle compte deux chambres, une cuisine et une salle de bains. La maison est neuve.Le bien se trouve dans un quartier convoité. On y trouve une école primaire. Côté transports, il y a la ligne de RER D (Boutigny-Sur-Essonne) ainsi que les gares Boutigny-sur-Essonne, Maisse et La Ferté-Alais à moins de 10 minutes en voiture. On trouve un tennis et un commerce dans les environs.Son prix de vente est de 322 393 €.Contactez nous au (Numéro supprimé) pour toute information sur la maison, sur les modalités de vente ou sur les démarches à suivre. Faites de vos projets immobiliers une réalité avec Maisons Balency Ormoy.Annonce proposée par un Agent Commercial Partenaire.
Vayres-sur-Essonne
TERRAINTerrain de 500 m² en vente à Vayres-sur-EssonnePROCHE D’ÉVRY-COURCOURONNESÀ Vayres-sur-Essonne (91820) à deux pas d’Évry-Courcouronnes, projetez la maison de vos rêves sur ce terrain de 500 m². Le terrain est proche des commerces et des écoles. Il y a l’École Maternelle Pierre Siriex à moins de 10 minutes à pied. Niveau transports en commun, on trouve la station de RER Boutigny-Sur-Essonne (ligne D) ainsi que la gare Boutigny-sur-Essonne à quelques pas du terrain. Il y a un tennis, des commerces, une boulangerie, un bureau de poste et une boucherie-charcuterie à quelques minutes.Il est à vendre pour la somme de 148 000 €. Prenez contact avec notre agence (RAOUX Jerome : (Numéro supprimé)) pour toute question sur ce terrain ou sur les démarches à suivre. Maisons France Confort Nemours vous accompagne dans tous vos projets immobiliers et dans toutes vos démarches.Annonce proposée par un Agent Commercial Partenaire.
Vayres-sur-Essonne
TERRAIN ET MAISONVENTE d’une maison de 6 pièces (89 m²) à Vayres-sur-EssonnePROCHE D’ÉVRY-COURCOURONNES – MAISON 6 PIÈCES NEUVEÀ vendre : à 23 km d’Évry-Courcouronnes, votre agence Maisons France Confort Nemours est ravie de vous proposer cette maison de 6 pièces de 89 m² et de 500 m² de terrain à Vayres-sur-Essonne (91820).Cette maison compte 2 niveaux. Son intérieur dispose de quatre chambres, d’une cuisine et d’une salle de bains. La maison est neuve.Il y a l’École Maternelle Pierre Siriex à moins de 10 minutes à pied. Côté transports en commun, on trouve la station de RER Boutigny-Sur-Essonne (ligne D) ainsi que la gare Boutigny-sur-Essonne dans les environs. Il y a un tennis, des commerces, une boulangerie, une boucherie-charcuterie et un bureau de poste à proximité.Elle est proposée à l’achat pour 360 000 €.N’hésitez pas à prendre contact avec notre agence (Jerome RAOUX : (Numéro supprimé)) pour obtenir de plus amples informations sur cette maison, sur les démarches à suivre ou sur les modalités de vente. Maisons France Confort Nemours est là pour vous accompagner à toutes les étapes de l’achat.Annonce proposée par un Agent Commercial Partenaire.
Vayres-sur-Essonne
TERRAIN ET MAISONVENTE d’une maison de 5 pièces (100 m²) à Vayres-sur-EssonneMAISON 5 PIÈCES NEUVE – PROCHE D’ÉVRY-COURCOURONNESÀ vendre : à quelques kilomètres d’Évry-Courcouronnes, nous vous présentons cette maison de 5 pièces de 100 m² à Vayres-sur-Essonne (91820).C’est une maison de 2 niveaux. Son intérieur comporte trois chambres, une cuisine et une salle de bains. La maison est neuve.Le terrain du bien est de 500 m².On trouve l’École Maternelle Pierre Siriex à moins de 10 minutes à pied. Côté transports en commun, il y a la station de RER Boutigny-Sur-Essonne (ligne D) ainsi que la gare Boutigny-sur-Essonne juste à côté. On trouve un tennis, des commerces, une boulangerie, un bureau de poste et une boucherie-charcuterie dans les environs.Elle est à vendre pour la somme de 380 000 €.Contactez Jerome RAOUX ((Numéro supprimé)) pour toute information sur ce bien ou sur les modalités de vente.Annonce proposée par un Agent Commercial Partenaire.
Ballancourt-sur-Essonne
TERRAIN ET MAISONMaison de 6 pièces (89 m²) en vente à Ballancourt-sur-EssonnePROCHE DE CRÉTEIL – MAISON 6 PIÈCES NEUVEÀ deux pas de la station Bouray (Paris à 30 min par le RER C), votre agence Maisons France Confort Nemours est heureuse de vous présenter à vendre à Ballancourt-sur-Essonne (91610), cette maison de 6 pièces de 89 m² et de 400 m² de terrain. Elle est composée de quatre chambres, d’une cuisine et d’une salle de bains.Cette maison comporte 2 niveaux. Elle est neuve.L’École Élémentaire Jules Ferry et l’École Maternelle Pasteur sont implantées à moins de 10 minutes à pied, tout comme trois structures d’accueil pour les tout-petits. Côté transports, il y a le RER D et C ainsi que 11 gares à moins de 10 minutes en voiture. On trouve une bibliothèque, quatre commerces, deux boulangeries, une boucherie-charcuterie et une épicerie à proximité du bien. Le marché Place du marché anime les environs.Elle est proposée à l’achat pour 370 000 €.Contactez Jerome RAOUX ((Numéro supprimé)) pour plus d’informations sur ce bien ou sur les modalités de vente. Donnez vie à vos projets immobiliers avec Maisons France Confort Nemours.Annonce proposée par un Agent Commercial Partenaire.
L’actualité immobilière à Dannemois
27/11/2023
02/11/2023
30/10/2023
20/10/2023
16/10/2023
16/10/2023