Maison à construire à Dourdan (91410)
Images
Description
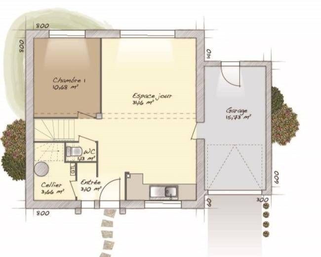
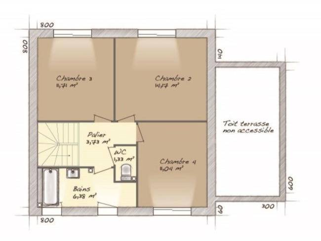
Maison T6 (98 m²) en vente à Dourdan
MAISON 6 PIÈCES NEUVE - PROCHE DE MASSY
À côté du RER C (55 min de Paris), nous vous présentons cette maison de 6 pièces de 98 m² et de 300 m² de terrain en vente à Dourdan (91410). Son intérieur se divise en quatre chambres, une cuisine et une salle de bains.
Cette maison comporte 2 niveaux. Elle est neuve.
Plusieurs établissements scolaires (maternelle, élémentaire, primaire et collège) sont implantés à moins de 10 minutes à pied. Niveau transports en commun, on trouve la station de RER Dourdan (ligne C) ainsi que la gare Dourdan à proximité. Il y a un bassin de natation, des commerces, trois supermarchés, des boulangeries, des épiceries et un bureau de poste à quelques minutes du logement. Le marché Place aux Herbes anime les environs.
Elle est à vendre pour la somme de 317 620 €.
N'hésitez pas à prendre contact avec Arnaud DUTEURTRE (tél : (Numéro supprimé)) pour plus de renseignements sur cette maison.
Annonce proposée par un Agent Commercial Partenaire.
Logement susceptibles de vous intéresser
Nous vous proposons de découvrir aussi cette sélection de logements situés à moins de 10km de Dourdan et qui seraient susceptibles de vous intéresser.
Richarville
TERRAINVENTE d’un terrain de 420 m² à RicharvillePROCHE DE SAINTE-GENEVIÈVE-DES-BOISÀ proximité du RER C (station Dourdan, 55 min de Paris) à Richarville (91410), terrain de 420 m². Réalisez-y votre projet immobilier. Le terrain est proche des commerces et des écoles. Il y a l’École Élémentaire École Publique à moins de 10 minutes à pied. Niveau transports, on trouve la ligne de RER C (Dourdan) ainsi que les gares Dourdan, Dourdan La Forêt et Sermaise à moins de 10 minutes en voiture.Ce terrain est proposé à l’achat pour 80 000 €. N’hésitez pas à prendre contact avec Jerome RAOUX ((Numéro supprimé)) pour tout renseignement sur le terrain. Concrétisez vos projets immobiliers avec Maisons France Confort Nemours.Annonce proposée par un Agent Commercial Partenaire.
Richarville
TERRAIN ET MAISONVENTE d’une maison de 5 pièces (89 m²) à RicharvilleMAISON 5 PIÈCES NEUVE – PROCHE DE SAINTE-GENEVIÈVE-DES-BOISÀ proximité du RER C (station Dourdan, 55 min de Paris), ayez le coup de coeur pour cette maison de 5 pièces de 89 m² et de 420 m² de terrain à vendre à Richarville (91410).Cette maison compte 2 niveaux. Son intérieur compte trois chambres, une cuisine et deux salles de bains. Cette maison est neuve.Il y a l’École Élémentaire École Publique à moins de 10 minutes à pied. Niveau transports, on trouve la ligne de RER C (Dourdan) ainsi que les gares Dourdan, Dourdan La Forêt et Sermaise à moins de 10 minutes en voiture.Elle est proposée à l’achat pour 269 000 €.Contactez Jerome RAOUX (tél : (Numéro supprimé)) pour plus d’informations sur ce bien ou sur les démarches à suivre.Annonce proposée par un Agent Commercial Partenaire.
Saint-Cyr-sous-Dourdan
TERRAINVENTE : terrain de 480 m² à Saint-Cyr-sous-DourdanPROCHE DE VERSAILLESTerrain de 480 m² proche de la station Sermaise (Paris à 50 min par le RER C). Ce terrain se situe dans Saint-Cyr-sous-Dourdan (91410). Le terrain est proche des commerces et des écoles. L’École Primaire Cécile Aubry se trouve à moins de 10 minutes à pied. Niveau transports en commun, il y a la ligne de RER C (Sermaise) ainsi que cinq gares à moins de 10 minutes en voiture. On trouve une épicerie à quelques minutes de la propriété.Ce terrain est proposé à l’achat pour 133 000 €. Contactez notre agence (RAOUX Jerome : (Numéro supprimé)) pour plus d’informations sur le terrain.Annonce proposée par un Agent Commercial Partenaire.
Dourdan
TERRAINVENTE : terrain de 380 m² proche DourdanProche Dourdan (91410) à quelques minutes du RER C (55 min de Paris), imaginez la maison de vos rêves sur ce terrain de 380 m². Ce terrain est proche des écoles et des commerces. Plusieurs écoles (maternelle, élémentaire, primaire et collège) se trouvent à moins de 10 minutes à pied. Niveau transports, il y a la station de RER Dourdan (ligne C) ainsi que la gare Dourdan juste à côté. On trouve un bassin de natation, des commerces, trois supermarchés, des boulangeries, un bureau de poste et une supérette à proximité. Enfin, le marché Place aux Herbes anime les environs.Il est à vendre pour la somme de 133 000 €. Contactez Jerome RAOUX (tél : (Numéro supprimé)) pour plus d’informations sur ce terrain, sur les démarches à suivre ou sur les modalités de vente. Maisons France Confort Nemours est là pour vous accompagner à toutes les étapes de l’achat.Annonce proposée par un Agent Commercial Partenaire.
Saint-Cyr-sous-Dourdan
TERRAIN ET MAISONVENTE d’une maison de 5 pièces (89 m²) à Saint-Cyr-sous-DourdanPROCHE DE VERSAILLES – MAISON 5 PIÈCES NEUVEEn vente : à côté de la station Sermaise du RER C (50 min de Paris), nous vous proposons à Saint-Cyr-sous-Dourdan (91410), cette maison de 5 pièces de 89 m². Son intérieur inclut trois chambres, une cuisine et deux salles de bains.Le terrain de la propriété est de 480 m².Cette maison compte 2 niveaux. Elle est neuve.On trouve l’École Primaire Cécile Aubry à moins de 10 minutes à pied. Niveau transports en commun, il y a la ligne de RER C (Sermaise) ainsi que cinq gares à moins de 10 minutes en voiture. On trouve une épicerie à quelques minutes.Elle est à vendre pour la somme de 345 000 €.Prenez contact avec Jerome RAOUX (tél : (Numéro supprimé)) pour obtenir de plus amples informations sur cette maison, sur les démarches à suivre ou sur les modalités de vente. Faites de vos projets immobiliers une réalité avec Maisons France Confort Nemours.Annonce proposée par un Agent Commercial Partenaire.
Saint-Cyr-sous-Dourdan
TERRAIN ET MAISONMaison T5 (100 m²) en vente à Saint-Cyr-sous-DourdanPROCHE DE VERSAILLES – MAISON 5 PIÈCES NEUVEÀ côté de la station Sermaise du RER C (50 min de Paris), nous sommes heureux de vous proposer cette maison de 5 pièces de 100 m² en vente à Saint-Cyr-sous-Dourdan (91410). Elle comporte trois chambres, une cuisine et une salle de bains.Le terrain du bien s’étend sur 480 m².Cette maison compte 2 niveaux. Elle est neuve.L’École Primaire Cécile Aubry est implantée à moins de 10 minutes à pied. Niveau transports, il y a la ligne de RER C (Sermaise) ainsi que cinq gares à moins de 10 minutes en voiture. On trouve une épicerie à proximité du logement.Elle est à vendre pour la somme de 370 000 €.Contactez notre agence (RAOUX Jerome : (Numéro supprimé)) pour tout renseignement sur la maison, sur les modalités de vente ou sur les démarches à suivre. Maisons France Confort Nemours vous accompagne à toutes les étapes de l’achat et dans tous vos projets immobiliers.Annonce proposée par un Agent Commercial Partenaire.
Dourdan
TERRAIN ET MAISONVENTE d’une maison F5 (89 m²) proche DourdanMAISON 5 PIÈCES NEUVE – En vente : à proximité du RER C (55 min de Paris), notre agence Maisons France Confort Nemours est ravie de vous présenter cette maison de 5 pièces de 89 m² et de 380 m² de terrain proche Dourdan (91410).Cette maison compte 2 niveaux. Son intérieur dispose de trois chambres, d’une cuisine et de deux salles de bains. Cette maison est neuve.Il y a plusieurs établissements scolaires (maternelle, élémentaire, primaire et collège) à moins de 10 minutes à pied. Côté transports en commun, on trouve la station de RER Dourdan (ligne C) ainsi que la gare Dourdan à quelques pas de la maison. Il y a un bassin de natation, des commerces, trois supermarchés, des boulangeries, une supérette et un bureau de poste à proximité. Le marché Place aux Herbes anime le quartier.Son prix de vente est de 340 000 €.N’hésitez pas à prendre contact avec notre agence (Jerome RAOUX : (Numéro supprimé)) pour toute question sur cette maison ou sur les démarches à suivre. Maisons France Confort Nemours est là pour vous accompagner dans tous vos projets immobiliers.Annonce proposée par un Agent Commercial Partenaire.
Dourdan
TERRAIN ET MAISONVENTE d’une maison de 5 pièces (80 m²) proche DourdanMAISON 5 PIÈCES NEUVE – À 695 m du RER C (55 min de Paris), laissez vous charmer par cette maison de 5 pièces de plain-pied de 80 m² à vendre proche Dourdan (91410).Son intérieur dispose de trois chambres, d’une cuisine et d’une salle de bains. Cette maison est neuve.Le terrain de la propriété s’étend sur 380 m².Plusieurs établissements scolaires (maternelle, élémentaire, primaire et collège) se trouvent à moins de 10 minutes à pied. Niveau transports en commun, il y a la station de RER Dourdan (ligne C) ainsi que la gare Dourdan dans un rayon de 1 km. On trouve un bassin de natation, des commerces, trois supermarchés, des boulangeries, une supérette et un bureau de poste dans les environs. Le marché Place aux Herbes anime le quartier.Elle est proposée à l’achat pour 325 000 €.Prenez contact avec notre agence (RAOUX Jerome : (Numéro supprimé)) pour toute information sur la maison ou sur les démarches à suivre. Maisons France Confort Nemours est là pour vous accompagner dans tous vos projets immobiliers.Annonce proposée par un Agent Commercial Partenaire.
Dourdan
TERRAINVENTE : terrain de 777 m² à DourdanGrand terrain au pied du RER C (55 min de Paris). De 777 m², ce terrain se situe dans Dourdan (91410). Plusieurs établissements scolaires (maternelle, élémentaire, primaire et collège) sont implantés à moins de 10 minutes à pied. Niveau transports en commun, on trouve la station de RER Dourdan (ligne C) ainsi que la gare Dourdan à proximité. Il y a un bassin de natation, des commerces, trois supermarchés, des boulangeries, des épiceries et un bureau de poste à quelques minutes du terrain. Le marché Place aux Herbes anime les environs.Il est à vendre pour la somme de 94 000 €. Prenez contact avec notre agence (AUGUSTINE Sabrina : (Numéro supprimé)) pour obtenir de plus amples renseignements sur ce terrain ou sur les démarches à suivre. Maisons France Confort Ris-Orangis vous accompagne dans tous vos projets immobiliers et à toutes les étapes de l’achat.
L’actualité immobilière à Dourdan
27/11/2023
02/11/2023
30/10/2023
20/10/2023
16/10/2023
16/10/2023