Maison à construire à Fontenay-le-Vicomte (91540)
Images
Description
Proche Fontenay-le-Vicomte : maison F5 (89 m²) à vendre
MAISON 5 PIÈCES NEUVE -
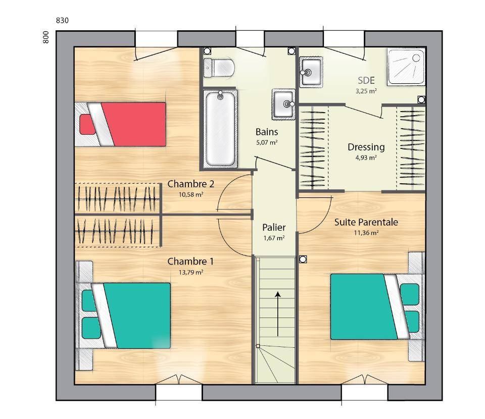
À vendre : à quelques minutes du RER C (station Bouray, 30 min de Paris), nous sommes ravis de vous présenter cette maison de 5 pièces de 89 m² proche Fontenay-le-Vicomte (91540).
Cette maison possède 2 niveaux. Elle est composée de trois chambres, d'une cuisine et de deux salles de bains. La maison est neuve.
Le terrain du bien s'étend sur 400 m².
L'École Primaire École Publique est implantée à moins de 10 minutes à pied. Niveau transports en commun, il y a les lignes de RER D et C ainsi que 15 gares à moins de 10 minutes en voiture. On trouve deux commerces, un supermarché et une boulangerie dans les environs.
Son prix de vente est de 370 000 €.
Prenez contact avec Jerome RAOUX (tél : (Numéro supprimé)) pour toute question sur la maison.
Annonce proposée par un Agent Commercial Partenaire.
Logement susceptibles de vous intéresser
Nous vous proposons de découvrir aussi cette sélection de logements situés à moins de 10km de Fontenay-le-Vicomte et qui seraient susceptibles de vous intéresser.
Leudeville
TERRAINEric Mouthon Conseiller Commercial (Numéro supprimé) Étude gratuite et personnalisée sur rendez-vous.Terrain constructible de 394 m² clos de murs en pierre sur 3 côtés. Façade sur rue 15,15 mètres, profondeur 26 mètres.
Leudeville
TERRAIN ET MAISONEric Mouthon Conseiller Commercial (Numéro supprimé) Étude gratuite et personnalisée sur rendez-vous.Agencement Flexible :4 chambres lumineuses et des plans entièrement personnalisables pour un espace de vie qui vous ressemble. Performance RE 2020 : Une solution thermique et acoustique de pointe, garantissant un confort d’été supérieur (idéal contre la chaleur) et des économies d’énergie. Plancher Chauffant pour une chaleur douce et uniforme, sans radiateur encombrant. Volets Roulants (VR) motorisés et centralisé. Saisissez cette opportunité de bâtir une maison intelligente, éco-performante et sur mesure, dans un environnement paisible.
Le Coudray-Montceaux
TERRAINPROCHE Coudray-Montceaux (91830) pour 159 000 € !Faites confiance aux MAISONS BALENCY D’ORMOY pour vous construire votre future maison sur un beau lot avant de 450 m² !Les Maisons Balency d’Ormoy (constructeur du Groupe Hexaôm, n°1 de la maison individuelle en France) vous proposent un terrain à bâtir de 450 m², au prix de 159 000 €. Ce terrain plat, idéalement situé dans un environnement résidentiel calme, offre une belle opportunité pour construire votre future maison RE2020, pensée pour le confort, la performance énergétique et le respect de l’environnement.Vous trouverez à deux pas l’école maternelle et primaire « Jean de La Fontaine », la mairie et une médiathèque municipale. Le supermarché Carrefour Market de Boissise-le-Roi est accessible en moins de 6 minutes. Pour vos déplacements vers Paris ou Melun, la gare de Ponthierry-Pringy (ligne R – Transilien) se situe à 7 minutes, avec un accès direct à la gare de Lyon en 35 minutes.Que vous soyez un jeune couple, une famille en pleine expansion ou à la recherche d’un cadre serein pour vos années paisibles, ce terrain est une base idéale pour une maison moderne, performante et personnalisée.Appelez-nous sans plus attendre au (Numéro supprimé) afin de concrétiser votre projet de construction dans les meilleures conditions ! Maisons Balency – Agence d’Ormoy, 23 chemin de Tournenfils, 91540 Ormoy.Annonce proposée par un Agent Commercial Partenaire.
Saint-Vrain
TERRAIN🏡 Vaste Terrain Constructible de 731 m² situé à Saint-Vrain, en Essonne (91770), et proposé au prix de 145 000 € !Proche RER CIdéalement situé à seulement 8 minutes à pied de la mairie, ce terrain profond de 40 mètres vous offre un cadre de vie paisible dans la charmante commune de Saint-Vrain, en Île-de-France. Vous bénéficierez de toutes les commodités à proximité : un grand supermarché à moins de 10 minutes, plusieurs écoles, commerces et la gare RER C de Bouray-Lardy également accessibles en 9 minutes maximum 🚆🛍️.Chez Maisons Balency Ormoy, nous concevons des maisons sur-mesure, conformes aux dernières normes RE2020 🌱. Nous pouvons aussi personnaliser nos modèles existants selon vos envies. Contactez-nous au (Numéro supprimé) pour une recherche foncière gratuite et lancez votre projet de construction dans des conditions idéales ! 🏠✨Annonce proposée par un Agent Commercial Partenaire.
Saint-Vrain
TERRAIN ET MAISONSaint-Vrain, Île de France (91770), dès 285 600 € : Plain-Pied Contemporain en L de 90 m² constructible à proximité du RER C, sur un vaste terrain de 731 m² !Découvrez ce charmant modèle de maison respectant les normes RE2020 à construire au coeur de l’Essonne. Réalisable sur un terrain spacieux de 731 m², profond de 40 mètres et offrant une façade constructible de 14,63 mètres, ce bien saura répondre à toutes vos attentes.Situé à seulement 8 minutes à pied d’une école et à 10 minutes des commerces, ce pavillon est parfait pour une famille en quête de confort et de commodité. Les transports sont également facilités grâce à la gare de Bouray-Lardy, desservant le RER C, qui permet de rejoindre Paris en seulement 40 minutes. Que vous cherchiez à investir, à offrir un cadre de vie agréable à votre famille ou à profiter d’une retraite paisible, cette parcelle est faite pour vous.Dans notre agence d’Ormoy des Maisons Balency, spécifiquement, nous vous proposons des réalisations totalement sur-mesure, conceptualisées avec soin. Nous pouvons également adapter nos modèles existants pour répondre à vos besoins spécifiques. Que vous soyez un jeune couple, une famille nombreuse ou des jeunes retraités, nous nous adaptons à tous les profils pour créer la maison de vos rêves.N’hésitez pas à nous contacter au (Numéro supprimé) pour lancer une recherche foncière gratuite et débuter votre projet de construction. Laissez-nous vous accompagner dans la réalisation de votre future demeure en Île de France !Annonce proposée par un Agent Commercial Partenaire.
Corbeil-Essonnes
TERRAINProche Corbeil-Essonnes : terrain de 300 m² en venteTerrain de 300 m² à proximité du RER D (40 min de Paris). Ce terrain se situe proche Corbeil-Essonnes (91100). Le terrain est proche des commerces et des écoles. Il y a des écoles de tous niveaux (de la maternelle au lycée) à moins de 10 minutes à pied. Niveau transports, on trouve la station de RER Corbeil-Essonnes (ligne D) ainsi que deux gares (Corbeil-Essonnes et Essonnes Robinson) à proximité. Il y a un bassin de natation, un tennis, des commerces, des boulangeries, deux supermarchés, deux bureaux de poste et des épiceries dans les environs. Enfin, le marché Place du Comte Haymon anime le quartier.Son prix de vente est de 136 000 €. Prenez contact avec notre agence (RAOUX Jerome : (Numéro supprimé)) pour tout renseignement sur le terrain ou sur les modalités de vente. Concrétisez vos projets immobiliers avec Maisons France Confort Nemours.Annonce proposée par un Agent Commercial Partenaire.
Corbeil-Essonnes
TERRAINVENTE d’un terrain de 370 m² proche Corbeil-EssonnesProche Corbeil-Essonnes (91100) proche du RER D (40 min de Paris), donnez vie à la maison de vos rêves sur ce terrain de 370 m². Le terrain est proche des commerces et des écoles. Il y a tous les types d’établissements scolaires à moins de 10 minutes à pied. Niveau transports, on trouve la station de RER Corbeil-Essonnes (ligne D) ainsi que deux gares (Corbeil-Essonnes et Essonnes Robinson) juste à côté. Il y a un bassin de natation, un tennis, des commerces, des boulangeries, deux supermarchés, deux bureaux de poste et des boucheries-charcuteries à quelques minutes. Le marché Place du Comte Haymon anime le quartier.Son prix de vente est de 160 000 €. N’hésitez pas à prendre contact avec notre agence (Jerome RAOUX : (Numéro supprimé)) pour obtenir de plus amples informations sur ce terrain. Maisons France Confort Nemours vous accompagne à toutes les étapes de l’achat et dans toutes vos démarches.Annonce proposée par un Agent Commercial Partenaire.
Corbeil-Essonnes
TERRAIN ET MAISONProche corbeil-Essonnes : maison T6 (89 m²) en venteMAISON 6 PIÈCES NEUVEÀ côté du RER D (40 min de Paris), Maisons France Confort Nemours vous propose cette maison de 6 pièces de 89 m² et de 300 m² de terrain en vente proche Corbeil-Essonnes (91100). Elle inclut quatre chambres, une cuisine et une salle de bains.Cette maison compte 2 niveaux. Elle est neuve.Des établissements scolaires de tous types se trouvent à moins de 10 minutes à pied. Niveau transports en commun, il y a la station de RER Corbeil-Essonnes (ligne D) ainsi que deux gares (Corbeil-Essonnes et Essonnes Robinson) à quelques pas de la maison. On trouve un bassin de natation, un tennis, des commerces, des boulangeries, deux supermarchés, des épiceries et deux bureaux de poste à quelques minutes du logement. Enfin, le marché Place du Comte Haymon anime les environs.Elle est à vendre pour la somme de 330 000 €.Contactez Jerome RAOUX ((Numéro supprimé)) pour tout renseignement sur la maison, sur les démarches à suivre ou sur les modalités de vente. Concrétisez vos projets immobiliers avec Maisons France Confort Nemours.Annonce proposée par un Agent Commercial Partenaire.
Corbeil-Essonnes
TERRAIN ET MAISONMaison T5 (90 m²) en vente proche Corbeil-EssonnesMAISON 5 PIÈCES NEUVEEn vente : à deux pas du RER D (40 min de Paris), votre agence Maisons France Confort Nemours est heureuse de vous proposer cette maison de 5 pièces de 90 m² et de 300 m² de terrain proche Corbeil-Essonnes (91100).Cette maison possède 2 niveaux. Son intérieur inclut trois chambres, une cuisine et une salle de bains. Cette maison est neuve.Il y a des écoles de tous niveaux (de la maternelle au lycée) à moins de 10 minutes à pied. Niveau transports en commun, on trouve la station de RER Corbeil-Essonnes (ligne D) ainsi que deux gares (Corbeil-Essonnes et Essonnes Robinson) dans les environs. Il y a un bassin de natation, un tennis, des commerces, des boulangeries, deux supermarchés, deux bureaux de poste et des boucheries-charcuteries à proximité. Le marché Place du Comte Haymon anime le quartier.Son prix de vente est de 350 000 €.Contactez notre agence (RAOUX Jerome : (Numéro supprimé)) pour obtenir de plus amples informations sur cette maison. Maisons France Confort Nemours vous accompagne à toutes les étapes de l’achat et dans tous vos projets immobiliers.Annonce proposée par un Agent Commercial Partenaire.
L’actualité immobilière à Fontenay-le-Vicomte
27/11/2023
02/11/2023
30/10/2023
20/10/2023
16/10/2023
16/10/2023