Maison à construire à Gif-sur-Yvette (91190)
Images
Description
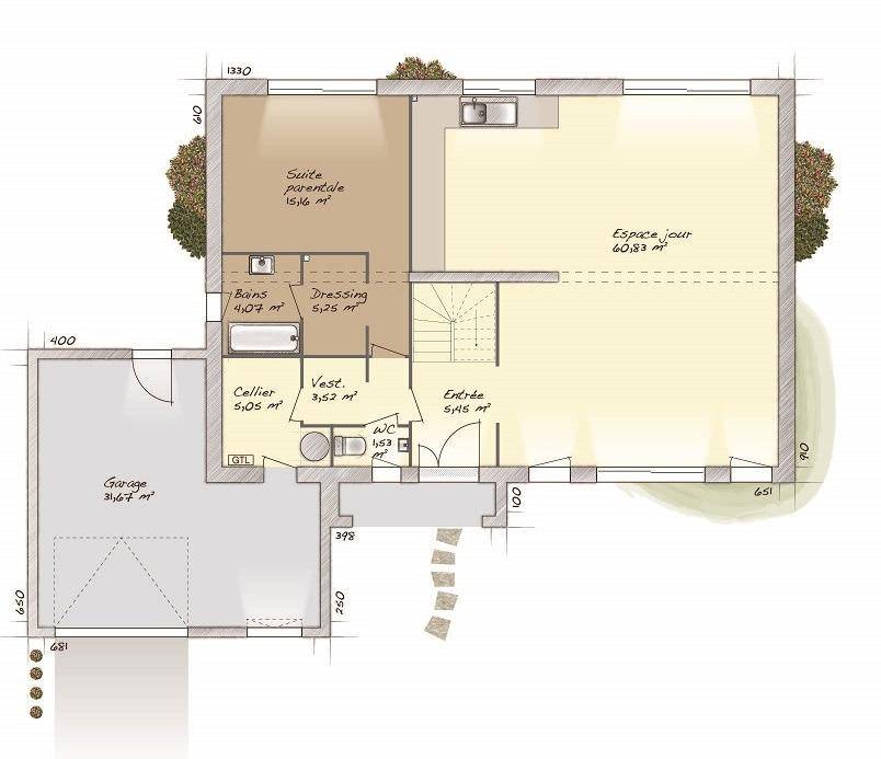
Opportunité à saisir ! Projet de construction d'une maison d'exception BALENCY sur mesure
Dans un cadre privilégié, découvrez ce projet unique de construction d'une maison sur mesure, pensée pour allier élégance, confort et prestations haut de gamme. Sur un terrain de 742 m², cette future propriété offrira une surface habitable de 200 m², conçue selon vos envies et vos exigences.
Caractéristiques principales :
- Architecture contemporaine ou classique selon vos préférences
- Matériaux nobles et finitions de qualité supérieure
- Grands volumes lumineux avec baies vitrées et hauteurs sous plafond
- Cuisine équipée haut de gamme ouverte sur un vaste espace de vie
- Suites parentales avec dressing et salle de bain privative
- Espaces personnalisables : bureau, salle de sport, home cinéma...
- Système de chauffage et climatisation gainable pour un confort thermique optimal et une intégration discrète digne d'un palace
- Domotique intégrée pour un confort optimal
- Jardin paysager avec possibilité de piscine, terrasse, pool house...
Localisation idéale :
Située dans un environnement calme et résidentiel, à proximité des commodités, écoles, transports et axes principaux, cette maison incarne le parfait équilibre entre tranquillité et vie active.
Un projet clé en main :
Accompagnement complet par des professionnels reconnus : architectes, artisans, décorateurs. Vous choisissez, nous réalisons.
Pour plus d'informations, merci de nous contacter au (Numéro supprimé)
Annonce proposée par un Agent Commercial Partenaire.
Logement susceptibles de vous intéresser
Nous vous proposons de découvrir aussi cette sélection de logements situés à moins de 10km de Gif-sur-Yvette et qui seraient susceptibles de vous intéresser.
Magny-les-Hameaux
TERRAINMagny-les-Hameaux : terrain de 315 m² en venteParis à 35 min (RER B, Saint-Rémy-lès-Chevreuse) – Terrain de 315 m² bénéficiant d’un emplacement privilégié dans Magny-les-Hameaux (78114).À proximité : RER (lignes B et C), gares, établissements scolaires, crèches, établissements d’enseignement supérieur, marchés, tennis, bibliothèques, bassins de natation, bowling, supermarchés, commerces, boulangeries, bureaux de poste et boucheries-charcuteries. Paris à 26 km.Son prix de vente est de 215 000 €. N’hésitez pas à prendre contact avec Steeve KANOR (tél : (Numéro supprimé)) pour toute information sur le terrain. Donnez vie à vos projets immobiliers avec Maisons Evolution Tigery.Annonce proposée par un Agent Commercial Partenaire.
Magny-les-Hameaux
TERRAIN ET MAISONVENTE d’une maison de 4 pièces (104 m²) à Magny-les-HameauxParis à 35 min (RER B, Saint-Rémy-lès-Chevreuse) – À découvrir bénéficiant d’un emplacement privilégié dans Magny-les-Hameaux (78114) : maison neuve 4 pièces en vente. 2 niveaux, surface de 104 m² sur 315 m² de terrain. Elle offre trois chambres, une cuisine et une salle de bains.Proche RER (lignes B et C), gares, établissements scolaires, crèches, établissements du supérieur, marchés, tennis, bibliothèques, bassins de natation, bowling, supermarchés, commerces, boulangeries, supérettes et bureaux de poste. Paris à 26 km.Cette maison de 4 pièces est à vendre pour la somme de 479 500 €.Contactez Steeve KANOR ((Numéro supprimé)) pour obtenir de plus amples renseignements sur la maison. Maisons Evolution Tigery vous accompagne dans toutes vos démarches et dans tous vos projets immobiliers.Annonce proposée par un Agent Commercial Partenaire.
Magny-les-Hameaux
TERRAIN ET MAISONVENTE : maison de 4 pièces (78 m²) à Magny-les-HameauxParis à 35 min (RER B, Saint-Rémy-lès-Chevreuse) – À découvrir bénéficiant d’un emplacement d’exception dans Magny-les-Hameaux (78114) : maison neuve 4 pièces à vendre, 2 niveaux, 78 m² sur 315 m² de terrain. Elle inclut trois chambres, une cuisine et une salle de bains.Proche RER (lignes B et C), gares, établissements scolaires, crèches, établissements du supérieur, marchés, tennis, bibliothèques, bassins de natation, bowling, supermarchés, commerces, boulangeries, poissonneries et bureaux de poste. Paris à 26 km.Cette maison de 4 pièces est à vendre pour la somme de 399 800 €.Prenez contact avec notre agence (Steeve KANOR : (Numéro supprimé)) pour toute question sur la maison ou sur les démarches à suivre. Concrétisez vos projets immobiliers avec Maisons Evolution Tigery.Annonce proposée par un Agent Commercial Partenaire.
Magny-les-Hameaux
TERRAIN ET MAISONVENTE d’une maison F7 (104 m²) à Magny-les-HameauxParis à 35 min (RER B, Saint-Rémy-lès-Chevreuse) – Bénéficiant d’un emplacement privilégié dans Magny-les-Hameaux (78114), maison neuve 7 pièces à vendre avec 2 niveaux, une surface de 104 m² sur un terrain de 315 m². Elle est composée de six chambres, d’une cuisine et de deux salles de bains.À dix minutes : RER (lignes B et C), gares, établissements scolaires, crèches, établissements du supérieur, marchés, tennis, bibliothèques, bassins de natation, bowling, supermarchés, commerces, boulangeries, boucheries-charcuteries et bureaux de poste. Paris à 26 km.Cette maison de 7 pièces est à vendre pour la somme de 509 800 €.Prenez contact avec Steeve KANOR (tél : (Numéro supprimé)) pour toute information sur la maison ou sur les démarches à suivre. Maisons Evolution Tigery est là pour vous accompagner dans tous vos projets immobiliers.Annonce proposée par un Agent Commercial Partenaire.
Bièvres
TERRAINEn plein centre ville de Bièvres avec commerces, écoles et RER à piedEmprise au sol d'environ 100 m² sur R+1+comblesPrix : 440000 €.Sur ce terrain de 281 m² à BIEVRES, Maisons Clairval vous propose de réaliser votre projet de construction de maison individuelle.Maisons Clairval propose de construire votre maison neuve avec toutes les prestations suivantes :- Plan sur-mesure et personnalisé de 2 à 6 chambres- Mode de chauffage au choix- Grands choix d'équipements et de prestations- Matériaux de qualité selon les normes en vigueur- Accompagnement dans le choix et l’acquisition du terrain- Construction conforme à la nouvelle RE 2020Demandez une étude gratuite et personnalisée de votre projet de construction sur ce terrain !Contactez Nicolas REBOUL au (Numéro supprimé) ou au (Numéro supprimé) (Maisons Clairval – Agence de Villemoisson).Prix hors frais de notaire. Terrain sélectionné et vu pour vous sous réserve de disponibilité et au prix indiqué par notre partenaire foncier. Conditions et visuels non contractuels.Cette annonce a été créée et diffusée avec le logiciel VITAHOME.
Boullay-les-Troux
TERRAINSituée au cœur de la Vallée de Chevreuse à seulement 35 km de ParisA proximité de la gare RER B de Saint-Rémy-lès-Chevreuse, permettant ainsi de rejoindre Paris en 40min environ.Accès rapide à la nationale N118Prix : 185000 €.Sur ce terrain de 576 m² à BOULLAY-LES-TROUX, Maisons Clairval vous propose de réaliser votre projet de construction de maison individuelle.Maisons Clairval propose de construire votre maison neuve avec toutes les prestations suivantes :- Plan sur-mesure et personnalisé de 2 à 6 chambres- Mode de chauffage au choix- Grands choix d'équipements et de prestations- Matériaux de qualité selon les normes en vigueur- Accompagnement dans le choix et l’acquisition du terrain- Construction conforme à la nouvelle RE 2020Demandez une étude gratuite et personnalisée de votre projet de construction sur ce terrain !Contactez Nicolas REBOUL au (Numéro supprimé) ou au (Numéro supprimé) (Maisons Clairval – Agence de Villemoisson).Prix hors frais de notaire. Terrain sélectionné et vu pour vous sous réserve de disponibilité et au prix indiqué par notre partenaire foncier. Conditions et visuels non contractuels.Cette annonce a été créée et diffusée avec le logiciel VITAHOME.
Briis-sous-Forges
TERRAINPrix : 149000 €.Sur ce terrain de 510 m² à BRIIS-SOUS-FORGES, Maisons Clairval vous propose de réaliser votre projet de construction de maison individuelle.Maisons Clairval propose de construire votre maison neuve avec toutes les prestations suivantes :- Plan sur-mesure et personnalisé de 2 à 6 chambres- Mode de chauffage au choix- Grands choix d'équipements et de prestations- Matériaux de qualité selon les normes en vigueur- Accompagnement dans le choix et l’acquisition du terrain- Construction conforme à la nouvelle RE 2020Demandez une étude gratuite et personnalisée de votre projet de construction sur ce terrain !Contactez Nicolas REBOUL au (Numéro supprimé) ou au (Numéro supprimé) (Maisons Clairval – Agence de Villemoisson).Prix hors frais de notaire. Terrain sélectionné et vu pour vous sous réserve de disponibilité et au prix indiqué par notre partenaire foncier. Conditions et visuels non contractuels.Cette annonce a été créée et diffusée avec le logiciel VITAHOME.
Bures-sur-Yvette
TERRAINA 1,1km de la gare de la HacquinièreDémolition à prévoir.Prix : 260000 €.Sur ce terrain de 379 m² à BURES-SUR-YVETTE, Maisons Clairval vous propose de réaliser votre projet de construction de maison individuelle.Maisons Clairval propose de construire votre maison neuve avec toutes les prestations suivantes :- Plan sur-mesure et personnalisé de 2 à 6 chambres- Mode de chauffage au choix- Grands choix d'équipements et de prestations- Matériaux de qualité selon les normes en vigueur- Accompagnement dans le choix et l’acquisition du terrain- Construction conforme à la nouvelle RE 2020Demandez une étude gratuite et personnalisée de votre projet de construction sur ce terrain !Contactez Nicolas REBOUL au (Numéro supprimé) ou au (Numéro supprimé) (Maisons Clairval – Agence de Villemoisson).Prix hors frais de notaire. Terrain sélectionné et vu pour vous sous réserve de disponibilité et au prix indiqué par notre partenaire foncier. Conditions et visuels non contractuels.Cette annonce a été créée et diffusée avec le logiciel VITAHOME.
Gif-sur-Yvette
TERRAINproche de toutes commodités et transports, à 5 min à pied de l'école primaire et à 15 minutes à pied du collège Les Goussons.Prix : 332000 €.Sur ce terrain de 400 m² à GIF-SUR-YVETTE, Maisons Clairval vous propose de réaliser votre projet de construction de maison individuelle.Maisons Clairval propose de construire votre maison neuve avec toutes les prestations suivantes :- Plan sur-mesure et personnalisé de 2 à 6 chambres- Mode de chauffage au choix- Grands choix d'équipements et de prestations- Matériaux de qualité selon les normes en vigueur- Accompagnement dans le choix et l’acquisition du terrain- Construction conforme à la nouvelle RE 2020Demandez une étude gratuite et personnalisée de votre projet de construction sur ce terrain !Contactez Nicolas REBOUL au (Numéro supprimé) ou au (Numéro supprimé) (Maisons Clairval – Agence de Villemoisson).Prix hors frais de notaire. Terrain sélectionné et vu pour vous sous réserve de disponibilité et au prix indiqué par notre partenaire foncier. Conditions et visuels non contractuels.Cette annonce a été créée et diffusée avec le logiciel VITAHOME.
L’actualité immobilière à Gif-sur-Yvette
27/11/2023
02/11/2023
30/10/2023
20/10/2023
16/10/2023
16/10/2023